Was habt ihr euch beim Haus gegönnt, worauf verzichtet?

4,40 Stern(e) 7 Votes
Zuletzt aktualisiert 19.11.2025
Sie befinden sich auf der Seite 38 der Diskussion zum Thema: Was habt ihr euch beim Haus gegönnt, worauf verzichtet?
>> Zum 1. Beitrag <<

Y

ypg

Wow... welche imposantes Bauwerk, bis auf das hier
Türen haben Denkmalschutz Kassetten Türen Optik.
, das liest sich etwas billig - zum Glück steh ich nicht auf sowas, auch das Gerenne in der 35qm Ankleide würd mich nerven

Mir würden auch ein paar Bilderchen reichen... wenn Du nicht so weit weg wohnen würdest, würde ich glatt eine Fotosession veranstalten, ich hab nen Weitwinkel
 
M

maniac669

Haha, ja, eine Vollzeit Haushälterin... Brauchste bei der Größe.
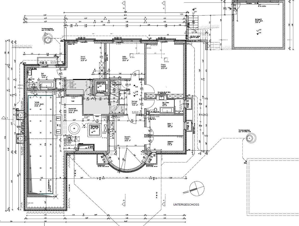
Selbige wird nicht bei uns wohnen, es gibt aber im Keller die Möglichkeit einer Anliegerwohnung. Da Hanglage befinden sich hier Bodentiefe Fenster.
Der linke obere Raum im Keller ist als selbige vorgesehen. Hier werden wir eine kleine Küchenzeile einbauen so das sich die Haushälterin auch was zum Mittag machen kann.
Neben dem Fenster besteht die Möglichkeit einen Durchbruch für eine Ordentliche Haustür zu machen (würde dann einen 3-4qm großen Vorraum davor bauen - für Schuhe etc.)
 
Zuletzt aktualisiert 19.11.2025
Im Forum Bauplanung gibt es 5071 Themen mit insgesamt 100812 Beiträgen


Ähnliche Themen zu Was habt ihr euch beim Haus gegönnt, worauf verzichtet?
Nr.ErgebnisBeiträge
1Position Kontrollierte-Wohnraumlüftung im unterirdischen Keller? 16
2Grundriss Einfamilienhaus mit Keller - Eure Meinungen bitte - Seite 316
3Grundriss Einfamilienhaus, ca. 200qm ohne Keller - Einschätzung - Seite 19172
4Hauskosten 160qm Wohnfläche+85qm Keller NRW, 2014 - Seite 535
5Büro in den Keller verlegen? 20
6Ideen zu Entwurf für Einfamilienhaus mit Keller - Seite 847
7Grundrissfrage, Treppe, Fenster, Ausrichtung 12
8Feuchtigkeit/Schimmel im Keller 10
9Haus mit oder ohne Keller - Seite 635
10Grundriss Einfamilienhaus mit Keller 19
11Grundriss Einfamilienhaus geplant, Fenster gefallen uns - Seite 343
12Finaler Grundriss-Entwurf - bis auf die Fenster - Seite 535
13Bei belüftetem Keller auf Kellerfenster verzichten? 20
14Einfamilienhaus Grundriss mit Keller, Version 2 23
15Grundriss 180qm plus Keller - 12,40mx9,04m 21
16Habt ihr RC2 Fenster einbauen lassen? - Seite 1063
17Deutlich zu hohe Luftfeuchtigkeit im Keller 10
18Grundriss Einfamilienhaus, ~180m², Keller mit Satteldach - Seite 681
19Grundrisse für Einfamilienhaus, ca. 140m², ohne Keller - Seite 1178
20Einfamilienhaus mit Keller - Optimierungsvorschläge? 12

Oben