Hallo liebe Forumsmitglieder,
ich bin aktuell mit der Firma Lehner Haus aus Heidenheim dabei mein Fertighaus in Holzständerbauweiße zu realisieren.
Bei der Plandurchsprache kam jetzt das Thema welche Luft-Wasser-Wärmepumpe verwendet werden soll auf. Ich habe mich im Vorfeld versucht etwas schlau zu machen. Nichts desto trotz würde es mich freuen eure Meinung dazu zu hören.
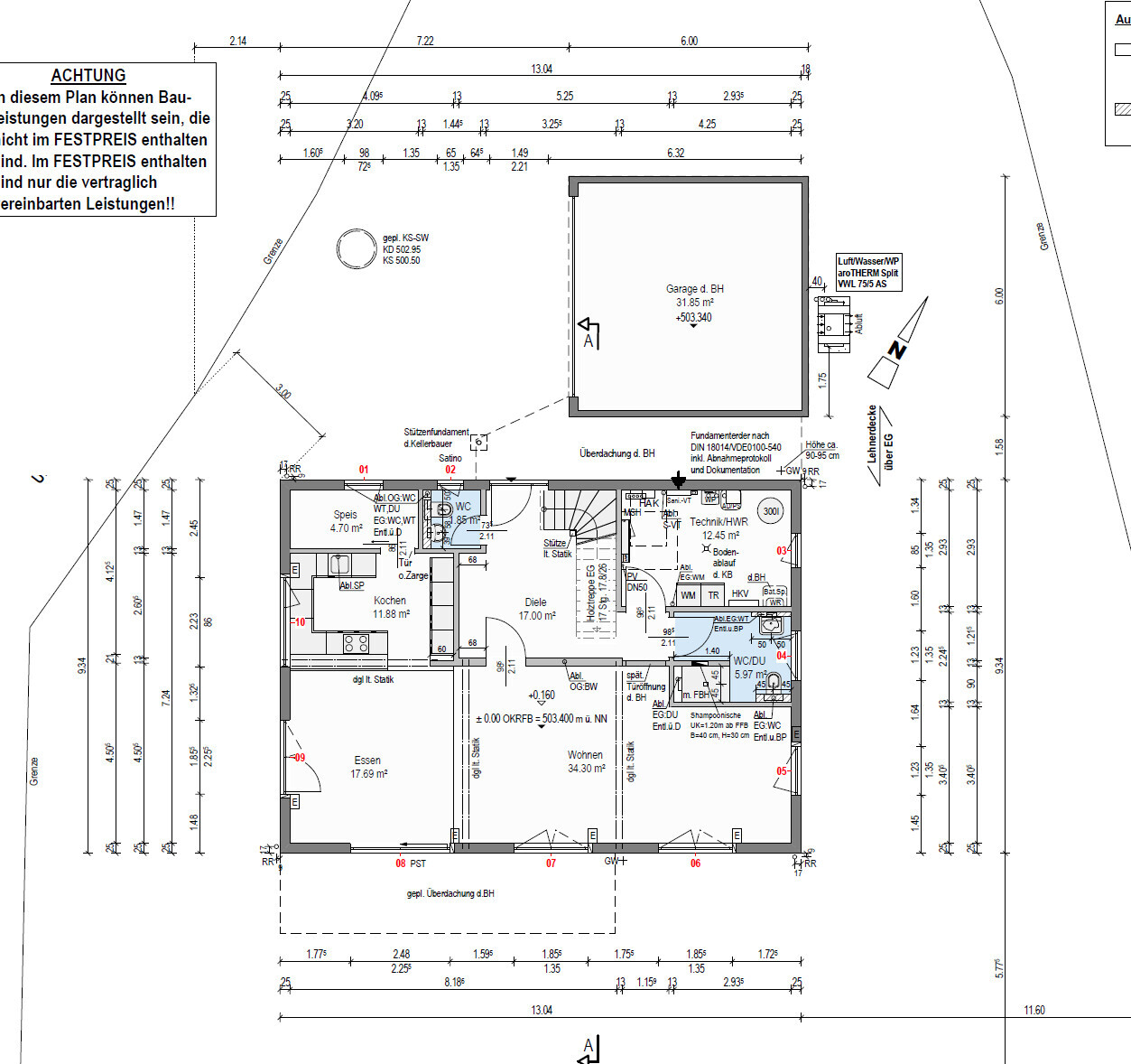
Erstmal zum Bau selbst. Geplant ist ein Effizienhaus 55 mit ca. 200 qm Wohnfläche. Anbei auch die Pläne. Es ist eine Fußbodenheizung für alle Räume außer Speisekammer und Technikraum geplant. Einziehen werden 4 Personen. Nutzungsverhalten würde ich jetzt als normal bzw. durchschnittlich bezeichnen. Aktuell gibt es niemand der jetzt mal 30 Minuten unter der Dusche steht. Die Badewanne wird aktuell ca. alle 2 Wochen mal benutzt. Kann sich natürlich wenn meine Kinder größer sind noch ändern. Temperatur mäßig sind wir im Schlafzimmer eher kühl unterwegs. Wohnzimmer usw so bei 20-21°C. Bad natürlich etwas wärmer aber hier kommt zumindest in das Bad im OG ein Handtuchheizkörper
Lehner Haus bietet 2 Anbieter bei der Wärmepumpe an: Vaillant und Viessmann
Aktuell ist im Preis eine Vaillant Arotherm Split 105/5 AS, ein 300 Liter Warmwasserpufferspeicher und ein Kompaktpufferspeicher VWZ MPS40 enthalten.
Es liegt im Moment noch keine komplette Heizlastberechnung vor. Eine grobe Vorabschätzung auf Seitens der Firma hat aber ergeben das die Heizung überdimensioniert ist und eher eine 75/5 AS bzw. eine 85/5 AS ausreichend sein sollte.
Hier wurde uns auch Empfohlen eher von der aroTherm Split auf eine aroTherm Plus zu wechseln.
Empfehlung von Lehner Haus wäre aktuell eine Vaillant aroTherm Plus 75/6 A S2
Hier bin ich mir aber unsicher ob das ausreichend ist und Frage mich auch warum dann ursprünglich eine deutlich größere Wärmepumpe angeboten wurde.
In diversen Beiträgen im Internet ließt man mal das die Wärmepumpen zu klein geplant wurden und dadurch nun ineffizient arbeitet da Sie zu "stark" betrieben werden muss. Die gleichen Aussagen ließt man aber auch anders herum das die Wärmepumpe nicht zu groß geplant werden soll.
Außerdem ist es für mich als Laie auch schwierig zu vergleichen welche Wärmepumpe besser ist (Split oder Plus) soweit ich das verstehe ist die Plus effizienter und leiser. Ist Sie aber den Mehrpreis wert? Und gibt es von Viessmann hier evtl. vergleichbare billigere Pumpen bzw. gleichteure bessere? Bei Stiftung Warentest hat im aktuellen Heft ja auch Viessmann gewonnen. Meinen Endpreis kann mir natürlich nur Lehner Haus nennen.
Ein Herausnehmen der Wärmepumpe aus dem Leistungsumfang von Lehner Haus ist für mich leider keine Option da ich dann sowohl die Fußbodenheizung als auch die komplette Sanitär Installation auch raus nehmen müsste (Ist wohl das gleiche Team).
Könnt Ihr mir hier evtl. weiterhelfen und Empfehlungen geben was hier die richtige Wahl ist? Final entscheiden muss ich mich Anfang November.
Besten Dank
Gruß ToBu1991


ich bin aktuell mit der Firma Lehner Haus aus Heidenheim dabei mein Fertighaus in Holzständerbauweiße zu realisieren.
Bei der Plandurchsprache kam jetzt das Thema welche Luft-Wasser-Wärmepumpe verwendet werden soll auf. Ich habe mich im Vorfeld versucht etwas schlau zu machen. Nichts desto trotz würde es mich freuen eure Meinung dazu zu hören.
Erstmal zum Bau selbst. Geplant ist ein Effizienhaus 55 mit ca. 200 qm Wohnfläche. Anbei auch die Pläne. Es ist eine Fußbodenheizung für alle Räume außer Speisekammer und Technikraum geplant. Einziehen werden 4 Personen. Nutzungsverhalten würde ich jetzt als normal bzw. durchschnittlich bezeichnen. Aktuell gibt es niemand der jetzt mal 30 Minuten unter der Dusche steht. Die Badewanne wird aktuell ca. alle 2 Wochen mal benutzt. Kann sich natürlich wenn meine Kinder größer sind noch ändern. Temperatur mäßig sind wir im Schlafzimmer eher kühl unterwegs. Wohnzimmer usw so bei 20-21°C. Bad natürlich etwas wärmer aber hier kommt zumindest in das Bad im OG ein Handtuchheizkörper
Lehner Haus bietet 2 Anbieter bei der Wärmepumpe an: Vaillant und Viessmann
Aktuell ist im Preis eine Vaillant Arotherm Split 105/5 AS, ein 300 Liter Warmwasserpufferspeicher und ein Kompaktpufferspeicher VWZ MPS40 enthalten.
Es liegt im Moment noch keine komplette Heizlastberechnung vor. Eine grobe Vorabschätzung auf Seitens der Firma hat aber ergeben das die Heizung überdimensioniert ist und eher eine 75/5 AS bzw. eine 85/5 AS ausreichend sein sollte.
Hier wurde uns auch Empfohlen eher von der aroTherm Split auf eine aroTherm Plus zu wechseln.
Empfehlung von Lehner Haus wäre aktuell eine Vaillant aroTherm Plus 75/6 A S2
Hier bin ich mir aber unsicher ob das ausreichend ist und Frage mich auch warum dann ursprünglich eine deutlich größere Wärmepumpe angeboten wurde.
In diversen Beiträgen im Internet ließt man mal das die Wärmepumpen zu klein geplant wurden und dadurch nun ineffizient arbeitet da Sie zu "stark" betrieben werden muss. Die gleichen Aussagen ließt man aber auch anders herum das die Wärmepumpe nicht zu groß geplant werden soll.
Außerdem ist es für mich als Laie auch schwierig zu vergleichen welche Wärmepumpe besser ist (Split oder Plus) soweit ich das verstehe ist die Plus effizienter und leiser. Ist Sie aber den Mehrpreis wert? Und gibt es von Viessmann hier evtl. vergleichbare billigere Pumpen bzw. gleichteure bessere? Bei Stiftung Warentest hat im aktuellen Heft ja auch Viessmann gewonnen. Meinen Endpreis kann mir natürlich nur Lehner Haus nennen.
Ein Herausnehmen der Wärmepumpe aus dem Leistungsumfang von Lehner Haus ist für mich leider keine Option da ich dann sowohl die Fußbodenheizung als auch die komplette Sanitär Installation auch raus nehmen müsste (Ist wohl das gleiche Team).
Könnt Ihr mir hier evtl. weiterhelfen und Empfehlungen geben was hier die richtige Wahl ist? Final entscheiden muss ich mich Anfang November.
Besten Dank
Gruß ToBu1991
R
RotorMotor01.10.23 15:41ToBu1991 schrieb:
Es liegt im Moment noch keine komplette Heizlastberechnung vor. Dann Heizung erst aussuchen wenn das der Fall ist.ToBu1991 schrieb:
In diversen Beiträgen im Internet ließt man mal das die Wärmepumpen zu klein geplant wurden und dadurch nun ineffizient arbeitet da Sie zu "stark" betrieben werden muss. Die gleichen Aussagen ließt man aber auch anders herum das die Wärmepumpe nicht zu groß geplant werden soll.Die Wärmepumpe muss passen.Wenn sie zu "groß" ist, vor allem nicht weit genug runter modulieren kann, dann taktet sie.
Geht also ständig kurz an und wieder aus. Das reduziert die Lebensdauer deutlich.
Wenn sie zu schwach ist, muss bei sehr kalten Temperaturen der Heizstab zusätzlich mit ran.
Das erhöht dann die Stromkosten.
Wir haben z.B. die 75er Vaillant bei knapp 200m² und die ist deutlich überdimensioniert.
Wir haben sie nur genommen, weil sie zu der Zeit von der Bafa stark gefördert wurde.
K
KarstenausNRW01.10.23 16:37ToBu1991 schrieb:
In diversen Beiträgen im Internet ließt man mal das die Wärmepumpen zu klein geplant wurden und dadurch nun ineffizient arbeitet da Sie zu "stark" betrieben werden muss. Die gleichen Aussagen ließt man aber auch anders herum das die Wärmepumpe nicht zu groß geplant werden soll.Zur Erklärung:Eine Heizlastberechnung erfolgt auf Basis der Normaußentemperatur. Also vielleicht -15 Grad. Diese Temperatur wird allerdings an den allerwenigsten Tagen - falls überhaupt erreicht. Also muss die Heizung = Wärmepumpe im Normalfall nur mit einem Bruchteil ihrer Leistung ran.
Ist die Wärmepumpe nun zu groß und kann nicht weit genug runter modulieren, fängt sie an zu takten. Geht also an, powert Wärme ins Haus und geht dann wieder aus. Das ist nicht gut fürs Gerät. Ist die Wärmepumpe passen oder ggf. etwas kleiner als nötig, so läuft sie mindestens 95-98% des Jahres in dem für sie passenden Leistungsrahmen. Sollte sie nun so klein, dass sie die -15 Grad über mehrere Tage (das sind dann Tagestemperaturen die -15 Grad) nicht schafft, so benötigt es den Heizstab.
Ich kann mich für meine Region allerdings nicht mehr dran erinnern, dass die Normtemperaturen erreicht wurden. Maximal als "Highlight" in der Nacht. Das stört die Wärmepumpe allerdings nicht, da das Haus erst einmal auskühlen müssten, bevor sie den Heizstab hinzu nimmt.
Die Erfahrung zeigt, dass man mit einer passenden oder etwas kleineren Wärmepumpe sehr gut und vor allem effizient fährt.
ToBu1991 schrieb:
Außerdem ist es für mich als Laie auch schwierig zu vergleichen welche Wärmepumpe besser ist (Split oder Plus) soweit ich das verstehe ist die Plus effizienter und leiser. Ist Sie aber den Mehrpreis wert?Die Plus ist eigentlich als Gerät für Altbauten / Sanierungen vorgesehen. Mit fällt nicht ein einziger Grund ein, diese im Neubau zu verbauen. Außer, sie wäre günstiger.Ansonsten die raumweise Heizlastberechnung abwarten und dann schauen, welches Gerät dazu passt.
R
RotorMotor01.10.23 18:08KarstenausNRW schrieb:
Die Plus ist eigentlich als Gerät für Altbauten / Sanierungen vorgesehen. Mit fällt nicht ein einziger Grund ein, diese im Neubau zu verbauen. Außer, sie wäre günstiger.
Die plus ist einfach ein ganz anderes Gerät.Ein monoblock zu dem Wasser raus geführt wird und nicht Kältemittel Leitungen.
Effizienter und moderneres Kältemittel.
K
KarstenausNRW01.10.23 18:47RotorMotor schrieb:
Die plus ist einfach ein ganz anderes Gerät.
Ein monoblock zu dem Wasser raus geführt wird und nicht Kältemittel Leitungen.
Effizienter und moderneres Kältemittel.Das ist mir schon klar. Aber im Neubau brauche ich keine Wärmepumpe, die auf 55 Grad Vorlauf getrimmt wurde - extra für Altbauten/Sanierungen. Da reicht mir eine "normale" Wärmepumpe aus. Monoblock mag ich persönlich ja auch gerne und habe selbst schon zwei Stück installiert.Ansonsten siehe
Hallo miteinander,
erstmal danke für die Informativen Antworten.
Das ich für die finale Auswahl erst auf die Heizlastberechnung warten muss war mir klar. Mir gings eher mal um eine erste Einschätzung ob das überhaupt hinhauen kann mit den genannten Modellen.
Die Heizlastberechnung würde ich auch mal hochladen sobald ich die habe.
Also die Plus kostet mich je nach Model (75/105) gegenüber der Split 2-3000 Euro mehr. Wenn die wirklich keinen Mehrwert hat verzichte ich darauf dann natürlich gerne.
Ich nehme auch gerne andere Modelle von den beiden Hersteller (Vaillant/Viessmann) wenn das Sinn macht. Gibts hier andere sinnige oder ist hier die aroTherm Split eigentlich die sinnvollste?
erstmal danke für die Informativen Antworten.
Das ich für die finale Auswahl erst auf die Heizlastberechnung warten muss war mir klar. Mir gings eher mal um eine erste Einschätzung ob das überhaupt hinhauen kann mit den genannten Modellen.
Die Heizlastberechnung würde ich auch mal hochladen sobald ich die habe.
Also die Plus kostet mich je nach Model (75/105) gegenüber der Split 2-3000 Euro mehr. Wenn die wirklich keinen Mehrwert hat verzichte ich darauf dann natürlich gerne.
Ich nehme auch gerne andere Modelle von den beiden Hersteller (Vaillant/Viessmann) wenn das Sinn macht. Gibts hier andere sinnige oder ist hier die aroTherm Split eigentlich die sinnvollste?
Ähnliche Themen