ᐅ Verlegerichtung Parkett / parallel oder quer zum Flur?
Erstellt am: 22.02.24 17:55
S
SimonSimon22.02.24 17:55Moin moin zusammen,
die oft gestellte Frage trifft nun auch mich, in welche Richtung sollte ich meinen Parkettboden verlegen.
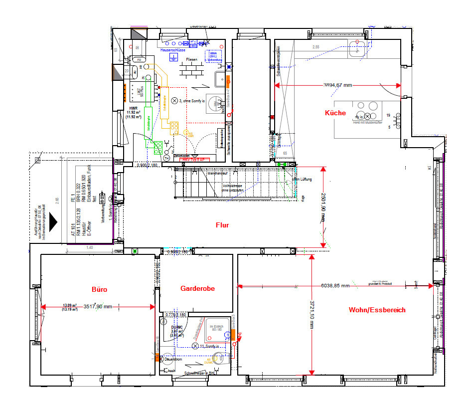
Wir haben im EG 20 cm breite Dielen, zwischen 2 und teilweise 6m lang.
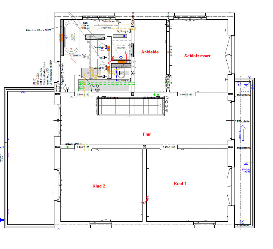
Im OG die gleichen Längen, aber nur 15 cm breit.
Wir verkleben den Boden (selbst), sprich wir legen die Dielen auch durch die Türen durch, ohne Dehnungsfuge.
Nur die WCs sowie der Technikraum sind gefliest, der Rest bekommt Holz (auch der Küchenbereich).
Ich tendiere zur Verlegung parallel zum Flur, sowie im EG und OG.
Das wäre gegen die "Regel" dass man den Raum eher quer zu den Dielen betreten soll. Auch die Treppenstufen wären quer zu der Richtung der Dielen.
Dafür wäre der Lichteinfall auch parallel zu den Dielen, so sollte man es machen, habe ich irgendwo gelesen.
Die Bilder sind grob schon nach Himmelsrichtung angeordnet, also oben ist Norden, sprich wir haben die Abendsonne dann von rechts kommend in unserem Wohnzimmer bzw. im OG dann durch das große rechte Flurfenster.
Was denkt ihr, wie würdest ihr es machen?
Bin um jede Meinung dankbar!
Beste Grüße aus Südbaden,
Simon


die oft gestellte Frage trifft nun auch mich, in welche Richtung sollte ich meinen Parkettboden verlegen.
Wir haben im EG 20 cm breite Dielen, zwischen 2 und teilweise 6m lang.
Im OG die gleichen Längen, aber nur 15 cm breit.
Wir verkleben den Boden (selbst), sprich wir legen die Dielen auch durch die Türen durch, ohne Dehnungsfuge.
Nur die WCs sowie der Technikraum sind gefliest, der Rest bekommt Holz (auch der Küchenbereich).
Ich tendiere zur Verlegung parallel zum Flur, sowie im EG und OG.
Das wäre gegen die "Regel" dass man den Raum eher quer zu den Dielen betreten soll. Auch die Treppenstufen wären quer zu der Richtung der Dielen.
Dafür wäre der Lichteinfall auch parallel zu den Dielen, so sollte man es machen, habe ich irgendwo gelesen.
Die Bilder sind grob schon nach Himmelsrichtung angeordnet, also oben ist Norden, sprich wir haben die Abendsonne dann von rechts kommend in unserem Wohnzimmer bzw. im OG dann durch das große rechte Flurfenster.
Was denkt ihr, wie würdest ihr es machen?
Bin um jede Meinung dankbar!
Beste Grüße aus Südbaden,
Simon
T
Tolentino22.02.24 20:23Und das ist tatsächlich auch der einzige Raum der irgendwie wirklich in eine Richtung gestreckt ist. die anderen sind ja alle eher Quadratisch, wenn man jetzt mal Küche und wohnen als getrennte Räume sieht.
Insofern würde ich auch eher quer zum Flur legen.
Insofern würde ich auch eher quer zum Flur legen.
W
WilderSueden22.02.24 22:08Da hat der Parkettleger halt ein Schnittstück in jeder Reihe. Sehr arbeitsintensiv
Fuchur schrieb:
Einen langen, schmalen Flur sollte man also quer belegen,Stimmt. Aber hier gibt es keinen langen, schmalen Flur.Dieser ist komfortabel breit und öffnet sich nach der Treppe in die Breite.
Insofern ist alles gut. Wir haben übrigens auch in Längsrichtung bei einer Breite von 2 Meter, allerdings keine Holzdielen, sondern rechteckige Fliesen. Das passt.
T
Tolentino22.02.24 22:52Aber quer abschneiden ist doch kein Problem. Das längs Schneiden schon eher. Für Profis kein Problem, für Laien schon doof. Wenn dann die Wand auch noch nicht ganz gerade ist wird's richtig doof. Also bei Eigenleistung tatsächlich noch ein Argument für Quer zum Flur.
@ypg, ja im EG öffnet er sich in den Raum, aber im OG ist der schon sehr länglich.
@ypg, ja im EG öffnet er sich in den Raum, aber im OG ist der schon sehr länglich.
Ähnliche Themen