ᐅ Umsetzung unseres Walmdachs bei einer Stadtvilla mit vorgezogenem OG
Erstellt am: 20.04.26 22:33
X
xDorixHallo zusammen,
wir würden bei unserer Stadtvilla mit Walmdach (EG mit Klinker, OG weiß verputzt) gerne das OG über der Haustür etwas vorziehen, um dieses vorgezogene Stück als Überdachung des Eingangsbereich zu nutzen.
Optisch soll das vorgezogene OG dann auf Säulen stehen oder mit eine durchgehende Verbindung links und rechts zu der Haustür haben.
Jetzt ist uns aber aufgefallen, dass dadurch unser geplanter Dachüberstand von 50cm nicht mehr überall gleich ist. Aktuell ist das OG im Bereich der Haustür 75cm vorgezogen. Dadurch würde sich links und rechts vom vorgezogenen Teil des OGs ein Dachüberstand von 1,25m ergeben, was uns zu viel ist und höchstwahrscheinlich auch nicht gut aussieht.
Wir wollen keine extra Überdachung, kein zusätzlich kleines Vordach oder ähnliches haben sondern die Dachkante soll in eins durchgehen. Und diese sitzt halt am vorgezogenen OG.
Habt ihr Ideen, wie man das lösen kann?
Danke vorab!
wir würden bei unserer Stadtvilla mit Walmdach (EG mit Klinker, OG weiß verputzt) gerne das OG über der Haustür etwas vorziehen, um dieses vorgezogene Stück als Überdachung des Eingangsbereich zu nutzen.
Optisch soll das vorgezogene OG dann auf Säulen stehen oder mit eine durchgehende Verbindung links und rechts zu der Haustür haben.
Jetzt ist uns aber aufgefallen, dass dadurch unser geplanter Dachüberstand von 50cm nicht mehr überall gleich ist. Aktuell ist das OG im Bereich der Haustür 75cm vorgezogen. Dadurch würde sich links und rechts vom vorgezogenen Teil des OGs ein Dachüberstand von 1,25m ergeben, was uns zu viel ist und höchstwahrscheinlich auch nicht gut aussieht.
Wir wollen keine extra Überdachung, kein zusätzlich kleines Vordach oder ähnliches haben sondern die Dachkante soll in eins durchgehen. Und diese sitzt halt am vorgezogenen OG.
Habt ihr Ideen, wie man das lösen kann?
Danke vorab!
N
nordanney20.04.26 23:03Stell mal Pläne ein. Nur so kann man sich das schwer vorstellen. Nur die Decke auskragen lassen oder soll das Wohnraum sein (wie ein Erker)?
Und warum wollt ihr das (mit 75cm?)? Säulen müssen zum ganzen Haus und der Umgebung passen (habe ich bisher eigentlich nur in südlichen Ländern optisch schön gesehen…).
Was sagt Euer Planer?
Und warum wollt ihr das (mit 75cm?)? Säulen müssen zum ganzen Haus und der Umgebung passen (habe ich bisher eigentlich nur in südlichen Ländern optisch schön gesehen…).
Was sagt Euer Planer?
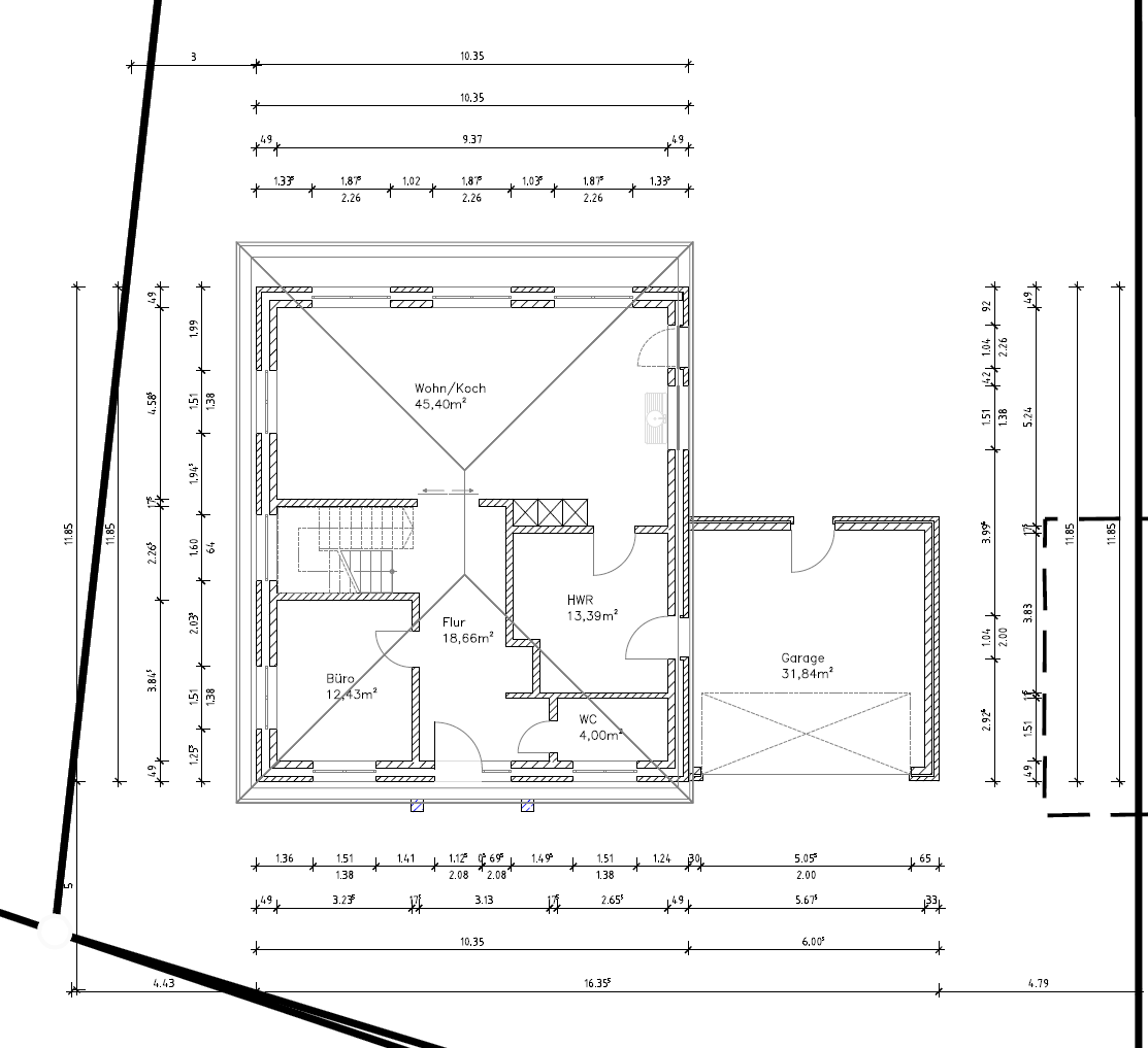
Anbei die Grundrisse vom EG und OG. Im OG befindet sich über der Haustür das Kinderbad. Dieses soll ungefähr die gezeichnete Größe behalten, kann aber durch den Platz im Flur noch geschoben werden. Um einen Überstand der Haustür zu realisieren, müsste es ja mindestens 50cm vorstehen. Wenn man diese 50cm vorstehen lassen würde, könnte an diesem vorgezogenen Teil nur die Regenrinne sein und man hätte wieder den gewollten Dachüberstand von 50cm über den Rest der Hausseite. Unser Planer sagte, dass ihm dann ein größerer Dachüberstand besser gefallen würde als wenn das OG dann an dieser Stelle in der Mitte nur die Regenrinne hat.
EG:

OG:

EG:
OG:
M
Molybdean21.04.26 07:46Ich glaube nicht das das Optische Problem an der stelle die Regenrinne oder der Dachüberstand ist. Der Dachüberstand könnte aber den Bereich neben der Haustür deutlich benutzbarer machen da es da deutlich Trockener wird.
Habt ihr schon 3D Bilder gesehen?
Habt ihr nachgefragt was der Preisliche unterschied zwischen Gerader Wand, Rausspringenden Badezimmer und am besten noch eines komplett rausspringenden OG währe?
Sicher das EG und OG vom selben Planungsstand sind? Die Wandlängen und der eingezeichnete Dachüberstand im EG scheinen mir nicht zu passen. Je nach anordnung im Bad wird auch die Leitungsführung Sportlich.
Habt ihr schon 3D Bilder gesehen?
Habt ihr nachgefragt was der Preisliche unterschied zwischen Gerader Wand, Rausspringenden Badezimmer und am besten noch eines komplett rausspringenden OG währe?
Sicher das EG und OG vom selben Planungsstand sind? Die Wandlängen und der eingezeichnete Dachüberstand im EG scheinen mir nicht zu passen. Je nach anordnung im Bad wird auch die Leitungsführung Sportlich.
H
hanghaus202321.04.26 10:34Mir ist das schon im Hauptbeitrag aufgefallen. Diese Frage hätte auch da hin gehört. Üblicherweise wird der Dachüberstand gleichmäßig ausgeführt. Dabei wird der Dachstuhl dafür angepasst. Wenn du die Frage im ersten Beitrag beantworten würdest, kann man auch über die Sinnhaftigkeit dieser Aktion nachdenken. Der zusätzliche Erker, das geänderte Dach sowie die beiden Säulen verursachen meiner Meinung nach Mehrkosten im fünfstelligen Bereich.
Ich habe die Informationen im Hauptbeitrag ergänzt.
Unser Bauunternehmer ist aus Erfahrung sehr flexibel und möchte uns vor dem Mauern des EG nochmal die genauen Pläne mit exakter Bemaßung in Großformat zur Verfügung stellen. Deswegen sind die Zeichnungen vermutlich noch nicht 100%.
Er sagte, wir können das so ändern wie es uns gefällt. Eine Änderung ist möglich und ändert nichts am Preis. Er hat diese Lösung ja von vorne rein so kalkuliert, wir waren uns nur des zusätzlichen Überstands nicht bewusst.
Im EG ist die Zeichnung vom Dach wohl ein bisschen falsch gelaufen. Es solllte nach oben raus so aussehen wie links und rechts auch. Nur im vorderen Bereich des OG hat man aktuell halt den größeren Dachüberstand, weil das OG in der Mitte vorgezogen ist.
Diese Ansicht haben wir bekommen. Das ist die Variante mit 1,25m Überstand links und rechts und 75cm vorgezogenem OG.

Unser Bauunternehmer ist aus Erfahrung sehr flexibel und möchte uns vor dem Mauern des EG nochmal die genauen Pläne mit exakter Bemaßung in Großformat zur Verfügung stellen. Deswegen sind die Zeichnungen vermutlich noch nicht 100%.
Er sagte, wir können das so ändern wie es uns gefällt. Eine Änderung ist möglich und ändert nichts am Preis. Er hat diese Lösung ja von vorne rein so kalkuliert, wir waren uns nur des zusätzlichen Überstands nicht bewusst.
Im EG ist die Zeichnung vom Dach wohl ein bisschen falsch gelaufen. Es solllte nach oben raus so aussehen wie links und rechts auch. Nur im vorderen Bereich des OG hat man aktuell halt den größeren Dachüberstand, weil das OG in der Mitte vorgezogen ist.
Diese Ansicht haben wir bekommen. Das ist die Variante mit 1,25m Überstand links und rechts und 75cm vorgezogenem OG.
Ähnliche Themen