Hallo zusammen,
nachdem wir hier von euch Input zum Kauf eines ungedämmten Hauses bekommen haben, wurde das Haus nun gekauft und der Umbau steht an .
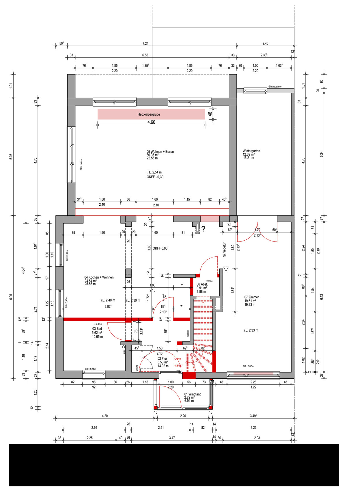
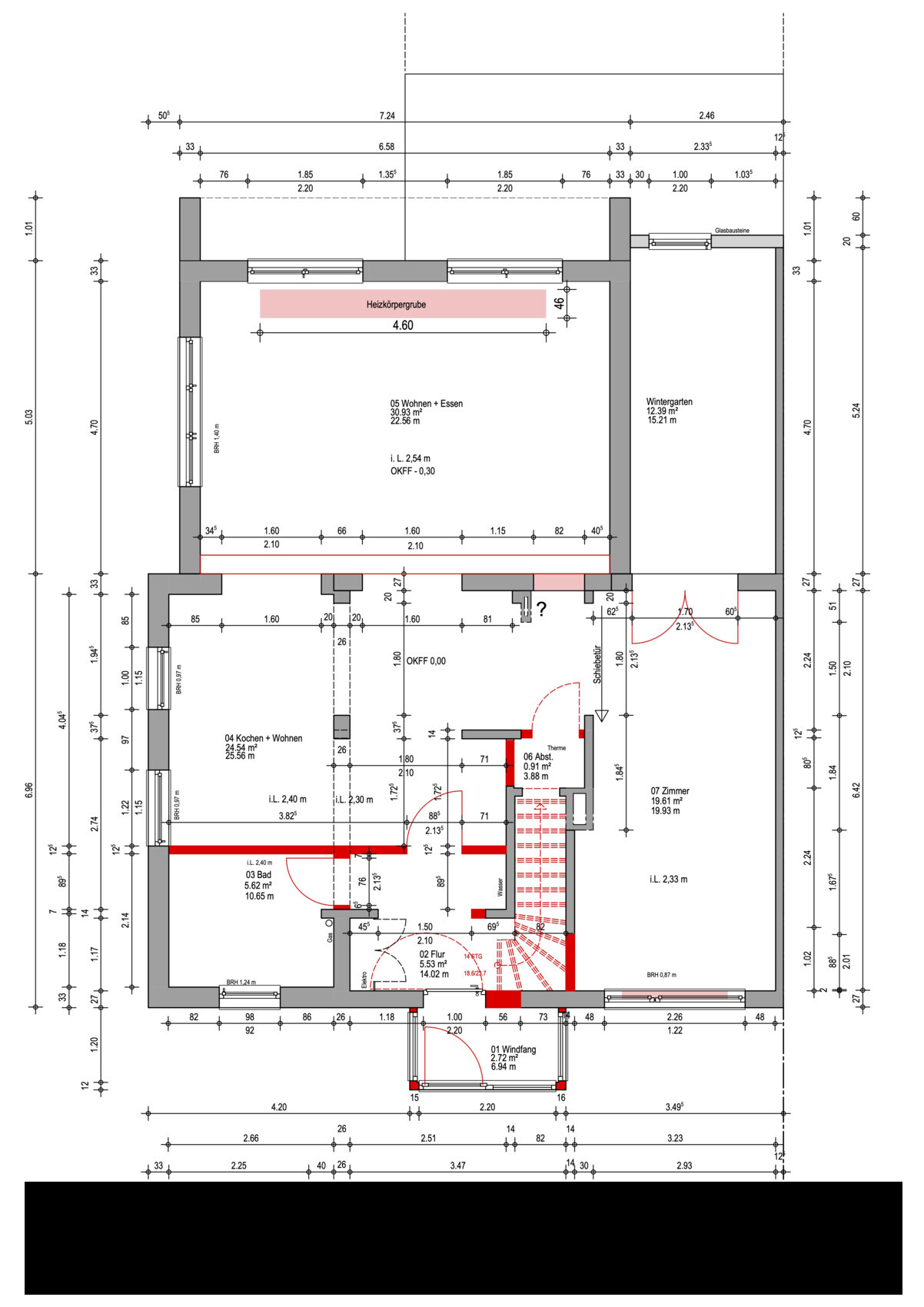
Es ist ein 1,5 Geschosser, Doppelhaushälfte mit Satteldach. Erbaut in dem 60ern, angebaut in den 80er.
Aktuell machen wir Küchenplanung, lassen Statiker Mauerdurchbrüche rechnen, Grübeln über Fußbodenheizung ja/nein und holen Angebote von Handwerkern ein.
Wir sind zwei Erwachsene, zwei Kinder (3 und 1) und zwei Katzen.
Beim Grundriss waren unsere Umbau-Vorstellungen schnell ziemlich klar, würden uns aber freuen, wenn ihr auch noch einmal draufguckt. Unten beschrieben unserer geplante Nutzung. Passt das oder seht ihr Stolpersteine?
(Kopfzerbrechen bereiten uns aktuell die Bäder. Dort haben wir noch keine finale Aufstellung Es sind statt "Mastenbad" und "Gästebad" eher 2 kleinere gleichberechtigte Bäder. Oben mit Badewanne, da man die gut unter eine Dachschräge schieben kann, möglichst ein kleiner doppelwaschtisch für die drei Damen und damit unten das Duschbad für den Papa.
Erschwerend kommt hinzu, dass noch Waschmaschine und ein Katzenklo Platz finden müssen.)
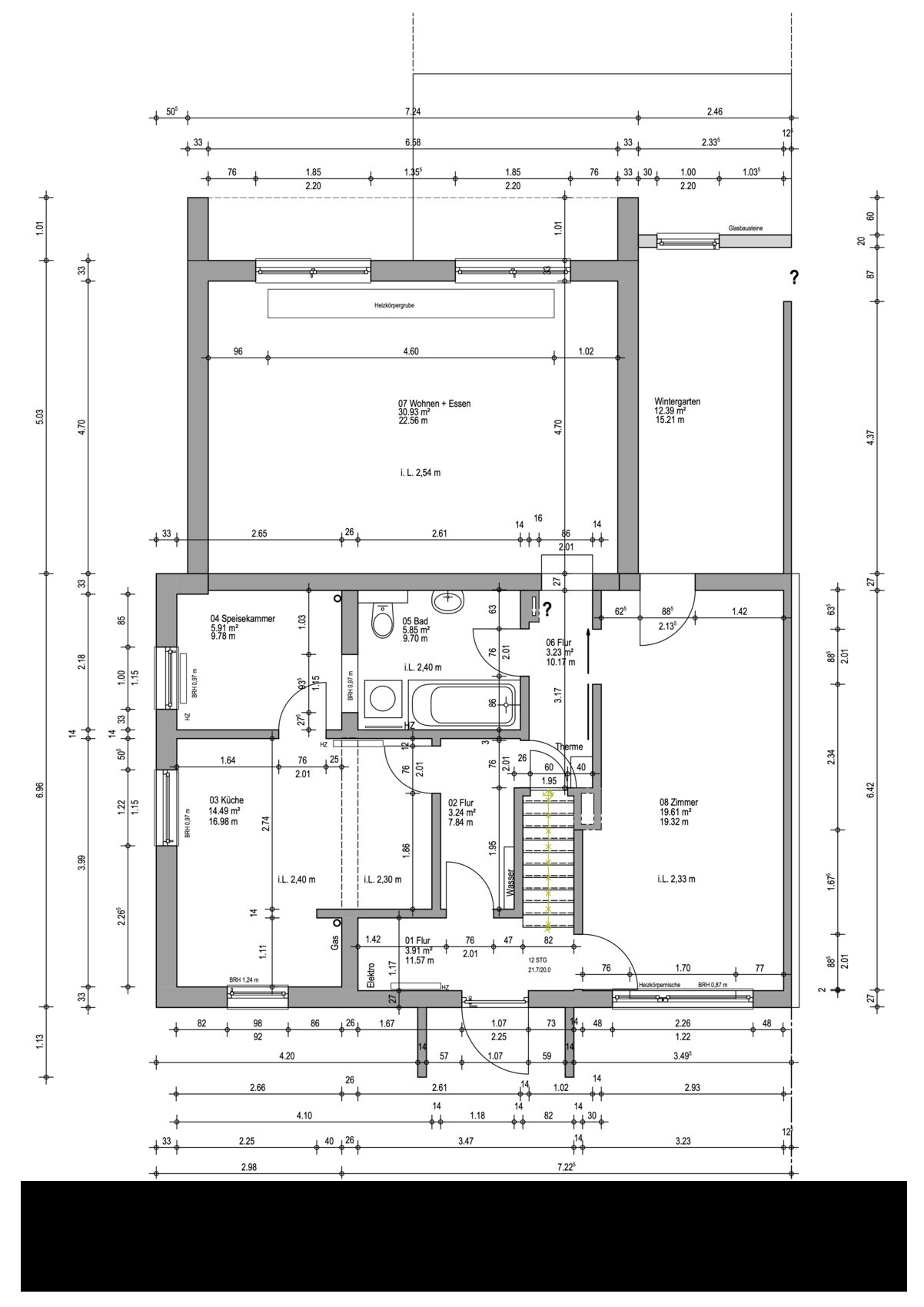
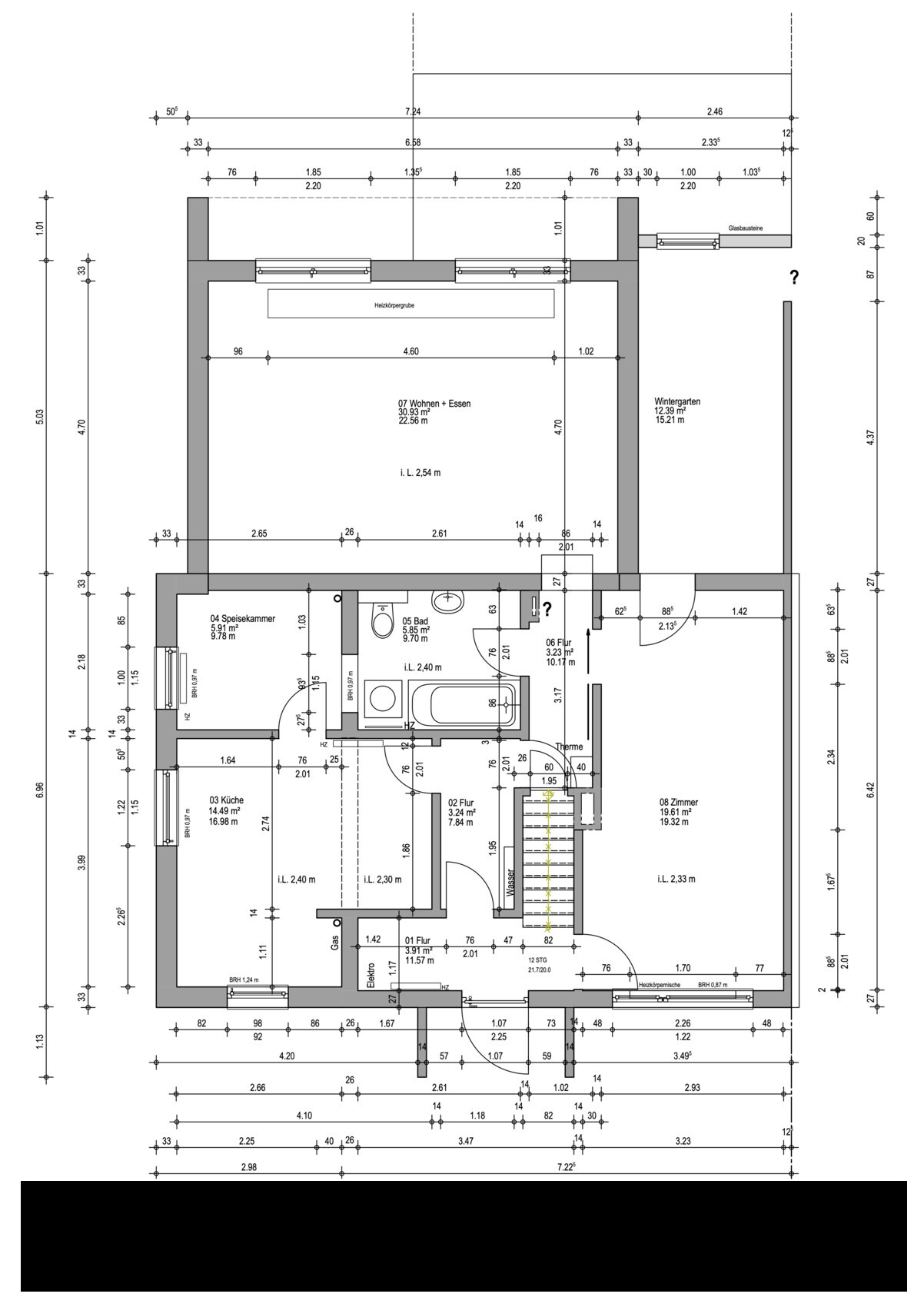
Im Bestand ist es im EG ein innenliegendes Bad, da der Teil planlinks des Bades und das Wohnzimmer Planoben angebaut wurde. Das Wohnzimmer liegt ca 30cm tiefer als der Rest. Unser kleines Splitlevel
Geplant ist nun im EG das Zentrum weitgehend zu öffnen. Von der Diele würde man an der Küche vorbei laufen. Zentral eine große Insel, wo die kleine Frühstücken, gebacken und vermutlich gebastelt wird. Plan rechts ein Büro/Gästezimmer. Vermutlich mit Schiebetür abtrennbar.
Wohnzimmer bleibt wie es ist und wird noch den Esstisch aufnehmen.
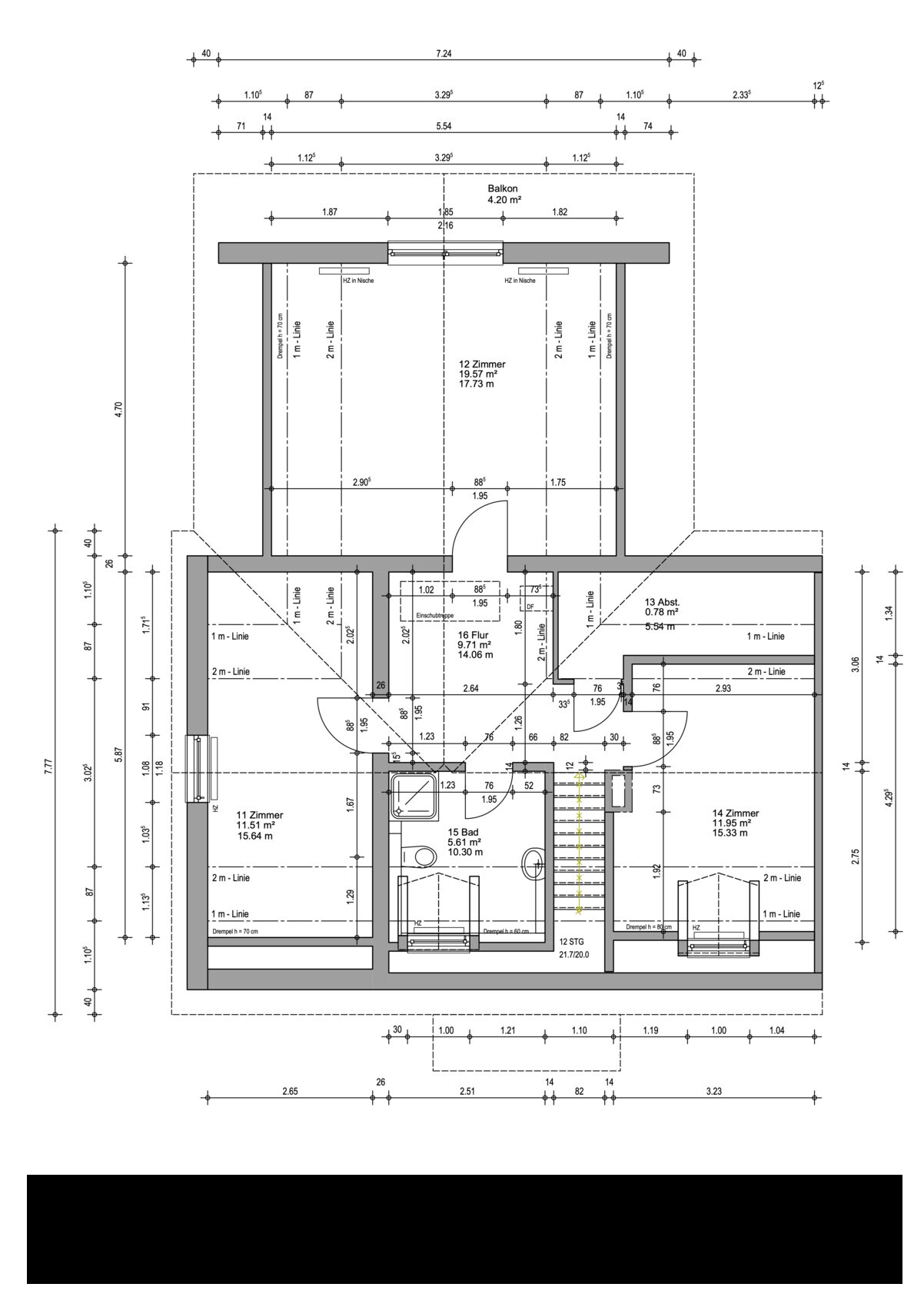
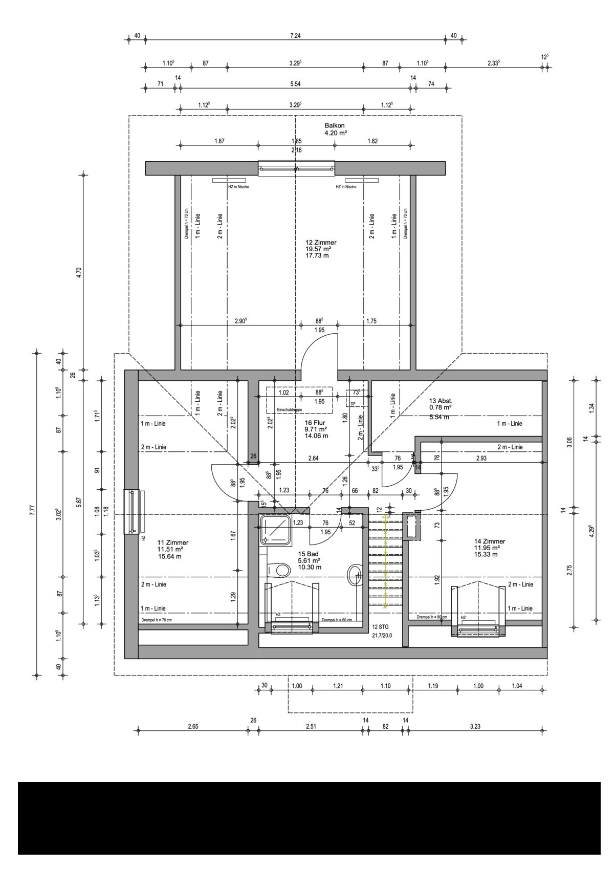
Im OG wird nur eine Wand entfernt, um ein Kinderzimmer zu vergrößern und das Bad halt neu (ja, hier haben jetzt die Eltern das größte Zimmer mit dem schönen Ausblick, was wir gar nicht brauchen. In ein anderes Zimmer passte ein Familienbett aber nicht wirklich rein. mal schauen. Es wird eh im EG gespielt werden.)
Die im Bestand sehr steile Treppe wird durch eine 1/4-gewendelte ersetzt und der noch offene Windfang soweit geschlossen, dass dort der Schublade-Platz entstehen kann. Damit hätten wir eine "normalere" Treppe und die Schmutzzone möglichst weit ausgelagert.
Was haltet ihr davon? Ideen? Anmerkungen der Fragen?






nachdem wir hier von euch Input zum Kauf eines ungedämmten Hauses bekommen haben, wurde das Haus nun gekauft und der Umbau steht an .
Es ist ein 1,5 Geschosser, Doppelhaushälfte mit Satteldach. Erbaut in dem 60ern, angebaut in den 80er.
Aktuell machen wir Küchenplanung, lassen Statiker Mauerdurchbrüche rechnen, Grübeln über Fußbodenheizung ja/nein und holen Angebote von Handwerkern ein.
Wir sind zwei Erwachsene, zwei Kinder (3 und 1) und zwei Katzen.
Beim Grundriss waren unsere Umbau-Vorstellungen schnell ziemlich klar, würden uns aber freuen, wenn ihr auch noch einmal draufguckt. Unten beschrieben unserer geplante Nutzung. Passt das oder seht ihr Stolpersteine?
(Kopfzerbrechen bereiten uns aktuell die Bäder. Dort haben wir noch keine finale Aufstellung Es sind statt "Mastenbad" und "Gästebad" eher 2 kleinere gleichberechtigte Bäder. Oben mit Badewanne, da man die gut unter eine Dachschräge schieben kann, möglichst ein kleiner doppelwaschtisch für die drei Damen und damit unten das Duschbad für den Papa.
Erschwerend kommt hinzu, dass noch Waschmaschine und ein Katzenklo Platz finden müssen.)
Im Bestand ist es im EG ein innenliegendes Bad, da der Teil planlinks des Bades und das Wohnzimmer Planoben angebaut wurde. Das Wohnzimmer liegt ca 30cm tiefer als der Rest. Unser kleines Splitlevel
Geplant ist nun im EG das Zentrum weitgehend zu öffnen. Von der Diele würde man an der Küche vorbei laufen. Zentral eine große Insel, wo die kleine Frühstücken, gebacken und vermutlich gebastelt wird. Plan rechts ein Büro/Gästezimmer. Vermutlich mit Schiebetür abtrennbar.
Wohnzimmer bleibt wie es ist und wird noch den Esstisch aufnehmen.
Im OG wird nur eine Wand entfernt, um ein Kinderzimmer zu vergrößern und das Bad halt neu (ja, hier haben jetzt die Eltern das größte Zimmer mit dem schönen Ausblick, was wir gar nicht brauchen. In ein anderes Zimmer passte ein Familienbett aber nicht wirklich rein. mal schauen. Es wird eh im EG gespielt werden.)
Die im Bestand sehr steile Treppe wird durch eine 1/4-gewendelte ersetzt und der noch offene Windfang soweit geschlossen, dass dort der Schublade-Platz entstehen kann. Damit hätten wir eine "normalere" Treppe und die Schmutzzone möglichst weit ausgelagert.
Was haltet ihr davon? Ideen? Anmerkungen der Fragen?
jansens schrieb:
Oben mit Badewanne, da man die gut unter eine Dachschräge schieben kann, möglichst ein kleiner Doppelwaschtisch für die drei Damen und damit unten das Duschbad für den Papa.Sind oben die Schlafzimmer? Es werden dann doch nicht immer alle baden, sondern nur gelegentlich. Im Alltag wird man doch duschen wollen und das geht in einer Badewanne unter der Schräge nicht.Ähnliche Themen