ᐅ Umbau: Ideenfindung und Machbarkeit
Erstellt am: 10.05.14 17:12
Hallo zusammen,
wir beabsichtigen, ein Haus zu kaufen. Jedoch ist die Kaufentscheidung davon abhängig, ob man den Grundriss (in wirtschaftlich vertretbarem Rahmen) ändern kann.
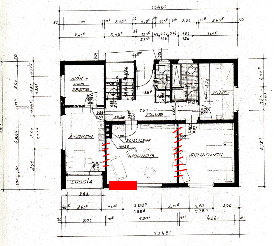
Es geht um das Erdgeschoss. Anbei eine Zeichnung mit den geplanten Änderungen.
1.
Die Wand zwischen "Wohnen" und "Schlafen" wollen wir wegmachen.
-> Würde das wohl gehen?
-> Ungefähre Kosten?
2.
Außerdem wollen wir auch die Wand zwischen "Wohnen" und "Kochen" ganz oder zumindest teilweise wegmachen. Wir wollen nämlich eine offene Küche und dort wo heute die Wand ist eine Kochinsel hinmachen. Allerdings dürften in der heutigen Wand Wasser- und Abflussrohre verlaufen, da im Obergeschoss auch Küchenanschlüsse sind. Im Obergeschoss brauchen wir aber diese Anschlüsse nicht zwingend. Es wäre aber schön (vielleicht für später mal).
-> Könnte man die Wand grundsätzlich wegreißen?
-> Könnte man dabei die Rohre ggf. verlegen, um die Anschlüsse im Obergeschoss funktionsfähig zu halten?
- > Kosten/Aufwand?
3.
Im Raum "Wohnen" wollen wir noch eine Terrassentür einbauen. Heute ist ein großes Fenster drin, darunter ein langer Heizkörper. Wir würden stattdessen eine Terrassentür und daneben ein kleineres Fenster einsetzen. Dementsprechend auch einen kürzeren Heizkörper.
-> Kann man sowas machen?
-> ungefähre Kosten?
Ansonsten: wenn jemand noch andere Ideen zur Grundrissänderung hat - immer her damit! 🙂
Gruß,
Volkmann

wir beabsichtigen, ein Haus zu kaufen. Jedoch ist die Kaufentscheidung davon abhängig, ob man den Grundriss (in wirtschaftlich vertretbarem Rahmen) ändern kann.
Es geht um das Erdgeschoss. Anbei eine Zeichnung mit den geplanten Änderungen.
1.
Die Wand zwischen "Wohnen" und "Schlafen" wollen wir wegmachen.
-> Würde das wohl gehen?
-> Ungefähre Kosten?
2.
Außerdem wollen wir auch die Wand zwischen "Wohnen" und "Kochen" ganz oder zumindest teilweise wegmachen. Wir wollen nämlich eine offene Küche und dort wo heute die Wand ist eine Kochinsel hinmachen. Allerdings dürften in der heutigen Wand Wasser- und Abflussrohre verlaufen, da im Obergeschoss auch Küchenanschlüsse sind. Im Obergeschoss brauchen wir aber diese Anschlüsse nicht zwingend. Es wäre aber schön (vielleicht für später mal).
-> Könnte man die Wand grundsätzlich wegreißen?
-> Könnte man dabei die Rohre ggf. verlegen, um die Anschlüsse im Obergeschoss funktionsfähig zu halten?
- > Kosten/Aufwand?
3.
Im Raum "Wohnen" wollen wir noch eine Terrassentür einbauen. Heute ist ein großes Fenster drin, darunter ein langer Heizkörper. Wir würden stattdessen eine Terrassentür und daneben ein kleineres Fenster einsetzen. Dementsprechend auch einen kürzeren Heizkörper.
-> Kann man sowas machen?
-> ungefähre Kosten?
Ansonsten: wenn jemand noch andere Ideen zur Grundrissänderung hat - immer her damit! 🙂
Gruß,
Volkmann
D
Doc.Schnaggls11.05.14 13:22Hallo Volkmann,
derartige Einschätzungen sind in einem Forum nahezu unmöglich.
Betreffend der Möglichkeit der Wandentfernung wirst Du um einen Statiker nicht herumkommen, wenn Du eine tragfähige Aussage haben möchtest.
Auch das Kostenthema kann aus der Ferne nur unzureichend beleuchtet werden. Kommt ganz drauf an, was für Wände das sind, ob Ihr eventuell selbst einreißen und entsorgen würdet...
Die Verlegung der Rohrleitungen hängt auch davon ab, ob die alternativen Wände stark genug sind um sie aufzunehmen, ob dann ein eventuell notwendiges Gefälle noch realisierbar ist etc...
Unproblematisch sehe ich auf jeden Fall den Tausch des großen Fensters gegen ein kleineres Fenster mit Terrassentür. Beim kleineren Heizkörper solltet Ihr dann nur auf einen größere Oberfläche achten um die gleiche Heizleistung zu erreichen.
Grüße,
Dirk
derartige Einschätzungen sind in einem Forum nahezu unmöglich.
Betreffend der Möglichkeit der Wandentfernung wirst Du um einen Statiker nicht herumkommen, wenn Du eine tragfähige Aussage haben möchtest.
Auch das Kostenthema kann aus der Ferne nur unzureichend beleuchtet werden. Kommt ganz drauf an, was für Wände das sind, ob Ihr eventuell selbst einreißen und entsorgen würdet...
Die Verlegung der Rohrleitungen hängt auch davon ab, ob die alternativen Wände stark genug sind um sie aufzunehmen, ob dann ein eventuell notwendiges Gefälle noch realisierbar ist etc...
Unproblematisch sehe ich auf jeden Fall den Tausch des großen Fensters gegen ein kleineres Fenster mit Terrassentür. Beim kleineren Heizkörper solltet Ihr dann nur auf einen größere Oberfläche achten um die gleiche Heizleistung zu erreichen.
Grüße,
Dirk
B
Bauexperte11.05.14 14:04Hallo Volkmann,
Bzgl. der Kosten solltest Du mit dem Sachverständigen sprechen, er kennt auch den Sanierungsaufwand - falls vorhanden - des Einfamilienhaus. Sein Wertgutachten weist nicht nur auf diese möglichen Positionen hin, sondern gibt auch Schätzungen hinsichtlich der einzusetzenden Kosten ab.
In jedem Fall solltest Du zusätzlich mit einem Statiker sprechen; es kann sein, daß die seinerzeitigen Ausführungspläne von Deinem vorgelegten Plan abweichen und die Trennwand zur Küche doch tragend ausgeführt wurde.
Grüße, Bauexperte
Volkmann schrieb:Eure Kaufentscheidung sollte zunächst einmal auf der Begutachtung des Einfamilienhaus durch einen Sachverständigen fußen; dann kannst Du Dir Gedanken zum Umbau machen.
wir beabsichtigen, ein Haus zu kaufen. Jedoch ist die Kaufentscheidung davon abhängig, ob man den Grundriss (in wirtschaftlich vertretbarem Rahmen) ändern kann.
Volkmann schrieb:Wenn der vorgelegte Plan vom Architekten kommt, würde ich - unter Vorbehalt der Prüfung - sagen, es handelt sich in beiden Fällen um keine tragende Wand. Diese Funktion übernimmt die quer durch das Einfamilienhaus verlaufende Wand. Allerdings irritiert es mich, daß kein Unterzug in der jetzigen Küche eingezeichnet ist. So oder so ist die Rücksprache mit dem seinerzeitigen Statiker oder dessen Nachfolger angesagt.
Es geht um das Erdgeschoss. Anbei eine Zeichnung mit den geplanten Änderungen.
1. Die Wand zwischen "Wohnen" und "Schlafen" wollen wir wegmachen.
-> Würde das wohl gehen?
2. Außerdem wollen wir auch die Wand zwischen "Wohnen" und "Kochen" ganz oder zumindest teilweise wegmachen.
-> Könnte man die Wand grundsätzlich wegreißen?
Volkmann schrieb:Gehen tut nahezu Alles; es ist stets eine Frage nach Kosten und Aufwand; heute werden die Entwässerungsleitungen auf der EG-Decke bzw. vor der Wand laufend hinter Verkastungen verbaut. Wände im erforderlichen Querschnitt schlitzen ist nicht mehr erlaubt.
Allerdings dürften in der heutigen Wand Wasser- und Abflussrohre verlaufen, da im Obergeschoss auch Küchenanschlüsse sind. Im Obergeschoss brauchen wir aber diese Anschlüsse nicht zwingend. Es wäre aber schön (vielleicht für später mal).
-> Könnte man dabei die Rohre ggf. verlegen, um die Anschlüsse im Obergeschoss funktionsfähig zu halten?
Volkmann schrieb:Wie Dirk schon angemerkt hat, ist die Größe des vorhandenen Heizkörpers nicht grundlos gewählt. Beim Fenster sehe ich keine großen Probleme, die angestrebte Änderung vorzunehmen. Der Fensterbauer wird wissen, wo er ggfs. stützen muß, bis die neuen Fenster eingesetzt sind.
3. Im Raum "Wohnen" wollen wir noch eine Terrassentür einbauen. Heute ist ein großes Fenster drin, darunter ein langer Heizkörper. Wir würden stattdessen eine Terrassentür und daneben ein kleineres Fenster einsetzen. Dementsprechend auch einen kürzeren Heizkörper.
-> Kann man sowas machen?
Bzgl. der Kosten solltest Du mit dem Sachverständigen sprechen, er kennt auch den Sanierungsaufwand - falls vorhanden - des Einfamilienhaus. Sein Wertgutachten weist nicht nur auf diese möglichen Positionen hin, sondern gibt auch Schätzungen hinsichtlich der einzusetzenden Kosten ab.
In jedem Fall solltest Du zusätzlich mit einem Statiker sprechen; es kann sein, daß die seinerzeitigen Ausführungspläne von Deinem vorgelegten Plan abweichen und die Trennwand zur Küche doch tragend ausgeführt wurde.
Grüße, Bauexperte
Erstmal danke für die Tipps.
Es ist ein Einfamilienhaus von 1967.
Das würden wir machen lassen, sowohl Durchbruch als auch Entsorgung.
Ja, bei einer solchen Investition ist ein Sachverständiger sehr sinnvoll. Wie schnell kriegt man erfahrungsgemäß einen Sachverständigen? Das letzte Haus, was uns gefiel, war innerhalb weniger Tage weg, so dass nicht mal Zeit blieb, einen Sachverständigen zu suchen.
Könnte man die Wand - falls sie tragend ist - evtl. dennoch durchbrechen, wenn man anschließend einen Träger einsetzt?
Gruß,
Volkmann
Es ist ein Einfamilienhaus von 1967.
Doc.Schnaggls schrieb:
Kommt ganz drauf an, was für Wände das sind, ob Ihr eventuell selbst einreißen und entsorgen würdet...
Das würden wir machen lassen, sowohl Durchbruch als auch Entsorgung.
Bauexperte schrieb:
Eure Kaufentscheidung sollte zunächst einmal auf der Begutachtung des Einfamilienhaus durch einen Sachverständigen fußen; dann kannst Du Dir Gedanken zum Umbau machen.
Ja, bei einer solchen Investition ist ein Sachverständiger sehr sinnvoll. Wie schnell kriegt man erfahrungsgemäß einen Sachverständigen? Das letzte Haus, was uns gefiel, war innerhalb weniger Tage weg, so dass nicht mal Zeit blieb, einen Sachverständigen zu suchen.
Bauexperte schrieb:
es kann sein, daß die seinerzeitigen Ausführungspläne von Deinem vorgelegten Plan abweichen und die Trennwand zur Küche doch tragend ausgeführt wurde.
Könnte man die Wand - falls sie tragend ist - evtl. dennoch durchbrechen, wenn man anschließend einen Träger einsetzt?
Gruß,
Volkmann
B
Bauexperte11.05.14 17:51Hallo Volkmann,
Es kommt darauf an, wo in NRW Du kaufen möchtest, dann kann ich Dir ggfs. helfen. Sonst schau auf der Seite des Verbandes unabhängiger Sachverständiger; da solltest Du regional fündig werden.
Grüße, Bauexperte
Volkmann schrieb:Wenn ein Verkäufer sich nicht darauf einlässt, vorbehaltlich der Begehung mit einem Sachverständigen, einen Vorvertrag einzugehen, dann solltest Du der vermeintlichen Chance nicht hinterher trauern!
Ja, bei einer solchen Investition ist ein Sachverständiger sehr sinnvoll. Wie schnell kriegt man erfahrungsgemäß einen Sachverständigen? Das letzte Haus, was uns gefiel, war innerhalb weniger Tage weg, so dass nicht mal Zeit blieb, einen Sachverständigen zu suchen.
Es kommt darauf an, wo in NRW Du kaufen möchtest, dann kann ich Dir ggfs. helfen. Sonst schau auf der Seite des Verbandes unabhängiger Sachverständiger; da solltest Du regional fündig werden.
Volkmann schrieb:Ja, das funktioniert in 90% der Fälle.
Könnte man die Wand - falls sie tragend ist - evtl. dennoch durchbrechen, wenn man anschließend einen Träger einsetzt?
Grüße, Bauexperte
Bauexperte schrieb:
Wenn ein Verkäufer sich nicht darauf einlässt, vorbehaltlich der Begehung mit einem Sachverständigen, einen Vorvertrag einzugehen, dann solltest Du der vermeintlichen Chance nicht hinterher trauern!Stimmt auch wieder. Zeitlicher Druck ist meist zu Gunsten des Verkäufers.
Es geht um eine Immobilie im Kreis Herford (NRW). Habe mir deshalb eben bei der IHK mögliche Sachverständige rausgesucht, davon werde ich morgen mal welche anrufen.
Ähnliche Themen