Hallo zusammen,
nach langer Zeit als stiller Leser, möchte ich das Wissen und die Erfahrungen der Forum-User nutzen um uns bei den Planungen zu helfen. Da es sich um einen Altbestand handelt und der Grundriss weitestgehend vorgegeben ist, werde ich den Fragenkatalog erstmal nicht beantworten, kann Ihn aber, wenn gewünscht, noch nachtragen.
Wer sind wir?
Eine junge Familie aus dem Rhein-Erft-Kreis (Er 35J, Sie 36J +1 Kind 0,4J)
Worum geht es?
Wir suchen schon seit über 2,5 Jahren nach einer Immobilie und haben uns Anfangs auch nur auf einen Neubau fokussiert. Da wir lange Zeit kein passendes Grundstück gefunden haben, haben wir irgendwann auch bei Bestandsimmobilien geschaut. Auch dort ist die Lage leider wie sie momentan ist und es war schwierig etwas passendes zu finden. Im Frühjahr diesen Jahres haben wir unser Haus dann doch gefunden und zugeschlagen und sind jetzt seit einigen Wochen in den Umbauarbeiten. Da meine Frau selbstständig ist brauchen wir etwas mehr Platz, da Sie 1 Arbeitsraum (Keller) und 1 Büro braucht.
Eckdaten des Einfamilienhaus
- 1,5-geschossiges Einfamilienhaus aus dem Jahr 1972 im Rhein-Erft-Kreis in einer Stadt mit <50.000 EW
- ~170 m² Wohnfläche + Keller, knapp 1000m² Grundstücksfläche (Position des Hauses im Anhang)
- Ruhige, gewachsene Wohnlage in einer Seitenstraße
- Wurde nie wirklich renoviert, außer der Öl-Heizkessel, jetzt BJ2005
- 2 Kellerräume haben durch eine Böschung Normalgroße Fenster.
Was ist geplant?
Aufgrund des Alters des Hauses muss einiges erneuert werden (Ist fast eine Kernsanierung :rolleyes :
- Fenster (Sind noch alte Aluminiumfenster, BJ1972?)
- Bodenaufbau (Bisher 7cm Aufbauhöhe inkl. Belag und Dämmung), damit auch Türsturzerhöhung und Treppenanpassung
- komplette Haustechnik (Elektro- und Sanitärleitungen), die Ölheizung soll erst mal drin bleiben, Fußbodenheizung soll aber gleich eingebaut werden
- 2 Dachgauben um den Wohnraum im Dachgeschoss etwas zu erweitern (Die sind auch schon gebaut )
- Heizungsnischen zumauern
- Kontrollierte-Wohnraumlüftung einbauen
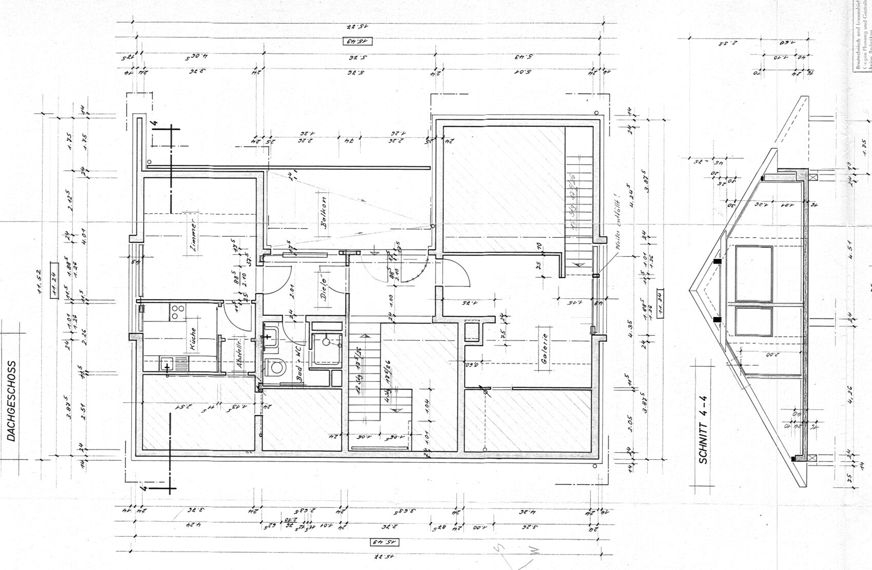
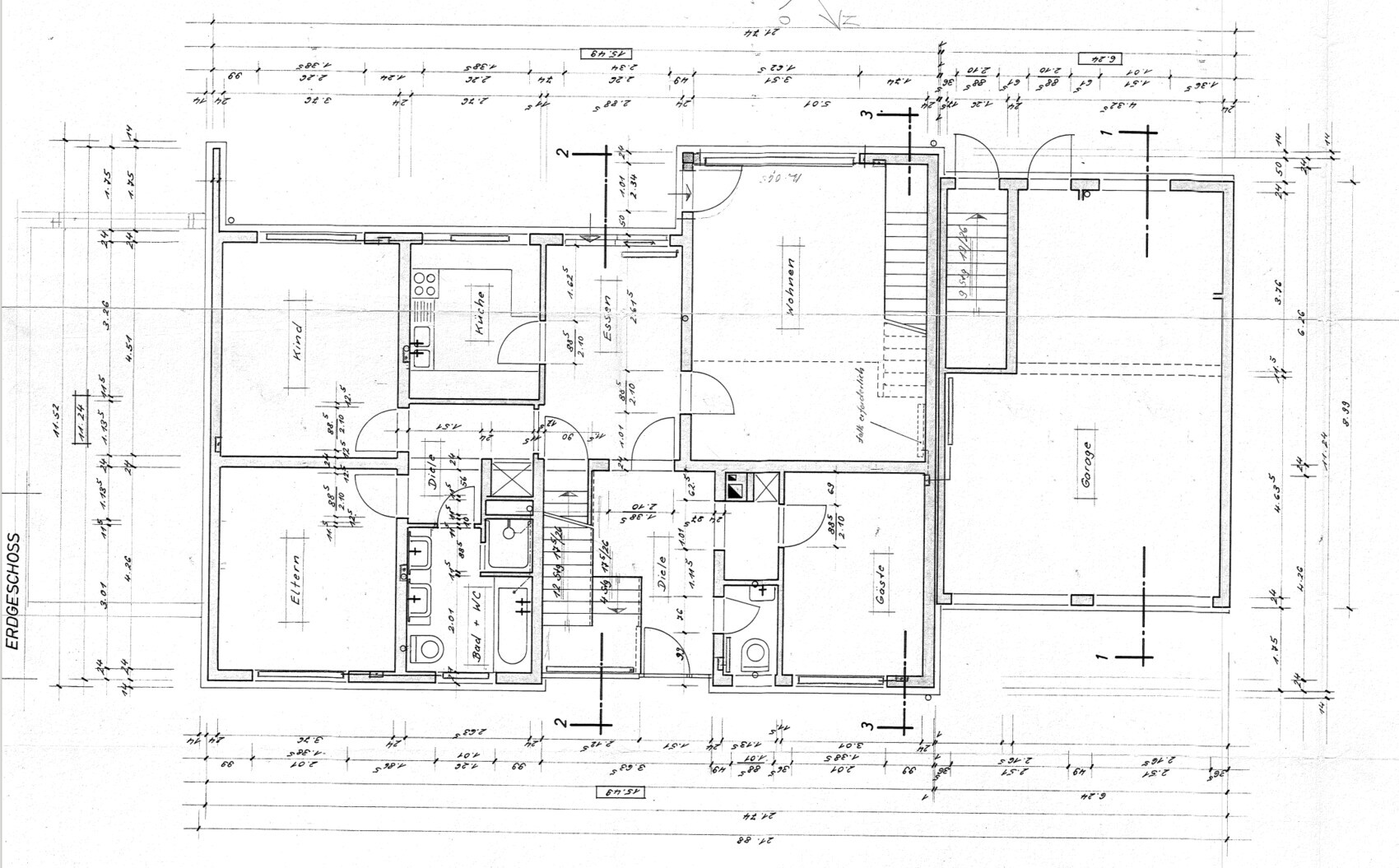
Ich habe die alten Pläne der Grundrisse einmal etwas bereinigt und die geplanten Räume eingetragen. Die bisherigen Umbauten habe ich auch schon integriert. Zwei nicht tragende Wände wurden entfernt, und die beiden Gauben sind schon eingebaut (Einmal Badezimmer-Vergrößerung und Eine über den alten Balkon, den brauchen wir nicht mehr).
Was gefällt uns an dem Grundriss:
- Das offene Treppenhaus und Wohnzimmer (Galerie)
- Durch die großzügigen Hausabmessungen hat man genug Platz für spätere Umplanungen/Umnutzung von Räumen
- Ein zusätzliches Zimmer kann in der Galerie im DG mit einer Trockenbauwand noch erstellt werden
Was gefällt uns nicht an dem Grundriss:
- Das DG ist durch die beiden offenen Räume nicht so großzügig wie der Grundriss vermuten lässt. Dadurch sind Bad und Kinderzimmer nicht so groß
- Die Küche hat so keinen direkten Gartenzugang (Dort ist eine Böschung für die Kellerräume), und ist weit entfernt vom Eingang
- Ankleide ist nur vom Schlafzimmer begehbar
Habt ihr soweit Fragen/Anmerkungen zu dem geplanten Grundriss? Einen möblierten Plan muss ich noch erstellen, evtl. in SH3D, da bin ich aber noch nicht fertig.






nach langer Zeit als stiller Leser, möchte ich das Wissen und die Erfahrungen der Forum-User nutzen um uns bei den Planungen zu helfen. Da es sich um einen Altbestand handelt und der Grundriss weitestgehend vorgegeben ist, werde ich den Fragenkatalog erstmal nicht beantworten, kann Ihn aber, wenn gewünscht, noch nachtragen.
Wer sind wir?
Eine junge Familie aus dem Rhein-Erft-Kreis (Er 35J, Sie 36J +1 Kind 0,4J)
Worum geht es?
Wir suchen schon seit über 2,5 Jahren nach einer Immobilie und haben uns Anfangs auch nur auf einen Neubau fokussiert. Da wir lange Zeit kein passendes Grundstück gefunden haben, haben wir irgendwann auch bei Bestandsimmobilien geschaut. Auch dort ist die Lage leider wie sie momentan ist und es war schwierig etwas passendes zu finden. Im Frühjahr diesen Jahres haben wir unser Haus dann doch gefunden und zugeschlagen und sind jetzt seit einigen Wochen in den Umbauarbeiten. Da meine Frau selbstständig ist brauchen wir etwas mehr Platz, da Sie 1 Arbeitsraum (Keller) und 1 Büro braucht.
Eckdaten des Einfamilienhaus
- 1,5-geschossiges Einfamilienhaus aus dem Jahr 1972 im Rhein-Erft-Kreis in einer Stadt mit <50.000 EW
- ~170 m² Wohnfläche + Keller, knapp 1000m² Grundstücksfläche (Position des Hauses im Anhang)
- Ruhige, gewachsene Wohnlage in einer Seitenstraße
- Wurde nie wirklich renoviert, außer der Öl-Heizkessel, jetzt BJ2005
- 2 Kellerräume haben durch eine Böschung Normalgroße Fenster.
Was ist geplant?
Aufgrund des Alters des Hauses muss einiges erneuert werden (Ist fast eine Kernsanierung :rolleyes :
- Fenster (Sind noch alte Aluminiumfenster, BJ1972?)
- Bodenaufbau (Bisher 7cm Aufbauhöhe inkl. Belag und Dämmung), damit auch Türsturzerhöhung und Treppenanpassung
- komplette Haustechnik (Elektro- und Sanitärleitungen), die Ölheizung soll erst mal drin bleiben, Fußbodenheizung soll aber gleich eingebaut werden
- 2 Dachgauben um den Wohnraum im Dachgeschoss etwas zu erweitern (Die sind auch schon gebaut )
- Heizungsnischen zumauern
- Kontrollierte-Wohnraumlüftung einbauen
Ich habe die alten Pläne der Grundrisse einmal etwas bereinigt und die geplanten Räume eingetragen. Die bisherigen Umbauten habe ich auch schon integriert. Zwei nicht tragende Wände wurden entfernt, und die beiden Gauben sind schon eingebaut (Einmal Badezimmer-Vergrößerung und Eine über den alten Balkon, den brauchen wir nicht mehr).
Was gefällt uns an dem Grundriss:
- Das offene Treppenhaus und Wohnzimmer (Galerie)
- Durch die großzügigen Hausabmessungen hat man genug Platz für spätere Umplanungen/Umnutzung von Räumen
- Ein zusätzliches Zimmer kann in der Galerie im DG mit einer Trockenbauwand noch erstellt werden
Was gefällt uns nicht an dem Grundriss:
- Das DG ist durch die beiden offenen Räume nicht so großzügig wie der Grundriss vermuten lässt. Dadurch sind Bad und Kinderzimmer nicht so groß
- Die Küche hat so keinen direkten Gartenzugang (Dort ist eine Böschung für die Kellerräume), und ist weit entfernt vom Eingang
- Ankleide ist nur vom Schlafzimmer begehbar
Habt ihr soweit Fragen/Anmerkungen zu dem geplanten Grundriss? Einen möblierten Plan muss ich noch erstellen, evtl. in SH3D, da bin ich aber noch nicht fertig.
Ergänze mal Fotos und die ungeleerten Grundrisse.
https://www.instagram.com/11antgmxde/
https://www.linkedin.com/company/bauen-jetzt/
https://www.instagram.com/11antgmxde/
https://www.linkedin.com/company/bauen-jetzt/
Gar keine Kommentare / Hinweise?
Ich hatte je wenigstens etwas zu dem tollen Gerüst erwartet....
Das Problem ist vielleicht das ein bemaßter Grundriss fehlt inkl. der geplanten möbel.
Ich habe das in SH3D versucht, aber das Programm ist doch hier und da limitiert (oder ich kann es nicht so gut bedienen...)
Ich stelle es trotzdem mal ein, vielleicht kommt dann mehr Kommentare.



Ich hatte je wenigstens etwas zu dem tollen Gerüst erwartet....
Das Problem ist vielleicht das ein bemaßter Grundriss fehlt inkl. der geplanten möbel.
Ich habe das in SH3D versucht, aber das Programm ist doch hier und da limitiert (oder ich kann es nicht so gut bedienen...)
Ich stelle es trotzdem mal ein, vielleicht kommt dann mehr Kommentare.
Ähnliche Themen