R
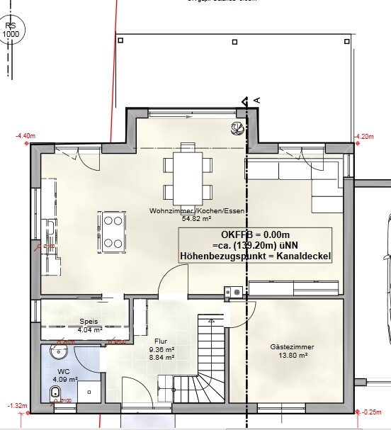
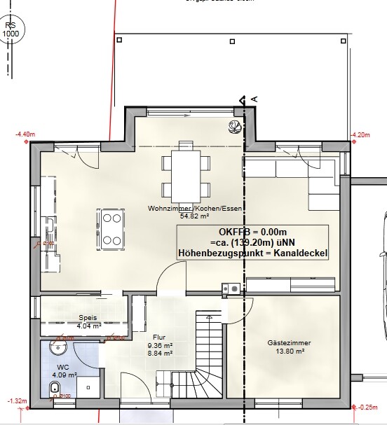
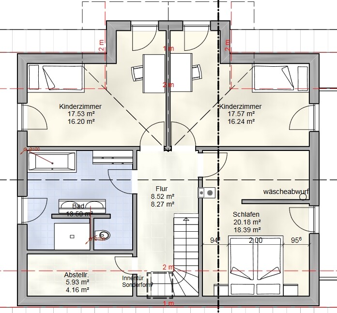
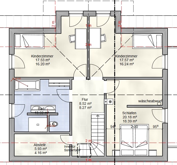
Reini123422.02.19 08:22Wir sind zur Zeit am Grübeln, wie wir am sinnvollsten unsere Jalousien und Rollladen steuern. Im Anhang mal ein Grundriss und folgende Erklärungen:
-Keller ist vorhanden, wird aber manuell mit Gurt bedient
-EG ist im großen Wohnbereich mit elektrischen Jalousien ausgestattet (5x), der Rest im EG und DG mit elektrischen Rollläden
-Haus hat Süd-Hanglage d.h. falls Sonne da ist, haben wir Sie den ganzen Tag bis Sie unter geht
-Nachbar gegenüber der Haustüre und planlinks. Planrechts und unterhalb des Balkons keine da nicht bebaubar.
-die Fenster Gast und Gäste-WC im EG zeigen zu einer Straße hin, die allerdings eine Sackgasse ist. Hier kommt nur der Nachbar gegenüber, und gelegentlich Spaziergänger vorbei.
-bei den Kinderzimmern steht (noch) eins frei, das andere wird von einem 3-jährigen Kind bewohnt.
Wir haben uns für eine SPS-Steuerung entschieden mit den Funktionen Dämmerung, Zeit, Wind, Sonne in Verbindung mit Innentemperaturfühler. Jeder Motor kann zusätzlich manuell über einen Taster bedient werden. Wir wissen allerdings nicht so Recht wiviele Motoren wir in die Steuerung mit rein nehmen sollen. Anfangs war eigentlich nur eine Steuerung für die Jalousien gedacht.
Unsere Gedanken:
-macht es Sinn das komplette EG dran zu hängen? Für die Fenster außerhalb des Wohnbereichs wäre dann nur die Dämmerungsfunktion interessant. Andererseits brauchen wir die überhaupt da fast kein Publikumsverkehr?
-macht es Sinn das komplette Haus dran zu hängen mit ähnlicher Begründung wie bei Punkt 1?
-macht es Sinn nur die Kinderzimmer aufgrund der zu erwartenden Sonneneinstrahlung dran zu hängen? Hier hab ich allerdings wieder Rollläden statt Jalousien die fast komplett verdunkeln würden, zusätzlich wahrscheinlich verschiedene „zu Bett geh Zeiten“.
Hier noch die preisliche Komponente:
6x Motor 400 EUR
8x 475 EUR
10x 600 EUR
12x 790 EUR
Ich weiß das es hier keine echte Lösung gibt, mich würde trotzdem eure Meinung interessieren.


-Keller ist vorhanden, wird aber manuell mit Gurt bedient
-EG ist im großen Wohnbereich mit elektrischen Jalousien ausgestattet (5x), der Rest im EG und DG mit elektrischen Rollläden
-Haus hat Süd-Hanglage d.h. falls Sonne da ist, haben wir Sie den ganzen Tag bis Sie unter geht
-Nachbar gegenüber der Haustüre und planlinks. Planrechts und unterhalb des Balkons keine da nicht bebaubar.
-die Fenster Gast und Gäste-WC im EG zeigen zu einer Straße hin, die allerdings eine Sackgasse ist. Hier kommt nur der Nachbar gegenüber, und gelegentlich Spaziergänger vorbei.
-bei den Kinderzimmern steht (noch) eins frei, das andere wird von einem 3-jährigen Kind bewohnt.
Wir haben uns für eine SPS-Steuerung entschieden mit den Funktionen Dämmerung, Zeit, Wind, Sonne in Verbindung mit Innentemperaturfühler. Jeder Motor kann zusätzlich manuell über einen Taster bedient werden. Wir wissen allerdings nicht so Recht wiviele Motoren wir in die Steuerung mit rein nehmen sollen. Anfangs war eigentlich nur eine Steuerung für die Jalousien gedacht.
Unsere Gedanken:
-macht es Sinn das komplette EG dran zu hängen? Für die Fenster außerhalb des Wohnbereichs wäre dann nur die Dämmerungsfunktion interessant. Andererseits brauchen wir die überhaupt da fast kein Publikumsverkehr?
-macht es Sinn das komplette Haus dran zu hängen mit ähnlicher Begründung wie bei Punkt 1?
-macht es Sinn nur die Kinderzimmer aufgrund der zu erwartenden Sonneneinstrahlung dran zu hängen? Hier hab ich allerdings wieder Rollläden statt Jalousien die fast komplett verdunkeln würden, zusätzlich wahrscheinlich verschiedene „zu Bett geh Zeiten“.
Hier noch die preisliche Komponente:
6x Motor 400 EUR
8x 475 EUR
10x 600 EUR
12x 790 EUR
Ich weiß das es hier keine echte Lösung gibt, mich würde trotzdem eure Meinung interessieren.
S
Steffen8022.02.19 08:30warum SPS und nicht KNX? dürfte das nicht sogar günstiger sein?
R
Reini123422.02.19 10:21eine KNX Steuerung mit 12 Rollläden für 790 EUR plus 100 EUR Wetterstation im Vergleich? Das käme mir etwas billig vor (ohne es aber recherchiert zu haben)
Naja von den Komponenten ist es vergleichbar.
500 für die Aktorkanäle
200 für die Wetterstation
70 für das Busnetzteil
130 Euro KNX/IP Schnittstelle
Es fehlen dann aber noch die Schalter/Taster sprich mit KNX wäre das Ganze nur über Telefon/Tablet steuerbar, dann aber höchstwahrscheinlich mit einem größeren Funktionsumfang und Flexibilität als mit einer SPS
500 für die Aktorkanäle
200 für die Wetterstation
70 für das Busnetzteil
130 Euro KNX/IP Schnittstelle
Es fehlen dann aber noch die Schalter/Taster sprich mit KNX wäre das Ganze nur über Telefon/Tablet steuerbar, dann aber höchstwahrscheinlich mit einem größeren Funktionsumfang und Flexibilität als mit einer SPS
R
Reini123422.02.19 13:06Und es fehlt der Lohn für die Programmierung. KNX ist bei mir raus, es wird definitiv eine SPS Steuerung.
Alle Motoren lassen sich ja auch noch über die örtlichen Taster steuern.
Alle Motoren lassen sich ja auch noch über die örtlichen Taster steuern.
Ähnliche Themen