ᐅ Smarthome KNX Automatisierung anhand des Grundriss möglich?
Erstellt am: 27.08.16 00:02
Ok, jetzt mal praktisch das Thema durchgedacht. Ich beschäftige mich viel mit KNX, aber mir fällt irgendwie kein Szenario ein, wie mir KNX weiterhelfen sollte. Hier unsere Grundrisse noch mal:

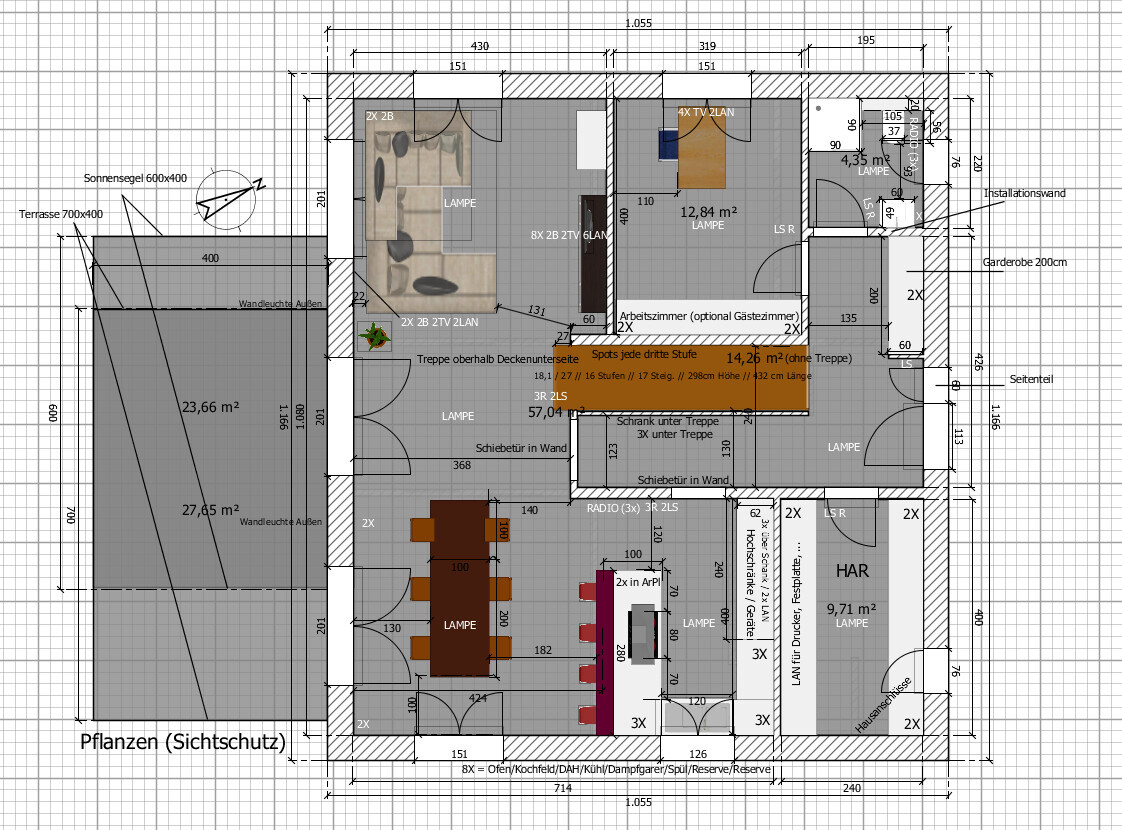
Nach aktuellem Planungsstand sollen überall Rollläden hin (aktueller Planungsstand!). Es wird ein großes Sonnensegel geben, welches das mittige Fenster und das Esszimmerfenster vor Sonne schützen. Die Fenster Esszimmer nach Ost und Küche werden ab kurz nach Mittag im Schatten liegen.
Es ist eine Wärmepumpe mit Kühlfunktion und ein Sole-Tauscher für die Kontrollierte-Wohnraumlüftung geplant. Die einfachen Logikfunktionen wie etwa Bypass der Kontrollierte-Wohnraumlüftung oder Regelung der Fußbodenheizung anhand Außentemperatur und Rücklauftemperatur können die jeweiligen Geräte selbstverständlich selbst. Wenn im Winter die Sonne auf den Boden knallt, dann kommt der Rücklauf mit einer höheren Temperatur und die Wärmepumpe merkt, dass sie weniger heizen muss, da externer Wärmeeintrag vorhanden ist. Die Kontrollierte-Wohnraumlüftung erkennt, wann Bypass aktiviert werden muss.
Eine Einzelraumregelung ist unsinnig, sagen zumindest alle im pinken Forum. Jedenfalls in unseren KFW55-Bau wahrscheinlich sehr unnötig. Auch eine Nachtabsenkung brauche nicht.
Stromersparnisfunktionen interessieren mich nicht, weil die Investitionskosten in jedem Fall höher als die Stromersparnis ist. Brandmelder wird es konventionelle geben und auch hier bitte keine Hysterie-Diskussion. Es wird weder Gas noch Öl noch einen Kamin im Haus geben. Und wenn das Haus in unserer Abwesenheit abfackelt, dann ist es versichert. Photovoltaikanlage wird es keine geben, ebenso interessieren mich keine anderen Extreme bezüglich Stormsparen. Die Waschmaschine hat einen eigenen Timer. Im Regelfall befüllen wir die aber einfach nachmittags und hängen abends die Wäsche auf. Die muss nicht 3h nachts laufen, weil da gerade NT-Tarif ist und wir 0,3 Cent je Waschgang sparen.
Wohnen/Essen/Küche wird 6 Rollläden und 4 dimmbare Leuchten bekommen. Je 3 Rollläden und 2 Leuchten werden neben der Tür Wohnzimmer und neben der Tür Küche geschaltet. Die Schalter liegen nebeneinander nach dem Motto ganz links ist im Raum eben auch auf der Seite usw.
Also Wohnbereich West, Wohnbereich Süd und Mitte sind neben Wohnzimmertür; Essbereich Süd, Essbereich Ost und Küche Ost sind neben Küchentür. Für Verschattung relevant sind nur 2 Rollläden neben Wohnzimmer (Wohnzimmer Süd, da nicht unter Sonnensegel und Wohnzimmer West).
Wir haben im Moment, im Altbau, Innenjalousien und auch eine große Westfront. Bis auf die 5 wärmsten Tage des Jahres beschatten wir nicht komplett. Man möchte halt nur dort, wo man gerade sitzt, arbeitet, spielt, etc. nicht der direkten Sonne ausgesetzt werden.Je nachdem, wird also dieses Roll hoch und dieses runter gemacht usw...
Eine Konstantlichtregelung ist nicht gewünscht, auch jetzt schalten wir Licht nach Gefühl. Wenn wir bald ins Bett wollen, eher Licht aus oder weiter entferntes Licht an (also quasi eine Art indirekte Beleuchtung). Ich habe andere Lichtquellenpräferenzen wie meine Frau und wenn wir zusammen im Zimmer sind, gibt es natürlich wieder eine andere Kompromisslösung.
Ich habe einerseits Gleitzeit, andererseits kann ich auch mal eine Nacht nur 4h schlafen und am nächsten Tag dann vielleicht wieder 7h. Eine Regelung wie ab xx-Uhr abdimmen oder so funktioniert also nicht.
Es gibt auch keine definierte TV-Beleuchtung. Das kommt auf das Programm an. Für mal kurz Nachrichten schauen kann alle Beleuchtung so bleiben, wie sie ist. Für ein mittelmäßig interessantes Fußballspiel wird nur die direkte Beleuchtung ausgeschaltet, aber indirekt kann bleiben. Für eine Folge 'Game of Thrones' oder einen guten Film dann bitte alles aus, gerade weil es dort ja oft dunkle Szenen gibt. Teilweise haben wir aber z.B. das Flurlicht brennen als indirekte Beleuchtung für den Wohnbereich (was jetzt auch eine alleinige Flurbeleuchtung mittels Bewegungsmelder unnütz macht).
Flurbeleuchtung würden jeweils so machen, dass neben jeder Tür ein Schalter (Kreuzschaltung), welcher die Beleuchtung des jeweiligen Stockwerks an- und ausmachen kann. Also ja, neben jeder Tür exakt ein Schalter. Die zwei Lampen im OG gehen dann natürlich simultan an und aus. Es ist ein Stockwerk-Schalter. Am Treppenaufgang-/Abgang sind natürlich je exakt zwei Schalter. Der obere für oben, der untere für unten. Also kann ich von oben kommend beide Schalter einmal betätigen und habe oben aus- und unten angeschaltet. Oder ich macht das Licht oben erst unten aus am Ende der Treppe (oben aus = oberer Schalter; m.E. total logisch).
Treppenbeleuchtung könnte man so theoretisch auch schalten, aber gut, da geht es auch bisschen um Show-Effekt, oder? - Könnte man also auch mit Zeitschaltuhr oder mit Bewegungsmelder machen. Und wenn Haustiere die Treppenbeleuchtung auslösen, ja dann ist das so. Im Moment haben wir auch keine Haustiere.
So, Rollladensteuerung Wohnen/Essen/Küche habe ich ja schon geschrieben. Funktionsweise wäre übrigens kurz tasten für komplett hoch/runter und halten für exakte Einstellung. Aber man soll ja nicht halb fahren, weil das Temperaturunterschiede auf der Scheibe verursacht, welche diese kaputt machen können. Also etwa neben Wohnzimmertür dreimal kurz tasten und die drei Rollläden gehen hoch (oder runter). Auch alle anderen Rollläden (nach gleichem Prinzip) sind neben der Tür jeweils angeordnet. Nur für Schlafbereiche könnte ich mir einen Taster/Schalter mit Timer-Funktion vorstellen und dann würde ich nichts anderes als eine Aufgehzeit am nächsten Morgen einprogrammieren. Ich brauche keine Zugehzeit. Ein kurzer Taster und der Rollläden geht zu. Aber wenn ich meinen Wecker auf 6:53 stelle, dann stelle ich Rollladen eben auch auf 6:53 und werde neben dem Wecker von Tageslicht geweckt (in Zukunft haben wir wieder gemeinsame Aufstehzeiten und meine Frau keinen Schichtdienst mehr). ABER: Das ist ja alles konventionell realisierbar. Wunderbar einfach sogar. Also: Arbeitszimmer (Gäste), Schlafzimmer und 2 Kinderzimmer bekommen den Taster (kurz = komplett hoch/runter), welcher es erlaubt, eine Auf-Geh-Zeit festzulegen.
Nur kurz zur Logik der Verschattung tagsüber: Rollläden werden morgens beim Verlassen des Zimmers/Wohnbereichs runter gemacht und bleiben unten bis nachmittags der erste nach Hause kommt. Damit schon mal die ersten 10-12 Sonnenstunden des Tages überbrückt.
Licht wird es in vielen Zimmern dimmbar geben, aber ich möchte keine teuren Farborgien veranstalten. Die Leuchtmittel sollten wenig blaues Licht haben und gut.
so, ich denke mal ich habe die wichtigsten Bereiche beschrieben. Rollläden, Licht, Heizung und ein paar andere Sachen...
Wie kann uns eine Automatisierung wie KNX jetzt helfen? Welche Komfort-Gewinne sind möglich? Was sollten wir automatisieren und warum?
Nach aktuellem Planungsstand sollen überall Rollläden hin (aktueller Planungsstand!). Es wird ein großes Sonnensegel geben, welches das mittige Fenster und das Esszimmerfenster vor Sonne schützen. Die Fenster Esszimmer nach Ost und Küche werden ab kurz nach Mittag im Schatten liegen.
Es ist eine Wärmepumpe mit Kühlfunktion und ein Sole-Tauscher für die Kontrollierte-Wohnraumlüftung geplant. Die einfachen Logikfunktionen wie etwa Bypass der Kontrollierte-Wohnraumlüftung oder Regelung der Fußbodenheizung anhand Außentemperatur und Rücklauftemperatur können die jeweiligen Geräte selbstverständlich selbst. Wenn im Winter die Sonne auf den Boden knallt, dann kommt der Rücklauf mit einer höheren Temperatur und die Wärmepumpe merkt, dass sie weniger heizen muss, da externer Wärmeeintrag vorhanden ist. Die Kontrollierte-Wohnraumlüftung erkennt, wann Bypass aktiviert werden muss.
Eine Einzelraumregelung ist unsinnig, sagen zumindest alle im pinken Forum. Jedenfalls in unseren KFW55-Bau wahrscheinlich sehr unnötig. Auch eine Nachtabsenkung brauche nicht.
Stromersparnisfunktionen interessieren mich nicht, weil die Investitionskosten in jedem Fall höher als die Stromersparnis ist. Brandmelder wird es konventionelle geben und auch hier bitte keine Hysterie-Diskussion. Es wird weder Gas noch Öl noch einen Kamin im Haus geben. Und wenn das Haus in unserer Abwesenheit abfackelt, dann ist es versichert. Photovoltaikanlage wird es keine geben, ebenso interessieren mich keine anderen Extreme bezüglich Stormsparen. Die Waschmaschine hat einen eigenen Timer. Im Regelfall befüllen wir die aber einfach nachmittags und hängen abends die Wäsche auf. Die muss nicht 3h nachts laufen, weil da gerade NT-Tarif ist und wir 0,3 Cent je Waschgang sparen.
Wohnen/Essen/Küche wird 6 Rollläden und 4 dimmbare Leuchten bekommen. Je 3 Rollläden und 2 Leuchten werden neben der Tür Wohnzimmer und neben der Tür Küche geschaltet. Die Schalter liegen nebeneinander nach dem Motto ganz links ist im Raum eben auch auf der Seite usw.
Also Wohnbereich West, Wohnbereich Süd und Mitte sind neben Wohnzimmertür; Essbereich Süd, Essbereich Ost und Küche Ost sind neben Küchentür. Für Verschattung relevant sind nur 2 Rollläden neben Wohnzimmer (Wohnzimmer Süd, da nicht unter Sonnensegel und Wohnzimmer West).
Wir haben im Moment, im Altbau, Innenjalousien und auch eine große Westfront. Bis auf die 5 wärmsten Tage des Jahres beschatten wir nicht komplett. Man möchte halt nur dort, wo man gerade sitzt, arbeitet, spielt, etc. nicht der direkten Sonne ausgesetzt werden.Je nachdem, wird also dieses Roll hoch und dieses runter gemacht usw...
Eine Konstantlichtregelung ist nicht gewünscht, auch jetzt schalten wir Licht nach Gefühl. Wenn wir bald ins Bett wollen, eher Licht aus oder weiter entferntes Licht an (also quasi eine Art indirekte Beleuchtung). Ich habe andere Lichtquellenpräferenzen wie meine Frau und wenn wir zusammen im Zimmer sind, gibt es natürlich wieder eine andere Kompromisslösung.
Ich habe einerseits Gleitzeit, andererseits kann ich auch mal eine Nacht nur 4h schlafen und am nächsten Tag dann vielleicht wieder 7h. Eine Regelung wie ab xx-Uhr abdimmen oder so funktioniert also nicht.
Es gibt auch keine definierte TV-Beleuchtung. Das kommt auf das Programm an. Für mal kurz Nachrichten schauen kann alle Beleuchtung so bleiben, wie sie ist. Für ein mittelmäßig interessantes Fußballspiel wird nur die direkte Beleuchtung ausgeschaltet, aber indirekt kann bleiben. Für eine Folge 'Game of Thrones' oder einen guten Film dann bitte alles aus, gerade weil es dort ja oft dunkle Szenen gibt. Teilweise haben wir aber z.B. das Flurlicht brennen als indirekte Beleuchtung für den Wohnbereich (was jetzt auch eine alleinige Flurbeleuchtung mittels Bewegungsmelder unnütz macht).
Flurbeleuchtung würden jeweils so machen, dass neben jeder Tür ein Schalter (Kreuzschaltung), welcher die Beleuchtung des jeweiligen Stockwerks an- und ausmachen kann. Also ja, neben jeder Tür exakt ein Schalter. Die zwei Lampen im OG gehen dann natürlich simultan an und aus. Es ist ein Stockwerk-Schalter. Am Treppenaufgang-/Abgang sind natürlich je exakt zwei Schalter. Der obere für oben, der untere für unten. Also kann ich von oben kommend beide Schalter einmal betätigen und habe oben aus- und unten angeschaltet. Oder ich macht das Licht oben erst unten aus am Ende der Treppe (oben aus = oberer Schalter; m.E. total logisch).
Treppenbeleuchtung könnte man so theoretisch auch schalten, aber gut, da geht es auch bisschen um Show-Effekt, oder? - Könnte man also auch mit Zeitschaltuhr oder mit Bewegungsmelder machen. Und wenn Haustiere die Treppenbeleuchtung auslösen, ja dann ist das so. Im Moment haben wir auch keine Haustiere.
So, Rollladensteuerung Wohnen/Essen/Küche habe ich ja schon geschrieben. Funktionsweise wäre übrigens kurz tasten für komplett hoch/runter und halten für exakte Einstellung. Aber man soll ja nicht halb fahren, weil das Temperaturunterschiede auf der Scheibe verursacht, welche diese kaputt machen können. Also etwa neben Wohnzimmertür dreimal kurz tasten und die drei Rollläden gehen hoch (oder runter). Auch alle anderen Rollläden (nach gleichem Prinzip) sind neben der Tür jeweils angeordnet. Nur für Schlafbereiche könnte ich mir einen Taster/Schalter mit Timer-Funktion vorstellen und dann würde ich nichts anderes als eine Aufgehzeit am nächsten Morgen einprogrammieren. Ich brauche keine Zugehzeit. Ein kurzer Taster und der Rollläden geht zu. Aber wenn ich meinen Wecker auf 6:53 stelle, dann stelle ich Rollladen eben auch auf 6:53 und werde neben dem Wecker von Tageslicht geweckt (in Zukunft haben wir wieder gemeinsame Aufstehzeiten und meine Frau keinen Schichtdienst mehr). ABER: Das ist ja alles konventionell realisierbar. Wunderbar einfach sogar. Also: Arbeitszimmer (Gäste), Schlafzimmer und 2 Kinderzimmer bekommen den Taster (kurz = komplett hoch/runter), welcher es erlaubt, eine Auf-Geh-Zeit festzulegen.
Nur kurz zur Logik der Verschattung tagsüber: Rollläden werden morgens beim Verlassen des Zimmers/Wohnbereichs runter gemacht und bleiben unten bis nachmittags der erste nach Hause kommt. Damit schon mal die ersten 10-12 Sonnenstunden des Tages überbrückt.
Licht wird es in vielen Zimmern dimmbar geben, aber ich möchte keine teuren Farborgien veranstalten. Die Leuchtmittel sollten wenig blaues Licht haben und gut.
so, ich denke mal ich habe die wichtigsten Bereiche beschrieben. Rollläden, Licht, Heizung und ein paar andere Sachen...
Wie kann uns eine Automatisierung wie KNX jetzt helfen? Welche Komfort-Gewinne sind möglich? Was sollten wir automatisieren und warum?
S
Sebastian7927.08.16 07:26Verstehe den Thread nicht - mit der Einstellung würdest Du nie eine Automatisierung einbauen und Grym-Typisch alles für sich selbst sowas von logisch erklärt, dass jegliches Gegenargument wieder versabbelt werden würde.
Mach doch alles genau, wie Du das gewünscht hast und dann bist Du zufrieden.
Statt Kreuzschaltung würde ich Stromstossschaltung empfehlen - ist eh schöner .
Mach doch alles genau, wie Du das gewünscht hast und dann bist Du zufrieden.
Statt Kreuzschaltung würde ich Stromstossschaltung empfehlen - ist eh schöner .
mir geht es wie Sebastian, ich verstehe nicht was du willst.
wenn du dich mit knx beschäftigt hast dann kennst du ja die Möglichkeiten. wenn du diese nun nicht brauchst dann mach es halt klassisch. Der Vorteil von KNX sind Gruppenschalt Lösungen und Automatismen. Wenn du das nicht willst/brauchst dann Bau halt klassisch.
ich persönlich bin ein Befürworter von KNX aber wenn jemand das nicht braucht warum soll man Ihn dann dazu überreden. Und diesen Eindruck macht dieser Thread auf mich.
Die Vorteile bei den Rollos wären halt das man diese a) automatisch rauf und runter fährt, b) beliebige Gruppen bildet. Also z.B. alle Rollos im Westen oder Süden.
Ein weiterer Vorteil bei KNX ist das man Schalterorgien minimiert. Wenn man, wie in meinem Fall 6 Rollos im WZ hat dann kommen einem Die Szenen und Gruppenfunktionen von KNX schon sehr entgegen. Eine Taste und ein bestimmtes Szenario geht an. z.B. Fernsehen, Rollos zu, Licht wird gedimmt (oder das Flurlicht geht an ). Klar kann man das klassisch machen dann geht man halt zu jedem Fenster und drückt auf den Schalter und in den Flur und macht das licht an. Das Ergebnis ist das gleiche. Oder man drückt halt auf 5 Schalter. Ich habe im Wohnzimmer 6 Rollos und 4 Deckenlampen. Das wären dann 10 klassische Schalter oder eben ein KNX Schalter MDT Smart 2 für 113€ der in einer UP Dose Platz findet. Mit dem kann ich dann alles einzeln schalten oder eben szenarien. Wie es mir grade passt. Und ich habe keine 2 mal 5 Reihen Schalter an der Wand.
Es gibt noch jede Menge mehr Sachen die man damit anstellen kann. Viele kommen einem erst wenn man dann mal im Haus wohnt. Und dann hat man halt, da die Verkabelung anders aufgebaut ist als im klassischen fall, mehr Möglichkeiten.
Bei einer klassischen Installation z.B. wird das Kabel vom Verteiler zum Schalter und vom Schalter in die Decke gelegt. Bei KNX wird das Kabel direkt vom Verteiler in die Decke gelegt. Zum einen vereinfacht das die Installation zum anderen kann man später leichter mal den Verwendungszweck ändern. Das selbe gilt im Prinzip bei den Steckdosen und den anderen Verbrauchern. Und natürlich gilt das auch für die Rollos.
wenn du dich mit knx beschäftigt hast dann kennst du ja die Möglichkeiten. wenn du diese nun nicht brauchst dann mach es halt klassisch. Der Vorteil von KNX sind Gruppenschalt Lösungen und Automatismen. Wenn du das nicht willst/brauchst dann Bau halt klassisch.
ich persönlich bin ein Befürworter von KNX aber wenn jemand das nicht braucht warum soll man Ihn dann dazu überreden. Und diesen Eindruck macht dieser Thread auf mich.
Die Vorteile bei den Rollos wären halt das man diese a) automatisch rauf und runter fährt, b) beliebige Gruppen bildet. Also z.B. alle Rollos im Westen oder Süden.
Ein weiterer Vorteil bei KNX ist das man Schalterorgien minimiert. Wenn man, wie in meinem Fall 6 Rollos im WZ hat dann kommen einem Die Szenen und Gruppenfunktionen von KNX schon sehr entgegen. Eine Taste und ein bestimmtes Szenario geht an. z.B. Fernsehen, Rollos zu, Licht wird gedimmt (oder das Flurlicht geht an ). Klar kann man das klassisch machen dann geht man halt zu jedem Fenster und drückt auf den Schalter und in den Flur und macht das licht an. Das Ergebnis ist das gleiche. Oder man drückt halt auf 5 Schalter. Ich habe im Wohnzimmer 6 Rollos und 4 Deckenlampen. Das wären dann 10 klassische Schalter oder eben ein KNX Schalter MDT Smart 2 für 113€ der in einer UP Dose Platz findet. Mit dem kann ich dann alles einzeln schalten oder eben szenarien. Wie es mir grade passt. Und ich habe keine 2 mal 5 Reihen Schalter an der Wand.
Es gibt noch jede Menge mehr Sachen die man damit anstellen kann. Viele kommen einem erst wenn man dann mal im Haus wohnt. Und dann hat man halt, da die Verkabelung anders aufgebaut ist als im klassischen fall, mehr Möglichkeiten.
Bei einer klassischen Installation z.B. wird das Kabel vom Verteiler zum Schalter und vom Schalter in die Decke gelegt. Bei KNX wird das Kabel direkt vom Verteiler in die Decke gelegt. Zum einen vereinfacht das die Installation zum anderen kann man später leichter mal den Verwendungszweck ändern. Das selbe gilt im Prinzip bei den Steckdosen und den anderen Verbrauchern. Und natürlich gilt das auch für die Rollos.
Für mich gibt es einen klaren Grund für KNX/zentrale Steuerung, das (wiederum für mich) durch nichts zu schlagen ist:
Zentral AUS an der Haustüre
Ich kenne mittlerweile zu viele dramatische und traurige Geschichten von abgebrannten Häusern deren Eigner absolut nichts dafür konnten, dass ich das, so weit mir irgendwie möglich, vermeiden möchte. Dazu will ich aber auch nicht jedes Gerät nach der Benutzung manuell ausstecken. Bleibt also eigentlich nur die Abschaltung der Stromversorgung.
Da es heute aber Geräte gibt, die nun mal an bleiben sollen/müssen, kann man das nicht einfach zentral fürs ganze Haus stattfinden lassen. Dies oder das sollte an bleiben. Bis hier hin könnte man das immer noch konventionell machen, wäre aber trotzdem schon recht aufwendig bzgl Verkabelung.
Aber spätestens wenn sich da mal was ändert, etwas hinzu kommt oder umgestellt wird, ist die konventionelle Verkabelung für die Katz. Hier kommt die programmierbare Steuerung zum Tragen. Einfach die andere Steckdose als Versorgung für das umgestellte/neue Gerät programmiert und gut.
Damit ist wieder ganz einfach alles unwichtige aus, wenn ich es will.
Das ist für mich der eigentliche Auslöser gewesen, der mich zur Automation/Steuerung gebracht hat.
Alle weiteren Funktionen, die zB KNX bringen würde, sind für mich als Technik-affinen Menschen natürlich nicht minder interessant, aber nur als Goodie zu verstehen
Eins noch:
Die Einstellung "wenns brennt bin ich versichert" kann nur von jemandem kommen, der noch nie die tatsächlichen Folgen eines Brandes realisieren musste.
Zentral AUS an der Haustüre
Ich kenne mittlerweile zu viele dramatische und traurige Geschichten von abgebrannten Häusern deren Eigner absolut nichts dafür konnten, dass ich das, so weit mir irgendwie möglich, vermeiden möchte. Dazu will ich aber auch nicht jedes Gerät nach der Benutzung manuell ausstecken. Bleibt also eigentlich nur die Abschaltung der Stromversorgung.
Da es heute aber Geräte gibt, die nun mal an bleiben sollen/müssen, kann man das nicht einfach zentral fürs ganze Haus stattfinden lassen. Dies oder das sollte an bleiben. Bis hier hin könnte man das immer noch konventionell machen, wäre aber trotzdem schon recht aufwendig bzgl Verkabelung.
Aber spätestens wenn sich da mal was ändert, etwas hinzu kommt oder umgestellt wird, ist die konventionelle Verkabelung für die Katz. Hier kommt die programmierbare Steuerung zum Tragen. Einfach die andere Steckdose als Versorgung für das umgestellte/neue Gerät programmiert und gut.
Damit ist wieder ganz einfach alles unwichtige aus, wenn ich es will.
Das ist für mich der eigentliche Auslöser gewesen, der mich zur Automation/Steuerung gebracht hat.
Alle weiteren Funktionen, die zB KNX bringen würde, sind für mich als Technik-affinen Menschen natürlich nicht minder interessant, aber nur als Goodie zu verstehen
Eins noch:
Die Einstellung "wenns brennt bin ich versichert" kann nur von jemandem kommen, der noch nie die tatsächlichen Folgen eines Brandes realisieren musste.
Ich spinn mal - ob das mit KNX geht oder nicht:
Tür öffnet durch Gesichtserkennung
Haus realisiert, ob noch Menschen im Haus sind und schaltet ansonsten definierte Steckdosen aus
Haus zeigt zentral den Stromverbrauch an (Identifikation von vergessenen Geräten / Stand-by Verbrauchern)
Intelligente Anwesenheitssimulation (mit einem gewissen Zufallsfaktor)
Lumenzahl wird gemessen - Licht steuert automatisch nach (an/aus/heller)
Telefongespräche laufen über Sprachsteuerung und in Räumen verbaute Lautsprecher und Mikros (Haus erkennt wo der Mensch ist)
Tür öffnet durch Gesichtserkennung
Haus realisiert, ob noch Menschen im Haus sind und schaltet ansonsten definierte Steckdosen aus
Haus zeigt zentral den Stromverbrauch an (Identifikation von vergessenen Geräten / Stand-by Verbrauchern)
Intelligente Anwesenheitssimulation (mit einem gewissen Zufallsfaktor)
Lumenzahl wird gemessen - Licht steuert automatisch nach (an/aus/heller)
Telefongespräche laufen über Sprachsteuerung und in Räumen verbaute Lautsprecher und Mikros (Haus erkennt wo der Mensch ist)
BeHaElJa schrieb:
Tür öffnet durch GesichtserkennungWürde ich nicht machen wäre zu unsicher...aber dennoch machbar
Der Rest eine Leichtigkeit...
Das mit den Telefongesprächen ist mir jedoch unklar...zur Erkennung wer sich wo befindet gibt es einfachere Mittel.
Ähnliche Themen