Hausbau - Ratgeber
Bauherrenhilfe
- Bauherrenhilfe vor Vertragsabschluss
-- Warum einen unabhängigen Baubetreuer?
-- Vertragsgrundlagen
-- Bausumme
-- Zahlungsplan zur Kostenkontrolle
-- Pflichten des Bauherren vor Vertragsabschluss
-- Unterlagen beim Hausbau vor Vertragsabschluss
- Bauherrenhilfe nach Vertragsabschluss
-- Bauantrag bei Behörden
-- Bau-Genehmigungsverfahren bei Baubehörden
-- Bauspezifische Versicherungen
-- Bauzeitenplan
-- Baubeginn - die Letzten Pflichten der Bauherrschaft
- Bauherrenhilfe während der Bauzeit
- Gewährleistungsansprüche
- Bauabnahme
Baufinanzierung
- Baufinanzierung - Allgemeine Fragen
- Kreditarten
- Kredit-Konditionen
- Bausparen
- Staatliche Förderungen
- Verkehrswert
- Haushaltsrechnung und Bonität
Hausbau Planung
- Haustypen
- Hausbau Vorbereitungsarbeiten
- Das Baugrundstück
- Baugrund beim Hausbau
- Baurecht
- Gebäudeschutz
- Erdarbeiten und Wasserhaltung
- Stützmauern
- Einfriedung
- Untergeschoss
- Kanalisation
- Tragende Elemente
- Nichttragende Innenwände
- Fundation / Fundament
- Deckenkonstruktionen
- Dächer
- Kaminanlagen
- Treppen Rampen Leitern
- Dachbeläge und Spengler
- Fenster
- Sonnen und Wetterschutz
- Aussenputze
- Einbauten, Küchen, Türen
- Bodenbeläge und Unterlagsböden
- Parkett
- Gips, Wand, Decke
Haustechnik und Energie
- Heiztechnik
- Lüftung und Klimatechnik
- Sanitärtechnik
- Elektrotechnik
- Erneuerbare Energie
Whirlpools / Jacuzzi
Hausbau Magazin
- Baufinanzierung trotz Krise?
- Das Blockhaus
- Moderne Dämmstoffe im Vergleich
- Erker Vor- und Nachteile
- Glasflächen beim Hausbau
- Günstig ein Haus Bauen
- Mediterraner Hausbaustil
- Mehrgenerationenhaus
- Moderne Architektur
- Gartengestaltung leicht gemacht
- Traditioneller Ziegelbau
- Villa als höchster Traum
- Im Eigenheim Ruhestand geniessen
- Altbau sanieren
- Kauf einer Holzgarage
- Immobilienmakler
- Arbeitshandschuhe für den Winter
- Zuhause verschönern
- Outdoor-Plissees
- Schlafzimmer planen
- Terrassenüberdachung
- Wohngebäudeversicherung
- Zaunarten und Eigenschaften
- Hauseingang gestalten
- Der perfekte Grundriss
- Sparsamer heizen im Altbau
- Einfamilienhaus smart finanzieren
- Planung einer PV-Anlage
- Neues Haus
- Immobilienfinanzierung
- Installation einer Photovoltaikanlage
- Asbest erkennen und entfernen
- Gartenpflege im Frühling – worauf achten
- Sauna im Fokus - Wellness zuhause
- Erfolgreich vermieten
- Die perfekte Winterbekleidung
- Das Niedrigenergiehaus
- Der April und seine Stürme
- Architektonische Vielfalt
- Ökologisch und nachhaltig bauen
- Das perfekte Schlafzimmer
- Nachhaltige Energieversorgung
- Zukunftsorientiert bauen
- Nachhaltigkeit beim Hausbau
- Tiny Houses
- Wärmepumpen als nachhaltige Heizvariante
- Maßgeschneiderten Kleiderschrank
- Der richtige Baukredit
- Ratgeber für erfolgreichen Hausbau
- Haus als Altersvorsorge
Do-it-yourself Anleitungen
- Verlegeanleitung für Bodenbeläge und Parkett
- Bodenbeläge und Parkett reinigen und pflegen
- Malerarbeiten am Haus
- Garten Tipps
- Umzug und Reinigung

ᐅ Schlafzimmer, Ankleide und Badezimmer - Ideen für Anordnung

Erstellt am: 13.10.20 08:16
R
Raphael92
R
Raphael92
13.10.20 08:16
Hallo zusammen,
wir befinden uns derzeit in der Planung unseres Neubaus. Leider bin ich irgendwie noch nicht so ganz mit der Anordnung von Schlafzimmer, Ankleide und Bad zufrieden. Hat jemand von euch eventuell inspirierende Ideen?

Vielen Dank und viele Grüße

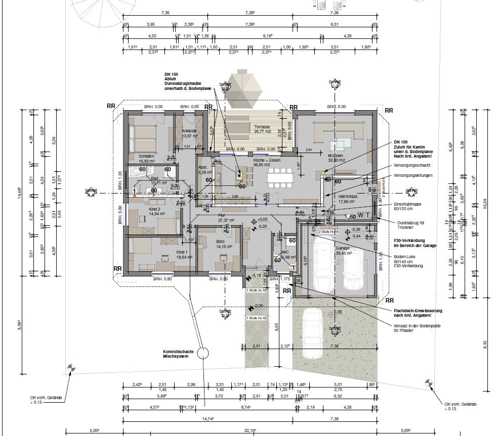
Grundriss eines Hauses mit Schlafen, Kind 1, Kind 2, Ankleide, Büro, Bad und Flur
P
Pinky0301
13.10.20 08:21
Das war zwar nicht gefragt Aber was mir direkt auffällt: Bei Kind 2 würde ich die Tür ein Stück nach unten schieben, dass sie mittig in der Wand sitzt, damit man auch an die obere Wand Möbel stellen kann.
Was genau stört dich denn an der Anordnung?
E
Elokine
13.10.20 08:38
Ist das das Hauptbad, das auch die Kinder benutzen oder gibt es noch ein weiteres? Auch für einen Bungalow ist das schon viel Flurfläche und die langgezogene Abstellkammer ist auch ein Platzfresser.
Es ist schwierig, Tipps zu geben, ohne den kompletten Grundriss zu kennen .
Y
ypg
13.10.20 09:48
Erstmal die Tür vom Schlafzimmer weg. Die kann man hinter das Bad setzen, wenn es das Familienbad ist. Wenn Elternbad, dann erübrigt sich ja eine Tür. Ansonsten passt alles.
F
face26
13.10.20 10:03
Auch das war nicht gefragt, aber wie ist denn die Umsetzung der Abluft unter der Bodenplatte gedacht?

Muldenlüfter? Und dann unter der Bodenplatte erst Richtung Abstellkammer und dann in dem Eck nach draußen? Da ist doch dann die Terrasse? Oder soll das in der Mauer wieder nach oben geführt werden?

Der Weg erscheint mir sehr lang, mit einigen Bögen und ich würde mir auch überlegen ob ich die Abluft der Küche dort rausgeblasen haben möchte...

Vielleicht hab ich's auch falsch verstanden.

Zur eigentlichen Frage, siehe @ypg
R
Raphael92
13.10.20 11:16
Also die Abluft unter der Bodenplatte ist noch nicht Final durchdacht. Eventuell wird es auch nach vorne heraus gehen, muss allerdings noch mit dem Küchenbauer sprechen wie viel Meter man gut machen kann. Das Bad ist eigentlich als Elternbad gedacht. Hier nochmal der gesamte Grundriss.

Grundriss eines Einfamilienhauses Wohn-/Essbereich, Küche, Schlafzimmer, Bad, Terrasse und Doppelgarage.
türabluftbodenplatteschlafzimmerabstellkammergrundrisselternbad