Hallo zusammen,
wir stehen kurz vor Beginn unseres Bauvorhabens. Ich möchte KNX im Haus haben, jedoch im ersten Schritt versuchen nur mit grundlegenden Funktionen:
-Rollladensteuerung
-einige Schaltbare Steckdosen
-verschiedene Lichtkreise (230V Deckenspots, einige LED-Stripes in WW)
-einige Präsenzmelder (in vielen Zimmern jedoch nur vorbereiten)
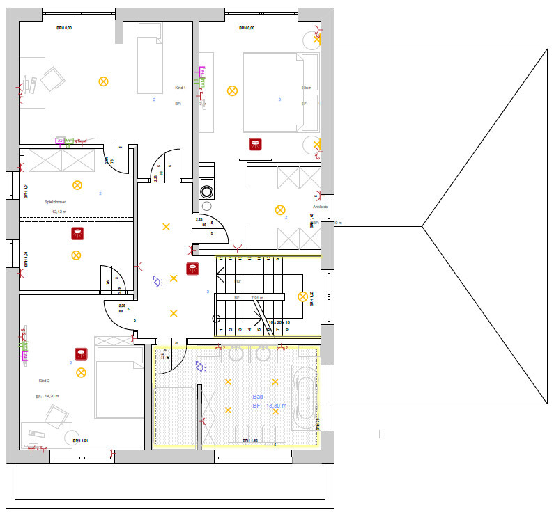
-MDT-Glastaster in WZ, Küche, Schlafzimmer, Bad und in den anderen Zimmern erst einmal versuchen Licht und Rollladensteuerung so günstig wie möglich über normale Wippen/Taster halten. Wenn dann je nach Baufortschritt etwas Budget über ist, dann eben doch gleich MDT Glastaster oder den MDT Taster 86, fand ich nicht schlecht auf der L&B.
-Mir sind die Positionen der Präsenzmelder wichtig bzw. die Vorbereitung.
-Einige Lichtkreise dimmbar machen (Wohnzimmerspots, Nachttischleuchten, LED-Stripes (in Zeichnung durch gelben Strich gekennzeichnet)
-Rauchmelder auch über KNX oder einfach Batteriebetrieben?
Ich möchte nicht alles einzeln anfahren und gehe daher mit 1,2 oder mehreren NYM 5*1,5 in ein Zimmer für Steckdosen und mit NYM 5*1,5 für Leuchten/Spots.
Einmal NYM 5*1,5 für Steckdose in Fensterlaibung und Rollladenmotor,
KNX an mehrere Stellen, Coax und LAN immer doppelt.
Was sagt ihr zu Positionen und Anzahl der PM, Steckdosen und Lichtquellen??
Vorschläge würde ich dann entsprechend einfach in der Zeichnung anpassen. Und bei Zeiten dann auch all meine gewählten Komponenten und verbauten Teile auflisten, damit man sich ein Bild davon machen kann, was so in etwa auf einen zukommen könnte. Verteilerschrank wird mit einem befreundeten Elektriker gemacht und Programmierung werde ich dann mit der ETS vornehmen. Weiß nicht ob ich meinen ETS-Gutschein für die ETS-Lite oder ETS Professional ausgeben werde.
schöne Grüße
Almo


wir stehen kurz vor Beginn unseres Bauvorhabens. Ich möchte KNX im Haus haben, jedoch im ersten Schritt versuchen nur mit grundlegenden Funktionen:
-Rollladensteuerung
-einige Schaltbare Steckdosen
-verschiedene Lichtkreise (230V Deckenspots, einige LED-Stripes in WW)
-einige Präsenzmelder (in vielen Zimmern jedoch nur vorbereiten)
-MDT-Glastaster in WZ, Küche, Schlafzimmer, Bad und in den anderen Zimmern erst einmal versuchen Licht und Rollladensteuerung so günstig wie möglich über normale Wippen/Taster halten. Wenn dann je nach Baufortschritt etwas Budget über ist, dann eben doch gleich MDT Glastaster oder den MDT Taster 86, fand ich nicht schlecht auf der L&B.
-Mir sind die Positionen der Präsenzmelder wichtig bzw. die Vorbereitung.
-Einige Lichtkreise dimmbar machen (Wohnzimmerspots, Nachttischleuchten, LED-Stripes (in Zeichnung durch gelben Strich gekennzeichnet)
-Rauchmelder auch über KNX oder einfach Batteriebetrieben?
Ich möchte nicht alles einzeln anfahren und gehe daher mit 1,2 oder mehreren NYM 5*1,5 in ein Zimmer für Steckdosen und mit NYM 5*1,5 für Leuchten/Spots.
Einmal NYM 5*1,5 für Steckdose in Fensterlaibung und Rollladenmotor,
KNX an mehrere Stellen, Coax und LAN immer doppelt.
Was sagt ihr zu Positionen und Anzahl der PM, Steckdosen und Lichtquellen??
Vorschläge würde ich dann entsprechend einfach in der Zeichnung anpassen. Und bei Zeiten dann auch all meine gewählten Komponenten und verbauten Teile auflisten, damit man sich ein Bild davon machen kann, was so in etwa auf einen zukommen könnte. Verteilerschrank wird mit einem befreundeten Elektriker gemacht und Programmierung werde ich dann mit der ETS vornehmen. Weiß nicht ob ich meinen ETS-Gutschein für die ETS-Lite oder ETS Professional ausgeben werde.
schöne Grüße
Almo
Mein Standardspruch:
Im Eingamgsbereich zwei PM's verbauen am Eingang und An der Tür zum Wohnzimmer. Jeder soll dann auch das zugehörige Licht bedienen.
Der PM im Flur OG sollte mittiger sein um das Licht anzumachen sobald du unten die erste Stufe betrittst, ausser du hast eine gesonderte Treppenbeleuchtung welche genügend Licht macht beim betreten der Treppe.
In der Küche bietet sich eigentlich auch immer ein PM an.
Die PM's in den Wandschränken fehlen, oder kommen da Taster/Türkontakte?
Der PM im Bad wird solala funktionieren(Wegen der Duschwand). Ausser du nimmst ein HF-Melder. In der Dusche fehlt auch Licht.
Unten im Gäste-WC dasselbe. Da muss man schauen, ob man den zum funktionieren bekommt wenn der PM an der Wand neben der Eingangstür angebracht wird, aber ist eher schwierig. (Vorausgesetzt die Duschwand ist höher als 2m)
Im Eingamgsbereich zwei PM's verbauen am Eingang und An der Tür zum Wohnzimmer. Jeder soll dann auch das zugehörige Licht bedienen.
Der PM im Flur OG sollte mittiger sein um das Licht anzumachen sobald du unten die erste Stufe betrittst, ausser du hast eine gesonderte Treppenbeleuchtung welche genügend Licht macht beim betreten der Treppe.
In der Küche bietet sich eigentlich auch immer ein PM an.
Die PM's in den Wandschränken fehlen, oder kommen da Taster/Türkontakte?
Der PM im Bad wird solala funktionieren(Wegen der Duschwand). Ausser du nimmst ein HF-Melder. In der Dusche fehlt auch Licht.
Unten im Gäste-WC dasselbe. Da muss man schauen, ob man den zum funktionieren bekommt wenn der PM an der Wand neben der Eingangstür angebracht wird, aber ist eher schwierig. (Vorausgesetzt die Duschwand ist höher als 2m)
Mycraft schrieb:
Mein Standardspruch:
Im Eingamgsbereich zwei PM's verbauen am Eingang und An der Tür zum Wohnzimmer. Jeder soll dann auch das zugehörige Licht bedienen.
Der PM im Flur OG sollte mittiger sein um das Licht anzumachen sobald du unten die erste Stufe betrittst, ausser du hast eine gesonderte Treppenbeleuchtung welche genügend Licht macht beim betreten der Treppe.
In der Küche bietet sich eigentlich auch immer ein PM an.-Im Flur unten 2 PM klingt logisch-oben passe ich an, habe aber hier mit LED-stripes geplant und evtl. einer Hängeleuchte. LED-Stripes sind als gelber Streifen markiert.
-Küche werde ich die Decke abhängen, da ich nicht weiß wo genau die Spots hin sollen. dann kann ich PM und Lüftungsrohr leichter nachträglich platzieren.
Mycraft schrieb:
Die PM's in den Wandschränken fehlen, oder kommen da Taster/Türkontakte?weiß ich noch nicht genau.
Mycraft schrieb:
Der PM im Bad wird solala funktionieren(Wegen der Duschwand). Ausser du nimmst ein HF-Melder. In der Dusche fehlt auch Licht.
Unten im Gäste-WC dasselbe. Da muss man schauen, ob man den zum funktionieren bekommt wenn der PM an der Wand neben der Eingangstür angebracht wird, aber ist eher schwierig. (Vorausgesetzt die Duschwand ist höher als 2m)Bei Bad und WC habe ich gedacht das die PM links und rechts von der Dusche erfassen können...oder hab ich da einen Denkfehler? Deswegen habe ich die auf Höhe von der Duschwand vorgesehen, die übrigens bis an die Decke gehen soll. Dusche sind oben und unten mit LED-Stripes ausgestattet. Würde hier aber auch was anderes verbauen, Hauptsache nicht zu grelles Licht beim duschen.
Almo85 schrieb:
-Küche werde ich die Decke abhängen, da ich nicht weiß wo genau die Spots hin sollen. dann kann ich PM und Lüftungsrohr leichter nachträglich platzieren.Ach ja das war ja die Geschichte...
Wenn die Duschwände bis nach oben gehen dann wird das nicht wirklich was werden. Die PM's können zwar links und rechts schauen, aber die Duschen sind dafür zu tief. Sprich wenn du dann weiter hinten stehst besteht die Möglichkeit dass das Licht ausgeht.
Es würde mit Wand PM's gehen, aber dann hat man das Problem, dass es wiederum die Möglichkeit gibt, dass dann quer zur Linse nur wenig erfasst wird und das Licht ausgeht wenn man auf dem Thron sitzt bzw. am Waschbecken ist.
Also hier sehe ich noch Optimierungsbedarf.
Mycraft schrieb:
Ach ja das war ja die Geschichte...
Wenn die Duschwände bis nach oben gehen dann wird das nicht wirklich was werden. Die PM's können zwar links und rechts schauen, aber die Duschen sind dafür zu tief. Sprich wenn du dann weiter hinten stehst besteht die Möglichkeit dass das Licht ausgeht.Dieser weiße Bereich in der Duschecke wäre ausserhalb der Erfassung vom PM, damit müsste ich dann bei jetziger Position leben. wenn ich den PM weiter in Richtung Dusche schiebe, habe ich das Problem am Waschbecken.
Ähnliche Themen