Hausbau - Ratgeber
Bauherrenhilfe
- Bauherrenhilfe vor Vertragsabschluss
-- Warum einen unabhängigen Baubetreuer?
-- Vertragsgrundlagen
-- Bausumme
-- Zahlungsplan zur Kostenkontrolle
-- Pflichten des Bauherren vor Vertragsabschluss
-- Unterlagen beim Hausbau vor Vertragsabschluss
- Bauherrenhilfe nach Vertragsabschluss
-- Bauantrag bei Behörden
-- Bau-Genehmigungsverfahren bei Baubehörden
-- Bauspezifische Versicherungen
-- Bauzeitenplan
-- Baubeginn - die Letzten Pflichten der Bauherrschaft
- Bauherrenhilfe während der Bauzeit
- Gewährleistungsansprüche
- Bauabnahme
Baufinanzierung
- Baufinanzierung - Allgemeine Fragen
- Kreditarten
- Kredit-Konditionen
- Bausparen
- Staatliche Förderungen
- Verkehrswert
- Haushaltsrechnung und Bonität
Hausbau Planung
- Haustypen
- Hausbau Vorbereitungsarbeiten
- Das Baugrundstück
- Baugrund beim Hausbau
- Baurecht
- Gebäudeschutz
- Erdarbeiten und Wasserhaltung
- Stützmauern
- Einfriedung
- Untergeschoss
- Kanalisation
- Tragende Elemente
- Nichttragende Innenwände
- Fundation / Fundament
- Deckenkonstruktionen
- Dächer
- Kaminanlagen
- Treppen Rampen Leitern
- Dachbeläge und Spengler
- Fenster
- Sonnen und Wetterschutz
- Aussenputze
- Einbauten, Küchen, Türen
- Bodenbeläge und Unterlagsböden
- Parkett
- Gips, Wand, Decke
Haustechnik und Energie
- Heiztechnik
- Lüftung und Klimatechnik
- Sanitärtechnik
- Elektrotechnik
- Erneuerbare Energie
Whirlpools / Jacuzzi
Hausbau Magazin
- Baufinanzierung trotz Krise?
- Das Blockhaus
- Moderne Dämmstoffe im Vergleich
- Erker Vor- und Nachteile
- Glasflächen beim Hausbau
- Günstig ein Haus Bauen
- Mediterraner Hausbaustil
- Mehrgenerationenhaus
- Moderne Architektur
- Gartengestaltung leicht gemacht
- Traditioneller Ziegelbau
- Villa als höchster Traum
- Im Eigenheim Ruhestand geniessen
- Altbau sanieren
- Kauf einer Holzgarage
- Immobilienmakler
- Arbeitshandschuhe für den Winter
- Zuhause verschönern
- Outdoor-Plissees
- Schlafzimmer planen
- Terrassenüberdachung
- Wohngebäudeversicherung
- Zaunarten und Eigenschaften
- Hauseingang gestalten
- Der perfekte Grundriss
- Sparsamer heizen im Altbau
- Einfamilienhaus smart finanzieren
- Planung einer PV-Anlage
- Neues Haus
- Immobilienfinanzierung
- Installation einer Photovoltaikanlage
- Asbest erkennen und entfernen
- Gartenpflege im Frühling – worauf achten
- Sauna im Fokus - Wellness zuhause
- Erfolgreich vermieten
- Die perfekte Winterbekleidung
- Das Niedrigenergiehaus
- Der April und seine Stürme
- Architektonische Vielfalt
- Ökologisch und nachhaltig bauen
- Das perfekte Schlafzimmer
- Nachhaltige Energieversorgung
- Zukunftsorientiert bauen
- Nachhaltigkeit beim Hausbau
- Tiny Houses
- Wärmepumpen als nachhaltige Heizvariante
- Maßgeschneiderten Kleiderschrank
- Der richtige Baukredit
- Ratgeber für erfolgreichen Hausbau
- Haus als Altersvorsorge
Do-it-yourself Anleitungen
- Verlegeanleitung für Bodenbeläge und Parkett
- Bodenbeläge und Parkett reinigen und pflegen
- Malerarbeiten am Haus
- Garten Tipps
- Umzug und Reinigung

ᐅ Planung bzw Raumaufteilungen - Was haltet ihr davon?

Erstellt am: 21.01.20 12:54
R
RaBa2020
R
RaBa2020
22.01.20 16:04
11ant schrieb:

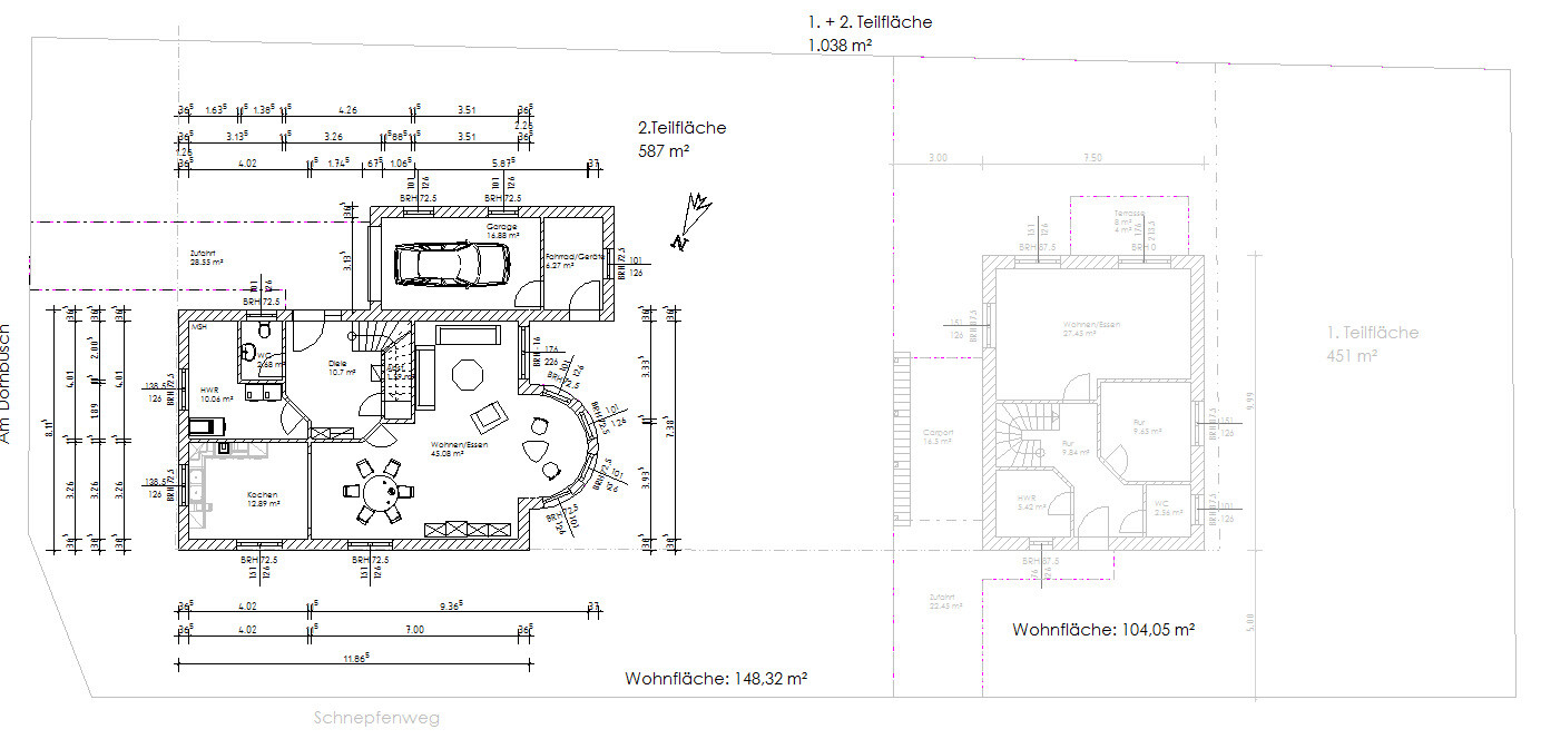
... mußt Du das Gebäude dennoch innerhalb der Grundflächenzahl I erledigen.
Ja das Wohngebäude einschl. Terrasse
Wohnhaus 96,28 + Erker 6,90 + Terrasse 15,00
=103,18m²
587 / 103,18 = 0,18 < 0,2 Grundflächenzahl I

+ Garage +Zufahrt = 0,28 < 0,3 Grundflächenzahl II
R
RaBa2020
22.01.20 16:19
11ant schrieb:

Du willst Bauträger werden, in der Losgröße zwei Einfamilienhaus, aber nicht als Doppelhaus. Ob beide Häuser gleich aussehen oder Einzelstücke sind (von denen Du hier aber nur eines der beiden Modelle zeigst), haben wir bisher nicht erfahren. Ich nehme mal an, die Bonität für die Operation hast Du; Anstifter ist ein Finanzierungsberater; und ob Du am Ende erledigt bist, ist für dessen Profit egal. Laß´ Dir die Warnung durch den Kopf gehen - besser als die Kugel danach - daß das Schwachsinn ist: das Häuschen mit dem Chorerker ist derart individuell Geschmackssache, daß man so etwas nur mit konkreter Abnahmegarantie überhaupt zu bauen anfinge. Überhaupt würde jeder vernünftige Besitzer eines 1.038 qm Grundstückes sich für das Rohgrundstück einen Käufer suchen, der schon die Teilung bezahlt; und dann mit dem Geld für die eine Hälfte und der vom Käufer bezahlten Teilungsarie lustig pfeifend auf den Käufer für die zweite Hälfte warten - nach heutiger Marktlage wohl kaum eine Zigarette lang. Ob die Beiden dann E oder D darauf bauen, könnte Dir schon egal sein. Maximal - wenn ich denn unbedingt die Wertschöpfung des Bebauens noch mitnehmen wollte - würde ich ein Doppelhaus draufsetzen, aber schon das nicht ohne es konkret verkauft zu wissen. Bei Licht betrachtet, wirst Du nicht lange überlegen müssen, weshalb ich einen Finanzierungsberater hinter der Schnapsidee (und Dich als dessen nützlichen Dummen) vermute.

Grundriss: zweigeteiltes Haus mit Garage, Carport, Küche, Wohnen/Essen, Flur, Bad, HWR.

so sollte es aussehen!
11ant22.01.20 16:27
Das blaß durchscheinende Objekt auf der 451 qm "Teilfläche I" wirft Dir keine Fragen auf, oder willst Du uns das lieber nicht zum Fraß vorwerfen, wo wir zum Objekt auf der Teilfläche II schon so skeptisch sind ?

Hast Du Druck, Kohle platt zu machen, oder mußt Du nur über meine warnenden Worte erst noch schlafen ?
https://www.instagram.com/11antgmxde/
https://www.linkedin.com/company/bauen-jetzt/
S
Scout
22.01.20 16:29
Herrgott, wieso muss die Garage unbedingt im Süden sein?

Nimm die Zufahrt von Norden her und stell die Garage direkt an das Nachbarcarport. Fenster brauchst du da keine.

Dann spiegelst du das Haus oben/unten so dass Küche und Esszimmer in den freien Süden wandern. Und wenn die Garage unbedingt ans Haus andocken muss dann spiegelst du noch mal links/rechts und schiebst den Hauswirtschaftsraum an die Garage und verbindest beide mit einer Schleuse. Ergibt eine schöne sonnige Ausrichtung und du kannst von Norden her ins Haus.
kbt0922.01.20 20:05
Dieser Thread ist leider ätzend. Keinerlei Eingehen auf in Frage gestellte Punkte usw. .... Warum hast du das hier eingestellt und gefragt?
M
Matthew03
22.01.20 23:03
Kapier es auch nicht, auf die essentiellen Fragen nach dem Antrieb das ganze so angehen zu wollen kommt nichts.

Aber zwei Häuser planen, völlig wild ausgerichtet, keine Bedürfnisse der späteren Bewohner (und damit Käufer) beachtend weil es noch keine gibt, sich dadurch den Markt unnötig verkleinern und das Ganze mit fragwürdigen Halbkreisen garnieren...das läuft. Samt unglücklicher Garagenposition und unklarer Baufähigkeit bezüglich Grundflächenzahl obendrauf.

Die Frage nach dem Mehrwert dieses ganzen Aufwands stellt sich doch als allererstes.
Zwei Bauplätze verkaufen = Summe X Gewinn.
Zwei Häuser verkaufen = Summe Y Gewinn.
Lohnt sich der Aufwand, Stress, Zeit und Co für die Differenz von X zu Y?

Ein paar Größenordnungen dazu wären für eine Diskussion nicht schlecht. Und, wie Eingangs erwähnt, die Gesamtmotivation dahinter.
garagegrundflächenzahlterrassezufahrtteilfläche