ᐅ Planung / Auslegung einer Kontrollierte-Wohnraumlüftung - maximale Rohrlängen
Erstellt am: 16.12.18 21:12
C
caddar
Hallo zusammen,
vielleicht muss ich mit dieser Frage ja nicht ins Telekom-farbene Forum (und mich dort auch anmelden..).
Wir planen derzeit die (Kern)Sanierung eines 60er-Jahre Hauses und dort steht auch der Einbau einer Kontrollierte-Wohnraumlüftung zur Debatte. Während die Gesamtplanung von einem Architekten gemacht wird, hat sich die Kontrollierte-Wohnraumlüftung-Sache als etwas schwieriger erwiesen. Die HLS-Firma lässt die Kontrollierte-Wohnraumlüftung-Planung von einem Großhändler machen (es geht um eine Pichler LG350) und dort happert es mit der Kommunikation (Öffnungen gehen zum Reihenhaus-Nachbarn etc).
Bevor wir jetzt entweder Firma oder Kontrollierte-Wohnraumlüftung zum Teufel jagen (bzw. den HLSler nur Heizung/Sanitär machen lassen), wollte ich hier einen grundsätzlichen Punkt klären:
- im "Lüftungsplan" (der mit einer Variante einer airPLAN-Software erstellt wurde, die offenbar in diversen Freeware-Varianten kursiert) steht: Maximale Länge zwischen Verteiler und Tellerventil: 15m
Frage: Weiß jemand, ob das so stimmt? Ist das komplett geräteunabhängig? Die Zahl tauchte auch in meinem "Testentwurf" auf, den ich mit oben genannten Programm komplett ohne Geräte gemacht habe)
Bei der eventuell "Altbaukonformen" Aufstellung im DG (und entsprechender Verrohrung) kämen wir definitiv über die 15m Rohrlänge.
Wir sind gerade eher so weit, uns die Anlage zu schenken und minimal dezentral (aka "Funktionsräume") zu lüften...
Christoph
vielleicht muss ich mit dieser Frage ja nicht ins Telekom-farbene Forum (und mich dort auch anmelden..).
Wir planen derzeit die (Kern)Sanierung eines 60er-Jahre Hauses und dort steht auch der Einbau einer Kontrollierte-Wohnraumlüftung zur Debatte. Während die Gesamtplanung von einem Architekten gemacht wird, hat sich die Kontrollierte-Wohnraumlüftung-Sache als etwas schwieriger erwiesen. Die HLS-Firma lässt die Kontrollierte-Wohnraumlüftung-Planung von einem Großhändler machen (es geht um eine Pichler LG350) und dort happert es mit der Kommunikation (Öffnungen gehen zum Reihenhaus-Nachbarn etc).
Bevor wir jetzt entweder Firma oder Kontrollierte-Wohnraumlüftung zum Teufel jagen (bzw. den HLSler nur Heizung/Sanitär machen lassen), wollte ich hier einen grundsätzlichen Punkt klären:
- im "Lüftungsplan" (der mit einer Variante einer airPLAN-Software erstellt wurde, die offenbar in diversen Freeware-Varianten kursiert) steht: Maximale Länge zwischen Verteiler und Tellerventil: 15m
Frage: Weiß jemand, ob das so stimmt? Ist das komplett geräteunabhängig? Die Zahl tauchte auch in meinem "Testentwurf" auf, den ich mit oben genannten Programm komplett ohne Geräte gemacht habe)
Bei der eventuell "Altbaukonformen" Aufstellung im DG (und entsprechender Verrohrung) kämen wir definitiv über die 15m Rohrlänge.
Wir sind gerade eher so weit, uns die Anlage zu schenken und minimal dezentral (aka "Funktionsräume") zu lüften...
Christoph
Irgendwo muss ja das Gerät aufgestellt werden, dabei kann es liegen oder hängen. Das nimmt aber mit Ihren Rohren zur Außenwand viel Platz in Anspruch.
Dann führt in jedes Zimmer ein separater Strang, die können rechteckigen Querschnitts sein, so ca. 5cm x 10cm.
Wenn Ihr im zentralen Flur die Decken aufstemmt, sodass dort 4 Stränge Platz haben, dann könntet ihr das Gerät in den Keller an die Decke hängen.
Zumindest sehe ich das Problem der 15 Meter nicht.
Ansonsten dezentral, aber da kenn ich mich nicht aus.
Dann führt in jedes Zimmer ein separater Strang, die können rechteckigen Querschnitts sein, so ca. 5cm x 10cm.
Wenn Ihr im zentralen Flur die Decken aufstemmt, sodass dort 4 Stränge Platz haben, dann könntet ihr das Gerät in den Keller an die Decke hängen.
Zumindest sehe ich das Problem der 15 Meter nicht.
Ansonsten dezentral, aber da kenn ich mich nicht aus.
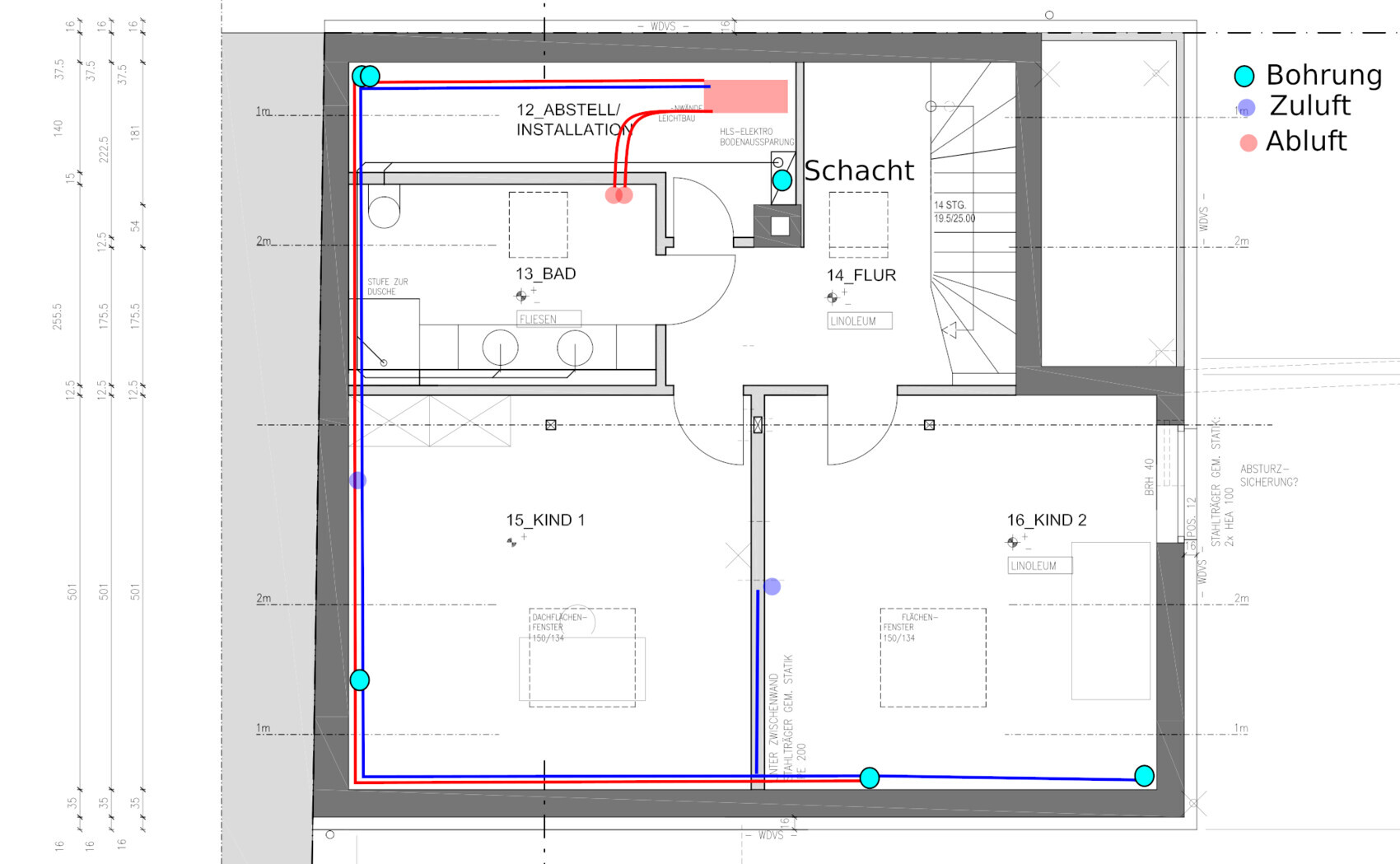
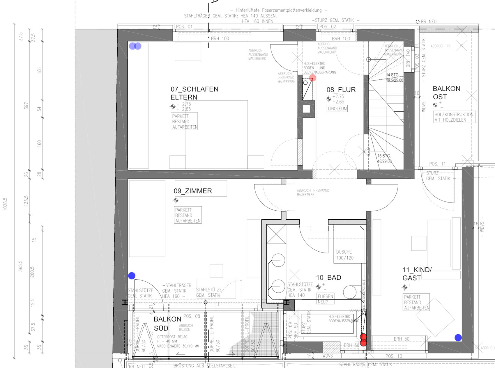
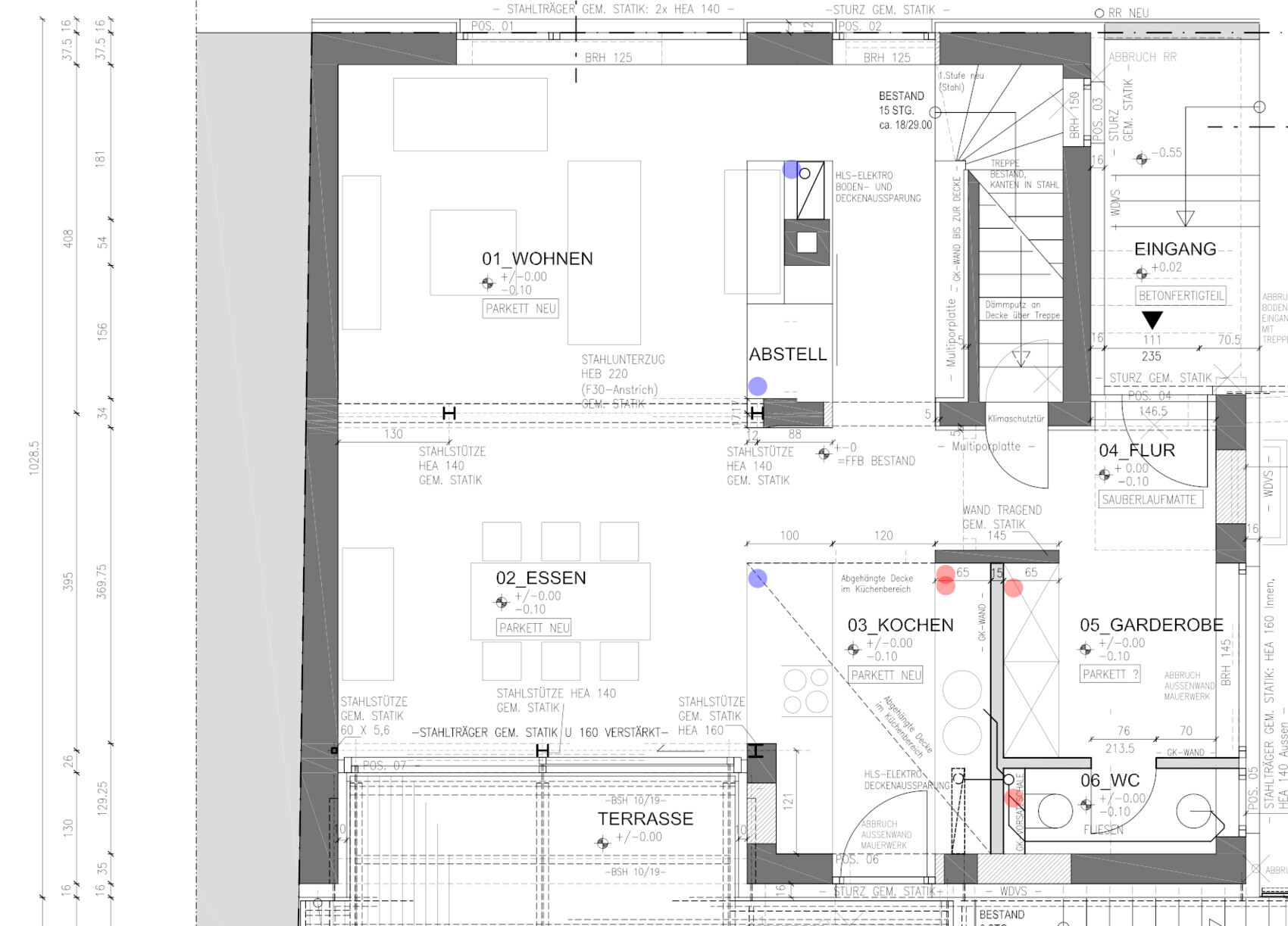
Anbei mal die Grundrisse. Gestrichelte Linien sind in der Regel Überbleibsel der "Abbruch-Linien", ich hab die Zwecks Übersicht mal schnell versucht raus zu löschen.
Im EG gibt es eine abgehängte Decke im Küchenbereich und ein großes Einbaumöbel im Bereich des Installationsschachtes, daher wären das ideale Orte, um die Ventile anzubringen.
Die eingezeichneten Positionen sind noch von keinem Fachplaner (man steinige mich nicht!), sondern anhand der Anzahl / Strangplan von mir versucht zu verteilen.
Wir überlegen jetzt halt, ob das den Aufwand wirklich wert ist, oder ob wir ein paar gezielte Lüfter in Bad/WC machen und den Rest halt "altmodisch"... Wird ein KfW70-Haus, d.h. energetisch können wir uns das ohne weiteres "leisten", ohne irgendwo fördertechnische Probleme zu bekommen.
Von oben (DG) nach unten (EG)



Im EG gibt es eine abgehängte Decke im Küchenbereich und ein großes Einbaumöbel im Bereich des Installationsschachtes, daher wären das ideale Orte, um die Ventile anzubringen.
Die eingezeichneten Positionen sind noch von keinem Fachplaner (man steinige mich nicht!), sondern anhand der Anzahl / Strangplan von mir versucht zu verteilen.
Wir überlegen jetzt halt, ob das den Aufwand wirklich wert ist, oder ob wir ein paar gezielte Lüfter in Bad/WC machen und den Rest halt "altmodisch"... Wird ein KfW70-Haus, d.h. energetisch können wir uns das ohne weiteres "leisten", ohne irgendwo fördertechnische Probleme zu bekommen.
Von oben (DG) nach unten (EG)
Ohne das jetzt allzu lange durchdacht zu haben:
Man könnte plan-unten vom Schornstein einen Schacht schaffen und dort 2 dicke Steigstränge durch die Etagen führen.
EG: Flur vorm Treppenhaus Decke abhängen bis zur Küche, dort die Abluft führen. Frisch-Luft einfach plan-links ins Wohnzimmer blasen
OG: Flur im Treppenhaus Decke abhängen, Abluft plan-links ins Bad führen, Frisch-Luft im Flur in kleinen Verteiler, von dort nach plan-unten ins Kinderzimmer 2 und weiter durch die Wand in Kind 1. In Kind 2 in der Ecke eine Abkastung unter der Decke schaffen. Diese könnte man z.B. über die gesamt Wandhöhe ziehen und unterhalb der verkleideten Leitung ein Einbauregal draus machen, dann siehst gewollt aus ;-)
Edit: Man könnte die Frisch-Luft natürlich auch einfach vom Flur aus über den Türen in die Zimmer pusten ...
DG: Flurbereich Decke abhängen. Abluft plan-unten ins Bad, Frisch-Luft verteiler unter der Flur decke und von dort jeweils über den Türen in die 3 Zimmer.
Gesamtaufwand: 6 Kernbohrungen durch die Decken, 3x die Decke im Flur abhängen, 2x Steigschacht im Flur verkleiden, Rohrleitungen allesamt <5m
Man könnte plan-unten vom Schornstein einen Schacht schaffen und dort 2 dicke Steigstränge durch die Etagen führen.
EG: Flur vorm Treppenhaus Decke abhängen bis zur Küche, dort die Abluft führen. Frisch-Luft einfach plan-links ins Wohnzimmer blasen
OG: Flur im Treppenhaus Decke abhängen, Abluft plan-links ins Bad führen, Frisch-Luft im Flur in kleinen Verteiler, von dort nach plan-unten ins Kinderzimmer 2 und weiter durch die Wand in Kind 1. In Kind 2 in der Ecke eine Abkastung unter der Decke schaffen. Diese könnte man z.B. über die gesamt Wandhöhe ziehen und unterhalb der verkleideten Leitung ein Einbauregal draus machen, dann siehst gewollt aus ;-)
Edit: Man könnte die Frisch-Luft natürlich auch einfach vom Flur aus über den Türen in die Zimmer pusten ...
DG: Flurbereich Decke abhängen. Abluft plan-unten ins Bad, Frisch-Luft verteiler unter der Flur decke und von dort jeweils über den Türen in die 3 Zimmer.
Gesamtaufwand: 6 Kernbohrungen durch die Decken, 3x die Decke im Flur abhängen, 2x Steigschacht im Flur verkleiden, Rohrleitungen allesamt <5m
Dr Hix schrieb:
Ohne das jetzt allzu lange durchdacht zu haben:
Man könnte plan-unten vom Schornstein einen Schacht schaffen und dort 2 dicke Steigstränge durch die Etagen führen.Vielen Dank für den Beitrag, in die Richtung könnte es vielleicht gehen. Problematisch hier ist leider ein großer Betonunterzug, der den Flur im EG durchschneidet (der Plan ist übrigens genordet, hatte ich vergessen hinzuzeichnen). D.h. vom Kamin im Norden wäre es schwieriger, die Leitungen richtung Küche zu bekommen, ohne die Deckenhöhe im Flur auf ~2.1m runterzubekommen (im Bereich des Sturzes). Wenn ich dem Statiker damit komme, Löcher durchbohren zu wollen, werde ich wegen Verbrechen gegen die Statik eingelocht ;-)
Wir werden das jetzt nochmal mit allen Beteiligten besprechen und eventuell auf die Anlage verzichten. Oder wir finden eine Variante analog zu der von Dr Hix vorgeschlagenen. Ich update hier dann hoffentlich (sofern ich dran denke) für die googlende Zukunft.
Danke!
Ähnliche Themen