D
Deliverer09.05.18 09:21kaho674 schrieb:
Nur so nebenbei gefragt: Woran siehste das, dass die 80 ist? Hätte ich jetzt nicht erkannt. Also 80 fänd ich dann auch zu klein. Könnte man ja sicher relativ problemfrei auf 90 oder 1m vergrößern.Ich habe Kästchen gezählt. Nochmaliges Zählen hat aber tatsächlich 90 cm ergeben. Was mir als Kabine (und in dem Bad) allerdings immer noch zu klein wäre. 90 geht, wenn die andere Seite 120 hat. Oder wenn quadratisch und mit Türen dann 100 cm. Wir werden ja alle nicht schlanker... Ist aber natürlich so ein Luxus-Ding und sollte nur ne Anregung sein. Es gibt auch Leute, die duschen freiwillig in Badewannen, nur um zweimal im Jahr dann ein Vollbad nehmen zu können...
C
chand198609.05.18 09:56Also mir gefällt die Situation im EG nicht wirklich. Es fehlt m.M. nach Schrankfläche im Flur, Wohn/-Ess/Küche insgesamt zu klein, dafür Gast/Büro etwas groß.
Ich würde - ohne große OP - folgende Änderung vorschlagen, die etwas mehr Fläche im Flur schafft ( die Türen können gerne umplatziert werden, das habe ich nur schnell hingemalt ). Die Küche kriegt eine bessere Form und bessere Lage, Gast wird etwas kleiner und länglicher ( dadurch aber besser möblierbar, analog zur Küche ).

Ich würde - ohne große OP - folgende Änderung vorschlagen, die etwas mehr Fläche im Flur schafft ( die Türen können gerne umplatziert werden, das habe ich nur schnell hingemalt ). Die Küche kriegt eine bessere Form und bessere Lage, Gast wird etwas kleiner und länglicher ( dadurch aber besser möblierbar, analog zur Küche ).
chand1986 schrieb:
Es fehlt m.M. nach Schrankfläche im Flur, Wohn/-Ess/Küche ypg schrieb:
Ich sehe grosse Räume, aber keine Abstellmöglichkeiten für Saisongarderobe, Dekokisten und all den „Müll“ (Farbe, Werkzeug, Bastelkrams) den man eben nicht im DB (wenn man den überhaupt hat) lagern will, weil zu unbequem, immer heranzukommen. Der TE schreibt, es sollen wenige Schränke kommen und zusätzlich eine Garage.Ich gehe daher davon aus, dass wenig Kram im Wohnzimmer unterzubringen ist und der "Müll" evtl. in der Garage noch Platz findet. Man fragt sich natürlich, wie man mit 2 Kindern wenig Kram haben kann.
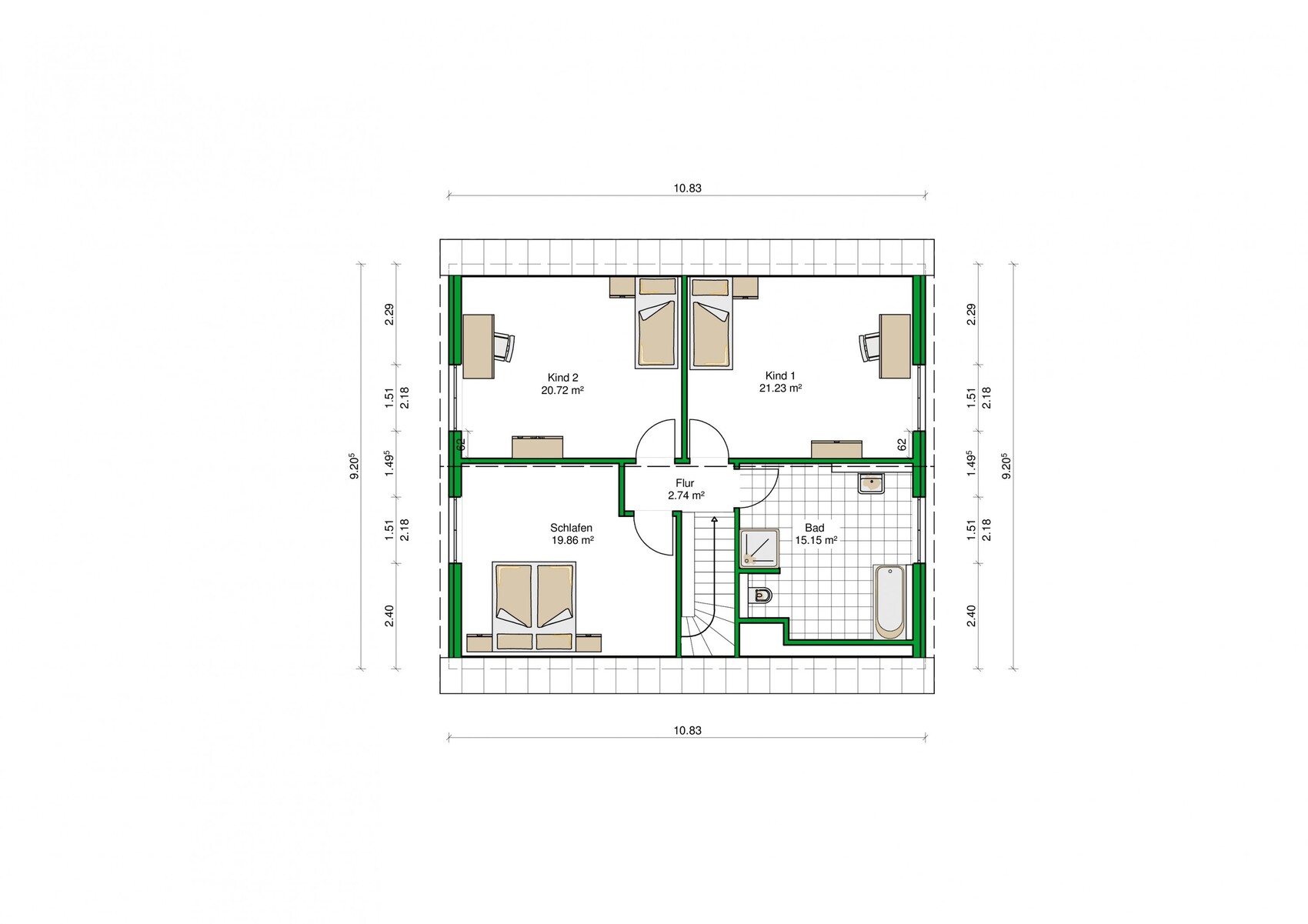
Ein zusätzlicher Hauswirtschaftsraum oben fände ich zwar auch nett, allerdings hängt das doch stark vom Kniestock ab. Wenn er nahe 1m oder gar darunter liegt, werden die Kinderzimmers wieder ziemlich klein.
Ah, seh ich da den Kniestock bei 1m im Schnitt?
@all, vergessen, die Küche soll so nicht eingebaut werden, das sind nur mal "Platzhalter".
Die wird voraussichtlich U-Förmig aber da planen wir aktuell noch..
@kaho674 , ops, Bilder als JPG hast du schon gemacht. danke
Ja Schrank für die Nische in der Diele dafür haben wir bereits, daher auch die Breite/Länge.
Das Gästezimmer, ist nicht wirklich für Gäste ( Es sei denn OMA kommt mal zu Besuch )
Es wird anfangs ein "Stauraum/BüroAllzweck Zimmer" später aber mal im Alter wollen wir das ebenerdig als Schlafzimmer nutzen.
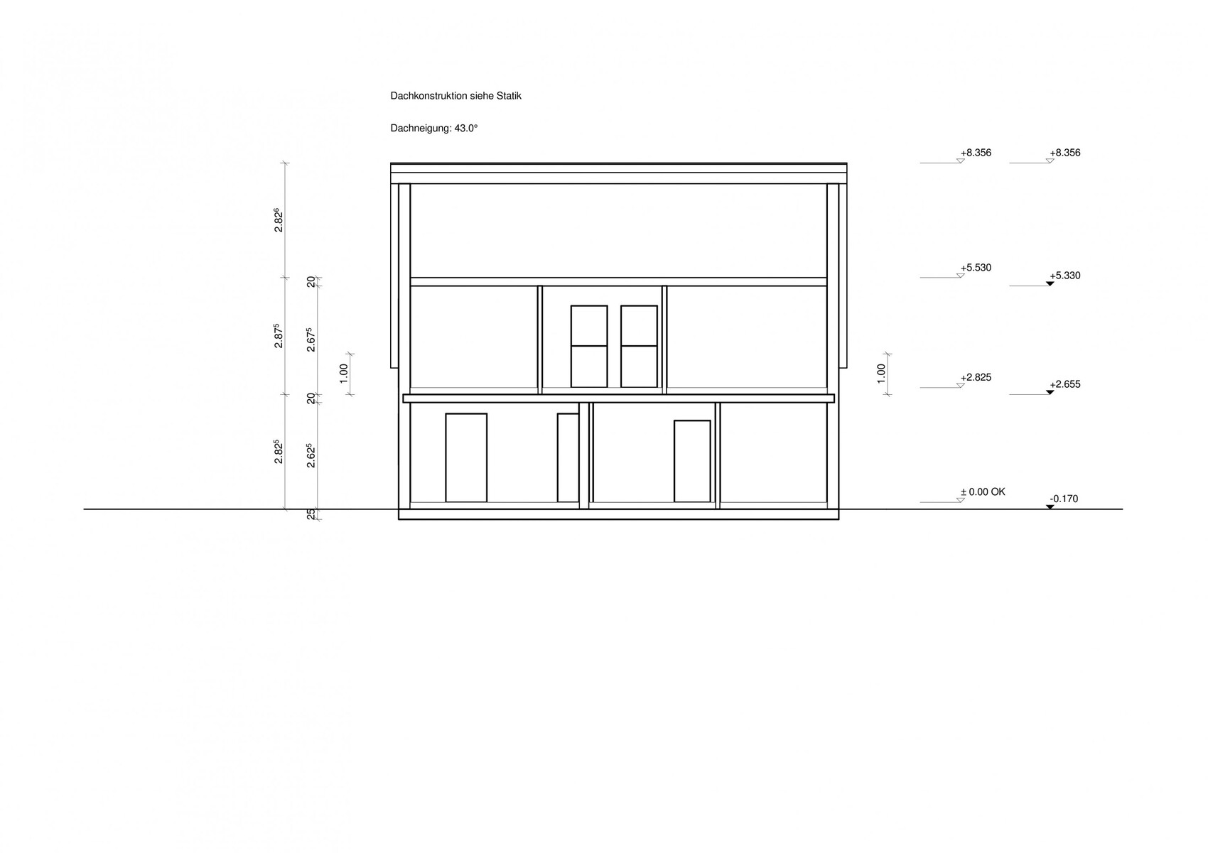
@kbt09 , anderes Querschnittbild kann ich erst die Tage posten, meine Datei ist kaputt..
@Deliverer , Hehe, rechts haste. danke Das Badezimmer war ein Vorschlag des Architekten und benötigt auch noch Aufmerksamkeit, unten haben wir 1,20x1 und das würden wir oben auch gerne haben aber dazu später mehr
@ypg , Trempel/Kniestock ist 1m., welchen Lageplan meinst du genau ?
Ja Stauraum haben wir auch viel drüber nachgedacht..gerade im OG.Hatten auch ein, zwei Varianten mit kleinem Abstellraum. Nach vielem hin und her ist das dann so geblieben , zugunsten der Größe der Kinderzimmer (und den Schränken dort ). Werden wir aber noch mal in uns gehen !
@chand1986 , Danke für deine Idee! Die Aufteilung der Räume haben wir wegen der Ausrichtung vom Haus und dem Sonnenverlauf gemacht. Und wenn wir später da schlafen, wollten wir das nicht direkt neben dem Eingang.
Viel mehr Stellfläche in der Diele sehe ich in deinem Entwurf im EG auch nicht, die 1.50x42 sind für Schuhe , Mützen , Helme, Krempel gedacht. Garderobe kommt an den Haken bei uns. Vielleicht hab ich was vergessen, was "parkt" ihr sonst noch so im Flur ?
Top, danke für die konstruktiven Rückmeldungen !
Wegen Stauraum, schauen wir noch mal deutlicher hin und überlegen noch mal, was wir wo verstauen wollen.
Wir sind mal durch die ganze Wohnung und Keller gegangen , haben aufgeschrieben, was wo hin kommt. Das würde theoretisch schon locker passen.( Es sei denn es kommt noch so viel, was ich aktuell nicht weis, weil ich noch kein Haus habe..) Dann gebt mir doch nochn Tipp was Ihr so wo verstaut
Küche stell ich dann gesondert ein. Zusammen mit Ess Tisch. Zu klein erscheint sie mir so gar nicht, werde ich aber mal nach der korrekten Möblierung sehen.
Wir werden dann das Bad im OG angehen ( hoffe ich bekomme heute noch die Planung mit der 2m Linie zugeschickt ) und das werde ich hier auch gesondert einstellen. Waschmaschine sollte da rein , weil oben halt die Wäsche anfällt.. aber Wozu hat eine starke Frau Ihren Mann an der Seite *fg*, evtl. bleibt die im Hauswirtschaftsraum erst mal.
@kaho674 , ja genau , einen Meter
Und auch unsere Kiddies haben mächtig viel Krams ( gemessen an dem 10qm Zimmer aktuell für beide ), das wird bestimmt überall rumflacken aber hoffentlich auch in deren Zimmern dann.
Eine Garage kommt noch und weil wir aktuell noch in der nähe von München wohnen ( was mal eben 600km entfernt vom Haus ist ) werden wir auch ziemlich viel "ausmisten" bevor es los geht.
Die wird voraussichtlich U-Förmig aber da planen wir aktuell noch..
@kaho674 , ops, Bilder als JPG hast du schon gemacht. danke
Ja Schrank für die Nische in der Diele dafür haben wir bereits, daher auch die Breite/Länge.
Das Gästezimmer, ist nicht wirklich für Gäste ( Es sei denn OMA kommt mal zu Besuch )
Es wird anfangs ein "Stauraum/BüroAllzweck Zimmer" später aber mal im Alter wollen wir das ebenerdig als Schlafzimmer nutzen.
@kbt09 , anderes Querschnittbild kann ich erst die Tage posten, meine Datei ist kaputt..
@Deliverer , Hehe, rechts haste. danke Das Badezimmer war ein Vorschlag des Architekten und benötigt auch noch Aufmerksamkeit, unten haben wir 1,20x1 und das würden wir oben auch gerne haben aber dazu später mehr
@ypg , Trempel/Kniestock ist 1m., welchen Lageplan meinst du genau ?
Ja Stauraum haben wir auch viel drüber nachgedacht..gerade im OG.Hatten auch ein, zwei Varianten mit kleinem Abstellraum. Nach vielem hin und her ist das dann so geblieben , zugunsten der Größe der Kinderzimmer (und den Schränken dort ). Werden wir aber noch mal in uns gehen !
@chand1986 , Danke für deine Idee! Die Aufteilung der Räume haben wir wegen der Ausrichtung vom Haus und dem Sonnenverlauf gemacht. Und wenn wir später da schlafen, wollten wir das nicht direkt neben dem Eingang.
Viel mehr Stellfläche in der Diele sehe ich in deinem Entwurf im EG auch nicht, die 1.50x42 sind für Schuhe , Mützen , Helme, Krempel gedacht. Garderobe kommt an den Haken bei uns. Vielleicht hab ich was vergessen, was "parkt" ihr sonst noch so im Flur ?
Top, danke für die konstruktiven Rückmeldungen !
Wegen Stauraum, schauen wir noch mal deutlicher hin und überlegen noch mal, was wir wo verstauen wollen.
Wir sind mal durch die ganze Wohnung und Keller gegangen , haben aufgeschrieben, was wo hin kommt. Das würde theoretisch schon locker passen.( Es sei denn es kommt noch so viel, was ich aktuell nicht weis, weil ich noch kein Haus habe..) Dann gebt mir doch nochn Tipp was Ihr so wo verstaut
Küche stell ich dann gesondert ein. Zusammen mit Ess Tisch. Zu klein erscheint sie mir so gar nicht, werde ich aber mal nach der korrekten Möblierung sehen.
Wir werden dann das Bad im OG angehen ( hoffe ich bekomme heute noch die Planung mit der 2m Linie zugeschickt ) und das werde ich hier auch gesondert einstellen. Waschmaschine sollte da rein , weil oben halt die Wäsche anfällt.. aber Wozu hat eine starke Frau Ihren Mann an der Seite *fg*, evtl. bleibt die im Hauswirtschaftsraum erst mal.
@kaho674 , ja genau , einen Meter
Und auch unsere Kiddies haben mächtig viel Krams ( gemessen an dem 10qm Zimmer aktuell für beide ), das wird bestimmt überall rumflacken aber hoffentlich auch in deren Zimmern dann.
Eine Garage kommt noch und weil wir aktuell noch in der nähe von München wohnen ( was mal eben 600km entfernt vom Haus ist ) werden wir auch ziemlich viel "ausmisten" bevor es los geht.
Also mit Kram im Flur (abgesehen von Jacke, Mütze und Co) kann ich helfen:
Schuhe, Schuhe, Schuhe, Schuhputzmittel, Schuhanzieher, Schirm mit Ablage, Schlüsselablage, Handyablage mit Ladekabel, Zeitungsablage, Taschenablage inkl. Aktenkoffer, Spiegel, Stifte + Notizzettel und Kalender. Das wär erst mal das Gröbste. Dabei hab ich keine Kinder....
Schuhe, Schuhe, Schuhe, Schuhputzmittel, Schuhanzieher, Schirm mit Ablage, Schlüsselablage, Handyablage mit Ladekabel, Zeitungsablage, Taschenablage inkl. Aktenkoffer, Spiegel, Stifte + Notizzettel und Kalender. Das wär erst mal das Gröbste. Dabei hab ich keine Kinder....
Ähnliche Themen