Hallo liebe Experten
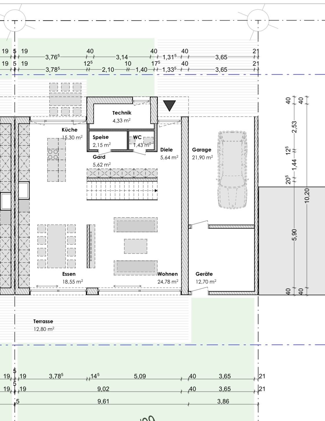
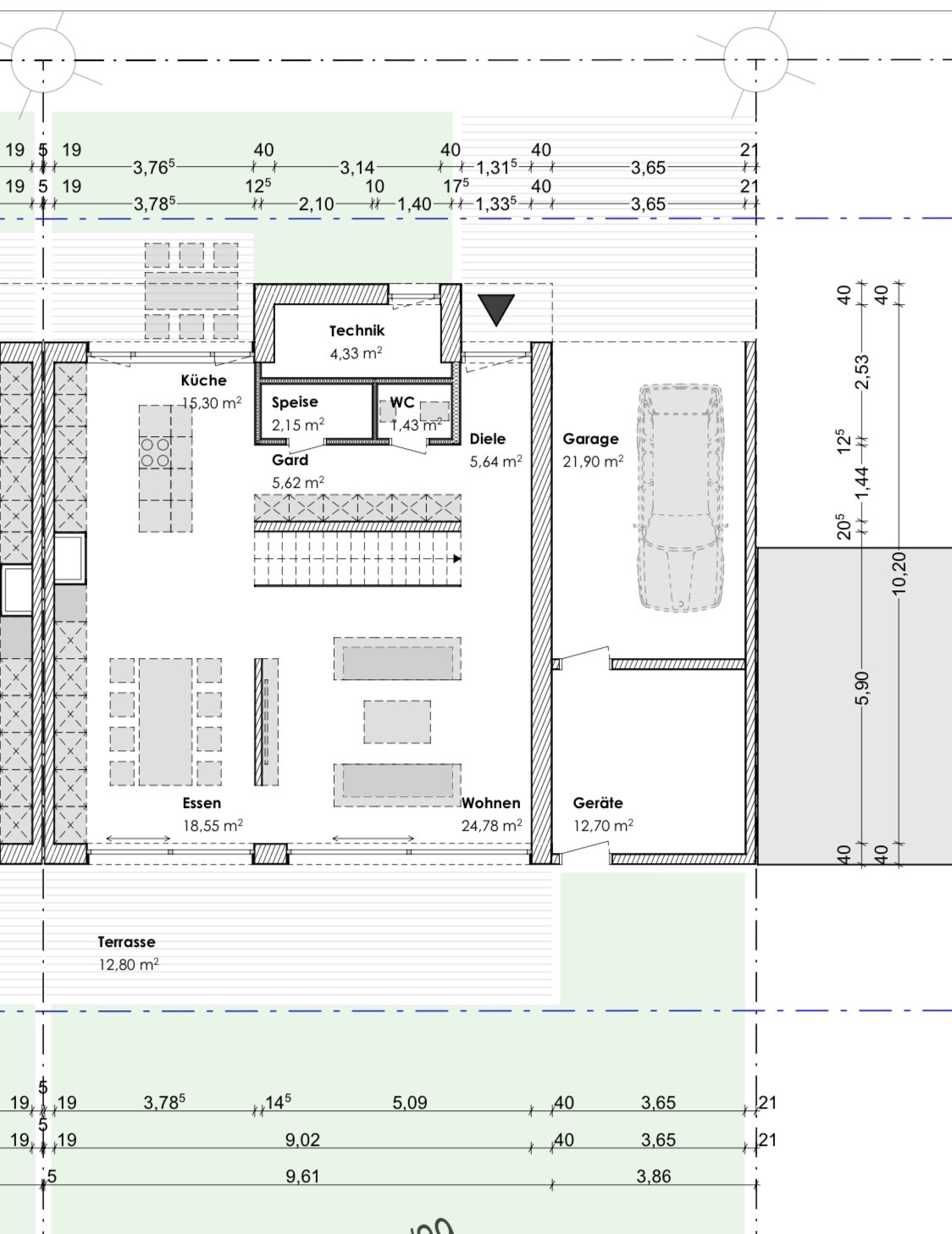
Wir planen gerade ein Doppelhaushälfte, dabei soll das OG mit ca. 1m über dem EG überhängen an zwei Stellen. Da wir eh schon so eine offenes EG haben, mache ich mir sogen wegen den kosten im Rohbau. Anbei die Zeichnungen. Rote Markierung ist da wo der Überhang ist.
Hat jemand schon ähnliche Erfahrungen gemacht oder kennst sich hierbei aus??
Danke für eure Hilfe im voraus.


Wir planen gerade ein Doppelhaushälfte, dabei soll das OG mit ca. 1m über dem EG überhängen an zwei Stellen. Da wir eh schon so eine offenes EG haben, mache ich mir sogen wegen den kosten im Rohbau. Anbei die Zeichnungen. Rote Markierung ist da wo der Überhang ist.
Hat jemand schon ähnliche Erfahrungen gemacht oder kennst sich hierbei aus??
Danke für eure Hilfe im voraus.
Bautechnisch kein Problem. Wir haben das OG auch mit Überhang 1m auf 8,8m Breite.
Ist aber bei euch deutlich "günstiger", da ihr an einer Seite eine Auflage habt. Nämlich über dem Technikraum. Extrakosten werden im niedrigen 4-stelligen Bereich sein + die zusätzliche Fläche im OG. Kosten sind für Armierung, Dämmung und mehr Fläche zum Verputzen/ Steichen.
Ist aber bei euch deutlich "günstiger", da ihr an einer Seite eine Auflage habt. Nämlich über dem Technikraum. Extrakosten werden im niedrigen 4-stelligen Bereich sein + die zusätzliche Fläche im OG. Kosten sind für Armierung, Dämmung und mehr Fläche zum Verputzen/ Steichen.
Ähnliche Themen