Hausbau - Ratgeber
Bauherrenhilfe
- Bauherrenhilfe vor Vertragsabschluss
-- Warum einen unabhängigen Baubetreuer?
-- Vertragsgrundlagen
-- Bausumme
-- Zahlungsplan zur Kostenkontrolle
-- Pflichten des Bauherren vor Vertragsabschluss
-- Unterlagen beim Hausbau vor Vertragsabschluss
- Bauherrenhilfe nach Vertragsabschluss
-- Bauantrag bei Behörden
-- Bau-Genehmigungsverfahren bei Baubehörden
-- Bauspezifische Versicherungen
-- Bauzeitenplan
-- Baubeginn - die Letzten Pflichten der Bauherrschaft
- Bauherrenhilfe während der Bauzeit
- Gewährleistungsansprüche
- Bauabnahme
Baufinanzierung
- Baufinanzierung - Allgemeine Fragen
- Kreditarten
- Kredit-Konditionen
- Bausparen
- Staatliche Förderungen
- Verkehrswert
- Haushaltsrechnung und Bonität
Hausbau Planung
- Haustypen
- Hausbau Vorbereitungsarbeiten
- Das Baugrundstück
- Baugrund beim Hausbau
- Baurecht
- Gebäudeschutz
- Erdarbeiten und Wasserhaltung
- Stützmauern
- Einfriedung
- Untergeschoss
- Kanalisation
- Tragende Elemente
- Nichttragende Innenwände
- Fundation / Fundament
- Deckenkonstruktionen
- Dächer
- Kaminanlagen
- Treppen Rampen Leitern
- Dachbeläge und Spengler
- Fenster
- Sonnen und Wetterschutz
- Aussenputze
- Einbauten, Küchen, Türen
- Bodenbeläge und Unterlagsböden
- Parkett
- Gips, Wand, Decke
Haustechnik und Energie
- Heiztechnik
- Lüftung und Klimatechnik
- Sanitärtechnik
- Elektrotechnik
- Erneuerbare Energie
Whirlpools / Jacuzzi
Hausbau Magazin
- Baufinanzierung trotz Krise?
- Das Blockhaus
- Moderne Dämmstoffe im Vergleich
- Erker Vor- und Nachteile
- Glasflächen beim Hausbau
- Günstig ein Haus Bauen
- Mediterraner Hausbaustil
- Mehrgenerationenhaus
- Moderne Architektur
- Gartengestaltung leicht gemacht
- Traditioneller Ziegelbau
- Villa als höchster Traum
- Im Eigenheim Ruhestand geniessen
- Altbau sanieren
- Kauf einer Holzgarage
- Immobilienmakler
- Arbeitshandschuhe für den Winter
- Zuhause verschönern
- Outdoor-Plissees
- Schlafzimmer planen
- Terrassenüberdachung
- Wohngebäudeversicherung
- Zaunarten und Eigenschaften
- Hauseingang gestalten
- Der perfekte Grundriss
- Sparsamer heizen im Altbau
- Einfamilienhaus smart finanzieren
- Planung einer PV-Anlage
- Neues Haus
- Immobilienfinanzierung
- Installation einer Photovoltaikanlage
- Asbest erkennen und entfernen
- Gartenpflege im Frühling – worauf achten
- Sauna im Fokus - Wellness zuhause
- Erfolgreich vermieten
- Die perfekte Winterbekleidung
- Das Niedrigenergiehaus
- Der April und seine Stürme
- Architektonische Vielfalt
- Ökologisch und nachhaltig bauen
- Das perfekte Schlafzimmer
- Nachhaltige Energieversorgung
- Zukunftsorientiert bauen
- Nachhaltigkeit beim Hausbau
- Tiny Houses
- Wärmepumpen als nachhaltige Heizvariante
- Maßgeschneiderten Kleiderschrank
- Der richtige Baukredit
- Ratgeber für erfolgreichen Hausbau
- Haus als Altersvorsorge
Do-it-yourself Anleitungen
- Verlegeanleitung für Bodenbeläge und Parkett
- Bodenbeläge und Parkett reinigen und pflegen
- Malerarbeiten am Haus
- Garten Tipps
- Umzug und Reinigung

ᐅ Neubaugebiet Gefälle auf Grundstück

Erstellt am: 02.09.16 07:12
P
Painkiller
P
Painkiller
02.09.16 07:12
Hallo zusammen,

gestern war ich mal wieder auf unserem Grundstück und habe geschaut wie es mit den Erschließungsarbeiten voran geht.

Es wurden nun die Randsteine der Straße gesetzt und somit lässt sich auch deren Höhe ganz gut abschätzen.

Wir hatten vor dem Grundstückskauf bei der Gemeinde nachgefragt wie es mit Gefälle aussieht und die Aussage bekommen das über das Gesamte Gebiet etwa 70cm Höhenunterschied wären.

Nun sieht es aber so aus als ob am Ende doch ein ganz ordentlicher Höhenunterschied vorhanden ist. Gibt es denn irgendwelche Unterlagen aus denen der Höhenunterschied am Ende der Erschließungsarbeiten hervor geht?

Grüße
J
Jochen104
02.09.16 08:08
Hallo!

Normalerweise sollte das in den Plänen der Gemeinde eingezeichnet sein.

Am besten rufst du mal beim Tiefbauamt der Gemeinde an, und fragst, ob die dir entsprechende Unterlagen bereitstellen können.
D
Doc.Schnaggls
02.09.16 08:15
Hallo,

es sollte auf jeden Fall einen Plan geben, in dem die Höhenlinien eingezeichnet sind.

Wenn diese auf dem Lageplan zum Bebauungsplan nicht ersichtlich sind, sollten sie zumindest auf den Plänen für die Wasserver- und Entsorgung eingezeichnet sein.

Ich empfehle daher mal direkt bei den zuständigen Stellen der Stadt-/ Gemeindeverwaltung anzufragen.

Grüße,

Dirk
P
Painkiller
02.09.16 09:02
Höhenlinien war das richtige Stichwort

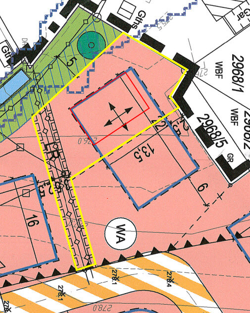
Habe mal einen Ausschnitt aus dem Lageplan angehängt, demnach dürften wir auf unserem Grundstück etwa 2m tiefer sein als die Straße
Aber wir sollten den Höhenunterschied durch die Zufahrt recht gut ausgleichen können

Lageplan eines Grundstücks mit farblich markierten Parzellen und Baukörperumrissen.
D
DG
02.09.16 09:37
Die 70cm beziehen sich womöglich auf das oberste und unterste Straßenniveau!?

Spielt letztlich auch keine Rolle. Wenn die Baustraße incl. Randsteinen liegt, kann man sich daran orientieren. Dein Grundstück liegt dann tatsächlich bis zu 2,5m (planoben) tiefer, allerdings schließt Du auch nicht direkt an das Straßenniveau an, sondern an den kleinen Stichweg.

Viel wichtiger ist hier die Frage, wie hoch der Stichweg liegt und was Dein Nachbar planunten vorhat? Hebt er sein Grundstück an, fängt er zu Deiner Seite ab und wie und wohin entwässert er sein Oberflächenwasser?

MfG
Dirk Grafe
P
Painkiller
02.09.16 09:47
Ich weiß nicht auf was die 70cm bezogen haben. Aber wie du schon sagst spielt die Aussage keine Rolle mehr.

Da der Stichweg unser Privatweg ist können wir damit eigentlich machen was wir wollen. Daher der Gedanke über die 15m den Höhenunterschied auszugleichen. Laut Bauamt ist der höherliegende für eine entsprechende Absicherung zuständig. Die Entwässerung ist über eine Zisterne vorgeschrieben mit einem kontrollierten Ablauf in das Grundwasser.

Da der Bauleitplaner wohl auch schon eine Anfrage des Architekten unserer Nachbarn diesbezüglich hatte werde ich da wohl mal Kontakt aufnehmen.
höhenunterschiedgrundstückerschließungsarbeitenhöhenlinienlageplanstraßenniveau