ᐅ Neubau Einfamilienhaus Zeichnungen
Erstellt am: 26.01.15 22:27
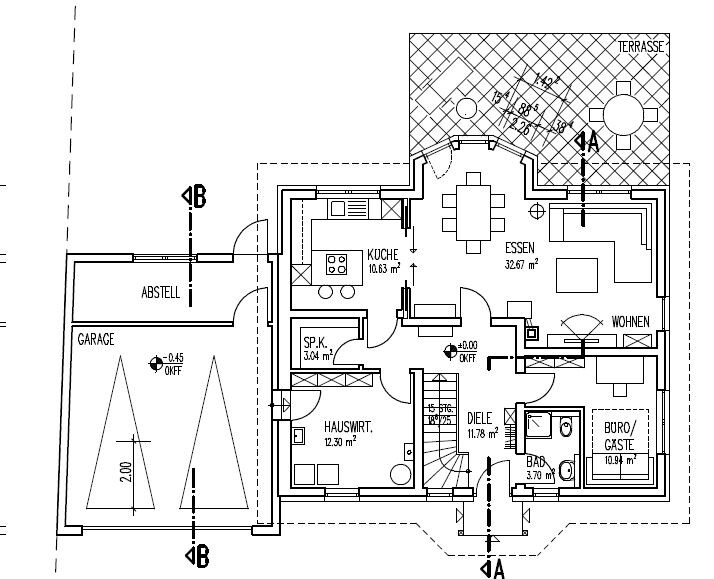
Hallo Hausbau-Freunde,
wärt ihr so lieb und würdet euch mal unsere Grundrisse und Ansichten anschauen, ob irgendwas euch auffällt, was vielleicht noch optimaler gemacht werden könnte? Haben wir etwas übersehen oder ähnliches?
Wir sind nämlich soweit fertig und würden die Zeichnung so freigeben.
Ach so, bei der einen Ansicht von vorne sieht man in rot die einzige Änderung die wir noch haben, dass das Dach als Überstand durchgezogen wird und keine Schräge gemacht wird, sondern gerade..






wärt ihr so lieb und würdet euch mal unsere Grundrisse und Ansichten anschauen, ob irgendwas euch auffällt, was vielleicht noch optimaler gemacht werden könnte? Haben wir etwas übersehen oder ähnliches?
Wir sind nämlich soweit fertig und würden die Zeichnung so freigeben.
Ach so, bei der einen Ansicht von vorne sieht man in rot die einzige Änderung die wir noch haben, dass das Dach als Überstand durchgezogen wird und keine Schräge gemacht wird, sondern gerade..
Maße wären interessant.. wie breit ist die Ankleide - macht das überhaupt Sinn? Wäre nicht ein schrank evtl. sinniger? Das Gästezimmer wird merkwürdig wirken.
Ansonsten: Bad ist im Verhältnis m.E. zu große (größer als alles...) , Treppenaufgang nicht so großartig, Balkon nutzt man glaub ich eher Selten, Galerie muss auch nicht... zieht das lieber durch und macht die Kinderzimmer größer, habt ihr mehr von.
Ansonsten: Bad ist im Verhältnis m.E. zu große (größer als alles...) , Treppenaufgang nicht so großartig, Balkon nutzt man glaub ich eher Selten, Galerie muss auch nicht... zieht das lieber durch und macht die Kinderzimmer größer, habt ihr mehr von.
Manu1976 schrieb:
Auf den ersten Blick sind es nur Kleinigkeiten die ich ändern würde.
Im OG würde ich die Türen von den Kinderzimmer ein Stück von der Wand weg schieben, so dass hinter der Tür noch ca. 65cm bleiben für einen Schrank.
Im EG gefällt mir die Lösung Bad/Büro nicht. Würde das L-Anhängsel beim Büro weglassen und dem Flur zukommen lassen. Den Eingang ins Bad würde ich dann von oben machen - also da wo jetzt das L-Anhängsel vom Büro/Gast ist. Das hat den Vorteil, dass der Gast nicht um die Ecke laufen muss und man nicht erst die Haustür zu machen muss um ins oder aus dem Bad zu kommen. Die beiden eingezeichneten Schränke könntest du auch im Flur stehen haben.
Baut ihr mit Keller? Wenn nicht, dann würde ich den Platz unter der Treppe noch als Abstellraum nutzen.
Ansonsten gefällt mir der Grundriss ganz gut. Besonders die Ankleidelösung gefällt mir.Das mit den Türen in den Kinderzimmern werden wir definitiv noch mal überdenken, danke für den Tipp!
Zu dem Büro muss ich sagen, der Raum wir überwiegend als Büro genutzt und wir brauchen dort den Platz für Ordner-Schränke, die nicht im Flur stehen sollten. Wir werden dort ein Schlafsofa stehen haben, auf dem Gäste übernachten können. Das passiert aber eher selten, hauptsächlich ist es ein Büro. Die Vorstellung dass der Flur noch größer wird gefällt mir nicht.
Wir haben keinen Keller. Meinst du man sollte die Treppe unten als geschlossenen Raum machen? Ich habe etwas Angst dass die Flur-Ecke bei der Speisekammer dann so eine dunkle Ecke wird weil weniger Licht hinfällt!
ypg schrieb:
Habt ihr in der Küche genug Hochschränke geplant? Mit der Garderobe könnte es eng werden, und wer etwas forumserfahren ist, der weiß, dass die Treppe an der Eingangstür kritisiert wird. Ansonsten sehe ich keine Fehler oder dergleichen
Gruß Yvonne
Was ist denn mit der Treppe an der Eingangstür? Wegen Schmutz? Hochschränke in der Küche kann man überall machen, außer natürlich beim Fenster Manu1976 schrieb:
Hmm, vielleicht eine Idee: könnt ihr nicht die Treppe spiegeln? Also auf die andere Seite vom Flur machen. Das hätte den Vorteil, dass das Büro größer werden würde und der Hauswirtschaftsraum kleiner. Hätte halt den Nachteil, dass man dann über den Flur zum WC laufen muss (aus dem Gästezimmer) aber das müsst ihr jetzt ja auch. Und das Wohnzimmer müsstet ihr wahrscheinlich nen Tick verkleinern, damit da noch ne Tür reinpasst. Mit dem OG sollte das auch passen.Den Hauswirtschaftsraum haben wir mit Absicht so groß geplant, da wir keinen Keller haben und uns wichtig ist dass wir dort ordentlich Platz haben Alles in allem ein solider Grundriss. Aber ein paar Denkanstöße was ich persönlich ändern würde...
EG
- Treppe im Schmutzbereich an der Haustür (viel diskutiert hier ). Würde die Laufrichtung ändern und den Abstellraum oben streichen, dafür einen unter der Treppe machen.
- zu kleine Garderobe für 4 Personen (kann ich aus Erfahrung sagen ) Finde die Idee von Manu gut, das Gästezimmer zu verkleinern und den Flur zu vergrößern + WC Zugang von der Stirnseite.
- Schade dass das Wohnzimmer, die Couch, keinen Bezug nach draußen hat.
- Erker mit so vielen Ecken trifft nicht meinen Geschmack. Rechteckig würde mir persönlich besser gefallen, aber ist eben Geschmacksache.
- die Küche sieht etwas eng aus mit der Theke. Und von der Kochinsel schaut man auf eine Wand. Nach draußen wäre schöner (z.B. die Kinder bei Spielen beobachten). Die würde ich anders planen.
- wie alt sind die Kinder? Wo kommt Kinderwagen, Autoschale usw. hin?
OG
- Kinderzimmer Türen wie Manu sagt versetzen.
- wie breit ist die Ankleide?
EG
- Treppe im Schmutzbereich an der Haustür (viel diskutiert hier ). Würde die Laufrichtung ändern und den Abstellraum oben streichen, dafür einen unter der Treppe machen.
- zu kleine Garderobe für 4 Personen (kann ich aus Erfahrung sagen ) Finde die Idee von Manu gut, das Gästezimmer zu verkleinern und den Flur zu vergrößern + WC Zugang von der Stirnseite.
- Schade dass das Wohnzimmer, die Couch, keinen Bezug nach draußen hat.
- Erker mit so vielen Ecken trifft nicht meinen Geschmack. Rechteckig würde mir persönlich besser gefallen, aber ist eben Geschmacksache.
- die Küche sieht etwas eng aus mit der Theke. Und von der Kochinsel schaut man auf eine Wand. Nach draußen wäre schöner (z.B. die Kinder bei Spielen beobachten). Die würde ich anders planen.
- wie alt sind die Kinder? Wo kommt Kinderwagen, Autoschale usw. hin?
OG
- Kinderzimmer Türen wie Manu sagt versetzen.
- wie breit ist die Ankleide?
Die Ankleide ist 1,50m breit und 3,95m lang.
Die Planung der Küche ist noch nicht richtig begonnen, das ist bisher nur ein Beispiel Wir werden wohl gar keine Kochinsel machen.
Kinderwagen, Autoschale usw. kommt in den großen Hauswirtschaftsraum
Wir hatten auch schon überlegt die Kinderzimmer größer zu machen. Aber wir möchten gern dass die komplette Familie einen Zugang zum Balkon hat. Auch wenn er nicht alltäglich und oft benutzt wird. Wir wollen auch nicht dass der Flur dann so ein kleines dunkles Loch oben wird. Und die "Galerie" vor dem Balkon können die Kinder auch gemeinsam dann nutzen Sind die Kinderzimmer denn so klein?
Die Planung der Küche ist noch nicht richtig begonnen, das ist bisher nur ein Beispiel Wir werden wohl gar keine Kochinsel machen.
Kinderwagen, Autoschale usw. kommt in den großen Hauswirtschaftsraum
Wir hatten auch schon überlegt die Kinderzimmer größer zu machen. Aber wir möchten gern dass die komplette Familie einen Zugang zum Balkon hat. Auch wenn er nicht alltäglich und oft benutzt wird. Wir wollen auch nicht dass der Flur dann so ein kleines dunkles Loch oben wird. Und die "Galerie" vor dem Balkon können die Kinder auch gemeinsam dann nutzen Sind die Kinderzimmer denn so klein?
Ähnliche Themen