Guten Abend,
ich möchte Ende des Jahres eine Doppelhaushälfte bauen lassen.
Es wird ein Haus mit Flachdach, EG + OG, ca. 130 qm, vorerst ohne Garage, kein Keller, Bauweise Stein auf Stein, komplett bezugsfertig. Küche, HAR und Bäder werden gefliest. Sonst überall Laminat.
Die Warmwasseraufbereitung wie auch die Beheizung des Gebäudes, erfolgt über eine Luft- Wasser-Wärmepumpe.
Grundstück lediglich ca. 275 qm groß. Garten grenzt aber direkt an eine große Wiese (nicht bebaubar) mit Blick auf einen Wald.
Ich ziehe erst einmal alleine ein. Kinder möchte ich im Moment nicht. Evtl. zieht meine Freundin später dazu.
Kind 1 soll mein Schlafzimmer werden. Kind 2 das Büro. Die beiden Räume befinden sich genau auf der Nordseite.
Eigentlich ist der Grundriss schon mit dem Bauträger besprochen, aber Änderungen sind noch möglich. Ich möchte auf jeden Fall noch den Türanschlag vom Raum "Schlafen" von rechts nach links ändern lassen.
Der Raum "Schlafen" hat noch keine Funktion. Evtl. Büro für Freundin, "Gästezimmer" oder Abstellraum.
Bebauungsplan/Einschränkungen
Größe des Grundstücks : 275
Hang : nein
Anzahl Stellplatz : 2
Dachform : Flachdach
Stilrichtung : Flachdachhaus
Hausentwurf
Von wem stammt die Planung:
-Plan des Bauträgers
Ich freue mich über jegliche Meinungen bzw. Kritiken.
Vielen Dank

ich möchte Ende des Jahres eine Doppelhaushälfte bauen lassen.
Es wird ein Haus mit Flachdach, EG + OG, ca. 130 qm, vorerst ohne Garage, kein Keller, Bauweise Stein auf Stein, komplett bezugsfertig. Küche, HAR und Bäder werden gefliest. Sonst überall Laminat.
Die Warmwasseraufbereitung wie auch die Beheizung des Gebäudes, erfolgt über eine Luft- Wasser-Wärmepumpe.
Grundstück lediglich ca. 275 qm groß. Garten grenzt aber direkt an eine große Wiese (nicht bebaubar) mit Blick auf einen Wald.
Ich ziehe erst einmal alleine ein. Kinder möchte ich im Moment nicht. Evtl. zieht meine Freundin später dazu.
Kind 1 soll mein Schlafzimmer werden. Kind 2 das Büro. Die beiden Räume befinden sich genau auf der Nordseite.
Eigentlich ist der Grundriss schon mit dem Bauträger besprochen, aber Änderungen sind noch möglich. Ich möchte auf jeden Fall noch den Türanschlag vom Raum "Schlafen" von rechts nach links ändern lassen.
Der Raum "Schlafen" hat noch keine Funktion. Evtl. Büro für Freundin, "Gästezimmer" oder Abstellraum.
Bebauungsplan/Einschränkungen
Größe des Grundstücks : 275
Hang : nein
Anzahl Stellplatz : 2
Dachform : Flachdach
Stilrichtung : Flachdachhaus
Hausentwurf
Von wem stammt die Planung:
-Plan des Bauträgers
Ich freue mich über jegliche Meinungen bzw. Kritiken.
Vielen Dank
Die Treppe ist schon sehr steil. Geht schon die Richtung "Hühnerleiter". Ich würde mir so eine Treppe vorher mal live ansehen und auch begehen, ob dies auch für dich OK ist.
Wo kommt den die Garderobe hin?
Wie immer bei so "nackten" Grundrissen: Zeichne die vorhandenen und gewünschten Möbel ein und vergesse nicht die Verkehrswege. Dann sieht man schnell ob so eine Grundriss funktioniert oder nicht.
Wo kommt den die Garderobe hin?
Wie immer bei so "nackten" Grundrissen: Zeichne die vorhandenen und gewünschten Möbel ein und vergesse nicht die Verkehrswege. Dann sieht man schnell ob so eine Grundriss funktioniert oder nicht.
hanse987 schrieb:
Wo kommt den die Garderobe hin?Das denke ich ja auch jedes Mal. Aber allein als Single ist das, denke ich, nicht so ein Problem. Zur Not plant man an der langen Küchenwand Einbauschränke, wo die Regenjacke rein kann.Bei uns wurden schicke Reihenhäuser gebaut, noch sind sie in der Vermarktung. Geplant als Quartier, so nennt man das jetzt, wo ein Spielplatz mit Bänken drumherum zentraler Treffpunkt sein soll.
Hier mal ein Beispiel eines Hauses mit 148qm auf drei Ebenen für eine vierköpfige Familie
Rebell33 schrieb:
Könntest du das erläutern: "die äußerst merkwürdig gezeichneten Eckdetails der Hauswand an der gemeinsamen Seite"
Was ist daran so merkwürdig?Nicht "merkwürdig" sondern nett gesagt "kaum zu glauben" ist, daß die Wände hier quasi "auf Gehrung verleimt" würden. Ich wüßte gar nicht, was ich rauchen müßte, um das zu glauben. Wer Ahnung vom Bauen hat, wird derlei nicht zeichnen - wer ohne solche Ahnung einen Automaten programmiert, es so darzustellen, der schon. In der Realität auf der Baustelle wird da etwas nicht zusammenpassen (oder von Immerso-Bauarbeitern einfach "gemacht" werden, ohne sich um den Plan zu scheren). Am Ende sehe ich jemanden Dir vorschlagen, etwas anderes abzunehmen als wofür Du bezahlt hast.https://www.instagram.com/11antgmxde/
https://www.linkedin.com/company/bauen-jetzt/
11ant schrieb:
Ich wüßte gar nicht, was ich rauchen müßte, um das zu glauben. Wer Ahnung vom Bauen hat, wird derlei nicht zeichnen - wer ohne solche Ahnung einen Automaten programmiert, es so darzustellen, der scAch komm, es ist keine Ausführungsplanung, sondern nur eine Vorstellung für den Bauherren. Überbewerte doch nicht immer diese Entwurfsskizzen.ypg schrieb:
Wenn Du in der Küche mehrere Hochschränke planst, dann achte darauf, dass seitlich der Fenster keine 60/65cm vorhanden sind. Das funktioniert also nicht. Entweder also ändern oder die Tatsache in der Küchenplanung berücksichtigen.
Was ist mit der Badeinrichtung? Das Fenster über der Wanne ist natürlich blöd.Daran hatte auch schon gedacht. Anbei ein Foto (alles andere als maßstabsgetreu) von der Küchenplanung
und ein ein Bild vom Badfenster (ist die Nachbarseite, aber ist bei mir gleich).
hanse987 schrieb:
Die Treppe ist schon sehr steil. Geht schon die Richtung "Hühnerleiter". Ich würde mir so eine Treppe vorher mal live ansehen und auch begehen, ob dies auch für dich OK ist.
Wo kommt den die Garderobe hin?
Wie immer bei so "nackten" Grundrissen: Zeichne die vorhandenen und gewünschten Möbel ein und vergesse nicht die Verkehrswege. Dann sieht man schnell ob so eine Grundriss funktioniert oder nicht.Die Treppe hatte ich mal auf Fotos gesehen. Kam mir nicht wie Bergsteigen vor.
Ich wollte eine schmale Garderobe an die Treppenwand stellen. Das reicht für meine drei Jacke und fünf Schuhe.
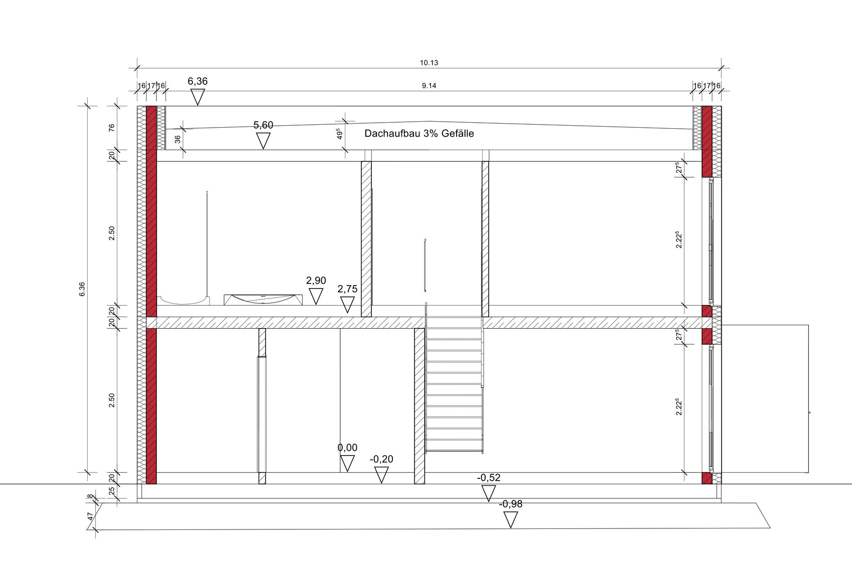
Anbei noch ein Bild vom Querschnitt.
Ähnliche Themen