ᐅ Neubau Badplanung 10,8m² - Wie optimal nutzen?
Erstellt am: 20.11.16 10:04
Hi, sind gerade unter anderem am planen unseres Bades, wie wir es optimal nutzen könnten.
Theoretisch ist noch alles flexibel, also auch die andere Räume nebenan.
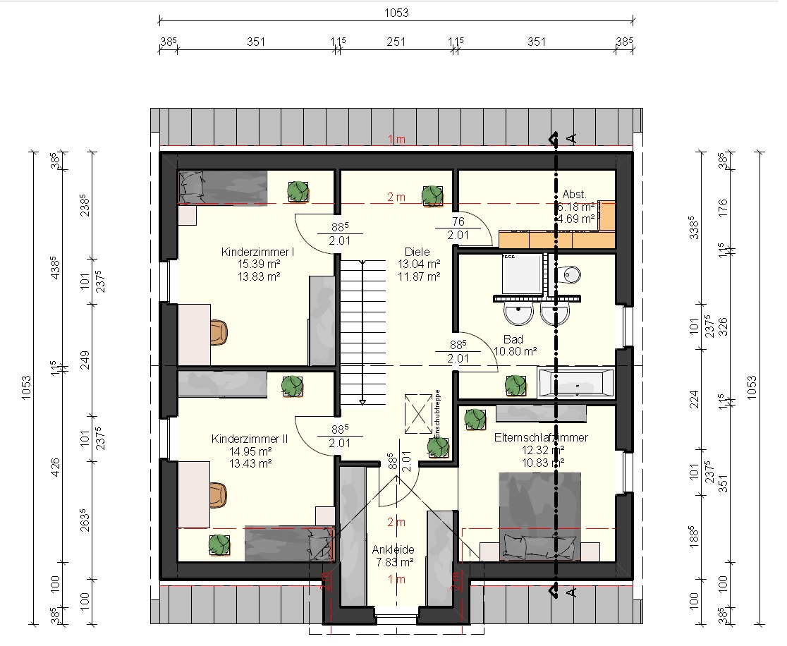
Aktuell ist unser Bad 351x326 ergibt 11,44m² .
Laut Architektenplan aber nur 10,80m² ?? Warum? Wird da die Vorwand und die T-Wand abgezogen?
Haben unser Bad jetzt mal mit dem Villeroy & Boch Planer gemacht.
Möbel haben wir irgendwelche eingesetzt, shoppen werden wir da wahrscheinlich bei IKEA.
Auch das Doppelwaschbecken wahrscheinlich von Ikea (Kostenersparnis)
Finde es irgendwie bisschen eng und bedrückend oder?
Badewanne hat ne Größe von 180x80.
Vielen Dank für eure Unterstützung


Theoretisch ist noch alles flexibel, also auch die andere Räume nebenan.
Aktuell ist unser Bad 351x326 ergibt 11,44m² .
Laut Architektenplan aber nur 10,80m² ?? Warum? Wird da die Vorwand und die T-Wand abgezogen?
Haben unser Bad jetzt mal mit dem Villeroy & Boch Planer gemacht.
Möbel haben wir irgendwelche eingesetzt, shoppen werden wir da wahrscheinlich bei IKEA.
Auch das Doppelwaschbecken wahrscheinlich von Ikea (Kostenersparnis)
Finde es irgendwie bisschen eng und bedrückend oder?
Badewanne hat ne Größe von 180x80.
Vielen Dank für eure Unterstützung
Hi, ja es ist eine bodenebene Dusche.
Unten drunter ist der Hauswirtschaftsraum, von daher kein Problem mit der Entwässerung.
Ursprünglich war ne T Wand geplant, jetzt wollen wir ja aber die L Wand. Ist zwar genauso dunkel, aber dafür die Dusche länger.
Wenn wir die Dusche in Richtung Tür offen machen, läuft uns ja aber das Wasser bis zu Tür bzw. unten durch. Nicht wirklich praktisch oder?
Bezüglich Licht in der Dusche, ne gute Lösung parat? Wand sollte schon räumlich bleiben.
Unten drunter ist der Hauswirtschaftsraum, von daher kein Problem mit der Entwässerung.
Ursprünglich war ne T Wand geplant, jetzt wollen wir ja aber die L Wand. Ist zwar genauso dunkel, aber dafür die Dusche länger.
Wenn wir die Dusche in Richtung Tür offen machen, läuft uns ja aber das Wasser bis zu Tür bzw. unten durch. Nicht wirklich praktisch oder?
Bezüglich Licht in der Dusche, ne gute Lösung parat? Wand sollte schon räumlich bleiben.
P
Painkiller21.11.16 12:19Wenn das Wasser Richtung Tür läuft würde ich nochmal mit dem Fliesenleger reden... Eigentlich sollte das Wasser ja in der Rinne landen...
Wand zur Dusche wird wahrscheinlich schon >2m werden von daher wird da nicht viel Tageslicht verfügbar sein. Abhilfe schaffen Deckenspots.
Bei der Lösung von BeHaElJa könnte die Trennwand zur Dusche aus Glas bestehen -> mehr Licht in der Dusche. Insgesamt wirkt die Planung großzügiger.
Dein Plan funktioniert wahrscheinlich auch, hat einfach andere Anforderungen. Ich gehe z.B. in der Regel entweder morgens oder abends duschen von daher mache ich eh meistens Licht an, daher ist es fast egal ob die Dusche nun separate Spots bekommt oder mit dem normalen Bad LIcht beleuchtet wird.
Wand zur Dusche wird wahrscheinlich schon >2m werden von daher wird da nicht viel Tageslicht verfügbar sein. Abhilfe schaffen Deckenspots.
Bei der Lösung von BeHaElJa könnte die Trennwand zur Dusche aus Glas bestehen -> mehr Licht in der Dusche. Insgesamt wirkt die Planung großzügiger.
Dein Plan funktioniert wahrscheinlich auch, hat einfach andere Anforderungen. Ich gehe z.B. in der Regel entweder morgens oder abends duschen von daher mache ich eh meistens Licht an, daher ist es fast egal ob die Dusche nun separate Spots bekommt oder mit dem normalen Bad LIcht beleuchtet wird.
Also bei der Planung die wir angedacht hatten, wäre die duschwand komplett raumhoch. Ist halt wirklich dann in nem Loch.
Bei der Planung mit der offenen Dusche zu Tür mit der glaswand, meinte ich dass ja dann das wasser auch zu Tür spritzt und diese dann nass wird oder?
Ist so ne große glaswand teurer als ne gemauerte/geflieste?
Meine Frau wollte keine, wegen dem putzen.
Bei der Planung mit der offenen Dusche zu Tür mit der glaswand, meinte ich dass ja dann das wasser auch zu Tür spritzt und diese dann nass wird oder?
Ist so ne große glaswand teurer als ne gemauerte/geflieste?
Meine Frau wollte keine, wegen dem putzen.
Ähnliche Themen