ᐅ Möbeleinrichtung im Wohn-/Essbereich - Ideen benötigt
Erstellt am: 24.05.22 13:35
N
neuerbauherr8824.05.22 13:35Hallo zusammen,
wir bauen derzeit ein Doppelhaus und machen uns grade Gedanken über die Einrichtung.
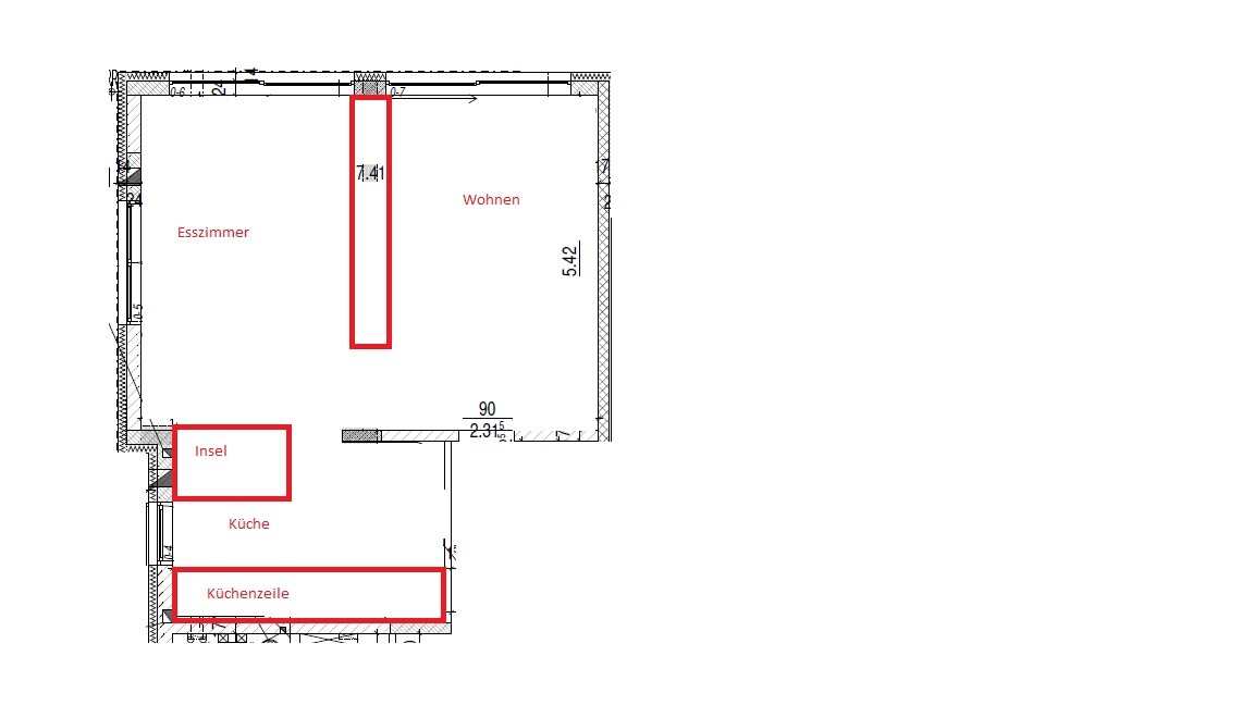
Beigefügt das relevante Zimmer. Wir haben einen großen wohn/ess/Koch Bereich geplant:
Wohn/esszimmer hat 7,41 Breite auf 5,42 Tiefe.
Die Küche ist 13,5 qm
Der rote Balken in der Mitte, wird ein "Raumteiler Lowboard", mit schwenkbarem TV. Das Esszimmer wird von einem 8 Plätze Esstisch befüllt.
Nun sind wir an der Planung des Wohnzimmers: Wie kann man das sinnvoll einrichten, ohne den Weg zur Terrassenschiebetür zu blockieren.
Wir haben 5,42 m Länge. wir dachten evtl. an ein "XXL sofa" mit ca. 3,5m Breite. damit hätten wir unten für die Tür und oben für das Glaselement genug Abstand. Dann könnten wir evtl. noch einen Hocker davor stellen, um eine Liege Fläche zu erhalten. Ein L Sofa oder etwas mit Recanirere erscheint uns schlecht.
Was für Ideen habt ihr?

wir bauen derzeit ein Doppelhaus und machen uns grade Gedanken über die Einrichtung.
Beigefügt das relevante Zimmer. Wir haben einen großen wohn/ess/Koch Bereich geplant:
Wohn/esszimmer hat 7,41 Breite auf 5,42 Tiefe.
Die Küche ist 13,5 qm
Der rote Balken in der Mitte, wird ein "Raumteiler Lowboard", mit schwenkbarem TV. Das Esszimmer wird von einem 8 Plätze Esstisch befüllt.
Nun sind wir an der Planung des Wohnzimmers: Wie kann man das sinnvoll einrichten, ohne den Weg zur Terrassenschiebetür zu blockieren.
Wir haben 5,42 m Länge. wir dachten evtl. an ein "XXL sofa" mit ca. 3,5m Breite. damit hätten wir unten für die Tür und oben für das Glaselement genug Abstand. Dann könnten wir evtl. noch einen Hocker davor stellen, um eine Liege Fläche zu erhalten. Ein L Sofa oder etwas mit Recanirere erscheint uns schlecht.
Was für Ideen habt ihr?
Anzeige
Hallo neuerbauherr88,
schau mal hier: Möbeleinrichtung im Wohn-/Essbereich - Ideen benötigt. Da wird jeder fündig!
schau mal hier: Möbeleinrichtung im Wohn-/Essbereich - Ideen benötigt. Da wird jeder fündig!
neuerbauherr88 schrieb:
Was für Ideen habt ihr?Ist Geschmacksache oder Stil, wie man sich das persönlich vorstellt. Die Planung basiert ja oft auf gewünschte Möblierung - dahingehend wäre die Frage zu spät gefragt.Man möchte meinen, dass DH-Bauer es schwer haben mit ihrem persönlichen Stil: die Einrichtungsfragen reihen sich hier im Forum 😀
Ähnliche Themen