ᐅ Meinungen, Anregungen und Verbesserungsvorschläge zur Planung
Erstellt am: 11.09.14 23:33
F
flexistoneklblb schrieb:
Schiebetüren in die Speisekammer und das Platzproblem ist fast wegTür ist Tür und nimmt Stellfläche weg.
Ich würde den ganzen Eingangsbereich (outdoor, ist ja auch ne kleine dunkle Schleuse) und auch drinnen inkl. Speise und Garderobe ändern.
Größtes Problem ist ja, nicht direkt Wohnräume zu erreichen, sondern diese dunkle Schrankschleuse, die alles abtrennt.
Da muss halt der Architekt drehen und würfeln, was auch immer. Auch wenn das schöne Fenster im Backbereich weg muss - der Zugang ist wichtiger.
Zum Rest sage ich nichts mehr, ausser: ich habe mittlerweile die dritte Immobilie. Ich wäre froh gewesen, wenn mich Leute darauf hingewiesen hätten, dass sich Gewohnheiten ändern und manche Räume von anderen in der neuen Immo abgelöst werden (hier: Dachterrasse/Garten).
Grundsätzlich geht man gern eben aus der Tür an die Luft, und zwar durch die Tür, die am nächsten liegt.
Dachterrassen haben nun mal ein grosses Problempotential - wenn man gern Geld rausschleudert, wat solls, gell 😉? Zumindest kann man dann zeigen: meine Dachterrassen!
Man kann natürlich auch die Hinkefüsse im Entwurf insofern verändern, dass man erweitert (noch eine Toilette, noch nen Meter größer).
Putzen wird wohl hier auch kein Problem darstellen?
F
flexistone17.09.14 23:25Hallo miteinander,
anbei die überarbeiteten Entwürfe des EGs und OGs.
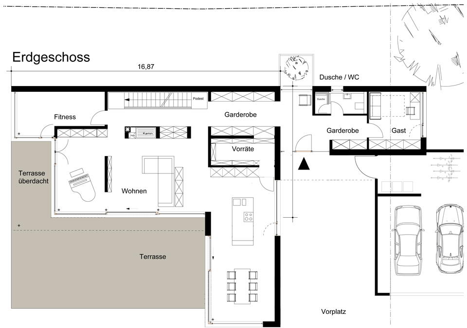
Wir haben versucht, die Eingangssituation zu entschärfen und freundlicher zu machen. Wir haben den Fahrrad- und Müllraum hinter die Garage geschoben und somit einen breiten Eingang geschaffen, der unter Umständen auch mal als Stellplatz für ein drittes Auto dienen kann.
Die Eingangstür wurde erweitert durch ein weiteres Glaselement - auf Kosten eines Garderobenschranks.
Im "Gang" links wurden die Mauerbacken zur Treppe gekürzt, um hier den Weg auch freundlicher, breiter wirken zu lassen.
Die Küchenzeile hinten ist 4,20m breit und hier soll auf der rechten Seite eine "versteckte" Tür zur Speisekammer (ich kann mich nicht mehr genau an das richtige Wort für die Tür erinnern).
Dem Fitnessraum haben wir etwas Platz genommen um hier doch noch etwas Stauraum - oder sollte man besser "Staubraum" sagen - im Wohnzimmer zu haben.
Außerdem wurde die Decke im EG zur Terrasse hin um 0,60m verlängert. Zum einen bewirkt das im Sommer bei hoch stehenden Sonne etwas mehr Beschattung - außerdem werden dadurch die Kinderzimmer wieder auf die ursprünglich geplante Größe vergrößert und gleichzeitig können die einbauschränke im Gang bleiben.
Die Ankleide und das Schlafzimmer haben wir auch nochmal umgeplant.
Ich weiß, nicht alle finden einen Zugang zum großen Bad übers Schlafzimmer gut. Aber wenn wir die Kinder baden, dann schläft in der Regel niemand im Schlafzimmer. Außerdem werden die Kinder auch größer und können bei Bedarf auch mal selbst in die Wanne gehen. Und dann auch durch das Schlafzimmer gehen.
Die Einrichtung - sprich Schränke etc. sind vorerst mal symbolhaft zu sehen und sollen keine endgültige Moblierung darstellen.
Was meint ihr?

anbei die überarbeiteten Entwürfe des EGs und OGs.
Wir haben versucht, die Eingangssituation zu entschärfen und freundlicher zu machen. Wir haben den Fahrrad- und Müllraum hinter die Garage geschoben und somit einen breiten Eingang geschaffen, der unter Umständen auch mal als Stellplatz für ein drittes Auto dienen kann.
Die Eingangstür wurde erweitert durch ein weiteres Glaselement - auf Kosten eines Garderobenschranks.
Im "Gang" links wurden die Mauerbacken zur Treppe gekürzt, um hier den Weg auch freundlicher, breiter wirken zu lassen.
Die Küchenzeile hinten ist 4,20m breit und hier soll auf der rechten Seite eine "versteckte" Tür zur Speisekammer (ich kann mich nicht mehr genau an das richtige Wort für die Tür erinnern).
Dem Fitnessraum haben wir etwas Platz genommen um hier doch noch etwas Stauraum - oder sollte man besser "Staubraum" sagen - im Wohnzimmer zu haben.
Außerdem wurde die Decke im EG zur Terrasse hin um 0,60m verlängert. Zum einen bewirkt das im Sommer bei hoch stehenden Sonne etwas mehr Beschattung - außerdem werden dadurch die Kinderzimmer wieder auf die ursprünglich geplante Größe vergrößert und gleichzeitig können die einbauschränke im Gang bleiben.
Die Ankleide und das Schlafzimmer haben wir auch nochmal umgeplant.
Ich weiß, nicht alle finden einen Zugang zum großen Bad übers Schlafzimmer gut. Aber wenn wir die Kinder baden, dann schläft in der Regel niemand im Schlafzimmer. Außerdem werden die Kinder auch größer und können bei Bedarf auch mal selbst in die Wanne gehen. Und dann auch durch das Schlafzimmer gehen.
Die Einrichtung - sprich Schränke etc. sind vorerst mal symbolhaft zu sehen und sollen keine endgültige Moblierung darstellen.
Was meint ihr?
Hast Du etwas überlesen?
Den Gang durch die schreckliche Garderobenschleuse muss man immer noch... um nach 330 Grad (vom Eingang aus gesehen) mal mit den Einkaufstüten Pause einlegen zu können.
Man verdeutliche: Du gehst erst mal im Kreis, um anzukommen (Küche, Mittelpunkt des Geschehens)
Kaffeemaschine + geöffnete Getränkeflaschen haben immer noch keinen Platz.
Die Kinderzimmer sind schlauchiger, dafür dürfen sie sich immer noch im Flur ihre Garderobe zusammensuchen. Mit 16 kommen sie um 12 aus der Disse und gehen erstmal an ihren schlafenden Eltern vorbei zum Baden 😀
Dafür ist Stauraum (Einbauschränke) für geheime Besuchern genug da, die abwarten müssen, dass die Schleuse Rtg Ausgang frei wird 😉
Den Gang durch die schreckliche Garderobenschleuse muss man immer noch... um nach 330 Grad (vom Eingang aus gesehen) mal mit den Einkaufstüten Pause einlegen zu können.
Man verdeutliche: Du gehst erst mal im Kreis, um anzukommen (Küche, Mittelpunkt des Geschehens)
Kaffeemaschine + geöffnete Getränkeflaschen haben immer noch keinen Platz.
Die Kinderzimmer sind schlauchiger, dafür dürfen sie sich immer noch im Flur ihre Garderobe zusammensuchen. Mit 16 kommen sie um 12 aus der Disse und gehen erstmal an ihren schlafenden Eltern vorbei zum Baden 😀
Dafür ist Stauraum (Einbauschränke) für geheime Besuchern genug da, die abwarten müssen, dass die Schleuse Rtg Ausgang frei wird 😉
Hach Ja.
Die Schlafzimmersituation gefällt mir jetzt viel besser als vorher.
Auch das vorm Haus mehr Platz ist, finde ich gut.
ABER! Du kannst dein Eingangsbereich auch komplett aus Glas machen, es bringt dir NIX, NULL, im Schleusenbereich der Garderobe. Licht hat die Angewohnheit nicht um die Ecke zu gehen und schon gar nicht um 90 Grad. Du belichtest damit nur etwa das vordere Drittel der Garderobe, egal wieviel Glas du dem Eingang zuschusterst. Um in der Garderobe tagsüber ohne Kunstlicht auszukommen, musst du da ein Fenster einbauen. Mein Vorschlag wäre auf einer Seite deine geliebten Einbauschränke und auf der anderen Seite niedrigere Schränke mit einem hochgesetzten schmalen Lichtband. So hast du immer noch genug Stauraum, aber auch Licht.
Anderer Vorschlag, verschiebe dieses Glaselement auf der Rückseite des Eingangsbereich in Richtung Garderobe und teile die Garderobe auf: 2 Schränke rechts, 1 Schrank links von dem Glaselement. Das bringt dir 1. Licht und 2. du hast viel mehr von diesem schönen Glaselement, denn das siehst du dann nicht nur, wenn du auf Toilette gehst oder die Haustür rein kommst, sondern auch aus dem Wohnzimmerbereich aus.
Im Wohnbereich hast du nur Platz für Schränke geschaffen. Im Küchenbereich sicher sehr sinnvoll, aber da wo das Klavier steht, bringt dir mehr Platz nichts - außer noch mehr Stauraum.
Irgendwie habe ich das Gefühl, du wohnst in einem Schrank. Dein ganzes Haus besteht irgendwie nur aus Schränken und Stauraum. Das ist schade, sehr schade. Du könntest aus diesem Haus so viel rausholen, wenn du nur auf diese ganzen (Einbau-)Schränke verzichten könntest.
Die Schlafzimmersituation gefällt mir jetzt viel besser als vorher.
Auch das vorm Haus mehr Platz ist, finde ich gut.
ABER! Du kannst dein Eingangsbereich auch komplett aus Glas machen, es bringt dir NIX, NULL, im Schleusenbereich der Garderobe. Licht hat die Angewohnheit nicht um die Ecke zu gehen und schon gar nicht um 90 Grad. Du belichtest damit nur etwa das vordere Drittel der Garderobe, egal wieviel Glas du dem Eingang zuschusterst. Um in der Garderobe tagsüber ohne Kunstlicht auszukommen, musst du da ein Fenster einbauen. Mein Vorschlag wäre auf einer Seite deine geliebten Einbauschränke und auf der anderen Seite niedrigere Schränke mit einem hochgesetzten schmalen Lichtband. So hast du immer noch genug Stauraum, aber auch Licht.
Anderer Vorschlag, verschiebe dieses Glaselement auf der Rückseite des Eingangsbereich in Richtung Garderobe und teile die Garderobe auf: 2 Schränke rechts, 1 Schrank links von dem Glaselement. Das bringt dir 1. Licht und 2. du hast viel mehr von diesem schönen Glaselement, denn das siehst du dann nicht nur, wenn du auf Toilette gehst oder die Haustür rein kommst, sondern auch aus dem Wohnzimmerbereich aus.
Im Wohnbereich hast du nur Platz für Schränke geschaffen. Im Küchenbereich sicher sehr sinnvoll, aber da wo das Klavier steht, bringt dir mehr Platz nichts - außer noch mehr Stauraum.
Irgendwie habe ich das Gefühl, du wohnst in einem Schrank. Dein ganzes Haus besteht irgendwie nur aus Schränken und Stauraum. Das ist schade, sehr schade. Du könntest aus diesem Haus so viel rausholen, wenn du nur auf diese ganzen (Einbau-)Schränke verzichten könntest.
Manu1976 schrieb:
... Du könntest aus diesem Haus so viel rausholen, wenn du nur auf diese ganzen (Einbau-)Schränke verzichten könntest.Nein! Ein paar Einbauschränke sind schon sehr nett, ich finde eingeplante Regale neben einem Kamin wirklich lobenswert, ich mag auch Einbauschränke in einem Flur als Garderobe und Türen, die als Einbauschrank getarnt sind (wie hier wohl in der Küche zu den Vorräten), sind der Hammer! <3
Aber es muss passen - und hier sind sie negativ verbaut! Das Haus ist durch zu viele EBS verbaut!
Durch EBS unterstützt man den Purismus, aber hier geht es schon in Richtung Nüchternheit und - ich provoziere mal - zum Messi-Syndrom 😀
Ähnliche Themen