M
Mal Bauen17.09.23 01:38Der selbstgebastelte Grundriss aus dem Eingangspost ist gerade das Best-bemaßte was ich vom Küchenbereich anbieten kann, @evelinoz
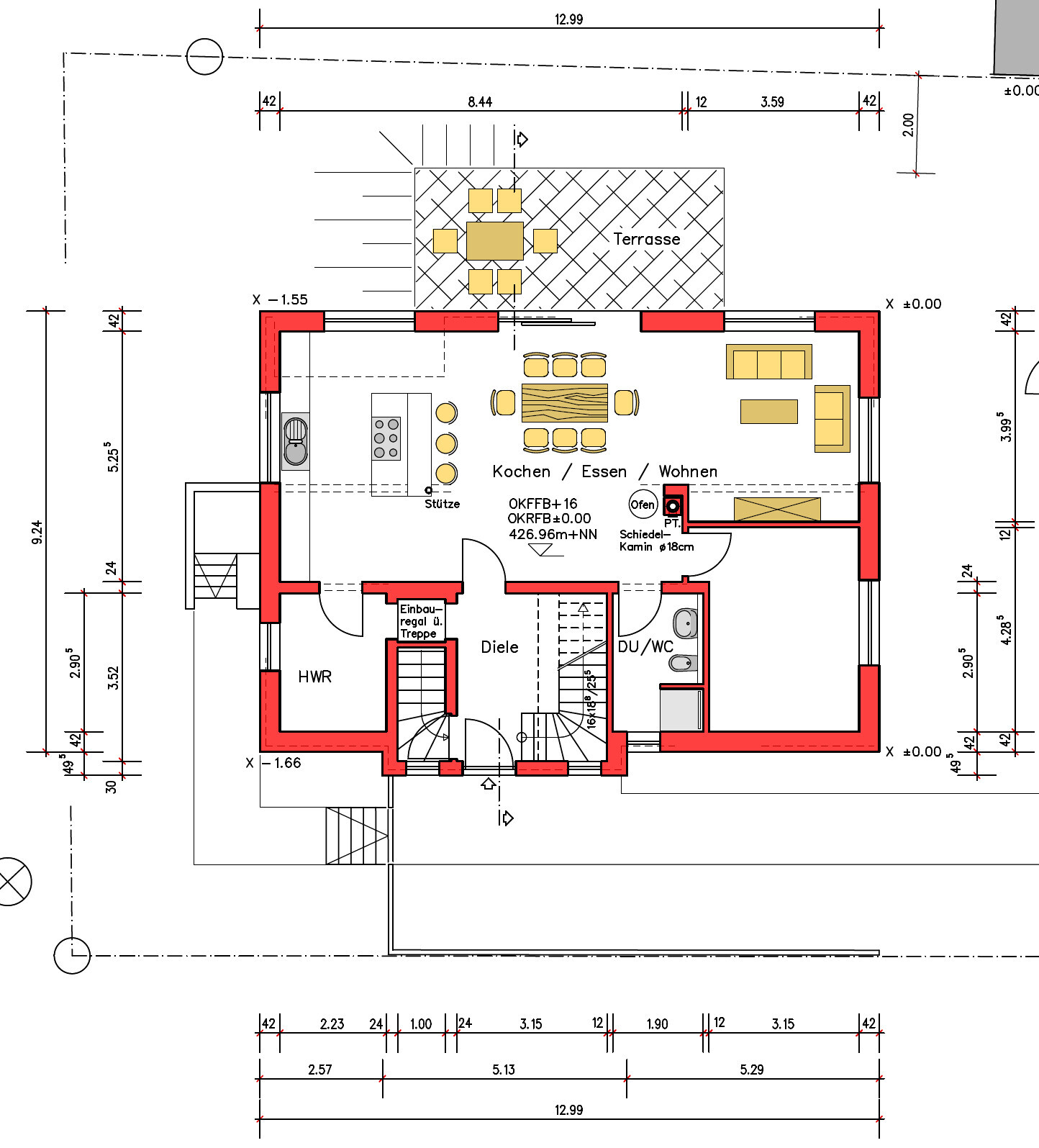
Alternativ anbei der "offizielle" EG-Grundriss mit einigen Maßen.
Ja, das stimmt, das wird ab dieser Höhe hakelig. Die Kaffeemaschine kommt wahrscheinlich neben die Säule.
Das mit dem Geräteschrank kannte ich nicht und wäre tatsächlich eine tolle Sache für unsere Küchenmaschine, die nur sporadisch genutzt wird. Die Positionierung von schrank und Arbeitsplatte muss dann sinnvoll passen. In unserem aktuellen Küchenplan ist die Integration etwas schwieriger.
Darüber hinaus hat uns der heutige 2-stündige Küchenstudiobesuch mit zahlreichen neuen Ideen verdorben. Im Laufe der kommenden Woche erhalten wir ein neues Angebot/neuen Plan...

Alternativ anbei der "offizielle" EG-Grundriss mit einigen Maßen.
ypg schrieb:
Genau, Bohnen auffüllen würde wohl gerade noch gehen, aber Wasserschale leeren, das geht gar nicht.
Ja, das stimmt, das wird ab dieser Höhe hakelig. Die Kaffeemaschine kommt wahrscheinlich neben die Säule.
Das mit dem Geräteschrank kannte ich nicht und wäre tatsächlich eine tolle Sache für unsere Küchenmaschine, die nur sporadisch genutzt wird. Die Positionierung von schrank und Arbeitsplatte muss dann sinnvoll passen. In unserem aktuellen Küchenplan ist die Integration etwas schwieriger.
Darüber hinaus hat uns der heutige 2-stündige Küchenstudiobesuch mit zahlreichen neuen Ideen verdorben. Im Laufe der kommenden Woche erhalten wir ein neues Angebot/neuen Plan...
Mal Bauen schrieb:
Das Sitzfenster ist gedanklich als Gimmick vor allem für die Kinder reingekommen. Und vllt. für die Erwachsenen um Sonntag morgens mit Kaffee mal in die Natur zu schauen.Mal Bauen schrieb:
Die Aussicht nach Osten ist mit Abstand die schönste.irgendwie verstehe ich das layout nicht. Nur die Person, die hin wieder um die Spüle herum was macht, und dann meist auf die Arbeitsplatte guckt, darf die Aussicht genießen. Die, die auf der Fenstersitzreihe nicht, die gucken die schränke an. Dazu soll auf der Inselrückseite nochmal Sitzplätze entstehen?Warum dürfen nur Wenige hin und wieder die Aussicht genießen, während den Mahlzeiten aber niemand?
Warum ist der Hauswirtschaftsraum (Funktion?) genau da, wo es die Aussicht gibt?
M
Mal Bauen17.09.23 17:15Da im Thread mehrere Konzepte diskutiert wurden muss ich nochmal fragen, auf welchen Post du dich genau beziehst?
Der Hauswirtschaftsraum ist baulich durch die Bestandsimmobilie gegeben. Dort war eine kleine Küchenzeile drin. Durch Dämmmaßnahmen wird der Raum dann nochmal ein wenig schrumpfen. Wir sehen im Hauswirtschaftsraum aktuell ein kleines Privatbüro und Stauraum für Putzmittel, Staubsauger, Getränkekisten, etc. vor.
Der Hauswirtschaftsraum ist baulich durch die Bestandsimmobilie gegeben. Dort war eine kleine Küchenzeile drin. Durch Dämmmaßnahmen wird der Raum dann nochmal ein wenig schrumpfen. Wir sehen im Hauswirtschaftsraum aktuell ein kleines Privatbüro und Stauraum für Putzmittel, Staubsauger, Getränkekisten, etc. vor.
im Prinzip das ganze layout von EG und OG. Ich beziehe mich auf den verlinkten Grundrissplan in deinem ersten Post in diesem thread.
Mal ganz abgesehen davon, was aktuell ist oder nicht, und ich verstehen kann, warum ihr abreißen wollt und neu auf den Keller aufbauen, warum aber so. Mit so meine ich, den üblichen Allraum, ein Rechteck, Küche/Tisch/Couch in Reihe wie es eben in jedem 2. Haus gemacht wird. Im anderen F...um, ich kann nicht mehr schreiben, sonst bekomme ich eine Verwarnung, quält sich zZ jemand genau damit herum, eine sinnvolle Küche einzuplanen.
Wenn ich den Bestandsplan nehme, so bietet er besser nutzbare Räume, davon ausgehend, dass es ein 5 Personenhaushalt mal sein wird. Wenn ich einfach nur die Raummaße des Planes nehme, den Erker planlinks als Rechteck erweitere, nur im EG (egal ob machbar oder nicht).

Der Bestandsküchenraum hat laut Plan 240cm Breite, ideal für eine 2-zeilige Küche.

man hätte planlinks, im Osten ein sehr großes Panoramafenster mit der Sitzbank davor über die ganze Breite, davor den Esstisch. In der Küche auch ein breiteres Fenster, auch wegen der Aussicht.

Die Küche geht dann soz ums Eck auf beiden Seiten, rechts Ablage für das, was man zum Frühstück braucht, links Stauraum, niedrig, mittelhoch oder hohe Schränke, eben was man braucht.
Terrassentür wie Bestand, eventuell breiter, die anderen Fenster wie Bestand.
Obwohl nicht Thema dieses threads, es gibt keine ordentliche Garderobe für 5 P, da liegen Schuhe, Taschen, Ranzen, buggies, alles auf dem Boden rum. Aber das wurde sicherlich schon diskutiert. Meine Tochter hatte im alten haus 250m2, alles toll, nur es gab keine vernünftige Garderobe. Chaos am Hauseingang.
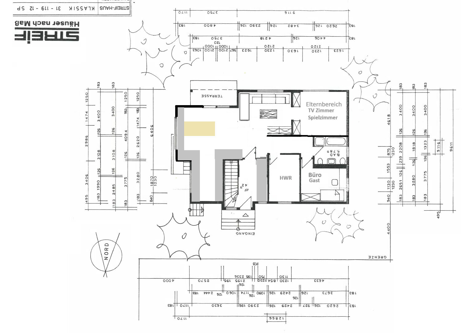
Was ist denn der letzte Stand für's OG?
Es gibt im Bestandsgrundriss einfach mehr Optionen, man kann sich verteilen, sitzt nicht zu fünft immer aufeinander, hört das Küchengeklappere, schreiende Kinder, Spielzeug auf dem Boden verteilt. Küche mit steiniger Arbeitsplatte sind sehr laut, da muss man sich erst daran gewöhnen. Ich möchte nicht jeden Tag das Küchenchaos von der Couch aus sehen. Wir haben ca 70m2 Allraum, etwa so wie in deinem neuen Plan, auch 13m, aber der Raum ist trotzdem nicht rechteckig und durch 2 Teilwände in Bereiche aufgeteilt. Ich kann vorne einen Film schauen, Mann am anderen Ende die Tour de France. Es gibt keine Türen.
Auch würde ich mir sehr genau überlegen, ob ein Kaminofen, egal in welcher Form, heute noch Sinn macht. Ich denke, man hat für die Übergangszeit mehr davon, wenn man für den Allraum eine aircon (Inverter, Splitsystem) einbaut mit reverse cycle. Man hat dann auch was für die heißen Tage. Die Geräte verbrauchen relativ wenig Strom, machen keine Arbeit und keinen Dreck. Wir haben unsere 20 Jahre alte ersetzt und konnten kaum glauben, wie viel besser, günstiger die neu ist (Mitsubishi Heavy Industries).
Zur Küchenplanung, im Sagen wir mal, Spezialforum, kann man sie besser planen, weil es dort wie hier in der Grundrissplanung eine Checkliste gibt. Ohne die ist es nur halbe Sache, weil man zu wenig weiß.
Mal ganz abgesehen davon, was aktuell ist oder nicht, und ich verstehen kann, warum ihr abreißen wollt und neu auf den Keller aufbauen, warum aber so. Mit so meine ich, den üblichen Allraum, ein Rechteck, Küche/Tisch/Couch in Reihe wie es eben in jedem 2. Haus gemacht wird. Im anderen F...um, ich kann nicht mehr schreiben, sonst bekomme ich eine Verwarnung, quält sich zZ jemand genau damit herum, eine sinnvolle Küche einzuplanen.
Wenn ich den Bestandsplan nehme, so bietet er besser nutzbare Räume, davon ausgehend, dass es ein 5 Personenhaushalt mal sein wird. Wenn ich einfach nur die Raummaße des Planes nehme, den Erker planlinks als Rechteck erweitere, nur im EG (egal ob machbar oder nicht).
Der Bestandsküchenraum hat laut Plan 240cm Breite, ideal für eine 2-zeilige Küche.
man hätte planlinks, im Osten ein sehr großes Panoramafenster mit der Sitzbank davor über die ganze Breite, davor den Esstisch. In der Küche auch ein breiteres Fenster, auch wegen der Aussicht.
Die Küche geht dann soz ums Eck auf beiden Seiten, rechts Ablage für das, was man zum Frühstück braucht, links Stauraum, niedrig, mittelhoch oder hohe Schränke, eben was man braucht.
Terrassentür wie Bestand, eventuell breiter, die anderen Fenster wie Bestand.
Obwohl nicht Thema dieses threads, es gibt keine ordentliche Garderobe für 5 P, da liegen Schuhe, Taschen, Ranzen, buggies, alles auf dem Boden rum. Aber das wurde sicherlich schon diskutiert. Meine Tochter hatte im alten haus 250m2, alles toll, nur es gab keine vernünftige Garderobe. Chaos am Hauseingang.
Was ist denn der letzte Stand für's OG?
Es gibt im Bestandsgrundriss einfach mehr Optionen, man kann sich verteilen, sitzt nicht zu fünft immer aufeinander, hört das Küchengeklappere, schreiende Kinder, Spielzeug auf dem Boden verteilt. Küche mit steiniger Arbeitsplatte sind sehr laut, da muss man sich erst daran gewöhnen. Ich möchte nicht jeden Tag das Küchenchaos von der Couch aus sehen. Wir haben ca 70m2 Allraum, etwa so wie in deinem neuen Plan, auch 13m, aber der Raum ist trotzdem nicht rechteckig und durch 2 Teilwände in Bereiche aufgeteilt. Ich kann vorne einen Film schauen, Mann am anderen Ende die Tour de France. Es gibt keine Türen.
Auch würde ich mir sehr genau überlegen, ob ein Kaminofen, egal in welcher Form, heute noch Sinn macht. Ich denke, man hat für die Übergangszeit mehr davon, wenn man für den Allraum eine aircon (Inverter, Splitsystem) einbaut mit reverse cycle. Man hat dann auch was für die heißen Tage. Die Geräte verbrauchen relativ wenig Strom, machen keine Arbeit und keinen Dreck. Wir haben unsere 20 Jahre alte ersetzt und konnten kaum glauben, wie viel besser, günstiger die neu ist (Mitsubishi Heavy Industries).
Zur Küchenplanung, im Sagen wir mal, Spezialforum, kann man sie besser planen, weil es dort wie hier in der Grundrissplanung eine Checkliste gibt. Ohne die ist es nur halbe Sache, weil man zu wenig weiß.
M
Mal Bauen19.09.23 22:23Danke @evelinoz für's Reindenken in unseren Plan und das Aufzeigen von Alternativen.
Auch wenn die Ideen etwas über den Küchenthread hinausgehen, will ich gerne darauf eingehen.
Hätten wir hier mehr Breite, fände ich deine Lösung tatsächlich ansprechend. Die störende Säule beim Esstisch könnte aufgrund der kürzeren Deckenspannweite vielleicht sogar entfallen. Zumindest die Kubatur wollten wir aber jetzt eigentlich nicht mehr grundlegend anfassen.
Auch mit der Zonierung Wohnen / Essküche hast du recht, das ist im rechteckigen Format schwieriger. Wir suchen dort noch nach einer Lösung (Trennwandsystem oder mittels Möbel). Grundsätzlich hoffen wir, dass das Haus über 3-4 Etagen dennoch ausreichend Rückzugsorte für die Familienmitglieder bietet. Ab einem gewissen Alter verschmähen die Kinder dann die Gemeinschaftsräume und sind lieber im eigenen Zimmer.

Auch wenn die Ideen etwas über den Küchenthread hinausgehen, will ich gerne darauf eingehen.
evelinoz schrieb:Wir hatten anfangs genau mit der Idee gespielt, die Küche teilweise in den jetzigen Hauswirtschaftsraum zu planen. Aufgrund dickerer Außenwände (von 18cm auf 42,5cm) und Innenwände (die Treppe zum Keller ist außerhalb der thermischen Hülle und muss gedämmt werden), bleiben leider nur noch 2,10 - 2,20m an lichter Raumbreite übrig. Für eine "Sackgassen"-Küche, bei der man öfter mal aneinander vorbeilaufen muss, schien uns das dann zu eng, weshalb wir den Hauswirtschaftsraum wieder aufgegeben haben.
Der Bestandsküchenraum hat lt Plan 240cm Breite, ideal für eine 2-zeilige Küche.
Hätten wir hier mehr Breite, fände ich deine Lösung tatsächlich ansprechend. Die störende Säule beim Esstisch könnte aufgrund der kürzeren Deckenspannweite vielleicht sogar entfallen. Zumindest die Kubatur wollten wir aber jetzt eigentlich nicht mehr grundlegend anfassen.
Auch mit der Zonierung Wohnen / Essküche hast du recht, das ist im rechteckigen Format schwieriger. Wir suchen dort noch nach einer Lösung (Trennwandsystem oder mittels Möbel). Grundsätzlich hoffen wir, dass das Haus über 3-4 Etagen dennoch ausreichend Rückzugsorte für die Familienmitglieder bietet. Ab einem gewissen Alter verschmähen die Kinder dann die Gemeinschaftsräume und sind lieber im eigenen Zimmer.
evelinoz schrieb:Durch Einbau-Schränke unter der Treppe in's Dachgeschoss für Schuhe, Jacken, etc, sowie die Nutzung des Regals über der Treppe hoffen wir die Platznot hier geringer zu halten, als sie auf dem Grundriss erscheint. Damit verbleiben ca. 6,5m² freie Fläche ohne Schränke (inkl. Verkehrswege).
Obwohl nicht Thema dieses threads, es gibt keine ordentliche Garderobe für 5 P, da liegen Schuhe, Taschen, Ranzen, buggies, alles auf dem Boden rum. Aber das wurde sicherlich schon diskutiert. Meine Tochter hatte im alten haus 250m2, alles toll, nur es gab keine vernünftige Garderobe. Chaos am Hauseingang.
evelinoz schrieb:Der Kamin ist auch bei uns immer mal wieder ein Kandidat für die Streichliste. Da kommt bei uns sicherlich mehr Nostalgie als praktische Notwendigkeit zum Tragen. Das Klimasystem ist interessant (auch preislich), wir haben uns bisher noch nicht näher damit befasst. Nutzt ihr dann auch im Winter den reverse cycle der Klimaanlage zusätzlich zum normalen Heizsystem für mehr Behaglichkeit? Wo habt ihr sie genau platziert?
Auch würde ich mir sehr genau überlegen, ob ein Kaminofen, egal in welcher Form, heute noch Sinn macht. Ich denke, man hat für die Übergangszeit mehr davon, wenn man für den Allraum eine aircon (Inverter, splitsystem) einbaut mit reverse cycle.
evelinoz schrieb:Wenn du möchtest, kannst du mir deine Lösung im Grundriss zeigen? Vielleicht hast du es hier im Forum auch schon vorgestellt? Da wäre ich tatsächlich interessiert.
Wir haben ca 70m2 Allraum, etwa so wie in deinem neuen Plan, auch 13m, aber der Raum ist trotzdem nicht rechteckig und durch 2 Teilwände in Bereiche aufgeteilt.
evelinoz schrieb:Das (und alles weitere Küchenfremde) kann ich dir dann im Grundriss-Thread zeigen.
Was ist denn der letzte Stand für's OG?
Ähnliche Themen