ᐅ Kostenschätzung des Architekten
Erstellt am: 19.01.14 06:34
Hallo zusammen,
wir planen momentan unser Einfamilienhaus mit unserem Architekten. Bisher hatten wir ein gutes Gefühl. Der Architekt kannte zwar im Vorfeld unser Kostenlimit, trotzdem sind wir bei der letzten Schätzung der Kosten noch mal teurer geworden. Was mich aber richtig stutzig macht und mir Sorgen bereitet ist zb das er die Kosten für die Statik incl Wärmeschutz mit 4000€ angibt. Alle Statiker die angefragt wurden rechnen nach HOAI ab und verlangen um die 10t€. Scheinbar kennt der Architekt die Preise nicht.
Was kann man da nur machen. Ich hoffe das der Rest der Kostenschätzung passt, zumindest beim Rohbau. Habe da echt sorge. Was würdet ihr mich? 2 Meinung einholen? Oder Architekt wechseln?
wir planen momentan unser Einfamilienhaus mit unserem Architekten. Bisher hatten wir ein gutes Gefühl. Der Architekt kannte zwar im Vorfeld unser Kostenlimit, trotzdem sind wir bei der letzten Schätzung der Kosten noch mal teurer geworden. Was mich aber richtig stutzig macht und mir Sorgen bereitet ist zb das er die Kosten für die Statik incl Wärmeschutz mit 4000€ angibt. Alle Statiker die angefragt wurden rechnen nach HOAI ab und verlangen um die 10t€. Scheinbar kennt der Architekt die Preise nicht.
Was kann man da nur machen. Ich hoffe das der Rest der Kostenschätzung passt, zumindest beim Rohbau. Habe da echt sorge. Was würdet ihr mich? 2 Meinung einholen? Oder Architekt wechseln?
B
Bauexperte19.01.14 11:37Hallo,
Stelle Deinen Entwurf - um den Namen des Architekten geschwärzt - hier ein, benenne den Bauort und Deine Ausstattungswünsche und ich werde den Entwurf gerne schätzen. Du kannst aber genau so gut mit Deinen Entwürfen 2 oder 3 vergleichbare (vom Angebot und Ausstattung) Anbieter um ein Angebot ersuchen. Dann hast Du ebenfalls einen Anhaltspunkt, ob die Kostenschätzung Deines Architekten stimmig ist, denn die Kosten der Architektur und Statik ist in der Regel in den Angeboten der allermeisten Anbieter bereits berücksichtigt.
Grüße, Bauexperte
KayLinus schrieb:Unabhängig von den Kosten der Statik - es kann sein, daß Dein Architekt schon langjährig mit einem Statiker zusammenarbeitet und es daher Rahmenverträge gibt - habe ich immer wieder festgestellt, daß Architekten mit ihren Kostenschätzungen selten richtig liegen.
wir planen momentan unser Einfamilienhaus mit unserem Architekten. Bisher hatten wir ein gutes Gefühl. Der Architekt kannte zwar im Vorfeld unser Kostenlimit, trotzdem sind wir bei der letzten Schätzung der Kosten noch mal teurer geworden. Was mich aber richtig stutzig macht und mir Sorgen bereitet ist zb das er die Kosten für die Statik incl Wärmeschutz mit 4000€ angibt. Alle Statiker die angefragt wurden rechnen nach HOAI ab und verlangen um die 10t€. Scheinbar kennt der Architekt die Preise nicht.
Was kann man da nur machen. Ich hoffe das der Rest der Kostenschätzung passt, zumindest beim Rohbau. Habe da echt sorge. Was würdet ihr mich? 2 Meinung einholen? Oder Architekt wechseln?
Stelle Deinen Entwurf - um den Namen des Architekten geschwärzt - hier ein, benenne den Bauort und Deine Ausstattungswünsche und ich werde den Entwurf gerne schätzen. Du kannst aber genau so gut mit Deinen Entwürfen 2 oder 3 vergleichbare (vom Angebot und Ausstattung) Anbieter um ein Angebot ersuchen. Dann hast Du ebenfalls einen Anhaltspunkt, ob die Kostenschätzung Deines Architekten stimmig ist, denn die Kosten der Architektur und Statik ist in der Regel in den Angeboten der allermeisten Anbieter bereits berücksichtigt.
Grüße, Bauexperte
Hallo,
Inzwischen bekomme ich von vielen Architekt´s Nachfragen zum Energieeinsparverordnung/Kfw Nachweis, weil´s die Statiker nicht mehr zum Low Budget Tarif machen wollen. Verständlich da die Anforderungen und Haftungsbedingungen inzwischen erheblich gestiegen sind!
v.g.
NB: Bei Architekt-Kostenschätzungen sollte man stets 25...30% von den geplanten Bauwerkskosten in Hinterhand haben!
KayLinus schrieb:Dem Architekt sollten die Kosten für Statik und Wärmeschutz doch bekannt sein, oder lebt der auf dem Mond?
.... Was mich aber richtig stutzig macht und mir Sorgen bereitet ist zb das er die Kosten für die Statik incl Wärmeschutz mit 4000€ angibt. Alle Statiker die angefragt wurden rechnen nach HOAI ab und verlangen um die 10t€. Scheinbar kennt der Architekt die Preise nicht. ...Was kann man da nur machen...
Inzwischen bekomme ich von vielen Architekt´s Nachfragen zum Energieeinsparverordnung/Kfw Nachweis, weil´s die Statiker nicht mehr zum Low Budget Tarif machen wollen. Verständlich da die Anforderungen und Haftungsbedingungen inzwischen erheblich gestiegen sind!
v.g.
NB: Bei Architekt-Kostenschätzungen sollte man stets 25...30% von den geplanten Bauwerkskosten in Hinterhand haben!
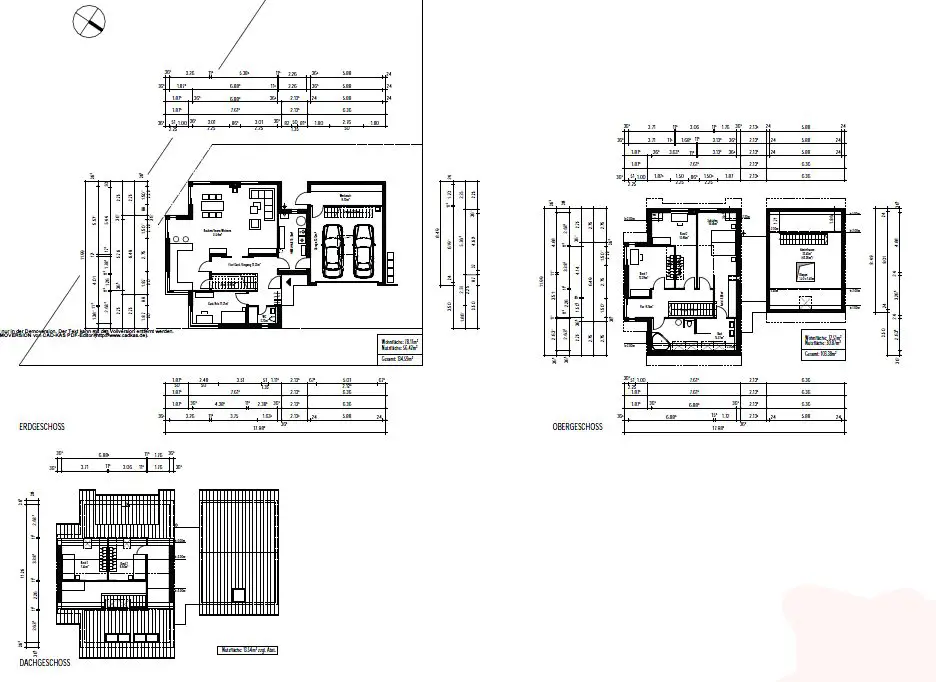
Hallo Bauexperte,
hier wie versprochen meine Zeichnungen. Gebaut wird in der Region um Lüdenscheid / NRW.
Zur Ausstattung soll folgendes gesagt werden:
Elektro und Sanitär Standard - Installation / Elektr. Rollläden ( Ich weiss das hier die Kalkulation schwer möglich ist.)
Das ganze soll ein Kfw 70 mit Luft Wärmepumpe werden.
Falls was fehlt freue ich mich auf deine Nachricht.






hier wie versprochen meine Zeichnungen. Gebaut wird in der Region um Lüdenscheid / NRW.
Zur Ausstattung soll folgendes gesagt werden:
Elektro und Sanitär Standard - Installation / Elektr. Rollläden ( Ich weiss das hier die Kalkulation schwer möglich ist.)
Das ganze soll ein Kfw 70 mit Luft Wärmepumpe werden.
Falls was fehlt freue ich mich auf deine Nachricht.
B
Bauexperte29.01.14 12:25Hallo,
Grüße, Bauexperte
KayLinus schrieb:Ich kann Deine Zeichnungen nicht vergrößern, um sie auch lesen zu können. Versuche bitte mal, sie als Anhänge einzustellen; also nicht in Dein post setzen.
Falls was fehlt freue ich mich auf deine Nachricht.
Grüße, Bauexperte
Ähnliche Themen