ᐅ Kostenschätzung Dachboden Ausbau
Erstellt am: 22.01.17 14:33
K
København22.01.17 14:33Hallo Zusammen,
wir wollen demnächst das Dachgeschoss im Elternhaus meiner Frau ausbauen. Es soll eine vollständige Wohnung werden. Nun ist meine Frage, welche Kosten da wohl ca. auf uns zu kommen werden.
Was muss gemacht werden?
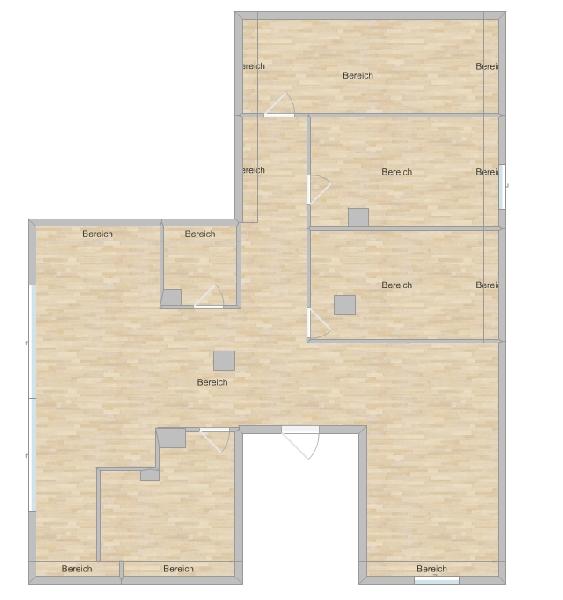
Die Gesamtfläche des Stockwerks beträgt rund 140qm².
Meine Einschätzung liegt bei 50.000€, andere Meinungen belaufen sich jedoch auf 100.000€.
Ich weiß, eine genaue Einschätzung ist hier schwierig, aber ein grober Richtwert würde mir schon weiterhelfen.
Dunkelgraue, dicke Linien = Außenwände
Hellgraue dicke Linien = Fenster / Dachfenster
Dunkelgraue, dünne Linien = Trockenbauwände
Graue Kästen = Holzpfeiler, Kamin etc.
Doppelfenster im großen Zimmer hinten fehlt auf dem Grundriss
Wie man unten links sieht ist das Dach teilweise undicht. Was muss hier vor der Dämmung beachtet werden?


wir wollen demnächst das Dachgeschoss im Elternhaus meiner Frau ausbauen. Es soll eine vollständige Wohnung werden. Nun ist meine Frage, welche Kosten da wohl ca. auf uns zu kommen werden.
Was muss gemacht werden?
- Dachdämmung (Wird selbst mit Zwischensparrendämmung gemacht - anschließend mit Rigips oder Holz verkleidet)
- Fensterbretter und Fenster (Doppelfenster und Küchenfenster erneuern, 3 Dachfenster einbauen)
- Estrich ist bereits erledigt, Parkett in allen Räumen ausgenommen Küche und Badezimmer
- Stromleitungen sind gelegt, Steckdosen werden von Bekanntem gesetzt
- Heizungsanschlüsse sind vorhanden, Heizungen müssen rein (5 Heizkörper, 1 Handtuchheizung)
- Eventuell muss die komplette Heizanlage erneuert werden.
- 11 Trockenbauwände (3x 4.60m, 2x 2.90m, 2x 1.69m, 1x 2.40m, 1x 1.43m, 1x 2.10m)
- Türen (5x Zimmertür)
- Komplettes Badezimmer (Badewanne, Dusche, Waschbecken, WC)
- Komplette Küche
Die Gesamtfläche des Stockwerks beträgt rund 140qm².
Meine Einschätzung liegt bei 50.000€, andere Meinungen belaufen sich jedoch auf 100.000€.
Ich weiß, eine genaue Einschätzung ist hier schwierig, aber ein grober Richtwert würde mir schon weiterhelfen.
Dunkelgraue, dicke Linien = Außenwände
Hellgraue dicke Linien = Fenster / Dachfenster
Dunkelgraue, dünne Linien = Trockenbauwände
Graue Kästen = Holzpfeiler, Kamin etc.
Doppelfenster im großen Zimmer hinten fehlt auf dem Grundriss
Wie man unten links sieht ist das Dach teilweise undicht. Was muss hier vor der Dämmung beachtet werden?
K
København22.01.17 14:45Zusatzinfo: bis auf Dachfenster und Bad wird alles selber gemacht
Wenn das alles selbst gemacht werden soll, dann reichen 50k locker. Plus Küche und Möbel. Eine Trockenbauwand ist recht günstig.
Auf den Herstellerseiten, könnt ihr euch die Mengen berechnen lassen. Diese könnt ihr dann irgendwo einkaufen. Sucht euch einen Baustoffhandel Vorort und erklärt was ihr vor habt. Dann lasst euch mal ein paar Preise auflisten von denen.
Ansonsten ist mein hauptsächlicher Baustoffhandel das Internet. Ich glaube ich muss zur Einweihungsfeier auch den Postboten einladen. Denn niemand hat so viel Baumaterial gebracht wie er.
Auf den Herstellerseiten, könnt ihr euch die Mengen berechnen lassen. Diese könnt ihr dann irgendwo einkaufen. Sucht euch einen Baustoffhandel Vorort und erklärt was ihr vor habt. Dann lasst euch mal ein paar Preise auflisten von denen.
Ansonsten ist mein hauptsächlicher Baustoffhandel das Internet. Ich glaube ich muss zur Einweihungsfeier auch den Postboten einladen. Denn niemand hat so viel Baumaterial gebracht wie er.
Ähnliche Themen