B
blackarrow199029.04.21 11:38Hallo,
wir planen ein kleines Einfamilienhaus zu bauen (Baden-Würrtemberg, südlich von Freiburg)
Kein Keller, EG, aktuell nur Dachboden (nicht ausgebaut)
Wohnfläche etwa 95 m2
Das Grundstück ist vollerschlossen, flach
Streifenfundamente
Ytong 36,5 cm + Außenputz + Klinkerriemchen (Außenwände)
Ytong 24 cm / 11,5 cm (verputzte Innenwände, tragend / nichttragend)
Dachstuhl (zweifach) mit Tondachziegel
Holzbalkendecke von oben gedämmt
PVC Fenster, Standard Weißtüren, Terrassenfenster mit elektrischen Rollläden
Parkett in allen Räumen außen WC, Bad, Abstellraum, Essen und Teil Flur (hier natürlich Fliesen)
Kein Smarthome, ganz normale Elektro-Ausstattung
Also, nichts spektakuläres und relativ einfach zu bauen. Da Freund von mir Architekt ist und ich in der Baubranche tätig bin, können wir bei der Planung / Baugenehmigung sparen. Wir möchten Einzelvergabe machen, wenn wir noch im Budget bleiben können.
Meine Einschätzung:
Baunebenkosten (Versicherung, Vermessung, Baugenehmigung, Baustrom etc.) 20'000
Aushub für Fundamente und Kanäle: 10.000
Rohbau (Fundamente, Wände, Holzbalkendecke, Dach): 130.000
Fassade: Außenputz und Klinker 20.000
Elektro 20.000
Heizung 25.000
Sanitär: 20.000
Innenputz: 20.000
Türen, Rollläden und Fenster: 30.000
Bad und Fliesen: 20.000
Parkett: 10.000
Küche: 10'000
Außentreppe: 5.000
Außenanlage: 10.000 (hier möchten wir praktisch alles in Eigenregie machen)
Malerarbeiten: wenn es sich lohnt, möchten wir das selbst übernehmen
350.000 Euro
Ich habe schon angefangen, das Leistungsverzeichnis an einzelne Firmen zu schicken, aber viele Firmen hat entweder keine Zeit ein unverbindliches Angebot zu erstellen oder erst in ein paar Monaten. Einzelvergabe wird sicherlich stressig und schwieriger zu machen, aber vielleicht gibt mehr Qualität am Ende.
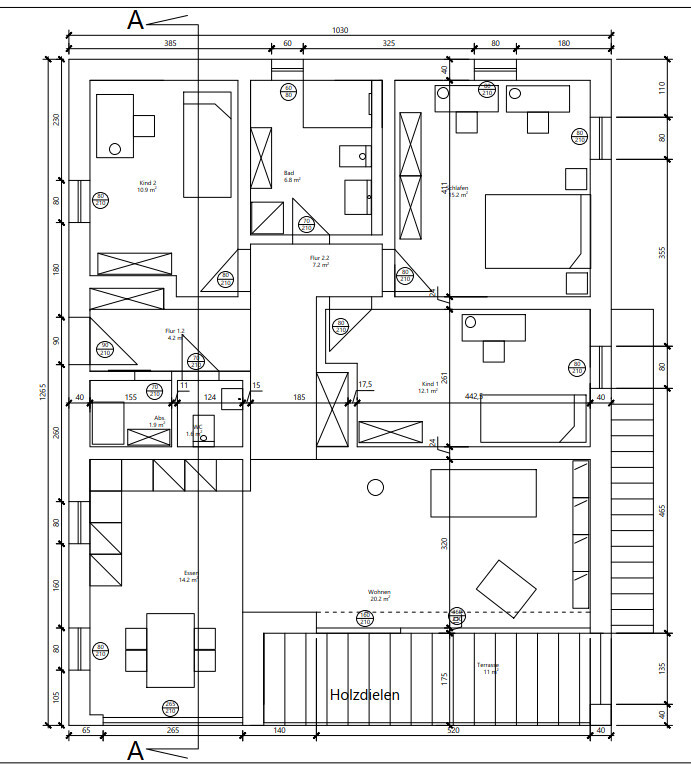
Unten noch die Pläne. Danke sehr.


wir planen ein kleines Einfamilienhaus zu bauen (Baden-Würrtemberg, südlich von Freiburg)
Kein Keller, EG, aktuell nur Dachboden (nicht ausgebaut)
Wohnfläche etwa 95 m2
Das Grundstück ist vollerschlossen, flach
Streifenfundamente
Ytong 36,5 cm + Außenputz + Klinkerriemchen (Außenwände)
Ytong 24 cm / 11,5 cm (verputzte Innenwände, tragend / nichttragend)
Dachstuhl (zweifach) mit Tondachziegel
Holzbalkendecke von oben gedämmt
PVC Fenster, Standard Weißtüren, Terrassenfenster mit elektrischen Rollläden
Parkett in allen Räumen außen WC, Bad, Abstellraum, Essen und Teil Flur (hier natürlich Fliesen)
Kein Smarthome, ganz normale Elektro-Ausstattung
Also, nichts spektakuläres und relativ einfach zu bauen. Da Freund von mir Architekt ist und ich in der Baubranche tätig bin, können wir bei der Planung / Baugenehmigung sparen. Wir möchten Einzelvergabe machen, wenn wir noch im Budget bleiben können.
Meine Einschätzung:
Baunebenkosten (Versicherung, Vermessung, Baugenehmigung, Baustrom etc.) 20'000
Aushub für Fundamente und Kanäle: 10.000
Rohbau (Fundamente, Wände, Holzbalkendecke, Dach): 130.000
Fassade: Außenputz und Klinker 20.000
Elektro 20.000
Heizung 25.000
Sanitär: 20.000
Innenputz: 20.000
Türen, Rollläden und Fenster: 30.000
Bad und Fliesen: 20.000
Parkett: 10.000
Küche: 10'000
Außentreppe: 5.000
Außenanlage: 10.000 (hier möchten wir praktisch alles in Eigenregie machen)
Malerarbeiten: wenn es sich lohnt, möchten wir das selbst übernehmen
350.000 Euro
Ich habe schon angefangen, das Leistungsverzeichnis an einzelne Firmen zu schicken, aber viele Firmen hat entweder keine Zeit ein unverbindliches Angebot zu erstellen oder erst in ein paar Monaten. Einzelvergabe wird sicherlich stressig und schwieriger zu machen, aber vielleicht gibt mehr Qualität am Ende.
Unten noch die Pläne. Danke sehr.
Endlich mal ein bodenständiger Gegenentwurf zum immer häufiger hier vertretenen größer, teurer, chicer.
Gefällt mir sehr gut, auch der Grundriss.
Die Kostenaufstellung halte ich in der Summe für plausibel. Eher zu hoch angesetzt.
Baunebenkosten würde ich eher mit 30.000-40.000€ beziffern, dafür an anderer Stelle weniger.
Rechnet man Küche, Außenanlage und Baunebenkosten raus, wäre ich bei ca. 300.000€. Das ergäbe einen qm-Preis von 3.000€. Ich denke, dass 2.500€/qm bei der einfachen Ausstattung machbar werden.
Gefällt mir sehr gut, auch der Grundriss.
Die Kostenaufstellung halte ich in der Summe für plausibel. Eher zu hoch angesetzt.
Baunebenkosten würde ich eher mit 30.000-40.000€ beziffern, dafür an anderer Stelle weniger.
Rechnet man Küche, Außenanlage und Baunebenkosten raus, wäre ich bei ca. 300.000€. Das ergäbe einen qm-Preis von 3.000€. Ich denke, dass 2.500€/qm bei der einfachen Ausstattung machbar werden.
B
blackarrow199029.04.21 12:19Naja, um ehrlich zu sein, ist das meiner Meinung nach kein typisches Haus in Deutschland. In dem Land, in dem wir geboren wurden, ist dies ein komfortables Einfamilienhaus für Eltern mit 2 oder 3 Kindern. Klingt komisch, aber in einem größeren Haus würden wir uns nicht wohlfühlen. Aber natürlich, jedem das Seine.
Ein Bauträger hat mir einen Pauschalpreis von 400.000 Euro für ein solches Haus genannt. Ich denke, das ist ziemlich teuer. Ich habe Höffnung, einzelne Handwerker zu finden und vielleicht günstiger zu bauen (Rohbau, Innenputz, Estrich, Heizung, Elektro etc.).
Ein Bauträger hat mir einen Pauschalpreis von 400.000 Euro für ein solches Haus genannt. Ich denke, das ist ziemlich teuer. Ich habe Höffnung, einzelne Handwerker zu finden und vielleicht günstiger zu bauen (Rohbau, Innenputz, Estrich, Heizung, Elektro etc.).
blackarrow1990 schrieb:
Ich habe schon angefangen, das Leistungsverzeichnis an einzelne Firmen zu schicken,Auf Basis dieses sehr, sehr selbstgemalten Entwurfes ? - das könnte ein Schiffbruch erster Kajüte werden.https://www.instagram.com/11antgmxde/
https://www.linkedin.com/company/bauen-jetzt/
N
nordanney29.04.21 15:17blackarrow1990 schrieb:
350.000 EuroSchweineteuer für so ein Minihäuschen ohne Extras.B
blackarrow199029.04.21 15:2011ant schrieb:
Auf Basis dieses sehr, sehr selbstgemalten Entwurfes ? - das könnte ein Schiffbruch erster Kajüte werden.Eigentlich meinte ich Baubeschreibung mit grob definierten Flächen und Volumen. Für eine grobe Kosteneinschätzung sollte es schon reichen.
Kalkulation nach DIN 276 sieht mir sehr unzuverlässig aus, da die aktuelle Baukosten sehr hoch sind.
Ähnliche Themen