B
Blaustift14.09.22 08:56Guten Tag,
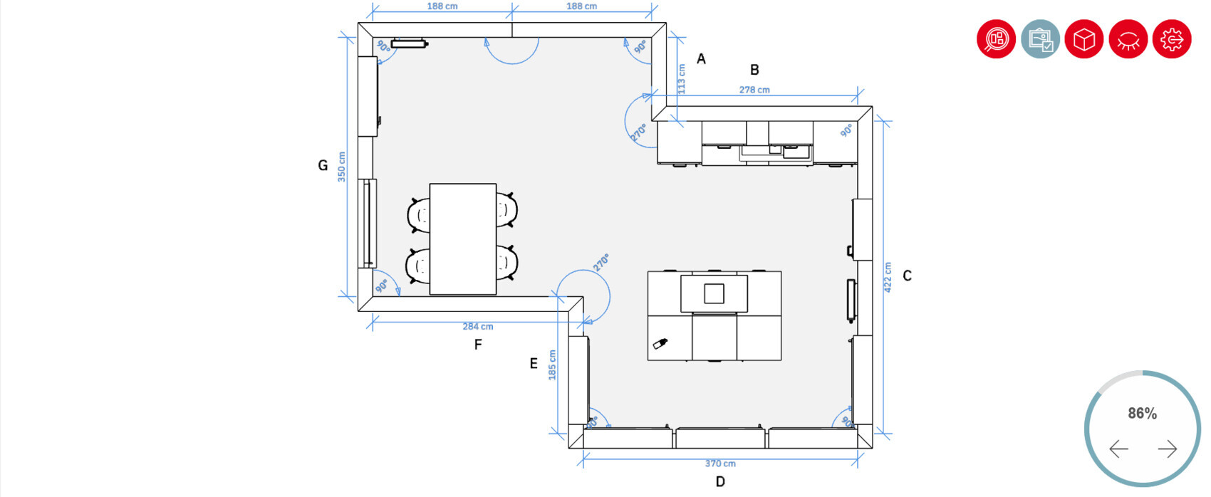
wir haben nun ein Konzept für eine Küchenplanung erstellt und würden gerne weitere Meinungen zu dem Entwurf einholen.
Die Küche soll in einen neuen Raum verlegt werden, Anschlussmöglichkeiten sind vorhanden.
Was haltet ihr von der Aufteilung der Küche? Gibt es etwas, was man insbesondere bei einer Kochinsel berücksichtigen sollte?







wir haben nun ein Konzept für eine Küchenplanung erstellt und würden gerne weitere Meinungen zu dem Entwurf einholen.
Die Küche soll in einen neuen Raum verlegt werden, Anschlussmöglichkeiten sind vorhanden.
Was haltet ihr von der Aufteilung der Küche? Gibt es etwas, was man insbesondere bei einer Kochinsel berücksichtigen sollte?
- keine geeignete Arbeitsfläche
- wozu offene Fächer bei den US die verstauben?
- 1-2-2 Raster - Verschwendung von Stauraum
- Ikea ist nicht günstig - manchmal ist eine Küche eines kleinen Küchenstudios günstiger und man hat viel mehr Flexibilität bei den Schränken.
So richtig gefällt mir das Ganze leider nicht.
- Du hast wenig Arbeitsfläche. Willst du nichts abstellen auf der Arbeitsplatte?
- Ich finde, dass bei dem Layout recht wenig Küche rauskommt. Du hast viel ungenutzte Fläche.... wohin führt die Tür neben der Hochschrankwand? und warum überhaupt der Raumwechsel?
- Optisch finde ich auch Landhaus mit dieser modernen Nischenwand nicht ganz passend, aber vielleicht sieht es ja in Natura besser aus.
- Wie groß ist denn der Abstand Zeile zu Insel? Das sollten meiner Meinung nach nicht mehr als 120 cm sein
- Habt ihr mal eine richtige Stauraumplanung gemacht, wo was hinsoll?
- Du hast wenig Arbeitsfläche. Willst du nichts abstellen auf der Arbeitsplatte?
- Ich finde, dass bei dem Layout recht wenig Küche rauskommt. Du hast viel ungenutzte Fläche.... wohin führt die Tür neben der Hochschrankwand? und warum überhaupt der Raumwechsel?
- Optisch finde ich auch Landhaus mit dieser modernen Nischenwand nicht ganz passend, aber vielleicht sieht es ja in Natura besser aus.
- Wie groß ist denn der Abstand Zeile zu Insel? Das sollten meiner Meinung nach nicht mehr als 120 cm sein
- Habt ihr mal eine richtige Stauraumplanung gemacht, wo was hinsoll?
M
Myrna_Loy14.09.22 23:00Du gewinnst Fläche, wenn Du den Herd an die Stelle der Spüle setzt. Dann kannst Du auch eine Dunstabzugshaube leicht oberhalb installieren. Den Backofen würde ich dann ganz konventionell unter den Herd platzieren und somit Arbeitsfläche links vom Herd gewinnen. Die hochgestellten Backöfen sind aktuell modern, aber sie sind nicht immer die beste Lösung. Und ganz ehrlich - wie oft holt man einen 30 Kilo Bräter mit Gans aus den Ofen, dass man zwingend eine ergonomische Arbeitshöhe braucht. Es sei denn, das Wasser lässt sich nicht in die Insel legen.
Ich kann mich leider nicht mehr in das besagte Forum einloggen. Passwort weiß ich nicht mehr, bekomme aber auch keine Email zur Erneuerung…
Aber sehen und lesen kann ich natürlich den neuen Beitrag. Es sind sehr viel mehr Informationen als hier vorhanden, aber in der Hand-Skizze kann man noch nicht einmal erkennen, um welche „Ecke“ es geht.
Zumindest bist Du dort gut aufgehoben.
Zum Entwurf sehe ich auch Defizite: Ablagen fehlen für die besagten EGeräte und Gebrauchsgegenstände.
Mir persönlich sagt auch nicht diese neue Designform mit der engen Arbeitsplatte plus Hochschränke auf beiden Seiten zu. Aber das mag Geschmackssache sein. Für mich ist es links, recht und oben einengend. Auch wenn es nicht ergonomisch ist, würde ich die Küchenwand über Eck nach hinten weiter verlaufen lassen. Allerdings ist nirgends erwähnt oder ersichtlich, was an der Ecke ist. Die Zeichnung ist dort geschlossen, allerdings auch dort, wo der Zugang zum WZ? ist. Einen Hauswirtschaftsraum soll es geben, wo ist der?
Aber sehen und lesen kann ich natürlich den neuen Beitrag. Es sind sehr viel mehr Informationen als hier vorhanden, aber in der Hand-Skizze kann man noch nicht einmal erkennen, um welche „Ecke“ es geht.
Zumindest bist Du dort gut aufgehoben.
Zum Entwurf sehe ich auch Defizite: Ablagen fehlen für die besagten EGeräte und Gebrauchsgegenstände.
Mir persönlich sagt auch nicht diese neue Designform mit der engen Arbeitsplatte plus Hochschränke auf beiden Seiten zu. Aber das mag Geschmackssache sein. Für mich ist es links, recht und oben einengend. Auch wenn es nicht ergonomisch ist, würde ich die Küchenwand über Eck nach hinten weiter verlaufen lassen. Allerdings ist nirgends erwähnt oder ersichtlich, was an der Ecke ist. Die Zeichnung ist dort geschlossen, allerdings auch dort, wo der Zugang zum WZ? ist. Einen Hauswirtschaftsraum soll es geben, wo ist der?
A
ateliersiegel15.09.22 12:19Details, die ich auf den Bildern nicht erkennen kann, die mir einfallen:
Die Herdpatte sollte dieselbe Ebene haben wie die Arbeitsplatte (eingelassen), weil dann Töpfe leichter hin und her geschoben werden können .... und das Spülbecken darf keinen Rand haben, über den man Wischwasser immer weg "heben" muss. Für das Spülbecken mit den angrenzenden Arbeitsflächen finde ich Edelstahl die beste Lösung (meine Frau findet das nicht so schick ... ich schon)
Eine Arbeitsplatte aus Holz mag Vorteile haben, aber sie bewegt sich. Deswegen werden alle anschließenden Fugen leicht undicht.
Ist eine gute Lösung für die Mülltrennung geplant?
Die Herdpatte sollte dieselbe Ebene haben wie die Arbeitsplatte (eingelassen), weil dann Töpfe leichter hin und her geschoben werden können .... und das Spülbecken darf keinen Rand haben, über den man Wischwasser immer weg "heben" muss. Für das Spülbecken mit den angrenzenden Arbeitsflächen finde ich Edelstahl die beste Lösung (meine Frau findet das nicht so schick ... ich schon)
Eine Arbeitsplatte aus Holz mag Vorteile haben, aber sie bewegt sich. Deswegen werden alle anschließenden Fugen leicht undicht.
Ist eine gute Lösung für die Mülltrennung geplant?
Ähnliche Themen