Guten Morgen,
ich möchte eine Metod Küche in den kommenden Tagen bestellen und habe eine geplant.
Da ich ein Laie bei der Planung bin, würde ich gern Tipps und Feedbacks haben wollen, was man besser oder anders machen sollte.
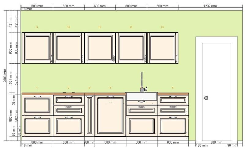
Alle Unterschränke werden Schubladen sein.
Links neben dem Backofen wird der schrank mit einer Scharniertür versehen und dann innenliegend wieder mit Schubladen.
Als Elektrogeräte nehme ich folgendes:
Backofen: Siemens HS658GXS6
Herd: Siemens EH675FN27E
Spülmaschine: Neff S72P69X0EU XXL mit Varioscharnier und Besteckschublade
Dunstabzugshaube: noch nicht klar. Wahrscheinlich die von Ikea -> Underverk
Kühlschrank: bereits vorhanden


Grüße,
Chris
ich möchte eine Metod Küche in den kommenden Tagen bestellen und habe eine geplant.
Da ich ein Laie bei der Planung bin, würde ich gern Tipps und Feedbacks haben wollen, was man besser oder anders machen sollte.
Alle Unterschränke werden Schubladen sein.
Links neben dem Backofen wird der schrank mit einer Scharniertür versehen und dann innenliegend wieder mit Schubladen.
Als Elektrogeräte nehme ich folgendes:
Backofen: Siemens HS658GXS6
Herd: Siemens EH675FN27E
Spülmaschine: Neff S72P69X0EU XXL mit Varioscharnier und Besteckschublade
Dunstabzugshaube: noch nicht klar. Wahrscheinlich die von Ikea -> Underverk
Kühlschrank: bereits vorhanden
Grüße,
Chris
I
IKEA-Experte01.06.16 15:20Hallo,
Zunächst fehlen zwischen Wand und Schränken Passblenden. Die Abstände zur Wand sollte etwas größer sein. Du musst z.B. die Tür den Hochschrankes mind. im 90° Winkel öffnen können, damit zu die Schubladen herausziehen kannst.
Den 20er Schrank würde ich weglassen und stattdessen einen 80er unter dem Kochfeld nehmen, dazu eine breiteres Kochfeld. Auf einem 60er wird es schnell zu eng. Ich habe mich schon öfters geärgert, dass ich keinen Platz für ein breiteres Kochfeld habe.
Die Oberschränke dann dazu passend in einer Flucht mit den Unterschränken.
Eine UNDERVERK mit Fettabscheideeffizeinz von 66 % wäre mir zu schlecht.
Zunächst fehlen zwischen Wand und Schränken Passblenden. Die Abstände zur Wand sollte etwas größer sein. Du musst z.B. die Tür den Hochschrankes mind. im 90° Winkel öffnen können, damit zu die Schubladen herausziehen kannst.
Den 20er Schrank würde ich weglassen und stattdessen einen 80er unter dem Kochfeld nehmen, dazu eine breiteres Kochfeld. Auf einem 60er wird es schnell zu eng. Ich habe mich schon öfters geärgert, dass ich keinen Platz für ein breiteres Kochfeld habe.
Die Oberschränke dann dazu passend in einer Flucht mit den Unterschränken.
Eine UNDERVERK mit Fettabscheideeffizeinz von 66 % wäre mir zu schlecht.
S
Schmidti8201.06.16 16:19Die Flaschen kannst du in hohen Auszug mit einem Trennsteg unterbringen.
Ähnliche Themen