ᐅ Planung fertig. Aufteilung Schubladen Kochinsel
Erstellt am: 31.10.24 14:15
Hallo alle zusammen,
wir sind endlich fertig mit unserer Küchenplanung .
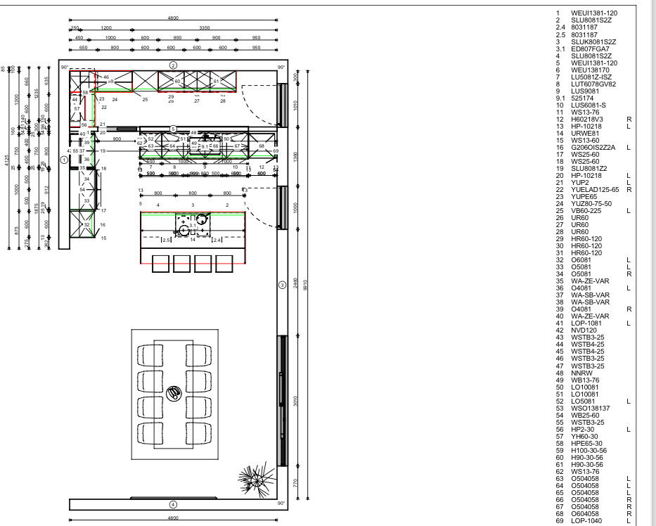
Jetzt mache ich mir aber Gedanken wegen der Aufteilung Inselvorderseite:
Zurzeit geplant 80-80-80, Kochfeld mit Muldenlüfter flächenbündig
Jeder Schrank hat je 3 Schubladen, 2 nicht so hohe und unten eine hohe. Unter dem Kochfeld ist eine Blende.
Meine Bedenken: Wo kommen Öl/Essig hin? In einen Oberschrank oberhalb der Spüle?
Platzierung Töpfe, Pfannen und Deckel?
Zurzeit alle Töpfe gequetscht in einer 60er Schublade und alle Pfannen im Ofen (nervig), alle Deckel in einer weiteren 60er Schublade neben Kartoffeln und Zwiebeln
ALTERNATIVE Inselplanung:
100-100-40
2 100er Schränke mit jeweils zwei nicht so hohen Schubladen oben und einer hohen Schublade unten.
40er Apotheker für Öl/Essig.
Somit hätte ich zwar weniger cm an Besteckschublade, dafür aber Platz für Öl'/Essigflaschen direkt in der Insel
Geschirr soll auch in der Insel aufbewahrt werden
Es ist eine Netxt125 Küche, falls dies relevant ist.
Ich hänge euch mal die Bilder der Planung an und würde mich sehr über eure Meinung freuen.








wir sind endlich fertig mit unserer Küchenplanung .
Jetzt mache ich mir aber Gedanken wegen der Aufteilung Inselvorderseite:
Zurzeit geplant 80-80-80, Kochfeld mit Muldenlüfter flächenbündig
Jeder Schrank hat je 3 Schubladen, 2 nicht so hohe und unten eine hohe. Unter dem Kochfeld ist eine Blende.
Meine Bedenken: Wo kommen Öl/Essig hin? In einen Oberschrank oberhalb der Spüle?
Platzierung Töpfe, Pfannen und Deckel?
Zurzeit alle Töpfe gequetscht in einer 60er Schublade und alle Pfannen im Ofen (nervig), alle Deckel in einer weiteren 60er Schublade neben Kartoffeln und Zwiebeln
ALTERNATIVE Inselplanung:
100-100-40
2 100er Schränke mit jeweils zwei nicht so hohen Schubladen oben und einer hohen Schublade unten.
40er Apotheker für Öl/Essig.
Somit hätte ich zwar weniger cm an Besteckschublade, dafür aber Platz für Öl'/Essigflaschen direkt in der Insel
Geschirr soll auch in der Insel aufbewahrt werden
Es ist eine Netxt125 Küche, falls dies relevant ist.
Ich hänge euch mal die Bilder der Planung an und würde mich sehr über eure Meinung freuen.
Cubus3f schrieb:
wir sind endlich fertig mit unserer Küchenplanung .Das ist schön. Und sie sieht wirklich sehr gut aus - gefällt mir!Bevor wir uns jetzt über Deine Fragen Gedanken machen, kannst Du ja hier Deinen Thread zum Abschluss bringen und mal zeigen, was aus den Tipps von uns so geworden ist.
https://www.hausbau-forum.de/threads/grundrissplanung-einfamilienhaus-180m2-sued-zufahrt-chaos-grundrisse.46864/
H
hanghaus202331.10.24 16:01Habt Ihr denn nun eine endgültige Planung für das Haus?
Ein bedentiefes Fenster in der SK finde ich extravagant.
Das einzig was an eine amerikanische Küche erinnert ist der Kühlschrank.
Ein oberer 80er Auszug ist besser für die Gewürze und Sonstiges. Als 2 40er übereinander.
Ein bedentiefes Fenster in der SK finde ich extravagant.
Das einzig was an eine amerikanische Küche erinnert ist der Kühlschrank.
Ein oberer 80er Auszug ist besser für die Gewürze und Sonstiges. Als 2 40er übereinander.
B
Bertram10031.10.24 18:31Ich würde auf jeden Fall das Kochfeld nicht mittig installieren sondern eher zum Rand hin. Dann bekommt ihr eine gescheite Arbeitsfläche. Die habt ihr jetzt nur gestückelt überall ein wenig, aber nicht zusammenhängend.
Essig/Öl entweder in Schön neben dem Kochfeld stehen lassen oder in eine hohe Schublade. Die Küche ist recht designorientiert gepland. Es wäre praktisch, eine hohe Schublade in der Nähe des Kochfeldes unterhalb der Arbeitsplatte zu haben. Ihr habt alles auf klassisch auf Linie, unten hoch, dann mittel, oben kleine Schublade.
Die 100er Schubladen fassen zwar viel Zeugs, aber eine zweite mitkochende Person muss auch gehörig zur Seite treten wenn man mal an die Schublade muss. Das müsst ihr euch überlegen wie praktisch das ist.
Die 4 Hocker auf einer Reihe würde ich auf keinen Fall so planen: wann setzt man sich zu viert denn freiwillig in eine Reihe? Da macht das Kommunizieren nicht mehr so viel Spass.
Ehrlich gesagt, ich finde du kannst mehr aus der Küche rausholen (besser organisiere Arbeitsfläche, Stühle nicht auf einer Reihe, hoch eingebauter Geschirrspüler). Das Layout (z.B. Kühlschrank oder Oberschränke) ist wie immer Geschmacksache.
Ich habe alle Pfannen und Töpfe in einer mittelhohen 80er Schublade. Es ist knapp, man muss die Töpfe in einer bestimmten Anordnung stapeln, sonst geht die Schublade nicht mehr zu. Eine zweite Lade wäre toll.
Essig/Öl entweder in Schön neben dem Kochfeld stehen lassen oder in eine hohe Schublade. Die Küche ist recht designorientiert gepland. Es wäre praktisch, eine hohe Schublade in der Nähe des Kochfeldes unterhalb der Arbeitsplatte zu haben. Ihr habt alles auf klassisch auf Linie, unten hoch, dann mittel, oben kleine Schublade.
Die 100er Schubladen fassen zwar viel Zeugs, aber eine zweite mitkochende Person muss auch gehörig zur Seite treten wenn man mal an die Schublade muss. Das müsst ihr euch überlegen wie praktisch das ist.
Die 4 Hocker auf einer Reihe würde ich auf keinen Fall so planen: wann setzt man sich zu viert denn freiwillig in eine Reihe? Da macht das Kommunizieren nicht mehr so viel Spass.
Ehrlich gesagt, ich finde du kannst mehr aus der Küche rausholen (besser organisiere Arbeitsfläche, Stühle nicht auf einer Reihe, hoch eingebauter Geschirrspüler). Das Layout (z.B. Kühlschrank oder Oberschränke) ist wie immer Geschmacksache.
Ich habe alle Pfannen und Töpfe in einer mittelhohen 80er Schublade. Es ist knapp, man muss die Töpfe in einer bestimmten Anordnung stapeln, sonst geht die Schublade nicht mehr zu. Eine zweite Lade wäre toll.
Nida35a schrieb:
wir haben es ähnlich gemacht,
80cm Schubladen
allerdings 2 hohe und darüber eine flache.
Beispiel unserer Topfschublade,
lasst bei den hohen Seitenwände und Rückwand setzen, sonst verschwinden Sachen.Vielen Dank für das Bild!
Ja, zwei hohe und eine flache Schublade hieße auch mehr Platz. Um ehrlich zu sein, hab ich gar nicht drauf geachtet wie hoch die unterste Schublade ist und warum ich oben zwei flache habe. Muss nochmal hinfahren und schauen, wie hoch die unterste ist und ob da die Ölflasche reinpasst
eine Rückwand an die Schublade dran machen?
Ähnliche Themen