Hausbau - Ratgeber
Bauherrenhilfe
- Bauherrenhilfe vor Vertragsabschluss
-- Warum einen unabhängigen Baubetreuer?
-- Vertragsgrundlagen
-- Bausumme
-- Zahlungsplan zur Kostenkontrolle
-- Pflichten des Bauherren vor Vertragsabschluss
-- Unterlagen beim Hausbau vor Vertragsabschluss
- Bauherrenhilfe nach Vertragsabschluss
-- Bauantrag bei Behörden
-- Bau-Genehmigungsverfahren bei Baubehörden
-- Bauspezifische Versicherungen
-- Bauzeitenplan
-- Baubeginn - die Letzten Pflichten der Bauherrschaft
- Bauherrenhilfe während der Bauzeit
- Gewährleistungsansprüche
- Bauabnahme
Baufinanzierung
- Baufinanzierung - Allgemeine Fragen
- Kreditarten
- Kredit-Konditionen
- Bausparen
- Staatliche Förderungen
- Verkehrswert
- Haushaltsrechnung und Bonität
Hausbau Planung
- Haustypen
- Hausbau Vorbereitungsarbeiten
- Das Baugrundstück
- Baugrund beim Hausbau
- Baurecht
- Gebäudeschutz
- Erdarbeiten und Wasserhaltung
- Stützmauern
- Einfriedung
- Untergeschoss
- Kanalisation
- Tragende Elemente
- Nichttragende Innenwände
- Fundation / Fundament
- Deckenkonstruktionen
- Dächer
- Kaminanlagen
- Treppen Rampen Leitern
- Dachbeläge und Spengler
- Fenster
- Sonnen und Wetterschutz
- Aussenputze
- Einbauten, Küchen, Türen
- Bodenbeläge und Unterlagsböden
- Parkett
- Gips, Wand, Decke
Haustechnik und Energie
- Heiztechnik
- Lüftung und Klimatechnik
- Sanitärtechnik
- Elektrotechnik
- Erneuerbare Energie
Whirlpools / Jacuzzi
Hausbau Magazin
- Baufinanzierung trotz Krise?
- Das Blockhaus
- Moderne Dämmstoffe im Vergleich
- Erker Vor- und Nachteile
- Glasflächen beim Hausbau
- Günstig ein Haus Bauen
- Mediterraner Hausbaustil
- Mehrgenerationenhaus
- Moderne Architektur
- Gartengestaltung leicht gemacht
- Traditioneller Ziegelbau
- Villa als höchster Traum
- Im Eigenheim Ruhestand geniessen
- Altbau sanieren
- Kauf einer Holzgarage
- Immobilienmakler
- Arbeitshandschuhe für den Winter
- Zuhause verschönern
- Outdoor-Plissees
- Schlafzimmer planen
- Terrassenüberdachung
- Wohngebäudeversicherung
- Zaunarten und Eigenschaften
- Hauseingang gestalten
- Der perfekte Grundriss
- Sparsamer heizen im Altbau
- Einfamilienhaus smart finanzieren
- Planung einer PV-Anlage
- Neues Haus
- Immobilienfinanzierung
- Installation einer Photovoltaikanlage
- Asbest erkennen und entfernen
- Gartenpflege im Frühling – worauf achten
- Sauna im Fokus - Wellness zuhause
- Erfolgreich vermieten
- Die perfekte Winterbekleidung
- Das Niedrigenergiehaus
- Der April und seine Stürme
- Architektonische Vielfalt
- Ökologisch und nachhaltig bauen
- Das perfekte Schlafzimmer
- Nachhaltige Energieversorgung
- Zukunftsorientiert bauen
- Nachhaltigkeit beim Hausbau
- Tiny Houses
- Wärmepumpen als nachhaltige Heizvariante
- Maßgeschneiderten Kleiderschrank
- Der richtige Baukredit
- Ratgeber für erfolgreichen Hausbau
- Haus als Altersvorsorge
Do-it-yourself Anleitungen
- Verlegeanleitung für Bodenbeläge und Parkett
- Bodenbeläge und Parkett reinigen und pflegen
- Malerarbeiten am Haus
- Garten Tipps
- Umzug und Reinigung

ᐅ Ideen Wohnraumgestaltung Wohnzimmer- Anordnung Möbel, TV,etc.

Erstellt am: 18.03.23 22:45
H
Häuserträume
H
Häuserträume
18.03.23 22:45
Hallo Ihr Lieben!
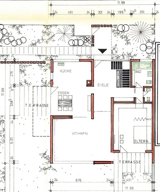
Wir bräuchten einmal eure Hilfe. Und zwar sind wir gerade dabei, einen Altbau zu sanieren. Unten habe ich euch Fotos unseres zukünftigen Wohnzimmers angehängt. Obwohl der Raum sehr groß ist, (33 m²) fehlen uns die Ideen, wie wir den Raum einrichten könnten. Fest steht, dass wir gerne eine ausreichend große Couch wollen, einen Fernseher und ein Klavier, dass jedoch an einer Innenwand stehen sollte. An der rechten Seite der Hebeschiebetür wird voraussichtlich ein Holzofen stehen. Eigentlich müsste die Couch auch eher in die rechte Ecke gestellt werden, da wir nicht wollen, dass jeder Postbote, der in der Haustür steht, sehen kann, wie wir auf der Couch lümmeln. Über eure Ideen würden wir uns sehr freuen! Danke und liebe Grüße!

Heller Wohnraum im Bau mit unfertigen Wänden, Fensterfront und Eimern.

Unfertiger Renovierungsraum: gespachtelte Decke, hängende Kabel, Malerzubehör, Leiter.

Unrenovierter Innenraum mit Eimern, Leiter, Werkzeugen und großem Fensterelement.

Grundriss eines Hauses mit Küche, Essen, Wohnen, Elternzimmer, Diele, Bad und Terrasse.
H
Häuserträume
19.03.23 18:40
Hat niemand eine idee? Wir haben uns im Vorfeld auch schon mal Gedanken gemacht und sind auf folgenden Vorschlag gekommen. Ich bin aber unsicher, weil man dann ja immer das sofa vor sich hat, wenn man aus dem Esszimmer ins Wohnzimmer kommt… besonders toll find ich’s irgendwie nicht, aber wie könnte man es anders machen? Wir haben übrigens noch kein einziges Möbelstück gekauft, sind also noch ganz frei in der Gestaltung. Bitte helft uns-sind für jeden Vorschlag dankbar…
3D-Modell eines Wohnzimmers: blaue Couch, runder Teppich, gelber Boden mit Text 'Wohnzimmer'
K
kati1337
19.03.23 18:53

2D Grundrissplan eines Hauses mit Wohn- und Essbereich sowie Terrasse


Ich könnte mir das so irgendwie vorstellen (Möbel jetzt nich maßstabsgerteu). Müsstet ihr mal rumspielen, ob das iwie geht.
Generell finde ich den Raum sehr schwer einzurichten. Viele Fenster, viele Öffnungen und dafür sehr groß. Sofa müsste vermutlich irgendwie im Raum stehen, nicht an einer Wand.
In meiner Idee ist links ne Art schrank/Wohnwand , und rechts vorm Sofa dann TV auf nem Lowboard oder so.
H
Häuserträume
19.03.23 18:58
Oh, vielen Dank für diesen Impuls! So wäre ich gar nicht drauf gekommen!
ja, wir fanden es auch von Anfang an schwer, den Raum zu planen… aber es war halt alles schon vorgegeben, dadurch dass es sich um eine Bestandsimmobilie handelt. Nachteil an deinem Vorschlag ist vielleicht, dass man dann, wenn man vorne im Flur steht, auf die Seite des Fernsehers blickt… und man hat auf den Ofen im Rücken… mhm… das ist so schwierig!
K
kati1337
19.03.23 19:16
Häuserträume schrieb:

Oh, vielen Dank für diesen Impuls! So wäre ich gar nicht drauf gekommen!
ja, wir fanden es auch von Anfang an schwer, den Raum zu planen… aber es war halt alles schon vorgegeben, dadurch dass es sich um eine Bestandsimmobilie handelt. Nachteil an deinem Vorschlag ist vielleicht, dass man dann, wenn man vorne im Flur steht, auf die Seite des Fernsehers blickt… und man hat auf den Ofen im Rücken… mhm… das ist so schwierig!
Stimmt, an den Ofen hatte ich gar nicht mehr gedacht. Den möchte man ja auch eher im Blick haben als im Rücken. Vielleicht kann man die Idee um 180 Grad drehen. Je nachdem welches Sofa-Layout und welche Größe man nimmt.
Kennst du Sweet Home 3D? Das ist eine recht einfache Planungs-Software. Da kannst du den Raum mit Maßen eingeben, die Fenster einplanen, und dann ein paar Möbel und den Ofen reinstellen und damit rumspielen.
J
Jurassic135
19.03.23 19:35
Durch das große Fenster/Schiebetürelement und die Anforderung Sofa/TV wird es schwierig, aber da findet sich bestimmt eine Lösung.

Vom Eingang (Flur) aus betrachtet:

An die linke Wand das Klavier, das ist ein schöner Blickfang vom Flur und man hält sich daran nicht so lange auf, dass es wie auf dem Sofa ungemütlich werden könnte. Außerdem sollte der Laufweg frei bleiben, denn ihr habt hinten in der Ecke ja auch noch eine kleine Tür.

Das Sofa würde ich in den Raum stellen, mit dem Rücken zum Klavier. Ich würde normalerweise die Ecke neben der Schiebetür zur Küche bevorzugen, aber das geht mit dem großen Fenster und TV nicht zusammen.
Also ein langes Sofa, ggf, mit Hocker für die Füße. Davor der Couchtisch. Blick auf Ofen und TV, seitlich raus zum großen Fenster, Blick in den Garten. Ein Stück vor der Schiebetür dann zwei gemütliche, nicht zu hohe Sessel mit kleinem Tisch dazwischen. Schöner Blick von dort, ein guter Platz wenn man Gäste hat. Zwei Sessel sind aber nicht so eine Blockade wie ein Sofa, der Eingang vor der Schiebetür soll ja nicht zugestellt werden.
Den TV dann an die Wand oder auf ein TV-Board, je nach Geschmack.
Wichtig wäre mir noch ein Teppich unter Sofa/Sessel/Couchtisch, der den Bereich vom restlichen Raum abtrennt und verankert.

Und irgendwo einen hohen Schrank oder ein hohes Regal platzieren, damit der Raum nicht zu flach wirkt.
Gemütliche Beleuchtung durch Tisch- und Stehlampen etc. dazu, fertig.
sofafenstercouchtischofenflurschiebetürmöbelschrankeingang