Liebe Forengemeinde,
unsere Grundrissplanung ist soweit abgeschlossen, lediglich die Anordnung der Sanitärobjekte im Badezimmer bereitet uns noch Kopfschmerzen. Die Maße des Raumes sind eigentlich final, diese möchten wir nur ungern ändern - rein theoretisch wäre das zwar noch möglich, aber da dies das ganze restliche Grundriss-Konzept wieder über den Haufen wirft, möchten wir das eigentlich vermeiden. Ebenso die Fenstermaße: Diese sollten wenn möglich nicht mehr geändert werden, auch sollte die Platzierung wenn möglich so bleiben. Das rechte, größere Fenster könnte problemlos noch etwas nach links oder rechts verschoben werden, aber das kleinere Fenster "muss" so bleiben (könnte wenn unbedingt nötig höchstens ganz gestrichen werden). Das ist der Außenansicht geschuldet.
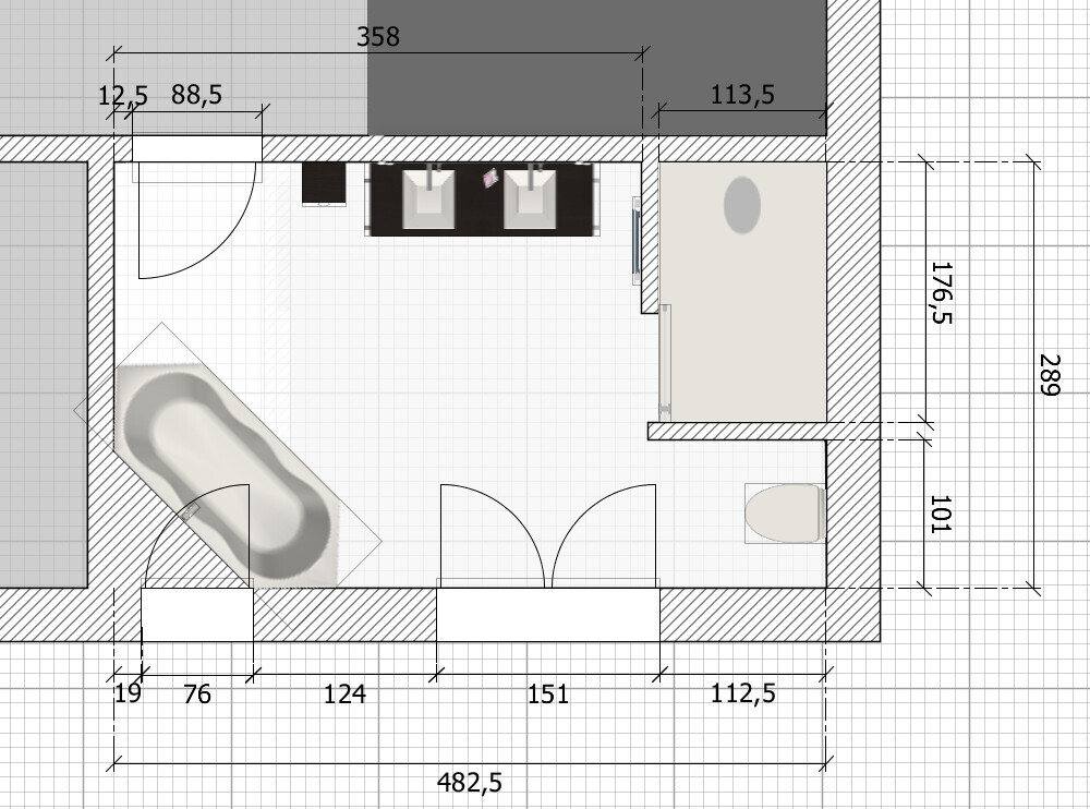
Leider liegt mir kein aktueller Plan unseres Dipl.-Ing. vor (zuletzt gab es noch ein paar Änderungen an den Fenstern, die erst noch eingearbeitet werden müssen), sodass ich das Badezimmer selbst nachgestellt habe. Das hier ist momentan der aktuelle Stand der Planung:

Sollten noch weitere Maße benötigt werden, teilt mir das bitte mit .
Grundsätzlich finden wir die Anordnung nicht so schlecht, dennoch macht es uns noch nicht rundum glücklich. Das Bad ist so groß (13,51 m²) aber dennoch fehlt Platz für einen kleinen Badezimmerschrank für z.B. Handtücher. Ich habe zwar im Entwurf einen kleinen Schrank neben dem waschtisch platziert, aber das dürfte vermutlich zu eng werden (weil auch irgendwo noch Lichtschalter & Co hin müssen). Habt ihr vielleicht Verbesserungsvorschläge oder andere Ideen?
Der erste Entwurf unseres Planers sah die folgende Sanitäranordnung vor:

Hiermit waren wir nicht so glücklich. Wir sind zwar Fans von T- und L-Lösungen, meinen aber, dass das auch zum Raum passen muss. Bei uns passte es nicht. Vorallendingen das WC direkt neben der Tür war ein No-Go für uns.
Gewünscht sind auf jeden Fall eine große Dusche (muss nicht offen sein, also gerne auch mit Glastrennwand o. Ä. mit mindestens 1,20 x 1,20 m oder "länglich" mit mindestens 1,00 x 1,40 m) sowie ein Doppelwaschtisch (gerne 160 cm breit). WC gerne leicht versteckt, ist aber kein Muss. Bei der Badewanne ist die Form egal (muss also keine Sechseck-Wanne sein).
Ich danke euch bereits im Voraus .
Gruß,
Lanini
unsere Grundrissplanung ist soweit abgeschlossen, lediglich die Anordnung der Sanitärobjekte im Badezimmer bereitet uns noch Kopfschmerzen. Die Maße des Raumes sind eigentlich final, diese möchten wir nur ungern ändern - rein theoretisch wäre das zwar noch möglich, aber da dies das ganze restliche Grundriss-Konzept wieder über den Haufen wirft, möchten wir das eigentlich vermeiden. Ebenso die Fenstermaße: Diese sollten wenn möglich nicht mehr geändert werden, auch sollte die Platzierung wenn möglich so bleiben. Das rechte, größere Fenster könnte problemlos noch etwas nach links oder rechts verschoben werden, aber das kleinere Fenster "muss" so bleiben (könnte wenn unbedingt nötig höchstens ganz gestrichen werden). Das ist der Außenansicht geschuldet.
Leider liegt mir kein aktueller Plan unseres Dipl.-Ing. vor (zuletzt gab es noch ein paar Änderungen an den Fenstern, die erst noch eingearbeitet werden müssen), sodass ich das Badezimmer selbst nachgestellt habe. Das hier ist momentan der aktuelle Stand der Planung:
Sollten noch weitere Maße benötigt werden, teilt mir das bitte mit .
Grundsätzlich finden wir die Anordnung nicht so schlecht, dennoch macht es uns noch nicht rundum glücklich. Das Bad ist so groß (13,51 m²) aber dennoch fehlt Platz für einen kleinen Badezimmerschrank für z.B. Handtücher. Ich habe zwar im Entwurf einen kleinen Schrank neben dem waschtisch platziert, aber das dürfte vermutlich zu eng werden (weil auch irgendwo noch Lichtschalter & Co hin müssen). Habt ihr vielleicht Verbesserungsvorschläge oder andere Ideen?
Der erste Entwurf unseres Planers sah die folgende Sanitäranordnung vor:
Hiermit waren wir nicht so glücklich. Wir sind zwar Fans von T- und L-Lösungen, meinen aber, dass das auch zum Raum passen muss. Bei uns passte es nicht. Vorallendingen das WC direkt neben der Tür war ein No-Go für uns.
Gewünscht sind auf jeden Fall eine große Dusche (muss nicht offen sein, also gerne auch mit Glastrennwand o. Ä. mit mindestens 1,20 x 1,20 m oder "länglich" mit mindestens 1,00 x 1,40 m) sowie ein Doppelwaschtisch (gerne 160 cm breit). WC gerne leicht versteckt, ist aber kein Muss. Bei der Badewanne ist die Form egal (muss also keine Sechseck-Wanne sein).
Ich danke euch bereits im Voraus .
Gruß,
Lanini
Danke dir für deine Antwort .
Neben der Tür bei der Treppe ist Brüstung. Die Treppe geht auf der anderen Seite hinunter.
An deinen Vorschlag hatten wir auch schon mal gedacht, wobei wir damit auch nicht so ganz zufrieden waren. Wir haben selbst schon ziemlich viel überlegt und uns gefällt es so wie in der obigen Darstellung am besten, wobei uns diese Anordnung leider nicht rundum zufriedenstellt (kein Platz für einen schmalen Badezimmerschrank für Handtücher usw.). Echt schwierig. Daher hatte ich hier den Thread eröffnet, denn vielleicht hat ja jemand eine zündende Idee, auf die wir noch nicht selbst gekommen sind?
Neben der Tür bei der Treppe ist Brüstung. Die Treppe geht auf der anderen Seite hinunter.
An deinen Vorschlag hatten wir auch schon mal gedacht, wobei wir damit auch nicht so ganz zufrieden waren. Wir haben selbst schon ziemlich viel überlegt und uns gefällt es so wie in der obigen Darstellung am besten, wobei uns diese Anordnung leider nicht rundum zufriedenstellt (kein Platz für einen schmalen Badezimmerschrank für Handtücher usw.). Echt schwierig. Daher hatte ich hier den Thread eröffnet, denn vielleicht hat ja jemand eine zündende Idee, auf die wir noch nicht selbst gekommen sind?
Da würde ich wohl auch die Tür nach planrechts schieben, dann entsteht hinter der Tür ausreichend Platz für Schrank. Und dann kann man die Anfrage von @RobsonMKK aufnehmen .. wenn Fenster nicht bodentief, dann kann man planunten rechts der Wanne noch etwas Platz schaffen mit Schränken in Höhe der Wannenoberkante. Da kann dann auch mal vorm Fenster eine schöne Pflanze draufstehen.
Danke auch euch beiden! Das Fenster ist nicht bodentief sondern hat eine Brüstung von 94,5 cm ab Oberkante Fertigfußboden. Dort einen Schrank in Höhe der Wannenoberkante zu platzieren ist natürlich eine gute Idee, danke! Ich denke so werden wir es dann vermutlich auch machen.
Ob wir die Tür verschieben überlegen wir uns noch, wäre zumindest auch noch eine Möglichkeit. So wie die Tür im Moment platziert ist ergibt sich im Flur OG eine schöne Symmetrie, weil alle Türen parallel zueinander angeordnet sind. Das ist meinem Mann einigermaßen "wichtig" und er will diese Symmetrie nur aufgeben, wenn es wirklich einen großen Vorteil bringt. Männer halt .
Die Anordnung der Sanitärobjekte im Bad findet ihr aber soweit OK oder würde euch daran etwas gravierendes stören?
Ob wir die Tür verschieben überlegen wir uns noch, wäre zumindest auch noch eine Möglichkeit. So wie die Tür im Moment platziert ist ergibt sich im Flur OG eine schöne Symmetrie, weil alle Türen parallel zueinander angeordnet sind. Das ist meinem Mann einigermaßen "wichtig" und er will diese Symmetrie nur aufgeben, wenn es wirklich einen großen Vorteil bringt. Männer halt .
Die Anordnung der Sanitärobjekte im Bad findet ihr aber soweit OK oder würde euch daran etwas gravierendes stören?
Ähnliche Themen