Hallo Hobbyarchitekten :-)
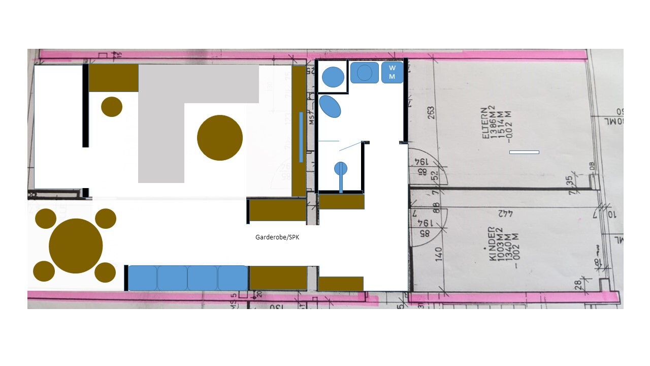
Ich habe eine 70m² Wohnung, die modernisiert werden soll.
Die Anschlüsse sollten dabei möglichst bleiben wo sie sind.
Es ist eine Ferienwohnung in der auch mal 4-5 Personen schlafen sollen.
Die Garderobe kann weg wenn es sein muss.
Das Bad könnte nach planrechts ins Schlafzimmer verlängert werden.
Freue mich auf euren Input :-)

Ich habe eine 70m² Wohnung, die modernisiert werden soll.
Die Anschlüsse sollten dabei möglichst bleiben wo sie sind.
Es ist eine Ferienwohnung in der auch mal 4-5 Personen schlafen sollen.
Die Garderobe kann weg wenn es sein muss.
Das Bad könnte nach planrechts ins Schlafzimmer verlängert werden.
Freue mich auf euren Input :-)
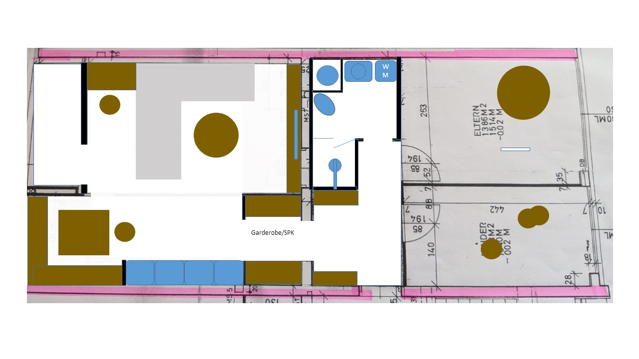
Dann würde ich auf die modernen Durchlauferhitzer gehen, die sind sehr effizient und brauchen deutlich weniger Platz. Badewanne raus und schöne, große Dusche mit Durchlauferhitzer.
Küche: ums Eck, kein U, nur in der Nische und an der planunteren Wand; esstisch zur Garderobe hin und zwischen Küche und Wohnbereich. Wohnbereich vielleicht noch in Zonen aufteilen: große Couch zum TV gucken und kleine Leseecke.
Küche: ums Eck, kein U, nur in der Nische und an der planunteren Wand; esstisch zur Garderobe hin und zwischen Küche und Wohnbereich. Wohnbereich vielleicht noch in Zonen aufteilen: große Couch zum TV gucken und kleine Leseecke.
A
Alessandro23.11.20 13:40A
Alessandro23.11.20 14:04A
Alessandro23.11.20 14:28Die 7cm Innenwände dürften sämtlich weder tragend noch aussteifend sein, ich vermute sie aus auf die Schmalseite gedrehten Vollziegeln gemauert. Dennoch sehe ich die Wände auf der planrechten Seite von Deinen Gedankenspielen sämtlich unberührt bleiben, wenngleich der Grenzverlauf zwischen "Bad" und "Eltern" die Karten für eine Umgestaltung des Bades am ehesten neu mischen könnte. Im übrigen wäre mir bei einer "Ferienwohnung" dieser Größe der Gedanke naheliegend, einen Raum für Privatsachen (separate Bettwäsche etcetera) zu schaffen, um den immer noch nicht kleinen "Rest" unkompliziert zeitweise vermieten zu können.
https://www.instagram.com/11antgmxde/
https://www.linkedin.com/company/bauen-jetzt/
https://www.instagram.com/11antgmxde/
https://www.linkedin.com/company/bauen-jetzt/
Ähnliche Themen