ᐅ Heizkonzept Luft-Wasser-Wärmepumpe Einfamilienhaus 2 Personen - Angebot Heizungsbauer?
Erstellt am: 24.04.22 10:40
E
Elias_deeE
Elias_dee24.04.22 10:40Guten Morgen,
wir bauen ab Oktober 2022 ein Einfamilienhaus für 2 Personen schlüsselfertig, die Rahmenbedingungen sind:
- Luft-Wasser-Wärmepumpe
- Evtl. Photovoltaikanlage (noch nicht sicher)
- Zentrale Lüftungsanlage mit Wärmerückgewinnung
- Haus wird von 2 Personen bewohnt
- EG + OG + KG (teils als Wohnraum genutzt)
- kein KFW, Standard, Bau nach Gebäudeenergiegesetz, 36,5 cm Ziegel
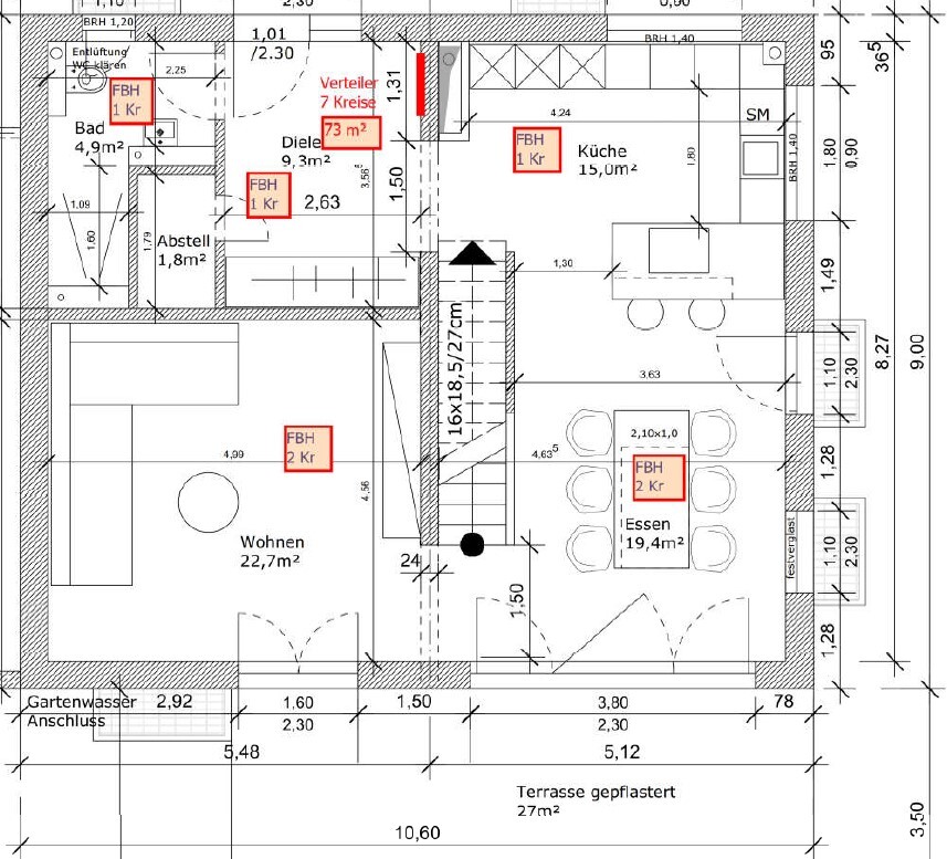
Der GU hat mir die Berechnung bzw. geplanten Kreisläufe des Heizungsbauers geschickt, siehe Anhang. Berechnet wurden aufgrund von 205 m² Wohnfläche x 0,035 -> 7,17 kW + 0,8 kW Warmwasser --> 8 kW
SfZ 1,2 --> 9,6 kW
Der Heizungsbauer hat über den GU auf Grundlage dieser Planung folgendes angeboten:
- Weishaupt Biblock WBB 12-A-RMD-AI
- Kombispeicher WKS 300/100LE / Unit / Bloc / C, 300 Liter Trinkwasserspeicher und 100 Liter Pufferspeicher
- 12 Raumthermostate
Jetzt habe ich mich hier und anderswo schon ein bisschen eingelesen und habe verstanden, dass die Einzelraumregulierung Unsinn ist und lieber die Kreise im Vornherein auf die entsprechende Temperatur ausgelegt werden sollten (so habe ich es zumindest verstanden, korrigiert mich gerne).
Außerdem scheinen sich die Geister am Thema Pufferspeicher sehr zu scheiden, Tendenz aber eher: unnötig. Habe aber ehrlich gesagt noch nicht ganz genau verstanden, warum. Ich lese immer nur wieder, dass eine derartige Auslegung eine Luft-Wasser-Wärmepumpe schnell verschleißt und zu hohem Stromverbrauch führt. Auch der Sicherheitsfaktor scheint vom Heizungsbauer eher hoch ausgelegt zu sein.
Ohne eine wirkliche fundierte Ahnung davon zu haben, würde ich aber ungern in die Diskussion mit dem Heizungsbauer einsteigen. Könntet ihr mich beraten, wie sich das Konzept für unser Einfamilienhaus besser auslegen lässt?
Vielen Dank im Voraus!
LG Elias



wir bauen ab Oktober 2022 ein Einfamilienhaus für 2 Personen schlüsselfertig, die Rahmenbedingungen sind:
- Luft-Wasser-Wärmepumpe
- Evtl. Photovoltaikanlage (noch nicht sicher)
- Zentrale Lüftungsanlage mit Wärmerückgewinnung
- Haus wird von 2 Personen bewohnt
- EG + OG + KG (teils als Wohnraum genutzt)
- kein KFW, Standard, Bau nach Gebäudeenergiegesetz, 36,5 cm Ziegel
Der GU hat mir die Berechnung bzw. geplanten Kreisläufe des Heizungsbauers geschickt, siehe Anhang. Berechnet wurden aufgrund von 205 m² Wohnfläche x 0,035 -> 7,17 kW + 0,8 kW Warmwasser --> 8 kW
SfZ 1,2 --> 9,6 kW
Der Heizungsbauer hat über den GU auf Grundlage dieser Planung folgendes angeboten:
- Weishaupt Biblock WBB 12-A-RMD-AI
- Kombispeicher WKS 300/100LE / Unit / Bloc / C, 300 Liter Trinkwasserspeicher und 100 Liter Pufferspeicher
- 12 Raumthermostate
Jetzt habe ich mich hier und anderswo schon ein bisschen eingelesen und habe verstanden, dass die Einzelraumregulierung Unsinn ist und lieber die Kreise im Vornherein auf die entsprechende Temperatur ausgelegt werden sollten (so habe ich es zumindest verstanden, korrigiert mich gerne).
Außerdem scheinen sich die Geister am Thema Pufferspeicher sehr zu scheiden, Tendenz aber eher: unnötig. Habe aber ehrlich gesagt noch nicht ganz genau verstanden, warum. Ich lese immer nur wieder, dass eine derartige Auslegung eine Luft-Wasser-Wärmepumpe schnell verschleißt und zu hohem Stromverbrauch führt. Auch der Sicherheitsfaktor scheint vom Heizungsbauer eher hoch ausgelegt zu sein.
Ohne eine wirkliche fundierte Ahnung davon zu haben, würde ich aber ungern in die Diskussion mit dem Heizungsbauer einsteigen. Könntet ihr mich beraten, wie sich das Konzept für unser Einfamilienhaus besser auslegen lässt?
Vielen Dank im Voraus!
LG Elias
B
Benutzer20024.04.22 10:55Elias_dee schrieb:
Der GU hat mir die Berechnung bzw. geplanten Kreisläufe des Heizungsbauers geschickt, siehe Anhang.Ehrlich gesagt sehr ich keinerlei Berechnung. Und auch keine Auslegung der Fußbodenheizung. Dein Thread liest sich nach "machen wir schon immer so".Raumweise Heitlastberechnung?
Raumtemperaturen?
Vorlauftemperatur/Rücklauftemperatur?
Verlegeplan mit Abständen?
Ansonsten ist dein Verständnis für eine effiziente Heizung aber in Ordnung 😉
D
Deliverer24.04.22 10:59Jop. Keine Wärmepumpe auswählen, bis man nicht die Heizlast hat. Und dann keine! Zuschläge. Wer neu baut und mehr als 5 kW Heizlast hat, baut falsch.
E
Elias_dee24.04.22 12:05Danke erstmal an alle. Dann bestätigt das meine Ansicht, dass der Heizungsbauer hier einfach "so wie immer schon gemacht" angeboten hat. Ich würde ja auch gerne in die Diskussion mit ihm einsteigen, aber dafür möchte ich mir mehr Wissen aufbauen. Daher der Thread.
Die Wärmepumpe ist ja modulierend, also meinem Verständnis nach heißt das, dass die nicht auf voller Leistung laufen muss. Trotzdem nicht ok? Lieber eine kleinere nehmen?
@driver55: das ist zwar nicht die finale Version der Grundrisse, weil es ein paar Modifikationen gab (u.a. Tausch Küche mit Wohnzimmer), aber die haben wir so als Bauantrag eingereicht, ja. Der Heizungsbauer hat die Berechnung jedoch nicht neu gemacht, weil er meinte, die Anzahl der Kreise bzw. beheizte Fläche bleibt gleich.
Die Wärmepumpe ist ja modulierend, also meinem Verständnis nach heißt das, dass die nicht auf voller Leistung laufen muss. Trotzdem nicht ok? Lieber eine kleinere nehmen?
@driver55: das ist zwar nicht die finale Version der Grundrisse, weil es ein paar Modifikationen gab (u.a. Tausch Küche mit Wohnzimmer), aber die haben wir so als Bauantrag eingereicht, ja. Der Heizungsbauer hat die Berechnung jedoch nicht neu gemacht, weil er meinte, die Anzahl der Kreise bzw. beheizte Fläche bleibt gleich.
D
Deliverer24.04.22 12:18Elias_dee schrieb:
Die Wärmepumpe ist ja modulierend, also meinem Verständnis nach heißt das, dass die nicht auf voller Leistung laufen muss. Trotzdem nicht ok? Lieber eine kleinere nehmen?Am besten eine passende nehmen. Zu klein ist nichts, zu groß aber auch nicht. Modulieren ist praktisch, aber wenn die untere Modulationsgrenze schon der Heizlast entspricht (ja, sowas ist nicht selten der Fall), taktet sich das Ding direkt nach Ablauf der Garantie kaputt. Außerdem ist die Anschaffung und der Betrieb teurer.So grob falsch dürften die initialen 7 kW aber gar nicht sein. Nur die Gürtel-und-Hosenträger-Aufschläge braucht es wahrscheinlich nicht.
Also: Verlange eine raumweise Heizlastberechnung. Erst dann kann man das passende Modell auswählen. Außerdem fällt dann auch auf, dass man in den Bädern noch die Wände mit Heizkreisen versehen muss.
Ähnliche Themen