ᐅ Heizflächen mit einem Raum mit deutlich erhöhter Heizlast
Erstellt am: 27.01.24 09:17
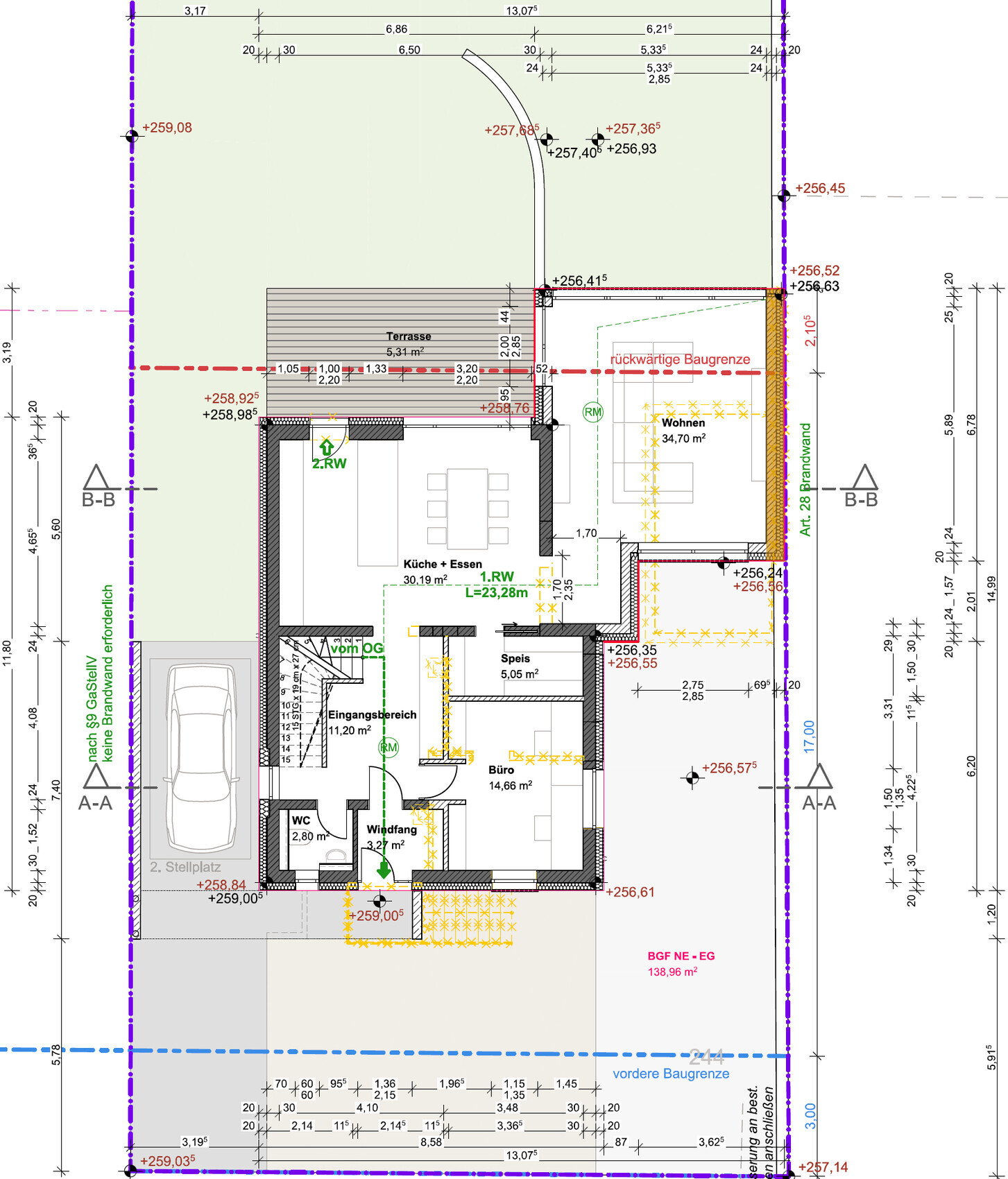
Da an meine Bestandsimmobilie ein Anbau gebaut wird, ergeben sich leider ein paar Probleme mit der Heizlast in diesem.
(im gesamten beheizten Bereich wird Fußbodenheizung verlegt)
Da dieser Raum (Wohnzimmer) zum größten Teil aus Außenwänden besteht ergibt sich für diesen eine Heizlast von 54,37W/m². (1909W)
Im restlichen EG haben wir so ca. 25W/m²
Gibt es eine Lösung hier den Raum im Anbau (Wohnzimmer) geheizt zu bekommen ohne den Vorlauf der Wärmepumpe auf fast 40°C erhöhen zu müssen?
Die Heizfläche ist leider auf den Boden begrenzt und kann nicht erhöht werden.
Bringt es hier etwas größere Rohrdurchmesser zu verwenden und die Fließgeschwindigkeit zu erhöhen (wenn dies überhaupt möglich ist)?


(im gesamten beheizten Bereich wird Fußbodenheizung verlegt)
Da dieser Raum (Wohnzimmer) zum größten Teil aus Außenwänden besteht ergibt sich für diesen eine Heizlast von 54,37W/m². (1909W)
Im restlichen EG haben wir so ca. 25W/m²
Gibt es eine Lösung hier den Raum im Anbau (Wohnzimmer) geheizt zu bekommen ohne den Vorlauf der Wärmepumpe auf fast 40°C erhöhen zu müssen?
Die Heizfläche ist leider auf den Boden begrenzt und kann nicht erhöht werden.
Bringt es hier etwas größere Rohrdurchmesser zu verwenden und die Fließgeschwindigkeit zu erhöhen (wenn dies überhaupt möglich ist)?
R
RotorMotor27.01.24 09:19Warum kann die Fläche nicht erhöht werden?
Decke, Wände, etc.?
Ansonsten eng und viele Kreise.
Decke, Wände, etc.?
Ansonsten eng und viele Kreise.
J
jens.knoedel27.01.24 10:24LostWolf schrieb:
Gibt es eine Lösung hier den Raum im Anbau (Wohnzimmer) geheizt zu bekommen ohne den Vorlauf der Wärmepumpe auf fast 40°C erhöhen zu müssen?Ich verstehe das Problem nicht so ganz. Das ist mein Anbau (auf 22 Grad ausgelegt).Mein Anbau ist kleiner, hat aber je qm annähernd die gleiche Heizlast. Dort habe ich die Fußbodenheizung mit 5cm Abstand verlegt. Ergebnis: Ca. 30 Grad Vorlauf für 21,5 Grad in diesem Winter.
Ähnliche Themen