ᐅ Hanghaus in der Südwestpfalz - Unser Hausbau 2.0
Erstellt am: 09.09.22 18:13
Guten Abend zusammen
Ich habe hier einen kleinen Sammelthread für Fotos und Baufortschritt für unser zweites Bauvorhaben.
Wir sind um näher an der Baustelle zu sein bereits in die Pfalz umgezogen. Nun beobachten wir gespannt und freudig wie unser (hoffentlich finales) Traumhaus in der Nähe der Familie entsteht.
Eine große Herausforderung vor der wir noch stehen ist die Fassadengestaltung. Ich liebe ja den nordischen Stil mit Klinker und Sprossen. Das wird hier aber nichts werden: Erstens kann das hier niemand mauern, zweitens würde man damit sehr auffallen. Es wird eine Putzfassade werden. Wie wir Fassade und Fenster farblich gestalten um trotzdem noch etwas Landhaus- / Cottage Flair zu schaffen ist momentan noch gedankliche Baustelle.
Ansonsten zeige ich euch hier unsere Pläne und wie's nun am Ende entsteht.
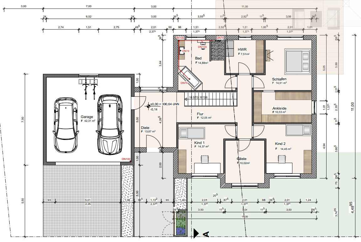
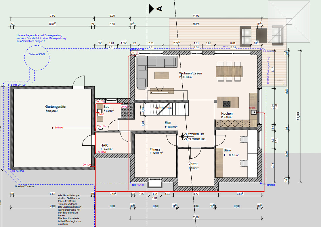
Der eingezeichnete Stützpfeiler nahe der Kochinsel ließ sich mit leichtem Aufpreis noch entfernen, der fällt also weg.
Der Raum für "Gartengeräte" unter der Garage kriegt noch eine Trennwand für die Statik.
Es wird jetzt nicht voll ausgebauter Wohnraum wie im Haus, aber Fußbodenheizung kommt rein, abschließbare Türe & ein Fenster. Soll dann neben den Gartengeräten auch noch einen Teil der Haustechnik beheimaten weil der HAR sehr klein ist, und vielleicht als Partykeller dienen.
Bei den Bauunternehmen hatten wir 3 in der engeren Wahl. Wir haben uns am Ende für den "Macher" entschieden - ein Bauunternehmer der uns hier über Freunde und Familie empfohlen wurde. Keine Homepage, kein Smartphone, steht aber jeden Tag selber im Blaumann auf der Baustelle. Hat eine sehr gute Reputation in der Gegend hier und macht eigentlich nur noch selten Einfamilienhaus. Wir hatten da bisschen Glück über Vitamin B, und ein sehr langes sympathisches Ersttelefonat, dass wir da den Fuß in die Tür gekriegt haben. Bisher sind wir mit der Entscheidung sehr zufrieden.





Ich habe hier einen kleinen Sammelthread für Fotos und Baufortschritt für unser zweites Bauvorhaben.
Wir sind um näher an der Baustelle zu sein bereits in die Pfalz umgezogen. Nun beobachten wir gespannt und freudig wie unser (hoffentlich finales) Traumhaus in der Nähe der Familie entsteht.
Eine große Herausforderung vor der wir noch stehen ist die Fassadengestaltung. Ich liebe ja den nordischen Stil mit Klinker und Sprossen. Das wird hier aber nichts werden: Erstens kann das hier niemand mauern, zweitens würde man damit sehr auffallen. Es wird eine Putzfassade werden. Wie wir Fassade und Fenster farblich gestalten um trotzdem noch etwas Landhaus- / Cottage Flair zu schaffen ist momentan noch gedankliche Baustelle.
Ansonsten zeige ich euch hier unsere Pläne und wie's nun am Ende entsteht.
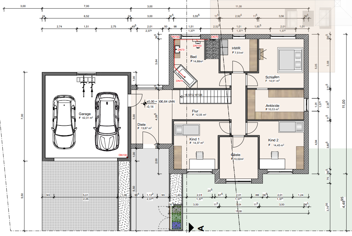
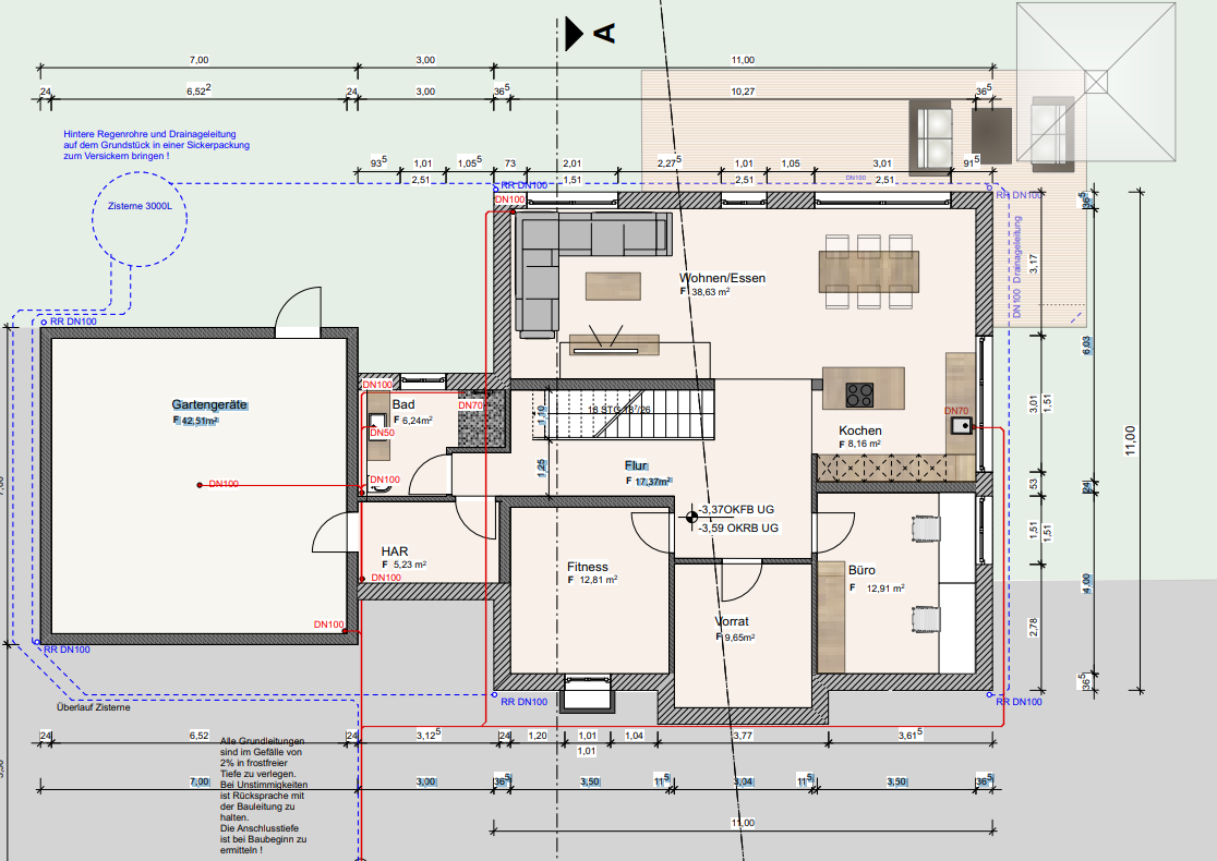
Der eingezeichnete Stützpfeiler nahe der Kochinsel ließ sich mit leichtem Aufpreis noch entfernen, der fällt also weg.
Der Raum für "Gartengeräte" unter der Garage kriegt noch eine Trennwand für die Statik.
Es wird jetzt nicht voll ausgebauter Wohnraum wie im Haus, aber Fußbodenheizung kommt rein, abschließbare Türe & ein Fenster. Soll dann neben den Gartengeräten auch noch einen Teil der Haustechnik beheimaten weil der HAR sehr klein ist, und vielleicht als Partykeller dienen.
Bei den Bauunternehmen hatten wir 3 in der engeren Wahl. Wir haben uns am Ende für den "Macher" entschieden - ein Bauunternehmer der uns hier über Freunde und Familie empfohlen wurde. Keine Homepage, kein Smartphone, steht aber jeden Tag selber im Blaumann auf der Baustelle. Hat eine sehr gute Reputation in der Gegend hier und macht eigentlich nur noch selten Einfamilienhaus. Wir hatten da bisschen Glück über Vitamin B, und ein sehr langes sympathisches Ersttelefonat, dass wir da den Fuß in die Tür gekriegt haben. Bisher sind wir mit der Entscheidung sehr zufrieden.
B
bauenmk202009.09.22 18:56tja, dann möchte ich euch schonmal viel Erfolg beim Bauen 2.0 wünschen 😉
Ihr habt ja schon die ganze Zeit Ideen gesammelt etc, was ich bisher von dir gelesen habe. Daher wird wohl so viel nicht mehr zur "Änderungs-Debatte" stehen, oder?
Würde sich der Eingangsbereich nicht als Treppenhaus eignen? Ich weiß, dass es immer doof ist wenn man in ein Haus kommt und erstmal Treppen sieht aber hattet ihr mal daran gedacht?
Ihr habt ja schon die ganze Zeit Ideen gesammelt etc, was ich bisher von dir gelesen habe. Daher wird wohl so viel nicht mehr zur "Änderungs-Debatte" stehen, oder?
Würde sich der Eingangsbereich nicht als Treppenhaus eignen? Ich weiß, dass es immer doof ist wenn man in ein Haus kommt und erstmal Treppen sieht aber hattet ihr mal daran gedacht?
bauenmk2020 schrieb:
tja, dann möchte ich euch schonmal viel Erfolg beim Bauen 2.0 wünschen.
Ihr habt ja schon die ganze Zeit Ideen gesammelt etc, was ich bisher von dir gelesen habe. Daher wird wohl so viel nicht mehr zur "Änderungs-Debatte" stehen, oder?DankeschönBeim Grundriss ist schon nicht mehr viel zu ändern, das stimmt.
Was aktuell diskutiert wird sind die Fenster. Farben. Eventuell Sprossen? In der Küche bei dem 3m langen Fenster hätte ich gerne eine Sitzbank drunter. Also kein gemauertes Sitzfenster (das bietet sich da nicht an), sondern mit Küchenmöbeln umgesetzt. Daher überlegen wir da ob wir da ein Panoramafenster mit Festverglasung reinsetzen. Der Ausblick in die Richtung ist wunderschön.
bauenmk2020 schrieb:
Würde sich der Eingangsbereich nicht als Treppenhaus eignen? Ich weiß, dass es immer doof ist wenn man in ein Haus kommt und erstmal Treppen sieht aber hattet ihr mal daran gedacht?Hatten wir tatsächlich nicht dran gedacht. Mir gefällt das gut, dass wir da links so eine breite Wand für Garderobenfläche haben. Im vorigen Haus hat mir das etwas gefehlt. Da hatten wir nämlich direkt neben der Tür die Treppe, und mir fehlte immer etwas zum Hinsetzen und Schuhe tauschen. Das haben wir dann, pragmatisch wie man ist, immer auf der Treppe gemacht, obwohl die Garderobe nur 2-3 Meter weg war. Das soll diesmal anders werden.Ich lad' hier nochmal ein paar Bilder hoch wie's aktuell aussieht.
Y
Ypsi aus NI10.09.22 11:16Die Gegend ist echt mega! Kann mir vorstellen, wie toll der Ausblick aus dem Küchenfenster ist 😀
C
Costruttrice10.09.22 11:43Mich haben eure Hausansichten gleich an ein mediterranes Haus erinnert. Und es in cremeweiß mit weißen Sprossenfenster vor mir gesehen.
Habt ihr euch schon für Dachfarbe entschieden?
Habt ihr euch schon für Dachfarbe entschieden?
kati1337 schrieb:
Bei den Bauunternehmen hatten wir 3 in der engeren Wahl. Wir haben uns am Ende für den "Macher" entschieden - ein Bauunternehmer der uns hier über Freunde und Familie empfohlen wurde. Keine Homepage, kein Smartphone, steht aber jeden Tag selber im Blaumann auf der Baustelle. Hat eine sehr gute Reputation in der Gegend hier und macht eigentlich nur noch selten Einfamilienhaus.Ich sage ja immer, bei kundenfokussierten Bauunternehmern ist die Hohmpäidsch nahezu typisch entsprechend niedrig priorisiert. Aber daß so jemand auch noch "nur noch selten Einfamilienhaus macht" - Respekt !https://www.instagram.com/11antgmxde/
https://www.linkedin.com/company/bauen-jetzt/
Ähnliche Themen