ᐅ Grundstücksplanung - Wie Außenanlagen planen?
Erstellt am: 09.12.20 10:25
G
Grillhendl09.12.20 10:25Hallo ihr Lieben,
jetzt Wo unser Hausbau abgeschlossen ist bräuchte ich doch mal wieder etwas Input, da wir ein bisschen ratlos/ideenlos sind.
am Wochenende bekommen wir wieder für ein paar Wochen einen Bagger und der Carport und eine Trockensteinmauer soll realisiert werden.
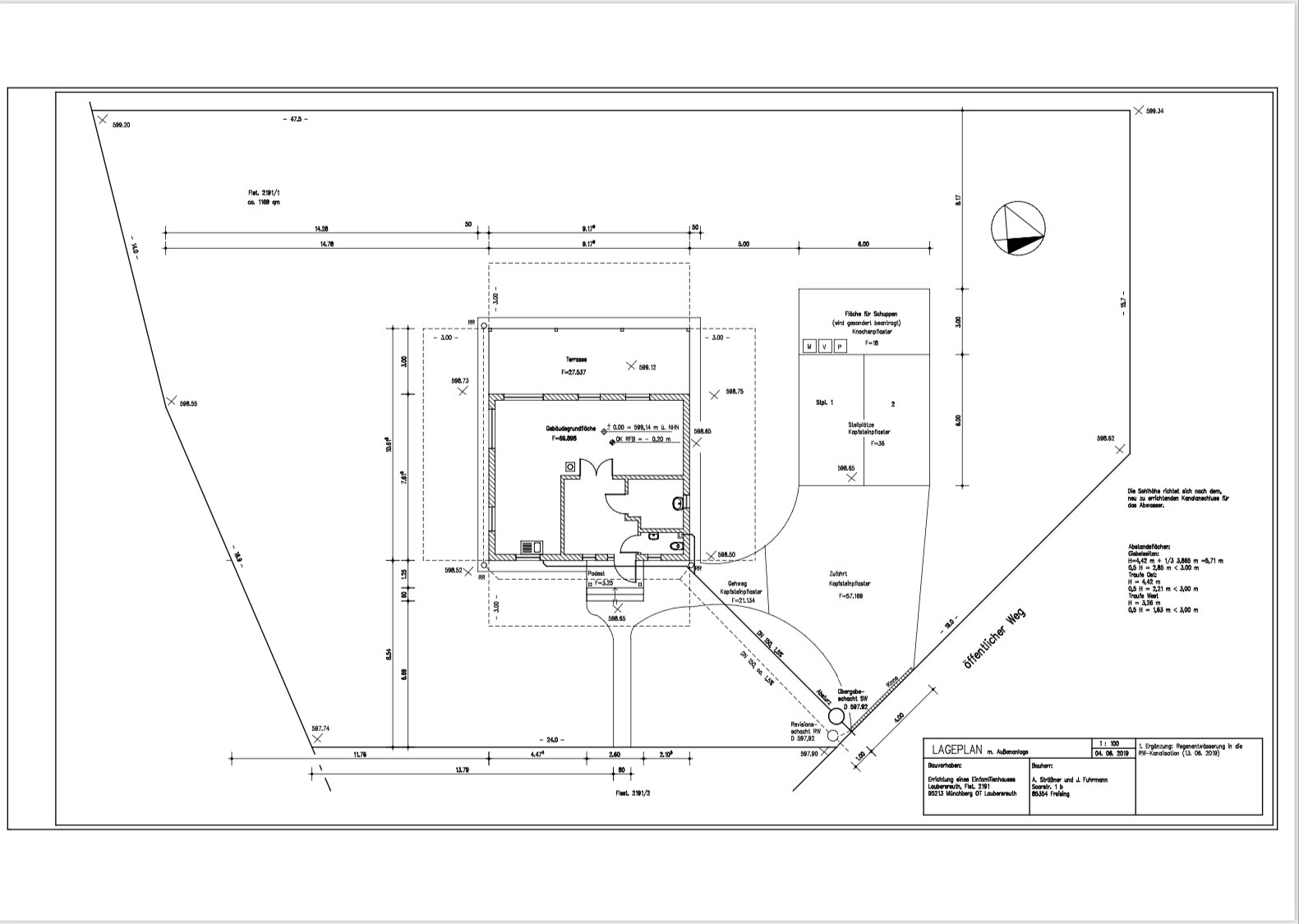
seinerzeit dachten wir, dass wir das so umsetzen wie auf dem Lageplan eingezeichnet. Jetzt im praktischen Leben finden wir das nicht mehr so toll :-(
der Carportbereich im Norden soll gleichzeitig als Wind und schallschutz nach Norden dienen und es soll ein BaustellenContainer (3x6m) integriert werden.
auf dem Lageplan steht er quer (als Schuppen gekennzeichnet) und davor zwei Stellplätze...allerdings sind uns 5m zwischen Haus nun zu viel. Jetzt hätten wir uns überlegt, den Container längs zu stellen, daneben ein Stellplatz und einen nicht überdachten Stellplatz zwischen Haus und Carport....aber ich weiß net recht.
die ganze zuwegung zum Grundstück stimmt auf dem Lageplan nicht mit der realität überein... im Moment fahren wir über das Nachbargrundstück unterhalb auf geradem Weg zum Haus hin ( und würden das evtl. gerne beibehalten-wegerecht ist eingetragen..) damit würde auch der kleine Weg von der Haustür nach Osten entfallen....
habt ihr irgendwelche Ideen? näher an die Nordgrenze können wir nicht gehen (ist auch nicht notwendig) allerdings können wir nicht weiter nach unten (Osten) rutschen. (Schwenkbereich landwirtschaftlicher „schwerlast„Verkehr ...)

jetzt Wo unser Hausbau abgeschlossen ist bräuchte ich doch mal wieder etwas Input, da wir ein bisschen ratlos/ideenlos sind.
am Wochenende bekommen wir wieder für ein paar Wochen einen Bagger und der Carport und eine Trockensteinmauer soll realisiert werden.
seinerzeit dachten wir, dass wir das so umsetzen wie auf dem Lageplan eingezeichnet. Jetzt im praktischen Leben finden wir das nicht mehr so toll :-(
der Carportbereich im Norden soll gleichzeitig als Wind und schallschutz nach Norden dienen und es soll ein BaustellenContainer (3x6m) integriert werden.
auf dem Lageplan steht er quer (als Schuppen gekennzeichnet) und davor zwei Stellplätze...allerdings sind uns 5m zwischen Haus nun zu viel. Jetzt hätten wir uns überlegt, den Container längs zu stellen, daneben ein Stellplatz und einen nicht überdachten Stellplatz zwischen Haus und Carport....aber ich weiß net recht.
die ganze zuwegung zum Grundstück stimmt auf dem Lageplan nicht mit der realität überein... im Moment fahren wir über das Nachbargrundstück unterhalb auf geradem Weg zum Haus hin ( und würden das evtl. gerne beibehalten-wegerecht ist eingetragen..) damit würde auch der kleine Weg von der Haustür nach Osten entfallen....
habt ihr irgendwelche Ideen? näher an die Nordgrenze können wir nicht gehen (ist auch nicht notwendig) allerdings können wir nicht weiter nach unten (Osten) rutschen. (Schwenkbereich landwirtschaftlicher „schwerlast„Verkehr ...)
G
Grillhendl09.12.20 10:29G
Grillhendl09.12.20 10:48Olli-Ka schrieb:
hm,
so ein schickes Haus und dann ein Baustellencontainer?Ja, der wird so in den carport integriert und mit Holz verschlagen, dass er nimmer als solcher erkennbar sein wird. Ist der ehemalige Büroconatiner meines Mannes und har auf der anderen Seite noch FensterG
Grillhendl05.01.21 12:34nachdem hier auch nicht wirklich Input gekommen ist, haben wir beschlossen "einfach mal loszulegen". Erst mal ging es der Europalette vor der Haustür an den Kragen.
Dazu haben wir viel Straßenpflaster und Gredsteine gesammelt, die verbaut werden sollte. an Heiligabend gings dann los und an den Feiertagen hatten wir dann endlich einen richtigen Hauseingang.
Allerdings müssen die vermoosten Steine noch geputzt werden. Und der eigentliche Haustürstein mit knapp einer Tonne war logistisch echt eine Herausforderung.... Teilnehmer: Bauherr, Bauherrin und ein Bagger nebst Mörtelmaschine ....





Dazu haben wir viel Straßenpflaster und Gredsteine gesammelt, die verbaut werden sollte. an Heiligabend gings dann los und an den Feiertagen hatten wir dann endlich einen richtigen Hauseingang.
Allerdings müssen die vermoosten Steine noch geputzt werden. Und der eigentliche Haustürstein mit knapp einer Tonne war logistisch echt eine Herausforderung.... Teilnehmer: Bauherr, Bauherrin und ein Bagger nebst Mörtelmaschine ....
H
hampshire05.01.21 13:45Das ist eine individuelle und schöne Arbeit geworden.
Dieses Zusammenspiel könntet ihr in der Pflasterung der Zufahrt wieder aufnehmen.
Dieses Zusammenspiel könntet ihr in der Pflasterung der Zufahrt wieder aufnehmen.
Ähnliche Themen