L
lalala-lalala10.10.23 08:49Hallo,
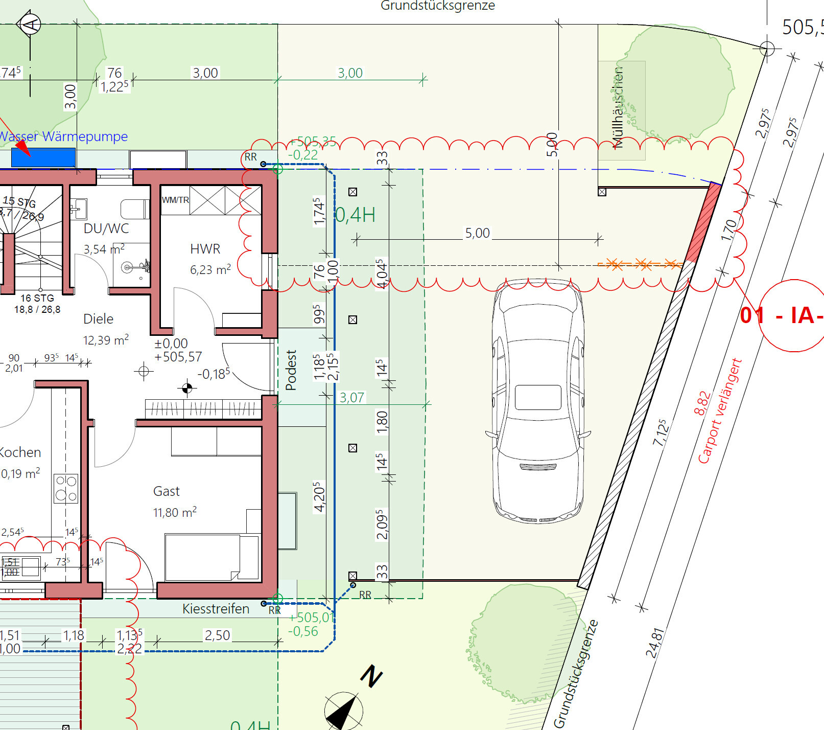
ich plane für meinen Neubau einen Carport, siehe Anhang.
Ursprünglich war eine Seitenlänge zum Nachbargrundstück von 7m geplant, das könnte man auf knapp 9m verlängern.
Carport sollte Freistehend sein (Fertighaus). Zwischen Carport und Hauswand plane ich eine Reihe VSG-Klarglas zur Belichtung.
Aktuell bin ich am überlegen wie ich das Ganze optimal auslege bzgl. Länge, mit integriertem Gartenhäuschen. Für 2 Autos nebeneinander wird denke ich zu eng?
Eine Idee wäre auch einen Stellplatz im Norden zur Straße hin zu machen.
Für euer allgemeines Feedback / Erfahrungen, Tipps bin ich dankbar.
Viele Grüße


ich plane für meinen Neubau einen Carport, siehe Anhang.
Ursprünglich war eine Seitenlänge zum Nachbargrundstück von 7m geplant, das könnte man auf knapp 9m verlängern.
Carport sollte Freistehend sein (Fertighaus). Zwischen Carport und Hauswand plane ich eine Reihe VSG-Klarglas zur Belichtung.
Aktuell bin ich am überlegen wie ich das Ganze optimal auslege bzgl. Länge, mit integriertem Gartenhäuschen. Für 2 Autos nebeneinander wird denke ich zu eng?
Eine Idee wäre auch einen Stellplatz im Norden zur Straße hin zu machen.
Für euer allgemeines Feedback / Erfahrungen, Tipps bin ich dankbar.
Viele Grüße
W
WilderSueden10.10.23 09:03Wir haben bei uns im Carport eine Innenbreite zwischen den Pfosten von 5,20m. Das reicht aus, schließlich kann man auch zwischen den Pfosten durch. Breiter wäre natürlich immer bequemer, aber man will alles nicht unbegrenzt groß machen. Hier sehe ich aber ein Problem mit dem Eingangspodest, das zweite Auto parkt dann direkt davor. Das Podest würde ich weglassen und alles auf einer Höhe machen. Dann bekommt man auch seine zwei Vehikel auf dem Grundstück unter. Alternativ das Haus noch einen Meter verschieben um Platz zu gewinnen.
Was willst du denn außer den Autos noch abstellen? Einen Geräteraum sehe ich hier nicht eingezeichnet. An Fahrräder will man auch kommen, wenn die Autos drin stehen, das ist hier nicht so günstig
Was willst du denn außer den Autos noch abstellen? Einen Geräteraum sehe ich hier nicht eingezeichnet. An Fahrräder will man auch kommen, wenn die Autos drin stehen, das ist hier nicht so günstig
L
lalala-lalala10.10.23 14:46Hallo,
danke für dein Feedback.
Haus versetzen eher schlecht, steht schon.
Podest kommt weg, geplant ist ebenerdig pflastern.
2 Autos wären schon gut.
Geräteraum im Südende muss ich mal schauen - wie tief sollte ein Carport fürs Auto sein - 6m?
Prinzipiell kann man auch eine mittlere Pfette vorsehen um bequemer links und rechts davon in den Carport reinzufahren. Das eingezeichnete Müllhäuschen ist nicht so geplant, da kann auch gepflastert werden.
Eine andere Idee ist, im Norden vom Haus einen weiteren Stellplatz einzuplanen.
Viel Glück

danke für dein Feedback.
Haus versetzen eher schlecht, steht schon.
Podest kommt weg, geplant ist ebenerdig pflastern.
2 Autos wären schon gut.
Geräteraum im Südende muss ich mal schauen - wie tief sollte ein Carport fürs Auto sein - 6m?
Prinzipiell kann man auch eine mittlere Pfette vorsehen um bequemer links und rechts davon in den Carport reinzufahren. Das eingezeichnete Müllhäuschen ist nicht so geplant, da kann auch gepflastert werden.
Eine andere Idee ist, im Norden vom Haus einen weiteren Stellplatz einzuplanen.
Viel Glück
S
Simon-18912.10.23 12:55Laut der bayrischen Stellplatzverordnung muss ein Parkplatz im öffentlichen Raum eine Breite von 2,30m und eine Tiefe von 5,00m aufweisen.
Die angedachten 6,00m passen daher schon ganz gut, dann kann man auch bei Regen noch an den Kofferraum und wird nicht nass, wenn man weit genug vor fährt.
Ich bin aber ein Fan von freien Garageneinfahrten und Carports. Mir wäre es lieber, auch mal genau mittig einfahren zu können, z.B. wenn man mal alle Türen komplett öffnen möchte und dazu nicht quer nach dem Durchfahren der beiden Stützen abstellen muss. Außerdem wäre mir die Gefahr des Anprallens zu groß und den Holzbinder entsprechend frei spannend größer bemessen lassen.
Die angedachten 6,00m passen daher schon ganz gut, dann kann man auch bei Regen noch an den Kofferraum und wird nicht nass, wenn man weit genug vor fährt.
Ich bin aber ein Fan von freien Garageneinfahrten und Carports. Mir wäre es lieber, auch mal genau mittig einfahren zu können, z.B. wenn man mal alle Türen komplett öffnen möchte und dazu nicht quer nach dem Durchfahren der beiden Stützen abstellen muss. Außerdem wäre mir die Gefahr des Anprallens zu groß und den Holzbinder entsprechend frei spannend größer bemessen lassen.
W
WilderSueden12.10.23 14:45lalala-lalala schrieb:
Eine andere Idee ist, im Norden vom Haus einen weiteren Stellplatz einzuplanen.So richtig viel Platz hast du da oben ja auch nicht und rangieren musst auch noch. 6m Tiefe sind ganz gut. Wir haben aufgrund der Grenzlänge nur 5m, da wird mein Octavia auch mal vorne und hinten nass. Ist jetzt nicht die Welt, schöner ist aber natürlich mit 6mlalala-lalala schrieb:
Eine andere Idee ist, im Norden vom Haus einen weiteren Stellplatz einzuplanen.Wenn ich das richtig sehe, dann hast du das Wärmepumpe Außengerät an der Hauswand eingezeichnet. Das muss mindestens 30-40cm von der Wand entfernt stehen, damit die Luft zirkulieren kann. So 50cm ist die Wärmepumpe dann auch noch tief. Also rechne mal knapp mit 80cm bis 1m, was dir dort fehlt. Da passt dann vermutlich kein Stellplatz mehr hin.
Ähnliche Themen