SaschaL schrieb:
Hast Du Tipps für einen GU, welcher auf Dich einen besseren Eindruck macht?SaschaL schrieb:
Ich würde schon KFW40+ haben wollen - einfach weil ich mir denke, dass das langfristig nicht falsch sein dürfte. Wandaufbau und Baumaterial sind mir "egal", was wahrscheinlich daran liegen dürfte, dass mir die Unterschiede nicht klar sind. Muss mich also weitaus mehr informieren. Könnt Ihr gute Literatur empfehlen für einen angehenden Bauherren?Das ist doch prima.Du hast 2 Prios, denen Du folgen kannst.
1. Kfw 40+, damit fallen viele schon raus.
2. Hochwertige Materialien, damit fällt die andere Hälfte raus
Naja.. ok... ein paar bleiben noch übrig 😉
Allerdings würde ich mich nicht zu sehr auf 40+ versteifen, sondern auch 40 oder 55 in die Waagschale legen, wenn sonst alles stimmt.
Dann würde ich mir 4-5 der größten Kfw40-Häuslebauer heraussuchen und mir Kataloge und die Bauleistungsbeschreibung schicken lassen. Zusätzlich in der Region umschauen, womit Deine „Nachbarn“ gebaut haben. Geht an den Wochenenden spazieren und kommt mit den Grundstücksbesitzern über den Gartenzaun ins Gespräch. Das geht auch mit Corona. Schaut Euch Baustellen an - da gibt es Schilder, auch Bauschilder der Bauherrn mit Telefonnummer 😉
Kataloge: Lass Dich von Wandphilosophien etc nicht verwirren.
Wichtig ist erstmal in der Bauleistungsbeschreibung (ohne auf Preis Leistung zu achten), was die für Qualitäten in der Ausstattung haben: Tondachpfannen, Holz- statt Kunststofftür, gute Sanitärprodukte, Markennamen, Ggf. auch innovativ.
SaschaL schrieb:
Ich bin der Typ: Ich möchte was hochwertigessiehe oben.Die Bauleistungsbeschreibung kann man übrigens mit allem und überall aufwerten.
Allerdings sind die teureren Häuslebauer auchnur deshalb teurer, weil sie eben hochwertiger bauen. Meistens.
SaschaL schrieb:
Ich werde mir nun auch nochmal grundlegende Gedanken zum Grundriss machen.Grundrisse sind ja fast alle ähnlich und in wenigen Schemata aufteilbar. Das ist erstmal unwichtig.
SaschaL schrieb:
Bett ist noch das simpelste (Wasserbett 2,40 x 2,20).Raumprogramm, genau! Und Dein Bett sprengt doch wieder die meisten Durchsvhnittssvhlafzimmer...
SaschaL schrieb:
wenn es ihr nach ihr geht 500 🙂Das ist doch dann ein Ziel: gleich ein kleines Zimmer mehr im Programm. Viebrockhaus ködert übrigens genau diese Frauen mit ihrem Jette-Haus und dem Taschen-Schuheraum. Der Grundriss ist der bescheidenste, den ich vom Fach je gesehen habe. Aber dieser Raum ist Gold wert 🙂ypg schrieb:
Ach so...
Buchtipp: Ich glaube, der Fliesenleger ist tot von Julia Karnick
Filmtipp: Einmal im Leben, Familie Semmeling (gibt es nichtDa hat sich ein Fehler eingeschlichen: in der Klammer, das gilt nicht. Schreiben wollte ich: Regie, Dieter WedelVielen Dank! Den toten Fliesenleger habe ich bereits vor einem Jahr gelesen! Danach war mir im ersten Moment gar nicht mehr nach bauen 😉
Habe mir nun noch Kataloge von anderen Anbietern hier in der Region schicken lassen. Die werden sich ja dann auch alle bei mir melden.
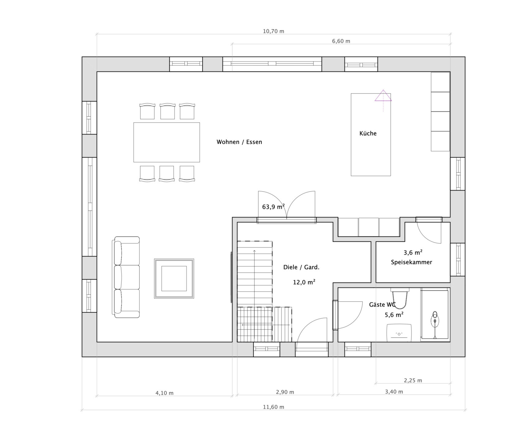
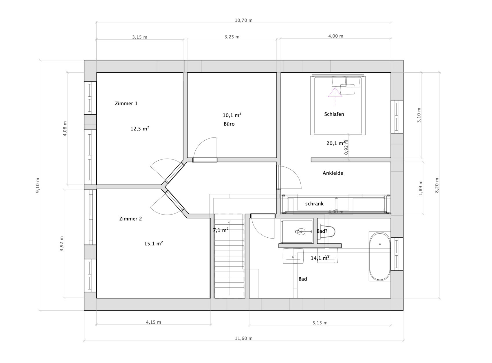
Wir sind hier nochmal in Gedanken alle "Wunschzimmer" durchgegangen und haben uns überlegt, wie groß die unserer Vorstellung nach wohl sein sollten, wie viele wir wirklich brauchen und wie das alles ca. aussehen soll, so daß wir uns wohlfühlen. Am Ende dann die "Bruttogrundfläche" zusammengerechnet und erkannt, dass wir brutto wohl gar keine 180qm brauchen - schon gar nicht, wenn der Keller noch dazu kommt. Wir kamen so auf 150qm... was dann wahrscheinlich round about 130-140 Wohnfläche werden. Hausbreite bliebe wegen des Grundstücks bei ca 9,10m - es würde dann aber kürzer werden, was wieder mehr Garten ergäbe...
Wir haben dann mal Grundriss gemalt (ich weiß, alles noch nicht so wichtig, aber wir haben da ja auch einfach Lust zu 🙂)... als Grundlage diente uns weiterhin der Grundriss vom E430 bei Viebrockhaus, weil wir auch nach mehrmaligem Durchdenken Gefallen an dem fanden... aber wir haben dann eben etwas kleinere Zimmer, ein Meter gespart in der Hauslänge, eine (wie ich finde) bessere Lösung für die Ankleide, keine Backup-Küche...
Wenn ihr da nun einen Blick drauf werft - immer dran denken: Ich bin Laie, aber ich will mir Mühe geben 🙂
Was sagt ihr? Totaler Mist? 😀
Was mir noch nicht gefällt:
- keine Ahnung, ob das mit der Treppe überhaupt so passt
- das Bad ist sicherlich nicht ideal geplant
- weiterhin oben "dunkler Flur", aber so selten sind Flure oben ohne Fenster nun auch nicht, oder macht man das nicht mehr?
Oh und... Nordpfeil vergessen, aber den kennt ihr ja inzwischen... Richtung Küche ist Norden ca.


Habe mir nun noch Kataloge von anderen Anbietern hier in der Region schicken lassen. Die werden sich ja dann auch alle bei mir melden.
Wir sind hier nochmal in Gedanken alle "Wunschzimmer" durchgegangen und haben uns überlegt, wie groß die unserer Vorstellung nach wohl sein sollten, wie viele wir wirklich brauchen und wie das alles ca. aussehen soll, so daß wir uns wohlfühlen. Am Ende dann die "Bruttogrundfläche" zusammengerechnet und erkannt, dass wir brutto wohl gar keine 180qm brauchen - schon gar nicht, wenn der Keller noch dazu kommt. Wir kamen so auf 150qm... was dann wahrscheinlich round about 130-140 Wohnfläche werden. Hausbreite bliebe wegen des Grundstücks bei ca 9,10m - es würde dann aber kürzer werden, was wieder mehr Garten ergäbe...
Wir haben dann mal Grundriss gemalt (ich weiß, alles noch nicht so wichtig, aber wir haben da ja auch einfach Lust zu 🙂)... als Grundlage diente uns weiterhin der Grundriss vom E430 bei Viebrockhaus, weil wir auch nach mehrmaligem Durchdenken Gefallen an dem fanden... aber wir haben dann eben etwas kleinere Zimmer, ein Meter gespart in der Hauslänge, eine (wie ich finde) bessere Lösung für die Ankleide, keine Backup-Küche...
Wenn ihr da nun einen Blick drauf werft - immer dran denken: Ich bin Laie, aber ich will mir Mühe geben 🙂
Was sagt ihr? Totaler Mist? 😀
Was mir noch nicht gefällt:
- keine Ahnung, ob das mit der Treppe überhaupt so passt
- das Bad ist sicherlich nicht ideal geplant
- weiterhin oben "dunkler Flur", aber so selten sind Flure oben ohne Fenster nun auch nicht, oder macht man das nicht mehr?
Oh und... Nordpfeil vergessen, aber den kennt ihr ja inzwischen... Richtung Küche ist Norden ca.
SaschaL schrieb:
Habe mir nun noch Kataloge von anderen Anbietern hier in der Region schicken lassen.Wer einen (ibs. auch: Print) Katalog hat, ist in der Regel kein regionaler Anbieter, auch wenn er seinen Sitz zufällig in der Region des Grundstückes haben mag !SaschaL schrieb:
Wir haben dann mal Grundriss gemalt [...] als Grundlage diente uns weiterhin der Grundriss vom E430 bei ViebrockhausSind Eure Malprogramme eigentlich alle bloß schwarzweiß ? - wenn da wo ein Kataloggrundriss variiert wird, die Abweichungen andersfarbig gemalt wären, würden sich die Variationen viel schneller prüfen lassen.https://www.instagram.com/11antgmxde/
https://www.linkedin.com/company/bauen-jetzt/
W
WilderSueden24.01.21 19:03Beim Bad würde ich auf jeden Fall Toilette und Dusche tauschen. Auf die Toilette geht man mehr als einmal am Tag. Und dann kann man die Handtücher auch irgendwo zwischen Dusche und Wanne aufhängen.
Ein Punkt der mir sofort auffällt ist das Büro. Machst du da wieder eine Gaube? Wie wird das Büro mit Licht versorgt?
Ein anderer Punkt ist die Dachschräge, Kniestock und Dachneigung. Wo läuft die 2m Linie etwa lang? Im Viebrockhaus geht die doch ein gutes Stück ins Haus rein und im Bad tu ich mir gerade schwer damit einzuschätzen ob die Laufwege auch passen oder ob man sich den Kopf stösst.
In der Ankleide würde ich noch ein Fenster setzen.
Ein Punkt der mir sofort auffällt ist das Büro. Machst du da wieder eine Gaube? Wie wird das Büro mit Licht versorgt?
Ein anderer Punkt ist die Dachschräge, Kniestock und Dachneigung. Wo läuft die 2m Linie etwa lang? Im Viebrockhaus geht die doch ein gutes Stück ins Haus rein und im Bad tu ich mir gerade schwer damit einzuschätzen ob die Laufwege auch passen oder ob man sich den Kopf stösst.
In der Ankleide würde ich noch ein Fenster setzen.
Ähnliche Themen