Hallo Miteinander
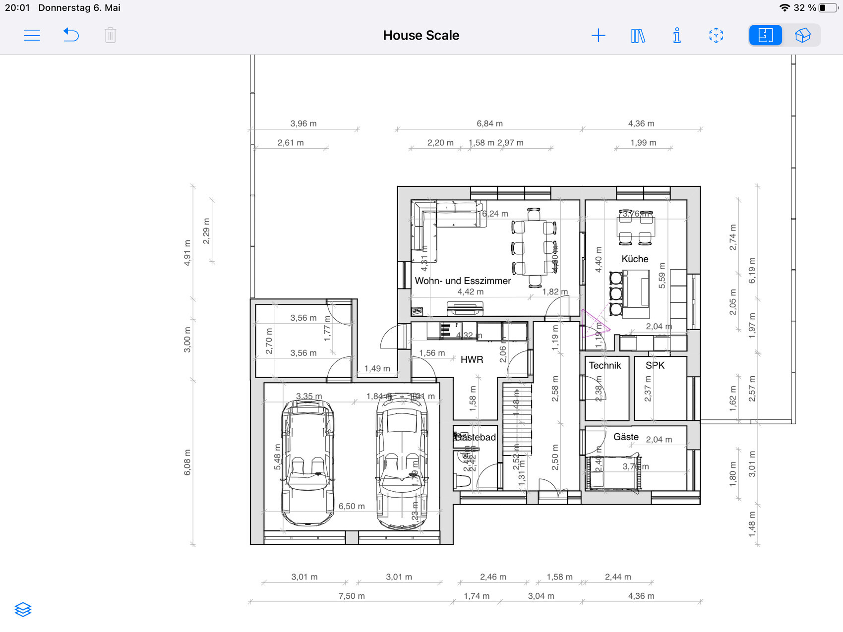
wir sind momentan in der Grundrissplanung von unserem Haus.
Uns würde mal euere Meinung interessieren bezüglich des Erdgeschosses. Was dran würdet ihr anders machen und warum ?
Ist der Technikraum zu klein, man könnte auch noch einen Teil des HWRs benutzen für die Stromanschlüsse.
Bebauungsplan/Einschränkungen
Größe des Grundstücks 669m2
Hang Nein
Randbebauung nur Garage
Anzahl Stellplatz 2
Geschossigkeit 2
Dachform Walmdach
Stilrichtung modern
Ausrichtung Süd
Maximale Höhen/Begrenzungen
weitere Vorgaben
Anforderungen der Bauherren
Stilrichtung, Dachform, Gebäudetyp
Keller, Geschosse
Anzahl der Personen, Alter
Raumbedarf im EG, OG
Büro: Familiennutzung oder Homeoffice?
Schlafgäste pro Jahr
geschlossene Architektur
moderne Bauweise
geschlossene Küche mit Kochinsel
Anzahl Essplätze 4
Kamin Ja
Balkon, Dachterrasse Nein
Garage
Nutzgarten, Treibhaus
Hausentwurf
Von wem stammt die Planung:
-Do-it-Yourself
Was gefällt besonders? Warum?
Was gefällt nicht? Warum? Hauswirtschaftsraum komisch geschnitten und Technikraum wahrscheinlich zu klein
favorisierte Heiztechnik: Erdwärme
Wenn Ihr verzichten müsst, auf welche Details/Ausbauten
-könnt Ihr verzichten:
-könnt Ihr nicht verzichten: Speisekammer/Gästezimmer
Was ist die wichtigste/grundlegende Frage zum Grundriss in 130 Zeichen zusammengefasst?



wir sind momentan in der Grundrissplanung von unserem Haus.
Uns würde mal euere Meinung interessieren bezüglich des Erdgeschosses. Was dran würdet ihr anders machen und warum ?
Ist der Technikraum zu klein, man könnte auch noch einen Teil des HWRs benutzen für die Stromanschlüsse.
Bebauungsplan/Einschränkungen
Größe des Grundstücks 669m2
Hang Nein
Randbebauung nur Garage
Anzahl Stellplatz 2
Geschossigkeit 2
Dachform Walmdach
Stilrichtung modern
Ausrichtung Süd
Maximale Höhen/Begrenzungen
weitere Vorgaben
Anforderungen der Bauherren
Stilrichtung, Dachform, Gebäudetyp
Keller, Geschosse
Anzahl der Personen, Alter
Raumbedarf im EG, OG
Büro: Familiennutzung oder Homeoffice?
Schlafgäste pro Jahr
geschlossene Architektur
moderne Bauweise
geschlossene Küche mit Kochinsel
Anzahl Essplätze 4
Kamin Ja
Balkon, Dachterrasse Nein
Garage
Nutzgarten, Treibhaus
Hausentwurf
Von wem stammt die Planung:
-Do-it-Yourself
Was gefällt besonders? Warum?
Was gefällt nicht? Warum? Hauswirtschaftsraum komisch geschnitten und Technikraum wahrscheinlich zu klein
favorisierte Heiztechnik: Erdwärme
Wenn Ihr verzichten müsst, auf welche Details/Ausbauten
-könnt Ihr verzichten:
-könnt Ihr nicht verzichten: Speisekammer/Gästezimmer
Was ist die wichtigste/grundlegende Frage zum Grundriss in 130 Zeichen zusammengefasst?
Sasi1901 schrieb:
Hauswirtschaftsraum komisch geschnitten und Technikraum wahrscheinlich zu kleinDann paßt der Hauswirtschaftsraum ja hervorragend zu den restlichen Räumen, komisch geschnitten ist hier eigentlich die ganze Hütte. In geradezu bemerkenswertem Maße, möchte ich hinzufügen.https://www.instagram.com/11antgmxde/
https://www.linkedin.com/company/bauen-jetzt/
T
thoughtless8606.05.21 21:59Die Garage ist schön... muss mich leider den anderen anschließen, hier passt nahezu keine Raumaufteilung & das mit der Speisekammer habe ich auch noch nicht verstanden...
Ähnliche Themen