S
sichtbeton8222.05.17 08:42Stimmt, Brüstung heisst es dann!
Mit der Statik hast du vollkommen Recht! Habe zwei H-Stähle mit eingeplant gem. aktualisiertem Anhang. Optisch gefallen uns blanke Stähle, ob der ausreichend tragend ist, muss man dann noch prüfen. Die Garderobe habe ich nun auch verlegt. Einmal die "Gäste"Garderobe im Eingangsbereich und die "heimische" an der neuen Trennwand von Treppe/Flur. Das mit dem vollen Einblick auf das Schlafzimmer ist auch ein sehr guter Hinweis! Habe es wie beigefügt nun mit zwei hohen Teilwänden anstatt einer komplett durchgehend Brüstung versucht zu umgehen.
Der Abstand der schränke beträgt 1,15m. Ist schade, dass man die Maße bei dem Tool nicht anzeigen lassen kann. Die Ankleide ist 3,13m*2,35m. Bei 2,35m dann abzgl.. zwei 60er Schränke, blieben 1,15m übrig.
Stimmt, das Bett steht nicht wirklich gut. Auch wenn ich mit Feng-Shui nichts am Hut habe, aber selbst das leuchtet mir ein . Habe das Bett (2m*2m) mal anders platziert und das Fenster verrückt.


Mit der Statik hast du vollkommen Recht! Habe zwei H-Stähle mit eingeplant gem. aktualisiertem Anhang. Optisch gefallen uns blanke Stähle, ob der ausreichend tragend ist, muss man dann noch prüfen. Die Garderobe habe ich nun auch verlegt. Einmal die "Gäste"Garderobe im Eingangsbereich und die "heimische" an der neuen Trennwand von Treppe/Flur. Das mit dem vollen Einblick auf das Schlafzimmer ist auch ein sehr guter Hinweis! Habe es wie beigefügt nun mit zwei hohen Teilwänden anstatt einer komplett durchgehend Brüstung versucht zu umgehen.
Der Abstand der schränke beträgt 1,15m. Ist schade, dass man die Maße bei dem Tool nicht anzeigen lassen kann. Die Ankleide ist 3,13m*2,35m. Bei 2,35m dann abzgl.. zwei 60er Schränke, blieben 1,15m übrig.
Stimmt, das Bett steht nicht wirklich gut. Auch wenn ich mit Feng-Shui nichts am Hut habe, aber selbst das leuchtet mir ein . Habe das Bett (2m*2m) mal anders platziert und das Fenster verrückt.
S
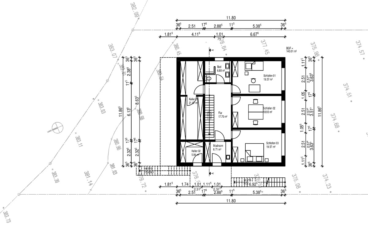
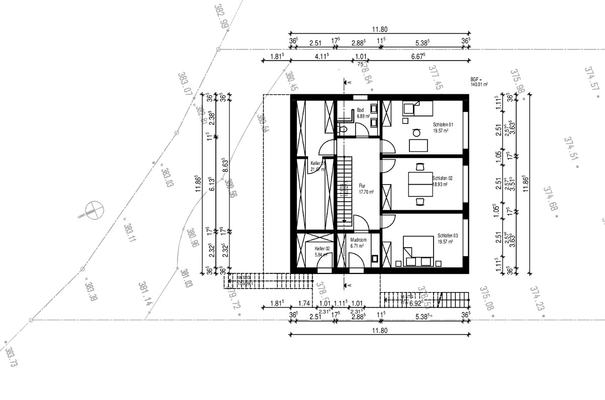
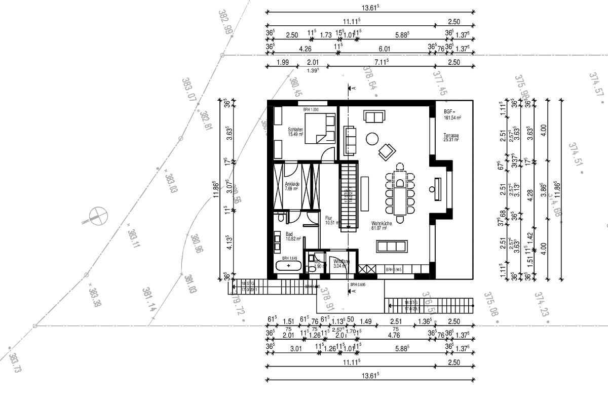
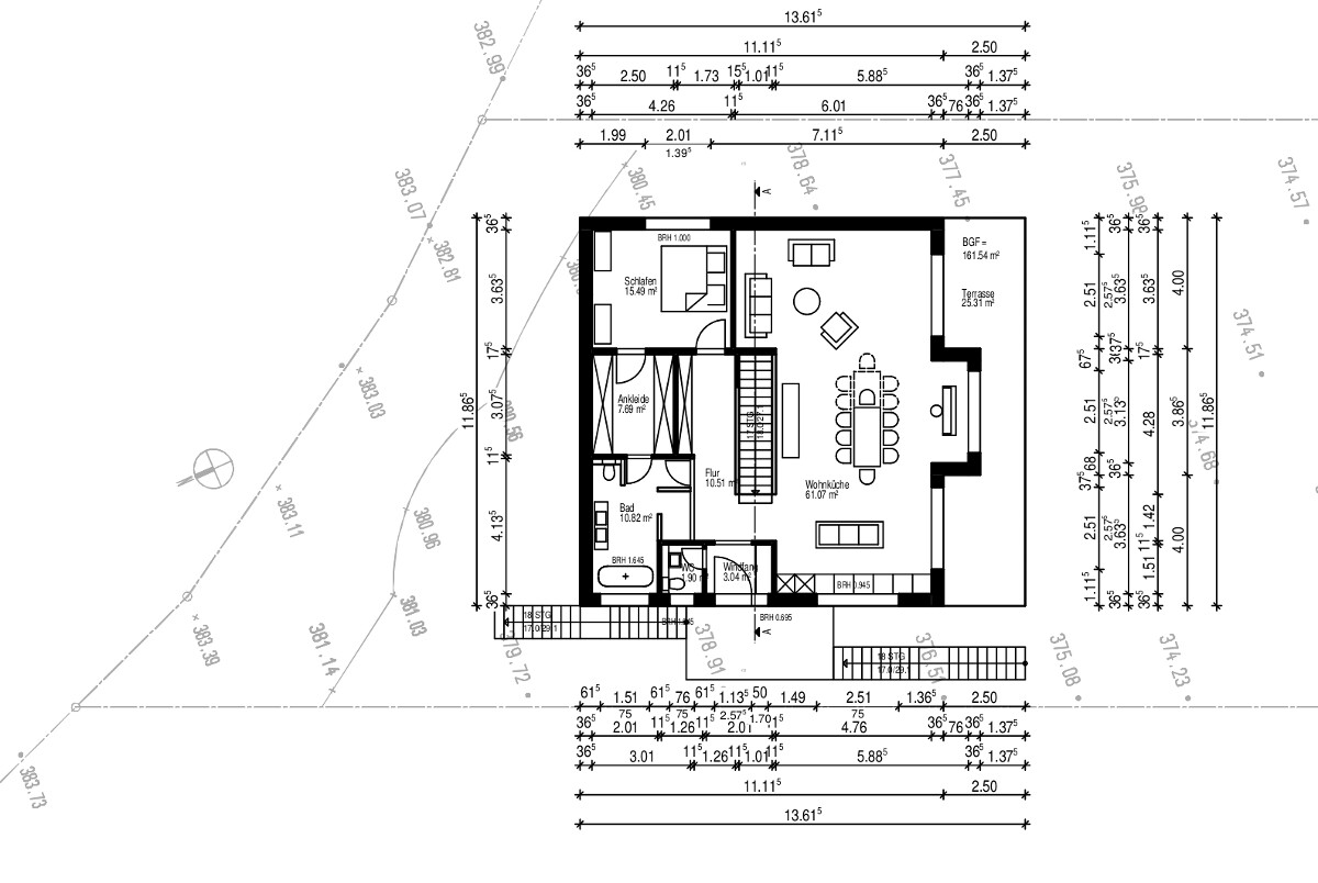
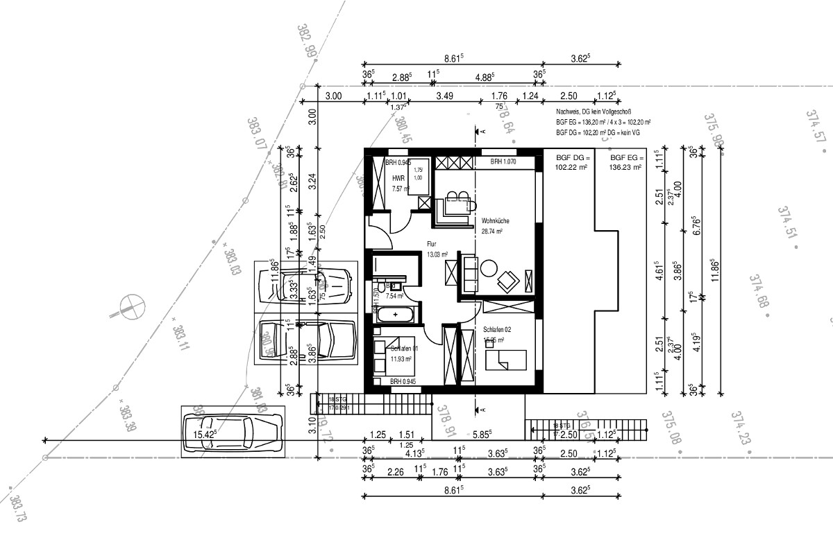
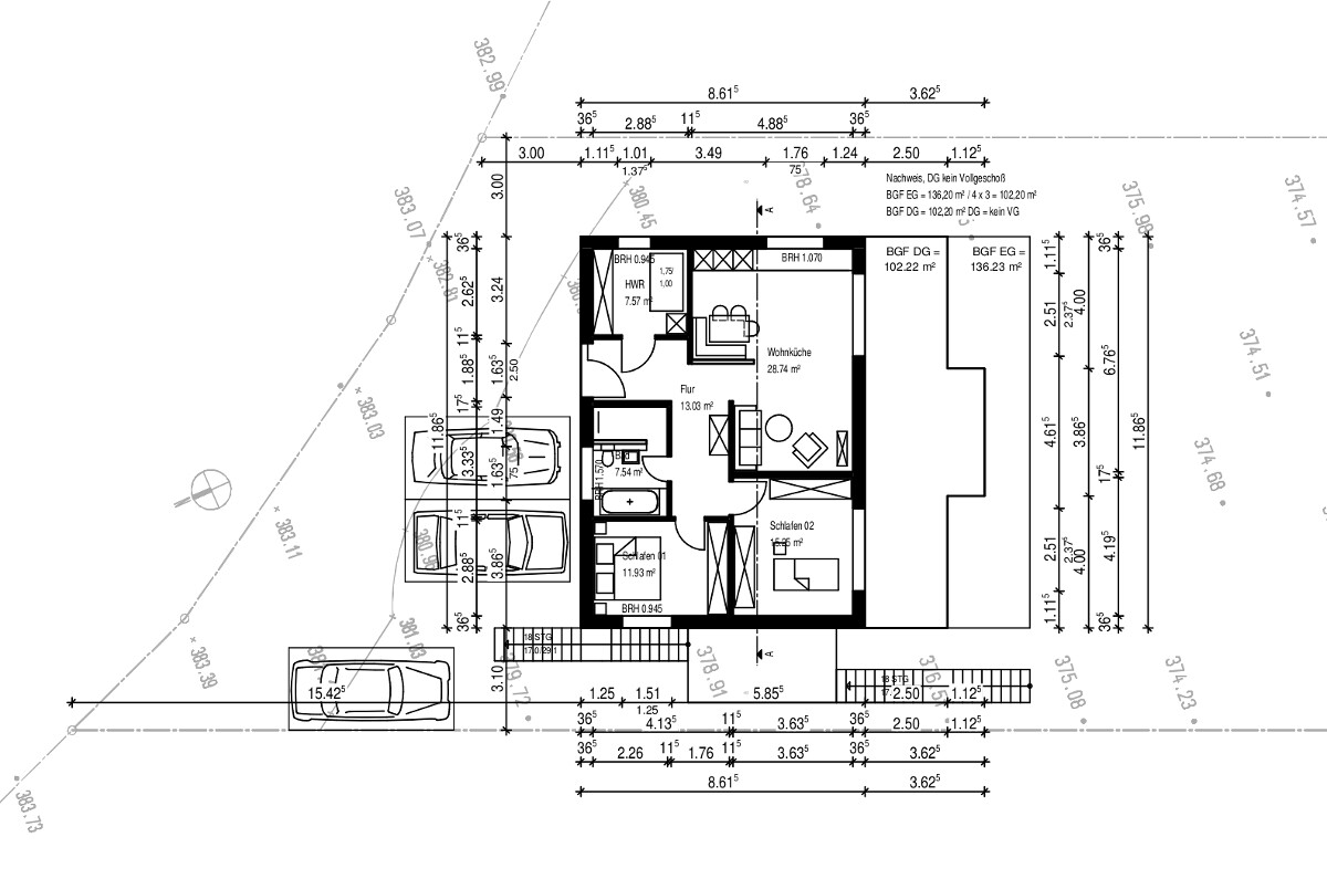
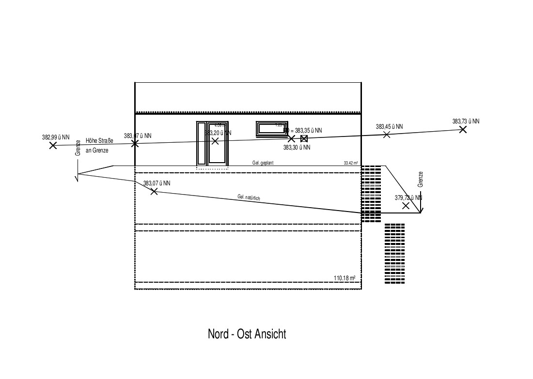
sichtbeton8205.09.17 09:51... Zeit vergeht ... Die Thematik Finanzierung war doch etwas zeitaufwendiger als gedacht. Zwar ist noch nichts unterschrieben, aber der Abschluss naht . Folgend mal die Grundrisse, Ansichten und der Schnitt zur Diskussion. Die Möblierung ist noch nicht angepasst, bspw. ist er Kopfteil vom Bett im EG an der Nordwand. Auch der Erker wird im EG vermutlich nicht so kommen. Entweder wird es keinen geben, oder er wird gänzlich Richtung Süden gezogen, damit ein Grundriss. Esstisch dort untergebracht werden kann.



S
sichtbeton8205.09.17 09:54Ähnliche Themen