Hausbau - Ratgeber
Bauherrenhilfe
- Bauherrenhilfe vor Vertragsabschluss
-- Warum einen unabhängigen Baubetreuer?
-- Vertragsgrundlagen
-- Bausumme
-- Zahlungsplan zur Kostenkontrolle
-- Pflichten des Bauherren vor Vertragsabschluss
-- Unterlagen beim Hausbau vor Vertragsabschluss
- Bauherrenhilfe nach Vertragsabschluss
-- Bauantrag bei Behörden
-- Bau-Genehmigungsverfahren bei Baubehörden
-- Bauspezifische Versicherungen
-- Bauzeitenplan
-- Baubeginn - die Letzten Pflichten der Bauherrschaft
- Bauherrenhilfe während der Bauzeit
- Gewährleistungsansprüche
- Bauabnahme
Baufinanzierung
- Baufinanzierung - Allgemeine Fragen
- Kreditarten
- Kredit-Konditionen
- Bausparen
- Staatliche Förderungen
- Verkehrswert
- Haushaltsrechnung und Bonität
Hausbau Planung
- Haustypen
- Hausbau Vorbereitungsarbeiten
- Das Baugrundstück
- Baugrund beim Hausbau
- Baurecht
- Gebäudeschutz
- Erdarbeiten und Wasserhaltung
- Stützmauern
- Einfriedung
- Untergeschoss
- Kanalisation
- Tragende Elemente
- Nichttragende Innenwände
- Fundation / Fundament
- Deckenkonstruktionen
- Dächer
- Kaminanlagen
- Treppen Rampen Leitern
- Dachbeläge und Spengler
- Fenster
- Sonnen und Wetterschutz
- Aussenputze
- Einbauten, Küchen, Türen
- Bodenbeläge und Unterlagsböden
- Parkett
- Gips, Wand, Decke
Haustechnik und Energie
- Heiztechnik
- Lüftung und Klimatechnik
- Sanitärtechnik
- Elektrotechnik
- Erneuerbare Energie
Whirlpools / Jacuzzi
Hausbau Magazin
- Baufinanzierung trotz Krise?
- Das Blockhaus
- Moderne Dämmstoffe im Vergleich
- Erker Vor- und Nachteile
- Glasflächen beim Hausbau
- Günstig ein Haus Bauen
- Mediterraner Hausbaustil
- Mehrgenerationenhaus
- Moderne Architektur
- Gartengestaltung leicht gemacht
- Traditioneller Ziegelbau
- Villa als höchster Traum
- Im Eigenheim Ruhestand geniessen
- Altbau sanieren
- Kauf einer Holzgarage
- Immobilienmakler
- Arbeitshandschuhe für den Winter
- Zuhause verschönern
- Outdoor-Plissees
- Schlafzimmer planen
- Terrassenüberdachung
- Wohngebäudeversicherung
- Zaunarten und Eigenschaften
- Hauseingang gestalten
- Der perfekte Grundriss
- Sparsamer heizen im Altbau
- Einfamilienhaus smart finanzieren
- Planung einer PV-Anlage
- Neues Haus
- Immobilienfinanzierung
- Installation einer Photovoltaikanlage
- Asbest erkennen und entfernen
- Gartenpflege im Frühling – worauf achten
- Sauna im Fokus - Wellness zuhause
- Erfolgreich vermieten
- Die perfekte Winterbekleidung
- Das Niedrigenergiehaus
- Der April und seine Stürme
- Architektonische Vielfalt
- Ökologisch und nachhaltig bauen
- Das perfekte Schlafzimmer
- Nachhaltige Energieversorgung
- Zukunftsorientiert bauen
- Nachhaltigkeit beim Hausbau
- Tiny Houses
- Wärmepumpen als nachhaltige Heizvariante
- Maßgeschneiderten Kleiderschrank
- Der richtige Baukredit
- Ratgeber für erfolgreichen Hausbau
- Haus als Altersvorsorge
Do-it-yourself Anleitungen
- Verlegeanleitung für Bodenbeläge und Parkett
- Bodenbeläge und Parkett reinigen und pflegen
- Malerarbeiten am Haus
- Garten Tipps
- Umzug und Reinigung

ᐅ Grundrissplanung für Zweifamilienhaus im Hang

Erstellt am: 16.05.17 14:23
S
sichtbeton82
Y
ypg
20.11.17 13:50

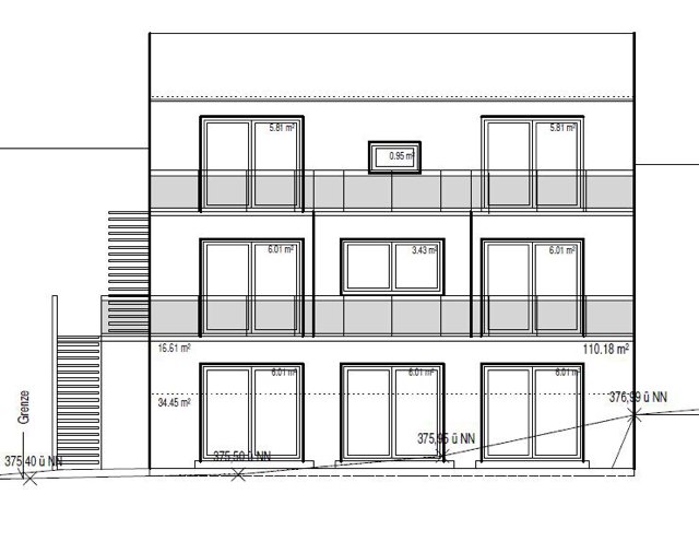
Architekturzeichnung: dreistöckiges Gebäude mit Balkonen, großen Fenstern und Treppe links.


Architekturzeichnung eines Hauses am Hang mit Geländekonturen, Maßlinien und Fenstern.


Schnittdarstellung eines mehrstöckigen Hauses am Hang mit Treppen und Terrassen.


Grundriss eines Hauses: 3 Schlafzimmer, Bad, Flur, Mudroom, Keller DG, Kellerräume.

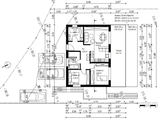
Grundriss eines Hauses: Wohnzimmer, Küche, Essbereich, Schlafzimmer, Bad, Flur, Terrasse inkl. Maße.


Grundriss eines Einfamilienhauses: Wohnzimmer, Küche, Bad, Schlafzimmer, Terrasse und Parkplätze.
11ant20.11.17 16:32
kbt09 schrieb:
Anhänge nicht sichtbar .. zumindest für den normalen Laptop-Nutzer nicht.
Ich sehe auch nur die Anhänge in #31 - und (@Admin) rückwirkend auch alle anderen Anhänge dieses Beitrages nicht mehr (meinerseits unverändert, Desktop / Opera).

Als wesentliche Änderung sehe ich nur eine Verschlimmbesserung, die ich nicht alpzuträumen gewagt hätte: die alle Fenster gleich-Fassade hat nun ein "U" aus sieben gleichen Fenstern, und an den mittleren oberen beiden Positionen des 3x3-Rastergitters sind nun zwei wie Fehler wirkende Formate platziert. Offenbar kann man wirklich alles noch toppen.

Also bis auf zwei wurden alle Kritikpunkte beibehalten, und diese zwei dann auch noch verschlechternd gelöst.

Das sieht wirklich aus, als sei ein Anhänger des Dadaismus Bauingenieur geworden. Mops kotzt
https://www.instagram.com/11antgmxde/
https://www.linkedin.com/company/bauen-jetzt/
11ant20.11.17 16:54
11ant schrieb:
Ich sehe auch nur die Anhänge in #31 - und (@Admin) rückwirkend auch alle anderen Anhänge dieses Beitrages nicht mehr (meinerseits unverändert, Desktop / Opera).
Nun sind sie seit wenigen Minuten wieder da.
11ant schrieb:
Als wesentliche Änderung sehe ich nur eine Verschlimmbesserung, die ich nicht alpzuträumen gewagt hätte: die alle Fenster gleich-Fassade hat nun ein "U" aus sieben gleichen Fenstern,
Das Vorher-Bild sieht man in #12, falls jemand vergleichen möchte
https://www.instagram.com/11antgmxde/
https://www.linkedin.com/company/bauen-jetzt/
Y
ypg
20.11.17 17:04
11ant schrieb:
Ich sehe auch nur die Anhänge in #31 - und (@Admin) rückwirkend auch alle anderen Anhänge dieses Beitrages nicht mehr (meinerseits unverändert, Desktop / Opera).

Die Anhänge sind wieder sichtbar
S
sichtbeton82
21.11.17 08:24
Das sieht wirklich aus, als sei ein Anhänger des Dadaismus Bauingenieur geworden. Mops kotzt

Haha! . Wenn die Bude mal fertig ist, werde ich das Liedchen "drei Chinesen mit dem Kontrabass" auf den Beat von "Da da da" zum Besten geben.

Mit der Auflehnung gegen das System kann ich leben. Kurz noch mal angerissen: Wichtig ist uns vor allem das Innere und über den Süden muss halt viel Licht rein. Hätte auch gerne den Süden komplett verglast, aber das wäre statisch zu aufwendig. Es bleibt also dabei, von innen funktioniert es, von außen ist es für den einen katastrophal für den anderen okay (frohlockend wird es bestimmt wirklich nicht... oder doch?). Ich bin selbst gespannt wie es nachher wirkt.

Anbei noch ein paar Bilder vom Grundstück. Ich weiß wäre von vornherein cleverer gewesen.

Ich hoffe, dass ihr bei der weiteren Phase auch weiterhin uns unterstützt mit Kritik, auch wenn wir nicht alles angenommen haben.

Was haltet ihr von Gaswärmepumpen speziell einer Zeolith-Gaswärmepumpe?

Außenansicht mehrerer Einfamilienhäuser in hügeliger Baumsiedlung mit Solarpanelen


Freier Baugrund mit Erde, Bäumen am Rand und sanfter Huegel-Landschaft im Hintergrund.
kaho67421.11.17 09:00
11ant schrieb:


Als wesentliche Änderung sehe ich nur eine Verschlimmbesserung, die ich nicht alpzuträumen gewagt hätte: die alle Fenster gleich-Fassade hat nun ein "U" aus sieben gleichen Fenstern, und an den mittleren oberen beiden Positionen des 3x3-Rastergitters sind nun zwei wie Fehler wirkende Formate platziert. Offenbar kann man wirklich alles noch toppen.
Naja, schön ist was anderes, das ist wahr. Man kann nur hoffen, dass die Sache durch den Versatz nach hinten etwas gemildert wird.

Ich hab nicht alles gelesen, sorry. Was mir spektakulär scheint, ist die Bad-Wand bei der Dusche. Ist die wegen Lichtmangel aus Glas? Das fänd ich megacool.