ᐅ Grundrissplanung Einfamilienhaus (Stadtvilla 140qm²) am Hang mit Doppelgarage
Erstellt am: 13.07.18 11:06
F
Franky73Pultdach mit 5° - wenn das auch geht, sähe die Sache etwa so aus:
Hab jetzt nur dem vorhandenen Grundriss mal der Länge nach das Dach aufgesetzt.
Bei Außenmaßen 10,5 x 9,4 müssten 2,20m unterschritten werden bei 6,3m / 3,1m. Bei 5° Dachneigung habe ich planrechts eine Wandhöhe von 1,93m und links 2,75m.
Brüstungshöhe Fenster in der Ansicht bei 0,8m.
Kenn mich mit Dächern nicht aus. Aber so hätte man natürlich relativ viel Höhe im OG. Bleibt natürlich die Frage, ob man den Grundriss dann komplett ändern sollte, das Haus drehen, Dach drehen usw.
Hab jetzt nur dem vorhandenen Grundriss mal der Länge nach das Dach aufgesetzt.
Bei Außenmaßen 10,5 x 9,4 müssten 2,20m unterschritten werden bei 6,3m / 3,1m. Bei 5° Dachneigung habe ich planrechts eine Wandhöhe von 1,93m und links 2,75m.
Brüstungshöhe Fenster in der Ansicht bei 0,8m.
Kenn mich mit Dächern nicht aus. Aber so hätte man natürlich relativ viel Höhe im OG. Bleibt natürlich die Frage, ob man den Grundriss dann komplett ändern sollte, das Haus drehen, Dach drehen usw.
kaho674 schrieb:
Zur Bauleistungsbeschreibung:
Find ich auf die Schnelle ganz gut.
Nachhaken würde ich bei
- Qualität des Innenputzes (Q1-Q4) genaue Angabe
- nur Alufensterbänke außen - würde ich nicht wollen - wir haben alles Marmor genommen.
- Deckenhöhe - Rohbaumaß 275 - wo liegt man letztendlich inkl. Fußboden? Unter 250 würde ich nicht gehen.
- Dachüberstände -Aufpreis?
- Entwässerung der Fallrohre - was ist vor Ort möglich?
- Fliesen im Bad auch im Fensterbereich? Geschmacksache.
- Blitzableiter dabei?
- Nur Gasheizung angeboten - liegt Gas an? Alternativen? (Großer Kostenfaktor.)
- Dusche im Gäste-WC Aufpreis?Eine Frage noch zum Innenputz. Q2 ist doch der Standard also sollte doch das Ziel sein Q3-Q4 in der Bauleistungsbeschreibung zu haben oder?kaho674 schrieb:
Pultdach mit 5° - wenn das auch geht, sähe die Sache etwa so aus:

Hab jetzt nur dem vorhandenen Grundriss mal der Länge nach das Dach aufgesetzt.
Bei Außenmaßen 10,5 x 9,4 müssten 2,20m unterschritten werden bei 6,3m / 3,1m. Bei 5° Dachneigung habe ich planrechts eine Wandhöhe von 1,93m und links 2,75m.
Brüstungshöhe Fenster in der Ansicht bei 0,8m.
Kenn mich mit Dächern nicht aus. Aber so hätte man natürlich relativ viel Höhe im OG. Bleibt natürlich die Frage, ob man den Grundriss dann komplett ändern sollte, das Haus drehen, Dach drehen usw.Katja, immer wieder vielen Dank für deine Arbeit. Genau so würden wir es uns wünschen. Sind dann sicherlich noch einige Dinge anzupassen aber es geht genau dahin was wir uns vorstellen. Fahren gleich zu einem Termin werde anschließend erzählen was möglich ist auf dieser Grundlage. Gruß FrankFranky73 schrieb:
Eine Frage noch zum Innenputz. Q2 ist doch der Standard also sollte doch das Ziel sein Q3-Q4 in der Bauleistungsbeschreibung zu haben oder?In die Bauleistungsbeschreibung wird man das vermutlich nicht rein bekommen. Nach meinen Erfahrungen ist das immer Aufpreis. Stand denn in der Bauleistungsbeschreibung Q2? hatte ich gar nicht gelesen. Wenn da nichts steht, musst Du mit dem Schlechtesten rechnen.Kommt auch auf darauf an, was Ihr an die Wände machen wollt.
kaho674 schrieb:
In die Bauleistungsbeschreibung wird man das vermutlich nicht rein bekommen. Nach meinen Erfahrungen ist das immer Aufpreis. Stand denn in der Bauleistungsbeschreibung Q2? hatte ich gar nicht gelesen. Wenn da nichts steht, musst Du mit dem Schlechtesten rechnen.
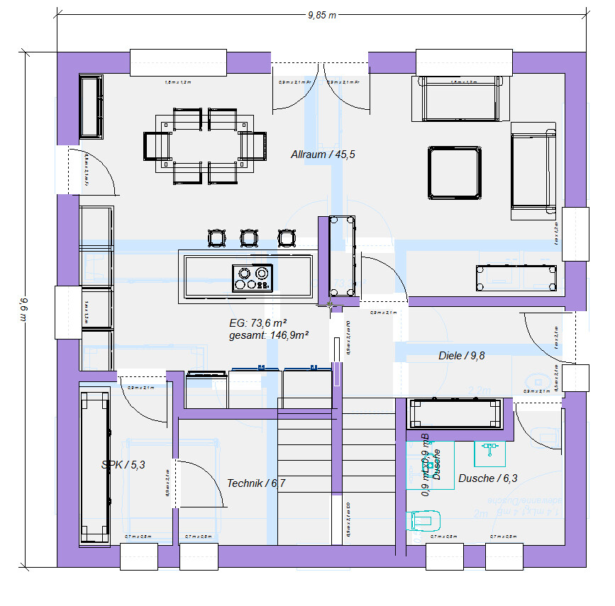
Kommt auch auf darauf an, was Ihr an die Wände machen wollt.So haben ein sehr gutes Gespräch gehabt. Werden in den nächsten Tagen die Bauleistungsbeschreibung erhalten, damit ich dieses dann mit der Anderen vergleichen kann. Der Preis, den ich erst wirklich später nennen möchte, wenn alles geklärt ist, liegt aber deutlich unter dem hier genannten, selbst wenn wir dann die D-Garage dazu nehmen und die ganzen Grundstücksarbeiten. Deine grobe Einordnung kommt dem ganzen schon sehr nahe! Ist auch BU aus der Gegend und der Standard was dort verbaut wird, soll identisch zu der Letzten des anderen Bu sein. Dieses BU kennt das andere und deren Bauleistungsbeschreibung. Wir haben da gleich mit offenen Karten gespielt.Mit dem Pultdach kommt man im OG natürlich mehr auf Höhe. Aber man hat dadurch auch mehr Steinchen und m² über 2m. Ich hab mal dran rumgeschoben - Bei diesem Grundriss - und ich wüßte nicht, wo man da noch sparen sollte, käme ich auf 146,9m².
Wenn Ihr auf 130 runter wollt, muss was anderes her oder irgendwas gestrichen werden.

Ich weiß auch nicht, ob das so schön wäre, 2 volle Zimmer durchgängig unter 2,20m Deckenhöhe zu ertragen. Ist das nun besser als Satteldach mit 1,20m Kniestock?
Mmh. Ich tendiere eher zum Klassiker.
Wenn Ihr auf 130 runter wollt, muss was anderes her oder irgendwas gestrichen werden.
Ich weiß auch nicht, ob das so schön wäre, 2 volle Zimmer durchgängig unter 2,20m Deckenhöhe zu ertragen. Ist das nun besser als Satteldach mit 1,20m Kniestock?
Mmh. Ich tendiere eher zum Klassiker.
Ähnliche Themen