ᐅ Grundrissplanung Einfamilienhaus, Stadtvilla, 135m²
Erstellt am: 16.06.15 20:38
B
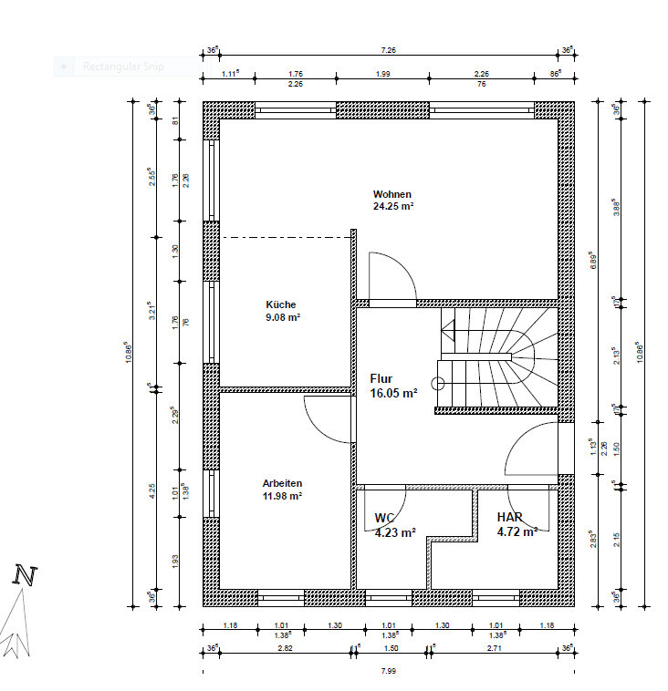
bratwurst16.06.15 20:38Anbei die Grundrisse unseres geplanten Einfamilienhaus. Es soll eine Stadtvilla mit 135m² werden. Wir sind 4 Personen (Kinder 1 u 3 Jahre) und benötigen ein Arbeitszimmer. Daher ist das EG etwas kompakt, was uns aber bewusst ist. Wir bauen mit GÜ, massiv, Poroton und ohne Keller.
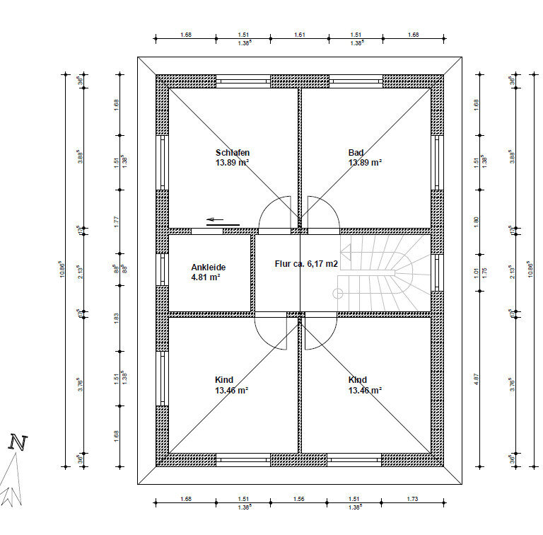
Wichtig waren uns große Kinderzimmer, eine offene Küche, ein Bad mit Dusche im EG und eine Treppe die nicht neben der Tür ist. Die Ankleide im OG wird eine Abstellkammer, aber da wird ja nur die Tür verschoben. Zusätzlich nutzen wir die Fläche unter dem Dach zur Ablage einiger wenig genutzten Sachen. Die Haustür haben wir zur Seite gelegt, zuerst war sie im Süden, da war der Flur aber sehr lang und schlauchig.
Nord-östlich neben Haus und Tür kommt ein Doppel-Carport. Die Zufahrt ist von Süden, der Garten wird im Norden sein. Hier ist ein kleiner Hang mit Bäumen, sodass wir vom Wohnzimmer eine schöne Aussicht ins grüne haben, auch wenn es weniger Licht gibt.



Wichtig waren uns große Kinderzimmer, eine offene Küche, ein Bad mit Dusche im EG und eine Treppe die nicht neben der Tür ist. Die Ankleide im OG wird eine Abstellkammer, aber da wird ja nur die Tür verschoben. Zusätzlich nutzen wir die Fläche unter dem Dach zur Ablage einiger wenig genutzten Sachen. Die Haustür haben wir zur Seite gelegt, zuerst war sie im Süden, da war der Flur aber sehr lang und schlauchig.
Nord-östlich neben Haus und Tür kommt ein Doppel-Carport. Die Zufahrt ist von Süden, der Garten wird im Norden sein. Hier ist ein kleiner Hang mit Bäumen, sodass wir vom Wohnzimmer eine schöne Aussicht ins grüne haben, auch wenn es weniger Licht gibt.
puh, kompakt trifft es gut.
- HAR mit <5m² und Fenster - was soll da an Technik rein? Ob da noch Platz für Waschmaschine&Trockner ist?
- Flur wird wohl ziemlich finster
- wo wollt ihr Schuhe und Jacken und was sonst noch so an Garderobe gebraucht wird (Schirme, Handschuhe, Mützen, Schals) für 4 Personen unterbringen?
- WC ist mit Dusche, korrekt?
Mir persönlich wäre es zu wenig Abstellfläche. Gibt es wenigstens einen Geräteschuppen oder sowas? Aber das ist auch eine Einstellunssache.
- HAR mit <5m² und Fenster - was soll da an Technik rein? Ob da noch Platz für Waschmaschine&Trockner ist?
- Flur wird wohl ziemlich finster
- wo wollt ihr Schuhe und Jacken und was sonst noch so an Garderobe gebraucht wird (Schirme, Handschuhe, Mützen, Schals) für 4 Personen unterbringen?
- WC ist mit Dusche, korrekt?
Mir persönlich wäre es zu wenig Abstellfläche. Gibt es wenigstens einen Geräteschuppen oder sowas? Aber das ist auch eine Einstellunssache.
B
bratwurst16.06.15 21:02In den HAR kommt eine Wärmepumpe und Waschmaschine mit Trockner (übereinander). Neben der Strom-UV, für was wird noch Platz benötigt? Hier fehlen mir "Erfahrungen" aus der Praxis, also ähnliche Räume selbst zu sehen. Wir haben noch Grundrisse von anderen Anbietern (die uns nicht so zusagen), da sind die Hauswirtschaftsraum auch nicht größer geplant.
Garderobe überlegen wir auch, wohl auf die Seite der Treppe.
WC im EG ist mit Dusche, daher auch die Einbuchtung in den Hauswirtschaftsraum.
Das Carport wird einen Abstellraum ca. 3x6m bekommen für Gartengeräte, Fahrräder, Auto-Reifen usw.
Garderobe überlegen wir auch, wohl auf die Seite der Treppe.
WC im EG ist mit Dusche, daher auch die Einbuchtung in den Hauswirtschaftsraum.
Das Carport wird einen Abstellraum ca. 3x6m bekommen für Gartengeräte, Fahrräder, Auto-Reifen usw.
bratwurst schrieb:
Hier fehlen mir "Erfahrungen" aus der Praxis, also ähnliche Räume selbst zu sehen....aber ein Musterhaus habt Ihr schon einmal besucht????
Und eine Waschmaschine betätigt Ihr zur Zeit? ... mit Waschkorb, Trockengestell, Bügelbrett...
Wo lagert Ihr denn jetzt Handwerkszeug, Glühbirnen, Batterien, Pflanzkrams, leere Gläser, volle Dosen, Küchengeräte? Was die Küche und Flur nicht bietet, muss der Hauswirtschaftsraum mit auffangen... gelbe Säcke, Leerglas, Getränkekisten!
Und eine Frage von mir: warum wird das Haus so an die Straßenkante gedrückt?
Und komm mir jetzt nicht mit der Aussage: damit wir einen grossen Garten nach hinten haben.
Hinten fallen einige Meter nicht auf, dafür wirds vorn ordentlich eng und nicht gerade komfortabel und nett... ich mag die Raumaufteilung jetzt nicht so, mir fehlt die Ausrichtung nach dem Sonnenstand. Ich halte Hauswirtschaftsraum und WC im Süden für überflüssig und sinnlos.
Ich sehe das wie die Vorredner auch schon: es wird eng und es fehlt Stauraum, den man doch gerade mit zwei kleinen Kindern benötigt (Saisonkleidung, Deko, Vorräte, Spielzeug, Werkzeug, etc.).
Mich würde auch stören, das ich die Einkäufe erst einmal durch das Wohn-/Esszimmer schleppen muss um in die Küche zu gelangen. Dafür zieht man ja dann meist auch nicht die Schuhe aus da man die schweren Kisten in einem rutsch reinschleppen und abladen möchte, und so schleppt man den Dreck erst einmal durch den ganzen Wohnbereich (unsere Küche liegt direkt links neben dem Hauseingang was ich als sehr praktisch empfinde).
Habt ihr euren Grundriss den schon einmal realistisch möbliert? Falls nicht würde ich das auf jedenfall einmal tun und mir vor allem auch einmal Gedanken zu der Küchenaufteilung machen (ich könnte mir zum Beispiel vorstellen das wenn ihr einen Tresen zm sitzen in der Küche plant es dann mit dem Esstisch eng werden könnte).
Mich würde auch stören, das ich die Einkäufe erst einmal durch das Wohn-/Esszimmer schleppen muss um in die Küche zu gelangen. Dafür zieht man ja dann meist auch nicht die Schuhe aus da man die schweren Kisten in einem rutsch reinschleppen und abladen möchte, und so schleppt man den Dreck erst einmal durch den ganzen Wohnbereich (unsere Küche liegt direkt links neben dem Hauseingang was ich als sehr praktisch empfinde).
Habt ihr euren Grundriss den schon einmal realistisch möbliert? Falls nicht würde ich das auf jedenfall einmal tun und mir vor allem auch einmal Gedanken zu der Küchenaufteilung machen (ich könnte mir zum Beispiel vorstellen das wenn ihr einen Tresen zm sitzen in der Küche plant es dann mit dem Esstisch eng werden könnte).
B
bratwurst17.06.15 05:08Ja möbliert haben wir schon, das passt. Küche haben wir auch im Küchenstudio geplant. Esstisch kommt direkt davor, da brauchen wir keinen Tresen.
Haus an die Straße gequetscht? Wieso hier sind 3m Platz oder ist das immer noch zu eng?
Bezüglich Ablage haben wir unter der Betontreppe noch einen Abstellraum, das habe ich vergessen zu erwähnen.
Haus an die Straße gequetscht? Wieso hier sind 3m Platz oder ist das immer noch zu eng?
Bezüglich Ablage haben wir unter der Betontreppe noch einen Abstellraum, das habe ich vergessen zu erwähnen.
Ähnliche Themen