ᐅ Grundrissplanung Einfamilienhaus 150qm - Tipps zur Verbesserung?
Erstellt am: 22.01.19 13:30
F
Franky73Franky73 schrieb:
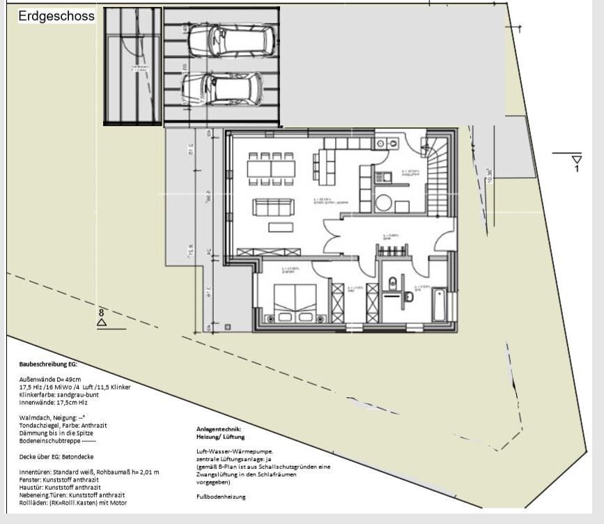
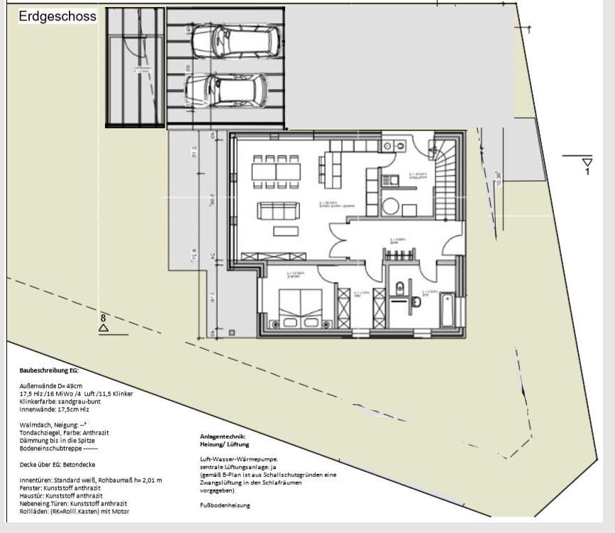
Da unsere Nachbarn (der Bungalow) nicht die Höhe der Straße angenommen haben, so wie die Häuser dahinter, sind wir nun ja gezwungen deren Höhe anzunehmen wenn wir an deren Seite das Carport positionieren wollen (Vorgabe Max. 3m Gelände/Carporthöhe) sonst ja nur mit Genehmigung des Nachbarn.Bei dem wird es an der Südseite ganz schön dunkel werden, wenn Ihr baut. Der wird ganz schön kotzen. Aber was gräbt der sich auch so ein?Ich weiß ja, die Grundrissdiskussion ist für Dich abgehakt, aber was ich bei Hang auch immer schön finde, sind breite Treppen, die die Wohnflächen trennen. So was hier:
kaho674 schrieb:
Ich weiß ja, die Grundrissdiskussion ist für Dich abgehakt, aber was ich bei Hang... ]Kaho, abgehakt ist es dann, wenn wir mit der Architektin "dakor" sind! Noch ist das nicht der Fall. Ich / wir wollen halt nur einen Kompromiss der auch unsere Wünsche berücksichtigt!kaho674 schrieb:


Sagt mir auch zu! Maße sind aber deutlich größer, oder?Franky73 schrieb:
Hier noch drei Bilder aus einer anderen Perspektive... jetzt könnt ihr mich wieder zerlegen! Schaut euch mal die L-Steine bei dem einen Nachbarn im Hintergrund an, das ist mehr als 1m L-Stein.Sieht nicht so aus das der Nachbar sich eingegraben hat oder?
Da hab ich jetzt eine Frage. Ich habe schon öfters gesehen....Kann man auf einem aufgelockerten Erdhaufen gründen? Hab immer gedacht das bekommt man nicht verdichtet! Deshalb wird doch immer Kies ab Straßenniveau aufgeschüttet und verdichtet.
Da kann man doch jetzt keine 25cm Kies drauflegen, verdichten und gut. Der liegt da gerade mal gefühlt nen halbes Jahr der Haufen. Oder irre ich mich?
Zaba12 schrieb:
Schaut euch mal die L-Steine bei dem einen Nachbarn im Hintergrund an, das ist mehr als 1m L-Stein.
Sieht nicht so aus das der Nachbar sich eingegraben hat oder?Der hinter dem Bungalow hat 2m L-Steine gesetzt! Der Bungalow ist aber ca. 1m weiter runter gegangen...
Zur Einschätzung, der bei uns aufgeschüttete Wall am Ende ist ca. 1,80m hoch!
Ähnliche Themen