Grundrissplanung Einfamilienhaus 150qm - Tipps zur Verbesserung?

4,30 Stern(e) 6 Votes
Zuletzt aktualisiert 22.11.2025
Sie befinden sich auf der Seite 25 der Diskussion zum Thema: Grundrissplanung Einfamilienhaus 150qm - Tipps zur Verbesserung?
>> Zum 1. Beitrag <<

F

Franky73

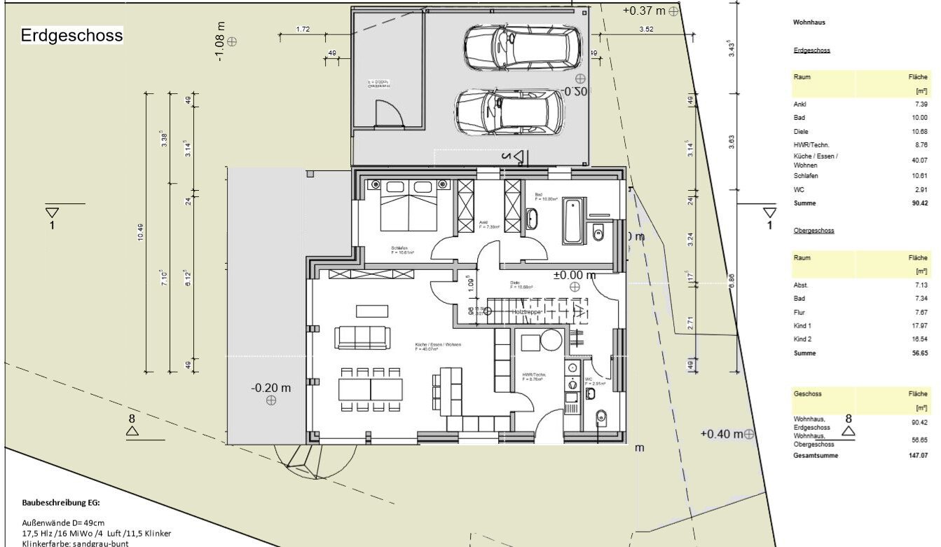
Du fängst immer wieder mit derselben Grundkonstellation von 5,9 bis 6,3 m Breite für den Wohn/Essraum, zusammen mit Küche fast ein Quadrat ... und das ist für diese Räumlichkeiten in der Regel die ungünstigste Raumform.
Ich fange damit ja nicht "wieder" an, sondern das sind ja nur die möglichen Optionen Variante 4 oder 4a. Wenn wir das EG (Wohn-Essbereich) noch größer machen wird es ja bald eine 180qm Villa! Das gibt unser Geldbeutel nicht her!
 
F

Franky73

Geht es nur mir so oder würde man die Sache nicht eher so anordnen:

Anhang anzeigen 32772

Auf den Zugang zum Hauswirtschaftsraum kannste pfeifen, das ist ja Quark, wie Yvonne schon schrieb. Da rennste mit den Klamotten immer durch die ganze Stube, um dann die Dreckschuhe in die Garderobe zu schaffen. Außerdem muss die Sonne in die Küche.
Ich find den Entwurf ansonsten nicht so schlecht. Der mangelnde Rückzugsort im WZ ist schade. Ein direkter Küchenzugang wäre mir auch wichtig, aber muss dann halt ohne gehen.
Wäsche wäre bei mir definitiv der Abstellraum oben. Mit den Stinkeklamotten immer am Kochtopf vorbei rennen, gäb's bei mir nicht.
Gebe dir Recht, deine aufgezeigte Variante wäre die sinnvollste!
 
F

Franky73

Geht es nur mir so oder würde man die Sache nicht eher so anordnen:

Anhang anzeigen 32772

Auf den Zugang zum Hauswirtschaftsraum kannste pfeifen, das ist ja Quark, wie Yvonne schon schrieb. Da rennste mit den Klamotten immer durch die ganze Stube, um dann die Dreckschuhe in die Garderobe zu schaffen. Außerdem muss die Sonne in die Küche.
Ich find den Entwurf ansonsten nicht so schlecht. Der mangelnde Rückzugsort im WZ ist schade. Ein direkter Küchenzugang wäre mir auch wichtig, aber muss dann halt ohne gehen.
Wäsche wäre bei mir definitiv der Abstellraum oben. Mit den Stinkeklamotten immer am Kochtopf vorbei rennen, gäb's bei mir nicht.
Ach Kaho, das Carport würde ich nur noch weiter nach hinten ziehen, dann hätte der Besuch dort noch die Möglichkeit zu parken. Außerdem ist ja der Nord-Ost-Bereich eh tot.
 
Y

ypg

Im EG (Variante 4) könnte man noch das Elternschlafzimmer Richtung Terrasse etwas raus ziehen um so das Bad ggf. noch ein wenig breiter zu gestalten.
Ich fange damit ja nicht "wieder" an, sondern das sind ja nur die möglichen Optionen Variante 4 oder 4a. Wenn wir das EG (Wohn-Essbereich) noch größer machen wird es ja bald eine 180qm Villa! Das gibt unser Geldbeutel nicht her!
Wieso das? Da lässt man einfach mal das T beiseite und nimmt ein L

Der Fehler ist wohl, dass Ihr bei dem Ansatz bleibt und nicht mal anders herangeht... bzw die Architektin.
 
11ant

11ant

Ein Pultdach würde es bei uns ja auch nicht besser machen!
Mein malerisches Talent langt leider noch nicht einmal für ein erheiterndes Ergebnis; vielleicht kann / mag Katja das ja mal "visualisieren" ?

Bisher fand ich den Grundriss (zumindest in Version 4a) ja ganz nett - in Beitrag #143 wirkt mir das Wohnzimmer aber wie ein Abstellraum für Möbel, zwischen denen man im Slalom läuft. Aber die moderne Quasi-Gleichsetzung von "Wohnen" mit "Fernsehen" ist generell nicht meine Welt.
 
Zuletzt aktualisiert 22.11.2025
Im Forum Grundrissplanung / Grundstücksplanung gibt es 2535 Themen mit insgesamt 87985 Beiträgen
Oben