ᐅ Grundrissplanung Doppelhaushälfte für 1 Familie (4 Personen) auf kleinem Grundstück
Erstellt am: 01.08.24 00:05
P
philipp013K a t j a schrieb:
Ich glaub, den TE hat der Schlag getroffen...Ich glaube eher, er hat vergessen, dass er hier einen Beitrag geschrieben hat.Wie sieht es bei euch aktuell aus?
Wir sind in folgender, ähnlicher Situation:
Hi zusammen, wir sind in einer sehr ähnlichen Situation. Haus mit Keller (Nachbar baut mit Keller, wollen wir auch und wäre aufgrund Fundamentanforderungen dringend Ratsam.
Das Haus soll 2 Vollgeschoss + Satteldach haben und max. FH 11m TH 6,5m SD 20°. 0,4 / 0,7 als Flächenvorgabe. eine Garage wäre toll aber ich vermute das wird eng.
Das Grundstück mit 240qm und 2 Stellplätzen als Vorgabe.
Wir sind auch etwas lost, uns ist wichtig, dass der Raum im EG und OG hell ist (sprich große Fensterflächen).
Auszüge aus dem Bebauungsplan

Gestaltung von Doppelhäusern und Hausgruppen
Doppelhäuser und Hausgruppen müssen die gleiche Dachform, Dachneigung und Firstrichtung (bei geneigten Dächern) aufweisen. Werden die Gebäude nicht gleichzeitig errichtet, so hat sich das später zu errichtende Gebäude hinsichtlich der oben genannten Kriterien nach den Vorgaben des zuerst gebauten Gebäudes zu richten.
Bei der Errichtung von Gebäuden mit Wohnungen sind je Wohneinheit notwendige Stellplätze wie folgt herzustellen:
▪ Pro Wohnung / Wohneinheit über 50 qm Wohnfläche mindestens 1,5 Stellplätze,
▪ Pro Wohnung / Wohneinheit bis 50 qm Wohnfläche mindestens 1,0 Stellplätze
Die Summe pro Bauvorhaben ist jeweils auf die nächste ganze Zahl aufzurunden (d.h. für Einzel-, Doppel-, Reihen- und Kettenhäuser sind mindestens 2,0 Stellplätze je Wohneinheit herzustellen).
Stellplätze, Garagen und Gebäude zur Unterbringung notwendiger Fahr-radabstellplätze und / oder Müllbehälter im WA 1 - WA 3 (§ 9 Abs. 1 Nr. 4 Baugesetzbuch und §§ 12 und 14 Baunutzungsverordnung)
Bei der Anlage von Stellplätzen und Garagen mit deren Zufahrten sind die im Planteil festgesetzten Bereiche ohne Ein- und Ausfahrt zu beachten.
A 5.1 Tiefgaragen (Tga)
Tiefgaragen sind auch außerhalb der überbaubaren Grundstücksflächen zulässig.
A 5.2 Oberirdische Garagen (Ga), überdachte Stellplätze / Carports (Cp) und Gebäude zur Unterbringung notwendiger Fahrradabstellplätze und / oder Müllbehälter
Garagen, Carports und Gebäude zur Unterbringung notwendiger Fahrradabstellplätze und / oder Müllbehälter sind auch außerhalb der überbaubaren Grundstücksflächen zulässig.
Zu den Grenzen öffentlicher Verkehrsflächen ist mit Garagen und Gebäuden zur Unterbringung not-wendiger Fahrradabstellplätze und / oder Müllbehälter ein Abstand von mindestens 0,5 m einzuhalten; an deren Zufahrts- oder Zugangsseiten mindestens 1,5 m.
Mit Carports (mit Stützen und Dächern) ist ein Abstand von mindestens 0,5 m zu den Grenzen öffentlicher Verkehrsflächen einzuhalten.
A 5.3 Offene Stellplätze (St)
Offene Stellplätze sind auch außerhalb der überbaubaren Grundstücksflächen auf der gesamten Baugrundstücksfläche zulässig, sofern keine anderen Festsetzungen (z.B. Pflanzgebote oder Zufahrtsverbote) dem entgegenstehen.
A 6 Sonstige Nebengebäude im WA 1 - WA 3 (§ 9 Abs. 1 Nr. 4. Baugesetzbuch und § 14 Baunutzungsverordnung)
Garagen, Carports und Gebäude zur Unterbringung notwendiger Fahrradabstellplätze und / oder Müllbehälter gelten nicht als Nebengebäude im Sinne der nachfolgenden Festsetzung:
Je Wohngebäude / Hauptgebäude ist nur ein Nebengebäude mit maximal 25 cbm zulässig. Der Mindestabstand von Nebengebäuden zu den Grenzen öffentlicher Verkehrsflächen beträgt 1,5 m.
Wir sind in folgender, ähnlicher Situation:
Hi zusammen, wir sind in einer sehr ähnlichen Situation. Haus mit Keller (Nachbar baut mit Keller, wollen wir auch und wäre aufgrund Fundamentanforderungen dringend Ratsam.
Das Haus soll 2 Vollgeschoss + Satteldach haben und max. FH 11m TH 6,5m SD 20°. 0,4 / 0,7 als Flächenvorgabe. eine Garage wäre toll aber ich vermute das wird eng.
Das Grundstück mit 240qm und 2 Stellplätzen als Vorgabe.
Wir sind auch etwas lost, uns ist wichtig, dass der Raum im EG und OG hell ist (sprich große Fensterflächen).
Auszüge aus dem Bebauungsplan
Gestaltung von Doppelhäusern und Hausgruppen
Doppelhäuser und Hausgruppen müssen die gleiche Dachform, Dachneigung und Firstrichtung (bei geneigten Dächern) aufweisen. Werden die Gebäude nicht gleichzeitig errichtet, so hat sich das später zu errichtende Gebäude hinsichtlich der oben genannten Kriterien nach den Vorgaben des zuerst gebauten Gebäudes zu richten.
Bei der Errichtung von Gebäuden mit Wohnungen sind je Wohneinheit notwendige Stellplätze wie folgt herzustellen:
▪ Pro Wohnung / Wohneinheit über 50 qm Wohnfläche mindestens 1,5 Stellplätze,
▪ Pro Wohnung / Wohneinheit bis 50 qm Wohnfläche mindestens 1,0 Stellplätze
Die Summe pro Bauvorhaben ist jeweils auf die nächste ganze Zahl aufzurunden (d.h. für Einzel-, Doppel-, Reihen- und Kettenhäuser sind mindestens 2,0 Stellplätze je Wohneinheit herzustellen).
Stellplätze, Garagen und Gebäude zur Unterbringung notwendiger Fahr-radabstellplätze und / oder Müllbehälter im WA 1 - WA 3 (§ 9 Abs. 1 Nr. 4 Baugesetzbuch und §§ 12 und 14 Baunutzungsverordnung)
Bei der Anlage von Stellplätzen und Garagen mit deren Zufahrten sind die im Planteil festgesetzten Bereiche ohne Ein- und Ausfahrt zu beachten.
A 5.1 Tiefgaragen (Tga)
Tiefgaragen sind auch außerhalb der überbaubaren Grundstücksflächen zulässig.
A 5.2 Oberirdische Garagen (Ga), überdachte Stellplätze / Carports (Cp) und Gebäude zur Unterbringung notwendiger Fahrradabstellplätze und / oder Müllbehälter
Garagen, Carports und Gebäude zur Unterbringung notwendiger Fahrradabstellplätze und / oder Müllbehälter sind auch außerhalb der überbaubaren Grundstücksflächen zulässig.
Zu den Grenzen öffentlicher Verkehrsflächen ist mit Garagen und Gebäuden zur Unterbringung not-wendiger Fahrradabstellplätze und / oder Müllbehälter ein Abstand von mindestens 0,5 m einzuhalten; an deren Zufahrts- oder Zugangsseiten mindestens 1,5 m.
Mit Carports (mit Stützen und Dächern) ist ein Abstand von mindestens 0,5 m zu den Grenzen öffentlicher Verkehrsflächen einzuhalten.
A 5.3 Offene Stellplätze (St)
Offene Stellplätze sind auch außerhalb der überbaubaren Grundstücksflächen auf der gesamten Baugrundstücksfläche zulässig, sofern keine anderen Festsetzungen (z.B. Pflanzgebote oder Zufahrtsverbote) dem entgegenstehen.
A 6 Sonstige Nebengebäude im WA 1 - WA 3 (§ 9 Abs. 1 Nr. 4. Baugesetzbuch und § 14 Baunutzungsverordnung)
Garagen, Carports und Gebäude zur Unterbringung notwendiger Fahrradabstellplätze und / oder Müllbehälter gelten nicht als Nebengebäude im Sinne der nachfolgenden Festsetzung:
Je Wohngebäude / Hauptgebäude ist nur ein Nebengebäude mit maximal 25 cbm zulässig. Der Mindestabstand von Nebengebäuden zu den Grenzen öffentlicher Verkehrsflächen beträgt 1,5 m.
D-Zug88 schrieb:
Wir sind in folgender, ähnlicher Situation:
Es ist etwas unfein, den Thread eines anderen zu kapern. Bitte eröffne doch einen eigenen Thread oder verlinke zu diesem.K a t j a schrieb:
Es ist etwas unfein, den Thread eines anderen zu kapern. Bitte eröffne doch einen eigenen Thread oder verlinke zu diesem.Da hast du recht sorry bin neu hier 🙂P
philipp01310.10.24 22:48K a t j a schrieb:
Ich glaub, den TE hat der Schlag getroffen...ypg schrieb:
Ich glaube eher, er hat vergessen, dass er hier einen Beitrag geschrieben hat.Ja, Entschuldigung, ich habe das wirklich komplett vergessen, die Begründung ist aber gut, es kam die Geburt meines zweiten Sohnes dazwischen, da habe ich es komplett vergessen, das ist natürlich kein guter Stil, entschuldigt bitte. Danke für die Anmerkungen!ypg schrieb:
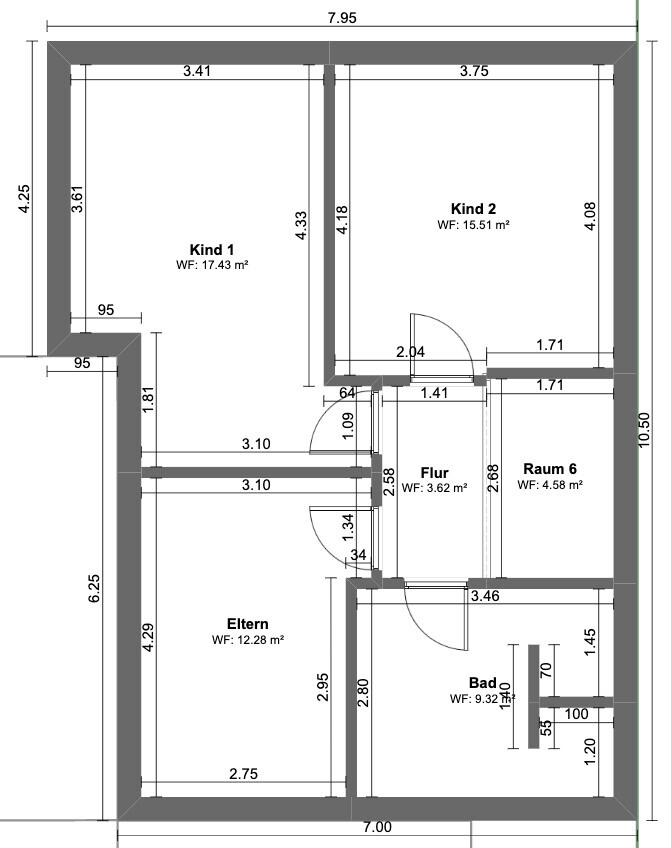
Allerdings würde ich das WZ mit Kü tauschen. Dafür das WC schmaler machen, Garderobe nach planlinks und den Raum als Rückzug planen. Küche wäre dann an der Terrasse und somit trennt man Lebebereich von Ruhebereich.Ich habe jetzt nach sehr wenig Feedback von der Planerin selbst gezeichnet und folgende Pläne, Teile deiner Ideen habe ich schon drin, allerdings auch den kompletten Verzicht auf das DG (zumindest vorerst), dazu gibt es einen extra Thread, also zum DG, das klammere ich hier erstmal aus, wäre ja sonst doppelt..Die Pläne hänge ich unten an, jetzt ist noch ein Büro dazugekommen, ich glaube das ist an der Stelle, an der du die Garderobe gesehen hast, richtig?
K a t j a schrieb:
Nach Adam Riese und Eva Zwerg reicht es imho gerade für 2 Etagen und Keller. Dach wird schon dünne. Wenn ich das richtig sehe, könntet Ihr eigentlich 7x12 bebauen aber die Kohle erlaubt nur 7x10, richtig?
Insgesamt hab ich die Befürchtung, dass Ihr Eure Ansprüche etwas runter schrauben müsst oder das Budget aufdrehen.S.o. den DG-Ausbau haben wir erstmal weg gelassen und umgeplant.Die Länge des Hauses liegt tatsächlich daran, dass der Bebauungsplan keine Terrasse außerhalb des Baufensters erlaubt, natürlich kann man eine Befreiung beantragen, einige Nachbarn haben das schon getan, allerdings wurde hier bisher nur eine kleine Überschreitung von ca. 2m erlaubt. Wir haben uns mal die Kosten für Anpassungen geben lassen, aktuell planen wir das Haus mit 10,5m (evtl. auch 11m; der Nachbar auf dem seit Kurzem verkauften anderen Doppelhaushälfte-Grundstück plant mit 10,5m), ein Vorschlag der Planerin war ein Erker (natürlich entsprechend teuer), der dann im EG und 1. OG für mehr Platz sorgen würde. Beides sieht man in den Plänen, die ich anhänge, ich tendiere aber ehrlicherweise dazu, den Erker wegzulassen. Ich finde ihn eigentlich super, habe aber Sorge, dass es einfach zu teuer werden könnte.
Wo ich noch unsicher bin:
- wegen dem DG (in dem Thema hier)
- Erker ja oder nein (ohne DG-Ausbau ist das Geld für den Erker da, aber lohnt es sich?)
- Grundriss im EG: das habe ich mir "ausgedacht" und weiß nicht, ob das so gut umgesetzt werden kann..
Ähnliche Themen