Grundrissplanung, Badplanung, Erfahrungen

4,60 Stern(e) 7 Votes
Zuletzt aktualisiert 12.10.2025
Sie befinden sich auf der Seite 2 der Diskussion zum Thema: Grundrissplanung, Badplanung, Erfahrungen
>> Zum 1. Beitrag <<

K a t j a

K a t j a

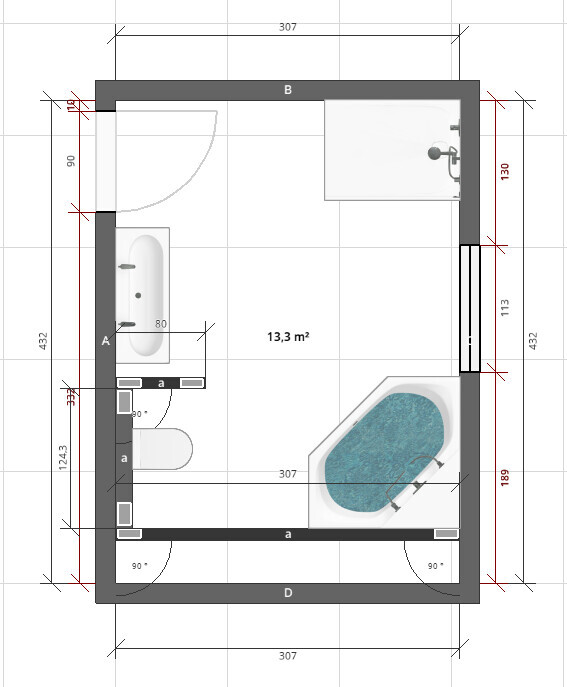
Ich denke, ich würde es so machen:


Grundriss eines Badezimmers mit Badewanne/Dusche, Dusche 1,5×0,9 m, Waschbecken, Toilette.

Das gibt bei mir bislang das beste Raumgefühl. Duschwände sind nur halbhoch gemauert und der Rest aus Glas - sonst wirkt es zu klotzig. Noch besser wäre eine bescheidenere Dusche, die sich in die Ecke schmiegt (90x90).
Über Wanne und Waschbecken idealerweise noch ein Dachflächenfenster einbauen, damit das Licht am Spiegel nicht nur von hinten kommt.
 
K a t j a

K a t j a

Wenn das Dachflächenfenster möglich ist, wird der Platz unter der Schräge noch mehr nutzbar (wegen etwas mehr Höhe) und das Licht wäre auch ein Gewinn. Das würde ich auf jeden Fall einplanen lassen.
 
Zuletzt aktualisiert 12.10.2025
Im Forum Bauplanung gibt es 5062 Themen mit insgesamt 100672 Beiträgen


Ähnliche Themen zu Grundrissplanung, Badplanung, Erfahrungen
Nr.ErgebnisBeiträge
1Wie gut sind Dachflächenfenster? - Seite 210
2Dachflächenfenster 2 oder 3-fach verglast 15
3Fensterplanung DG - Giebelfenster größer oder Dachflächenfenster 13

Oben