ᐅ Grundrissplanung ~138 m² Wohnfläche zwei Vollgeschosse Stadtvilla
Erstellt am: 11.04.17 01:25
R
rfreyHallo zusammen,
vielen Dank abermals für euren Input
Hi 11ant,
-nein diesmal haben wir kein Grundmodell. Einfach selbst losgelegt.
-Ja wir wollten das Büro als Arbeitszimmer und später evtl. mal fürs Alter nutzen und/oder Eltern zuvor. Da es aber einfach zu klein ist, werden wir es uns vorerst sparen.
Wir haben oben zwei Kinderzimmer. Da bisher noch keine Kinder vorhanden sind, werde ich eines als Arbeitszimmer nutzen. Sollten wir im Alter wirklich nicht mehr nach oben kommen, wird einfach der Wohn-/Essbereich verkleinert. Wir denken, wenn es soweit kommt, benötigt man auch keinen so großen Wohn- und Essbereich mehr
- Waschtisch war nur weg, um die m² zu sehen
Hi Yvonne,
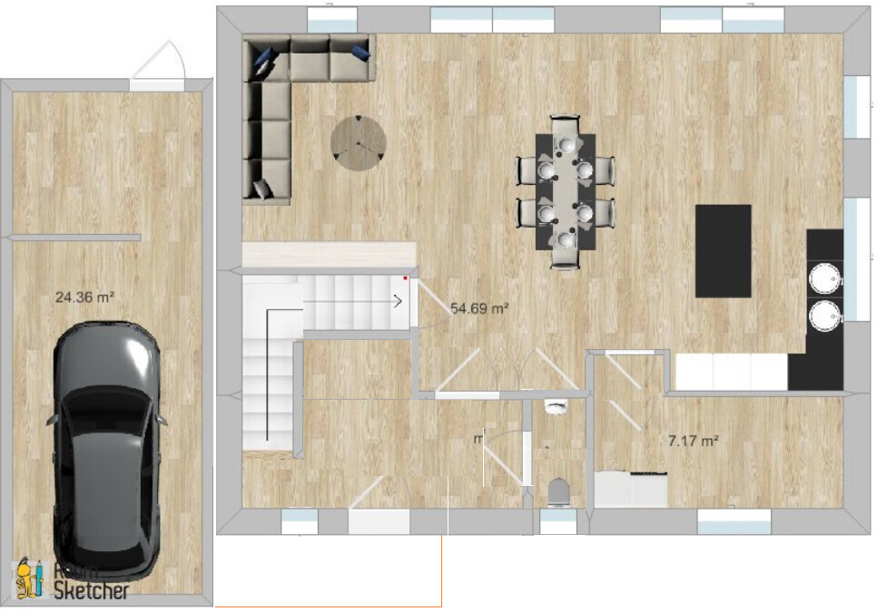
danke für den Hinweis, wir haben das Dusch/WC kleiner gemacht und eine offener kleiner Garderobenbereich eingebaut. Durch die zweiflügelige Glastür versprechen wir uns kein beengtes Gefühl im Eingangsbereich
Hm man kann nicht einfach in den Hauswirtschaftsraum-Bereich schauen?!
Hauswirtschaftsraum planrechts unten - Couchbereich planlinks oben
Ja planobenrechts um die Ecke soll eine Terrasse, deswegen ist etwas Platz für den Terrassenfenstern nicht schlecht. Eine Idee wie wir noch mehr aus der Küche "rausholen" könnten?
Wir haben kein Problem damit weiterzuschlafen Wir hatten erst überlegt einen Durchgang vorne an der Tür offenzuhalten, aber dann sieht man einfach die Schrankwände. Uns gefällt es so.
Wie breit sollte oben der Flur sein? Maße folgen vom aktuellen Grundriss.
Küche ist aktuell aber planrechts.
In den Hauswirtschaftsraum-Raum rechtsunten.
Hi 11ant,
ich teste die Idee gleich im Programm. Eigentlich mögen wir eine Halbpodesttreppe mehr. WIr sind schon von der geraden Treppe abgekommen, wenn wir auf der langen Seite den Eingang haben wollen.
Hi Karsten,
wir wohnen aktuell in einer 60m² Wohnung und sind auch sonst relativ minimalistisch angehaucht. Wissend, dass wir mit Kinder(n) mehr Stauraum als aktuell brauchen, so hoffen wir das ein Dachboden, verlängerte Garage, kl. Abstellraum unter der Treppe und aktuell 7m Kleiderschrank im Schlafzimmer ausreicht.
So nun noch ein paar Maße(immer Planlänge x Planbreite) im Plan und eine kleine Änderung im Eingangsbereich.
- Eingangsbereich: 1,76m x 3,36m
- Hauswirtschaftsraum: 1,81m x 4,01m
- Dusch/WC: 1,73m x 1,99m
- Küche/Wohn/Ess: 5,72m(rechte Seite), 9,66m breite, 3,76m(linke Seite)
OG
- Flurbreite: 1,09m
- Innenwand Schlafzimmer 3m
- Schlafzimmer 3,74m x 5,91m
- Kinderzimmer planoben rechts 4,32m x 3,60m
- Kinderzimmer planunten rechts 3,17m x 4,66m

vielen Dank abermals für euren Input
11ant schrieb:
Ja, das ist wirklich eine deutliche Änderung zu vorher. Gibt es wieder ein erprobtes Grundmodell, von dem der Plan abstammt ?
Das Büro ist nun weg ?
Was macht der Waschtisch so weit vor der Wand ?
Hi 11ant,
-nein diesmal haben wir kein Grundmodell. Einfach selbst losgelegt.
-Ja wir wollten das Büro als Arbeitszimmer und später evtl. mal fürs Alter nutzen und/oder Eltern zuvor. Da es aber einfach zu klein ist, werden wir es uns vorerst sparen.
Wir haben oben zwei Kinderzimmer. Da bisher noch keine Kinder vorhanden sind, werde ich eines als Arbeitszimmer nutzen. Sollten wir im Alter wirklich nicht mehr nach oben kommen, wird einfach der Wohn-/Essbereich verkleinert. Wir denken, wenn es soweit kommt, benötigt man auch keinen so großen Wohn- und Essbereich mehr
- Waschtisch war nur weg, um die m² zu sehen
ypg schrieb:
Ich seh da ein statisches Problem.
Die Breite des planunteren Teiles lässt vermuten, dass Du diese Räume unterbewertest.
Ein Windfang sollte Raum zum Eintritt, Willkommen heißen und Verabschiedung für Gäste geben. Lass mich raten: 1,80 Breite?
Das reicht nicht. Auch sehe ich keinen GarderobenSCHRANK für Wetterbekleidung für 4 Personen.
Dass man von der Couch direkt in den Hauswirtschaftsraum schaut, muss man mögen. Wo ist denn das für Homeoffice notwendige Büro geblieben?
Der Saal ist hinsichtlich Küche schlecht zu möblieren. Planoben rechts könnte man theoretisch streichen
Oben erscheint der Flur sehr schmal. Bereich Schlafzimmer/Ankleide sind alle Fehler, die man dort machen kann, vereint. ( mühseliges Umlaufen der Wand, um Klamotten zu erreichen, Stören des schlafenden Partners, wenn die Aufstehzeiten verschieden sind.)
Maße! Maße! Maße! Die fehlen. Bitte vermesse mal einige wichtige Referenzwände im Haus.
Das Verschieben von der Mittelwand um 50/100cm und Verlagerung der Küche nach planoben links könnte die Situation verbessern, aber ein wagemutiger Entwurf für eine Familie mit Kindern
Gruß, Yvonne
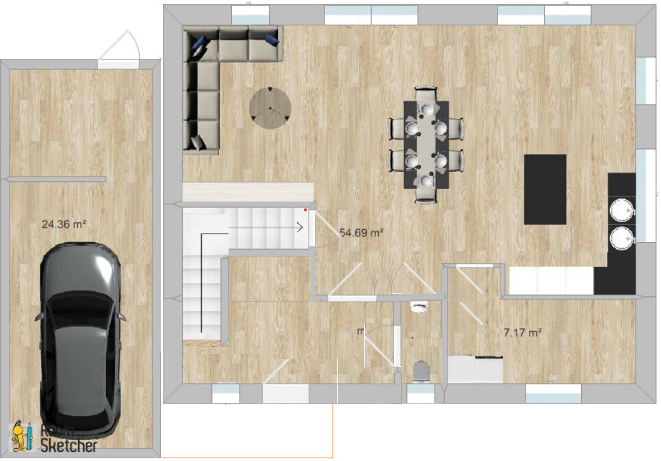
Hi Yvonne,
danke für den Hinweis, wir haben das Dusch/WC kleiner gemacht und eine offener kleiner Garderobenbereich eingebaut. Durch die zweiflügelige Glastür versprechen wir uns kein beengtes Gefühl im Eingangsbereich
Hm man kann nicht einfach in den Hauswirtschaftsraum-Bereich schauen?!
Hauswirtschaftsraum planrechts unten - Couchbereich planlinks oben
Ja planobenrechts um die Ecke soll eine Terrasse, deswegen ist etwas Platz für den Terrassenfenstern nicht schlecht. Eine Idee wie wir noch mehr aus der Küche "rausholen" könnten?
Wir haben kein Problem damit weiterzuschlafen Wir hatten erst überlegt einen Durchgang vorne an der Tür offenzuhalten, aber dann sieht man einfach die Schrankwände. Uns gefällt es so.
Wie breit sollte oben der Flur sein? Maße folgen vom aktuellen Grundriss.
Küche ist aktuell aber planrechts.
ypg schrieb:
Wo kommt denn die Technik des Hauses hin?
Gruß, Yvonne
In den Hauswirtschaftsraum-Raum rechtsunten.
11ant schrieb:
Mir fehlt gerade die Muße zum Zeichnen, daher mal nur als Regieanweisung in Deinen Plan reingeschrieben: ändere mal die Treppe in eine L-Form, bei Beibehalt des Austrittes; verschiebe dann die Haustür, und setze das Gäste-WC an den HAR / Speisekammer - wohl teilweise unter Verschiebung der Zwischenwände.
Die Garage bündig mit den Hausfluchten vorne und hinten kann man mit etwas Geschick gestalterisch sogar nutzen - mit Flachdach wird es allerdings besser aussehen, sie zu versetzen. Zum Beispiel vorziehen, in eine Flucht mit einem Haustürvordach.
Hi 11ant,
ich teste die Idee gleich im Programm. Eigentlich mögen wir eine Halbpodesttreppe mehr. WIr sind schon von der geraden Treppe abgekommen, wenn wir auf der langen Seite den Eingang haben wollen.
Nordlys schrieb:
Lebensentwürfe sind verschieden. Dennoch merke ich was an. Es fehlt Schrankstellfläche und Raum. Habt ihr keine Bücher? Kein gutes Geschirr fürs Festliche? Wir müssten in diesem RiesenWZ auf jeden Fall mehr Schrankfläche haben, das bedeutet dann, weniger Fenster. Statisch wird man das Zimmer mit einem Betonsturz o.ä. oder gar einer halben Wand teilen müssen, sonst hält das wohl nicht. Die Kochinsel ist zwar Tim Mälzerstyle, aber sowas ist teuer und bringt sachlich nur die Essensdünste ins WZ, da eine echt wirksame Abluftabsaughaube nicht geht. Muss man wollen. Das Gäste-WC kann kleiner, Diele dafür größer. Oben zu der Ankleide sag ich nur, wenn man auf sowas verzichtet, hat man ein herrlich luftiges Schlafzimmer. Was ist der sachliche Grund für so ein Abteilzimmer? Die KZ sind ok. Wenn die Küche wirklich da bleiben soll, könnte man die rechte obere WZ Ecke abhacken, da die Terrassentür schräg rein, man kriegt dann nen netten geschützten Freisitz und hat einen Hingucker, der weder viel Geld noch Raum kostet.da das Haus zu viert nicht vor Stauraum strotzt, muss da m.E. der Hauswirtschaftsraum größer. Da muss rein Technik, ne Spüle bzw. Ausgussbecken, die Waschmaschine, der Froster, evtl. Trockner, falls ihr nicht die Wäscheleine bevorzugt. Außerdem muss da rein Schuhplatz für die Dreckigen, Platz für Arbeitszeug, den Gartenoverall und so, also eine Art Schrank muss reinpassen. Das geht, geht dann aber zu Lasten der Wohnküche. There is no free Lunch. Karsten
PS. Noch was. Hauswirtschaftsraum muss auch von außen ne Tür kriegen. Ist praktisch.
Hi Karsten,
wir wohnen aktuell in einer 60m² Wohnung und sind auch sonst relativ minimalistisch angehaucht. Wissend, dass wir mit Kinder(n) mehr Stauraum als aktuell brauchen, so hoffen wir das ein Dachboden, verlängerte Garage, kl. Abstellraum unter der Treppe und aktuell 7m Kleiderschrank im Schlafzimmer ausreicht.
So nun noch ein paar Maße(immer Planlänge x Planbreite) im Plan und eine kleine Änderung im Eingangsbereich.
- Eingangsbereich: 1,76m x 3,36m
- Hauswirtschaftsraum: 1,81m x 4,01m
- Dusch/WC: 1,73m x 1,99m
- Küche/Wohn/Ess: 5,72m(rechte Seite), 9,66m breite, 3,76m(linke Seite)
OG
- Flurbreite: 1,09m
- Innenwand Schlafzimmer 3m
- Schlafzimmer 3,74m x 5,91m
- Kinderzimmer planoben rechts 4,32m x 3,60m
- Kinderzimmer planunten rechts 3,17m x 4,66m
Würden massiv gebaut werden zwischen 11-17cm Steine (Im Plan sind alle Innenwände mit 15cm geplant.
Anbei noch ein angepasste Grundrisse
- Küche und Wohnbereich getauscht
- Hauswirtschaftsraum ist größer gemacht worden
- Dadurch ist der Eingangsbereich etwas größer.
- Ankleidezimmer ohne Umweg zugänglich. Tür versetzt.
Vielen Dank für die ganzen Anregungen. Das hilft uns echt weiter
Schöne Ostern an alle!


Anbei noch ein angepasste Grundrisse
- Küche und Wohnbereich getauscht
- Hauswirtschaftsraum ist größer gemacht worden
- Dadurch ist der Eingangsbereich etwas größer.
- Ankleidezimmer ohne Umweg zugänglich. Tür versetzt.
Vielen Dank für die ganzen Anregungen. Das hilft uns echt weiter
Schöne Ostern an alle!
Gleich vorweg: nicht meckern ! - das ist KEIN Gegenentwurf, sondern nur mal ganz schnell in Deine Zeichnung hineingeschnipselt, wo (so ungefähr) ich Dich hinschubsen wollte:

Die orange Linie möge das Vordach des Hauseinganges andeuten. Die Tür zum Stauraum unter der Treppe kann ggf. noch auf die Dielenseite umziehen. Wohlgemerkt, nur eine Skizze für die ungefähre Schubsrichtung. Insofern bedeuten die Elemente die ich unangetastet gelassen habe nicht, daß ich die so alle optimal fände; sondern mir geht es nur darum, "minimalinvasiv" einen Impuls zu geben.
Die Kochinsel zum Beispiel halte ich für Murks, das gibt eine garantierte ständige Tropfspur zwischen Herd und Spüle / Ausguß. Im Fernsehen klappt das prima, aber da macht der Moderator mit den Zuschauern ein Telefonquiz, während dessen die Regieassistenten die schmutzig gewordenen Schüsselchen aus dem Bild räumen können. Das fehlt daheim, und trägt entscheidend dazu bei, daß die Wirklichkeit nicht ganz so easy chic funktioniert.
https://www.instagram.com/11antgmxde/
https://www.linkedin.com/company/bauen-jetzt/
Die orange Linie möge das Vordach des Hauseinganges andeuten. Die Tür zum Stauraum unter der Treppe kann ggf. noch auf die Dielenseite umziehen. Wohlgemerkt, nur eine Skizze für die ungefähre Schubsrichtung. Insofern bedeuten die Elemente die ich unangetastet gelassen habe nicht, daß ich die so alle optimal fände; sondern mir geht es nur darum, "minimalinvasiv" einen Impuls zu geben.
Die Kochinsel zum Beispiel halte ich für Murks, das gibt eine garantierte ständige Tropfspur zwischen Herd und Spüle / Ausguß. Im Fernsehen klappt das prima, aber da macht der Moderator mit den Zuschauern ein Telefonquiz, während dessen die Regieassistenten die schmutzig gewordenen Schüsselchen aus dem Bild räumen können. Das fehlt daheim, und trägt entscheidend dazu bei, daß die Wirklichkeit nicht ganz so easy chic funktioniert.
https://www.instagram.com/11antgmxde/
https://www.linkedin.com/company/bauen-jetzt/
Ähnliche Themen