ᐅ Grundrissoptimierung Einfamilienhaus mit 3 Kinderzimmer, Dachbodentreppe möglich?
Erstellt am: 04.07.25 22:21
J
JoMIBaGaHallo in die Runde,
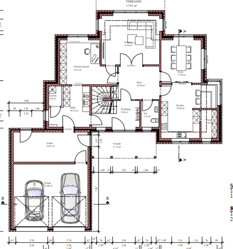
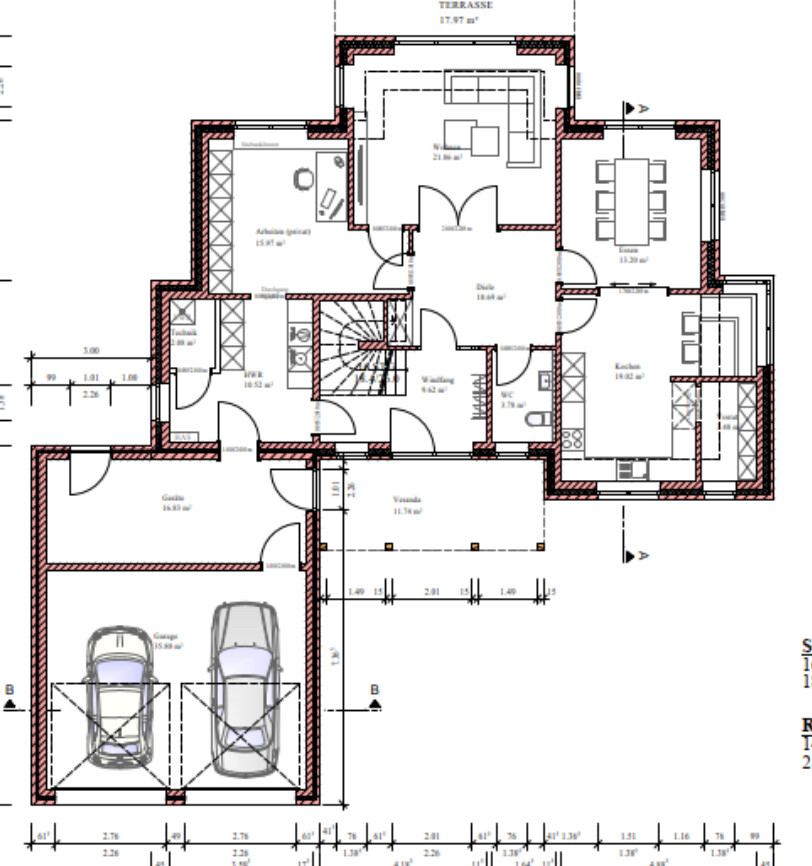
wir planen unser Einfamilienhaus und würden final gerne auf etwa 180qm kommen (gerade sind es 189qm bei zwei Geschossen ohne Schrägen). EG mit Hauswirtschaftsraum/Technik/Vorrat, Küche, Esszimmer, Wohnzimmer, Büro und Diele. OG mit Elternschlafzimmer/Ankleidebereich, Familienbad, Duschbad mit Waschmaschinennische, zwei Kinderzimmer und Büro/3.Kinderzimmer.
EG:
-Das Büro soll eventuell später als Apartment genutzt werden können.
OG:
-Der Flur im OG ist recht schmal und lang/dunkel.
-Der Ankleidebereich/ das Elternschlafzimmer gefällt uns so noch nicht.
-Gibt es eine Möglichkeit eine zweite Treppe zum Dachgeschoss zu realisieren?
Generell sind wir offen für Ideen und Anregungen. Fenster sind natürlich jetzt im Grundriss unbeachtet. Es geht uns erstmal um die Zimmeraufteilung.
Vielen Dank!
Bebauungsplan/Einschränkungen
Größe des Grundstücks: 754qm
Hang: nein
Baufenster, Baulinie und -grenze
Randbebauung: nein
Anzahl Stellplatz: 2
Geschossigkeit: 1
Dachform: Satteldach
Stilrichtung: Landhaus
Maximale Höhen/Begrenzungen: 9m
weitere Vorgaben
Anforderungen der Bauherren
Stilrichtung, Dachform, Gebäudetyp: Landhaus
Keller, Geschosse: ein Vollgeschoss und ein Dachgeschoss (eventuell ausgebauter Spitzboden)
Anzahl der Personen, Alter: 34, 32, 4, 1
Raumbedarf im EG, OG: EG: Diele, Büro, Hauswirtschaftsraum/Vorrat, Küche, Esszimmer, Wohnzimmer. OG: Elternschlafzimmer, Familienbad, Duschbad mit Waschmaschine, zwei Kinderzimmer, Büro/KiZi-3
Büro: Familiennutzung oder Homeoffice: Sowohl als auch. Zuerst fungiert das dritte Kinderzimmer als Büro.
Schlafgäste pro Jahr: keine
offene oder geschlossene Architektur: teils teils
offene Küche, Kochinsel: schließbare Küche mit Küchenblock
Anzahl Essplätze: im Esszimmer Möglichkeit bis 12 P.
Kamin: nein
Musik/Stereowand: nein
Balkon, Dachterrasse: nein
Garage, Carport: Doppelgarage
Nutzgarten, Treibhaus: nein
Hausentwurf
Von wem stammt die Planung:
-Do-it-Yourself
Was gefällt besonders? Warum? Alle Räume sind untergebracht. Wenig Verkehrsflächen.
Was gefällt nicht? Warum? Dunkler Flur im DG. Verwinkelte Räume.
favorisierte Heiztechnik: Luftwärmepumpe
Wenn Ihr verzichten müsst, auf welche Details/Ausbauten
-könnt Ihr verzichten: wir wären bereit Schrägen mit 1,50m Kniestock zu integrieren
-könnt Ihr nicht verzichten:
Warum ist der Entwurf so geworden, wie er jetzt ist? ZB
Standardentwurf vom Planer?
Ein Gemisch aus vielen Beispielen aus div. Magazinen...


wir planen unser Einfamilienhaus und würden final gerne auf etwa 180qm kommen (gerade sind es 189qm bei zwei Geschossen ohne Schrägen). EG mit Hauswirtschaftsraum/Technik/Vorrat, Küche, Esszimmer, Wohnzimmer, Büro und Diele. OG mit Elternschlafzimmer/Ankleidebereich, Familienbad, Duschbad mit Waschmaschinennische, zwei Kinderzimmer und Büro/3.Kinderzimmer.
EG:
-Das Büro soll eventuell später als Apartment genutzt werden können.
OG:
-Der Flur im OG ist recht schmal und lang/dunkel.
-Der Ankleidebereich/ das Elternschlafzimmer gefällt uns so noch nicht.
-Gibt es eine Möglichkeit eine zweite Treppe zum Dachgeschoss zu realisieren?
Generell sind wir offen für Ideen und Anregungen. Fenster sind natürlich jetzt im Grundriss unbeachtet. Es geht uns erstmal um die Zimmeraufteilung.
Vielen Dank!
Bebauungsplan/Einschränkungen
Größe des Grundstücks: 754qm
Hang: nein
Baufenster, Baulinie und -grenze
Randbebauung: nein
Anzahl Stellplatz: 2
Geschossigkeit: 1
Dachform: Satteldach
Stilrichtung: Landhaus
Maximale Höhen/Begrenzungen: 9m
weitere Vorgaben
Anforderungen der Bauherren
Stilrichtung, Dachform, Gebäudetyp: Landhaus
Keller, Geschosse: ein Vollgeschoss und ein Dachgeschoss (eventuell ausgebauter Spitzboden)
Anzahl der Personen, Alter: 34, 32, 4, 1
Raumbedarf im EG, OG: EG: Diele, Büro, Hauswirtschaftsraum/Vorrat, Küche, Esszimmer, Wohnzimmer. OG: Elternschlafzimmer, Familienbad, Duschbad mit Waschmaschine, zwei Kinderzimmer, Büro/KiZi-3
Büro: Familiennutzung oder Homeoffice: Sowohl als auch. Zuerst fungiert das dritte Kinderzimmer als Büro.
Schlafgäste pro Jahr: keine
offene oder geschlossene Architektur: teils teils
offene Küche, Kochinsel: schließbare Küche mit Küchenblock
Anzahl Essplätze: im Esszimmer Möglichkeit bis 12 P.
Kamin: nein
Musik/Stereowand: nein
Balkon, Dachterrasse: nein
Garage, Carport: Doppelgarage
Nutzgarten, Treibhaus: nein
Hausentwurf
Von wem stammt die Planung:
-Do-it-Yourself
Was gefällt besonders? Warum? Alle Räume sind untergebracht. Wenig Verkehrsflächen.
Was gefällt nicht? Warum? Dunkler Flur im DG. Verwinkelte Räume.
favorisierte Heiztechnik: Luftwärmepumpe
Wenn Ihr verzichten müsst, auf welche Details/Ausbauten
-könnt Ihr verzichten: wir wären bereit Schrägen mit 1,50m Kniestock zu integrieren
-könnt Ihr nicht verzichten:
Warum ist der Entwurf so geworden, wie er jetzt ist? ZB
Standardentwurf vom Planer?
Ein Gemisch aus vielen Beispielen aus div. Magazinen...
JoMIBaGa schrieb:
Fenster sind natürlich jetzt im Grundriss unbeachtet. Es geht uns erstmal um die Zimmeraufteilung.Natürlich? Das eine (Zimmeraufteilung) funktioniert ohne dem anderen (Fensterpositionen) nicht.JoMIBaGa schrieb:
Geschossigkeit: 1Und warum sind dort 2 Vollgeschosse zu sehen?Das Tool kann auch Dachschrägen. Das Tool ist sehr einfach zu handhaben. Nur sollte man sich vom Simshaus etwas absetzen, wenn es um wahre Angelegenheiten geht. Wenn man knappe 190qm verplant, dann sollte man es fürs sich rechtfertigen können, 600000 bzw 650000 ausgeben zu wollen, aber ohne fachliche Ahnung Tetris zu spielen.
JoMIBaGa schrieb:
wir planen unser Einfamilienhaus und würden final gerne auf etwa 180qm kommen (gerade sind es 189qm bei zwei Geschossen ohne Schrägen).Und nun hättet Ihr am liebsten Vorschläge, wie man da noch 9 qm abschmelzen könnte ?JoMIBaGa schrieb:
wir wären bereit Schrägen mit 1,50m Kniestock zu integrierenDa gibt es ein Dilemma: Badewanne und Betten sagen sogar 2 m Kniestock erforderlich, aber der Bebauungsplan sagt eingeschossig !JoMIBaGa schrieb:
Verwinkelte Räume.Das ist normal, die entstehen automatisch, wenn Laien Verkehrsflächen einsparen wollen.https://www.instagram.com/11antgmxde/
https://www.linkedin.com/company/bauen-jetzt/
Ähnliche Themen