Hausbau - Ratgeber
Bauherrenhilfe
- Bauherrenhilfe vor Vertragsabschluss
-- Warum einen unabhängigen Baubetreuer?
-- Vertragsgrundlagen
-- Bausumme
-- Zahlungsplan zur Kostenkontrolle
-- Pflichten des Bauherren vor Vertragsabschluss
-- Unterlagen beim Hausbau vor Vertragsabschluss
- Bauherrenhilfe nach Vertragsabschluss
-- Bauantrag bei Behörden
-- Bau-Genehmigungsverfahren bei Baubehörden
-- Bauspezifische Versicherungen
-- Bauzeitenplan
-- Baubeginn - die Letzten Pflichten der Bauherrschaft
- Bauherrenhilfe während der Bauzeit
- Gewährleistungsansprüche
- Bauabnahme
Baufinanzierung
- Baufinanzierung - Allgemeine Fragen
- Kreditarten
- Kredit-Konditionen
- Bausparen
- Staatliche Förderungen
- Verkehrswert
- Haushaltsrechnung und Bonität
Hausbau Planung
- Haustypen
- Hausbau Vorbereitungsarbeiten
- Das Baugrundstück
- Baugrund beim Hausbau
- Baurecht
- Gebäudeschutz
- Erdarbeiten und Wasserhaltung
- Stützmauern
- Einfriedung
- Untergeschoss
- Kanalisation
- Tragende Elemente
- Nichttragende Innenwände
- Fundation / Fundament
- Deckenkonstruktionen
- Dächer
- Kaminanlagen
- Treppen Rampen Leitern
- Dachbeläge und Spengler
- Fenster
- Sonnen und Wetterschutz
- Aussenputze
- Einbauten, Küchen, Türen
- Bodenbeläge und Unterlagsböden
- Parkett
- Gips, Wand, Decke
Haustechnik und Energie
- Heiztechnik
- Lüftung und Klimatechnik
- Sanitärtechnik
- Elektrotechnik
- Erneuerbare Energie
Whirlpools / Jacuzzi
Hausbau Magazin
- Baufinanzierung trotz Krise?
- Das Blockhaus
- Moderne Dämmstoffe im Vergleich
- Erker Vor- und Nachteile
- Glasflächen beim Hausbau
- Günstig ein Haus Bauen
- Mediterraner Hausbaustil
- Mehrgenerationenhaus
- Moderne Architektur
- Gartengestaltung leicht gemacht
- Traditioneller Ziegelbau
- Villa als höchster Traum
- Im Eigenheim Ruhestand geniessen
- Altbau sanieren
- Kauf einer Holzgarage
- Immobilienmakler
- Arbeitshandschuhe für den Winter
- Zuhause verschönern
- Outdoor-Plissees
- Schlafzimmer planen
- Terrassenüberdachung
- Wohngebäudeversicherung
- Zaunarten und Eigenschaften
- Hauseingang gestalten
- Der perfekte Grundriss
- Sparsamer heizen im Altbau
- Einfamilienhaus smart finanzieren
- Planung einer PV-Anlage
- Neues Haus
- Immobilienfinanzierung
- Installation einer Photovoltaikanlage
- Asbest erkennen und entfernen
- Gartenpflege im Frühling – worauf achten
- Sauna im Fokus - Wellness zuhause
- Erfolgreich vermieten
- Die perfekte Winterbekleidung
- Das Niedrigenergiehaus
- Der April und seine Stürme
- Architektonische Vielfalt
- Ökologisch und nachhaltig bauen
- Das perfekte Schlafzimmer
- Nachhaltige Energieversorgung
- Zukunftsorientiert bauen
- Nachhaltigkeit beim Hausbau
- Tiny Houses
- Wärmepumpen als nachhaltige Heizvariante
- Maßgeschneiderten Kleiderschrank
- Der richtige Baukredit
- Ratgeber für erfolgreichen Hausbau
- Haus als Altersvorsorge
Do-it-yourself Anleitungen
- Verlegeanleitung für Bodenbeläge und Parkett
- Bodenbeläge und Parkett reinigen und pflegen
- Malerarbeiten am Haus
- Garten Tipps
- Umzug und Reinigung

ᐅ Grundrissfinalisierung Bungalow 130m² für 4 Personen

Erstellt am: 23.07.19 08:00
M
micric3
M
micric3
31.07.19 19:04
11ant schrieb:

Ein dritter Fehler, den man vermeiden sollte, wird hier von Dir praktiziert: nämlich die geraden Außenkanten. Einerseits ist es zwar gut, an Ziererkern als Firlefanz zu sparen. Andererseits sind gerade verlaufende Außenwände in dogmatischer Dosierung aber ebenso ungünstig und führen ebenso wie beim "Quadrat aus Prinzip" dazu, Räume in für sie einzeln betrachtet ungünstige Breite-Tiefe-Verhältnisse zu zwingen, nur um in der Summe ein "klares Rechteck" zu erhalten. Dimensioniere doch testweise mal alle Räume "optimal" ungeachtet dessen, ob ihre Außenwände dann "in Linie" lägen.

Es sind halt gewisse Vorgaben ( Verortung des Einfamilienhaus im Grundstück und Preis ) nach denen wir uns orientieren. Oder sehe ich die Mehrkosten zu kritisch? Letztendlich wir beim Mehrpreis vermutlich das Dach ausschlaggebend sein.

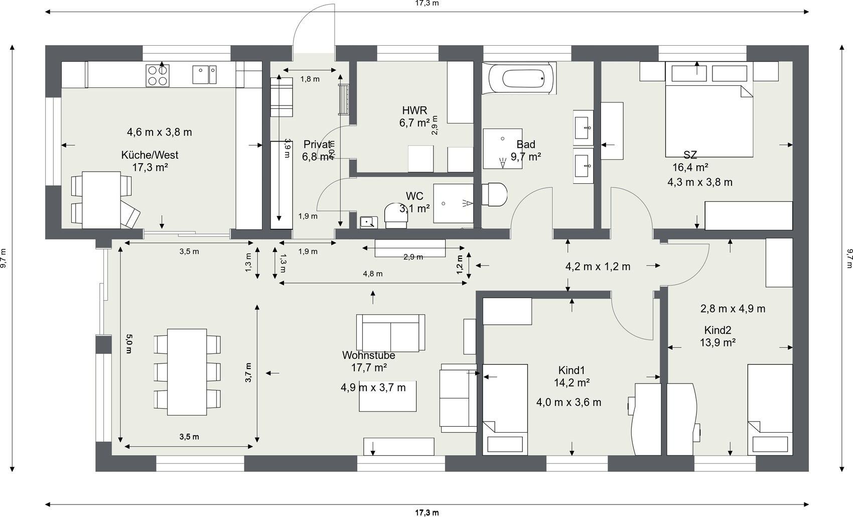
Mit folgendem Grundriss können wir uns wohl gut arrangieren.
Hier gehts es erst mal nur ums Layout:

- Eingang\Hauswirtschaftsraum\Nassräume zeigen in Zuwegung\Hausanschluss
- Küche geschlossen aber mit großem Zugang ( Schiebetür öä. )
- Küche im Westen, dafür mit Blick auf Zuwegung, Licht sollte genug vorhanden sein
- optimale Zimmergrößen
- Flur / Diele Größe optimiert
- Wohnbereich erlaubt viele Gestaltungsmöglichkeiten

Grundriss eines Hauses mit Küche, Essbereich, Wohnzimmer, Bad, Flur, Schlafzimmer und Terrasse.
H
haydee
31.07.19 19:37
Dann tausche Hauswirtschaftsraum und Diele
Dann steht nicht jeder im Wohnzimmer
M
micric3
01.08.19 08:33
@11ant: wenn dann würde ich die Küche breiter ziehen. Siehe Anhang1.Eine Frage der Mehrkosten

@haydee: Eingang mittig verlegt. So richtig gefällt es noch nicht. Braucht noch etwas Zeit. Aber gut zum vergleichen.

Grundriss eines Hauses: Küche/West, Wohnstube, HWR, Bad, WC, SZ, Kind1, Kind2.


Grundriss einer Wohnung mit Küche, Esszimmer, Wohnzimmer, Bad, Flur, Schlafzimmer, zwei Kinderzimmer.
Y
ypg
01.08.19 09:03
Nochmal ein Tipp: korrigiere mal die möbel in normal verkäufliche Möbel: Deine Sofa haben Puppengrösse, bzw die mögen als Gästeklappsofa dienen, aber nicht als WZ-Möbel zum Wohlfühlen. Das gleiche mag ggf für die Küchensitzecke gelten
A
Andre77
01.08.19 10:12
@micric3
auch wenn ich nicht der Grundriss- / Einrichtungsspezi bin, aber die Schüssel im Gäste-WC würde vielleicht an der planlinken Wand zur Küche besser untergergebracht aussehen. Thront man, hat man so sehr nah die Wand vorm Kopf.
Im Masterbad, die Dusche hinter die Türe, das WC neben die Wanne, je nach dem was die Nische für Platz hergibt und die beiden Waschbecken nach planlinks.
11ant01.08.19 11:53
micric3 schrieb:

Eine Frage der Mehrkosten
Nein, eine Küche zähle ich mal zu den Essentials, deren geeignetes Format Priorität hat. Mit Freisitz bliebe es in diesem Fall übrigens wohl beim rechteckigen Dachumriß.
https://www.instagram.com/11antgmxde/
https://www.linkedin.com/company/bauen-jetzt/
küchemöbelmehrkostengrundrisseinganghauswirtschaftsraumzuwegungdiele