R
R.Hotzenplotz31.08.17 12:46ypg schrieb:
Jetzt sieht der Plan so aus, dass dort die Garderobe liegt, insofern liegt ein direkter Durchgang sehr nahe, auch im Bezug dazu, nicht erst durch die ganze Diele zu latschen, wenn man an sein Zeugs kommen will.
Bei den Hauskosten würde ich die 2000, die die Tür kosten mag (keine Ahnung, ob ich mit dem Preis richtig liege) immer mit einrechnen, eher auf irgendetwas sinnloseres im/am Haus verzichten.
<-> meine Meinung!Die 2.000 € (incl. vernünftiger Einbruchsicherung lt. GU eher 4.000 €) sind nicht das Problem. Wenn man aber aus der Garderobe / dem Flur nicht auf die Stahltür zur Garage schauen möchte, braucht man zumindest eine kleine Zwischenwand neben dem Garagenzugang. Würde man dagegen auf dieses Konstrukt verzichten, hätte man eine schöne große Garderobe. Das ist der Grundgedanke gewesen.
ypg schrieb:
Nach meiner Meinung wurde aber mittig der Planung ein falscher Weg eingeschlagen, und ich kann mir vorstellen, wenn man noch mal neu auf Start gegangen wäre, ein gleich guter und schöner, wenn auch günstiger Entwurf herausgekommen wäre.Das kann ich mir auch gut vorstellen. 10m² hätten es irgendwo noch werden können. Vielleicht fehlte der Mut, noch mal von Grund auf neu zu planen. Ich denke aber, dafür ist es nun zu spät. Wir haben einfach keinen Bock mehr, noch mal von vorne anzufangen.
ypg schrieb:
Vielleicht hätte man auch mal den Keller mit in die Diskussion nehmen sollen ? Inwiefern? Der Keller ist das einzige, was noch nicht 100% fix ist. Da wird gerade noch eine Alternative mit noch kleinerem Teilkeller gerechnet (unterhalb der Treppe statt oberhalb der Treppe). Das würde einen Verzicht auf den Hobbyraum und ein nur noch minimalistisches Gästezimmer bedeuten. Wäre nicht das Problem. Ob es kostentechnisch nötig wird, sehen wir dann.
kaho674 schrieb:
Ich würde mir ja mit dem fertigen Entwurf noch 2 Gegenangebote einholen. Das Haus ist zwar groß, aber es sind ja keine 5 Bäder o.ä. Die 800T sehe ich jedenfalls nicht unbedingt. Ihr?Da sind wir dran. Warten in drei Fällen seit zwei Tagen auf Rückrufe. Offenbar geht es der Branche so gut, dass sie es gar nicht nötig haben, hier auch bloß ein durchschnittliches Engagement an den Tag zu legen.
ypg schrieb:
Die Terrassentür in der Küche habe ich erfunden. Irgendwie falsch gelesen.Ich bilde mir ein, irgendwann wäre da mal ein bodentiefes Fenster auf der Ecke gewesen, aus dem man hätte austreten können.https://www.instagram.com/11antgmxde/
https://www.linkedin.com/company/bauen-jetzt/
R
R.Hotzenplotz31.08.17 15:3511ant schrieb:
ch bilde mir ein, irgendwann wäre da mal ein bodentiefes Fenster auf der Ecke gewesen, aus dem man hätte austreten können.Ja, das war es auch. Das wurde aber nicht auf unseren Wunsch hin so gezeichnet. Wir hatten den Wunsch eines Eckfensters geäußert und haben dann korrigierend eingegriffen als eine Terrassentür draus wurde....
R
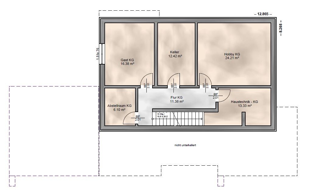
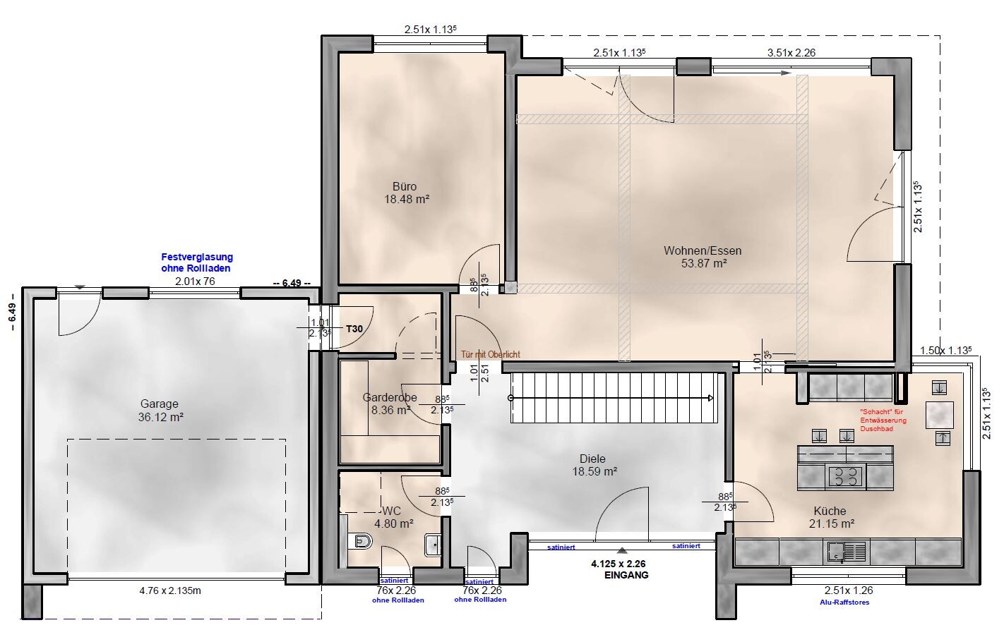
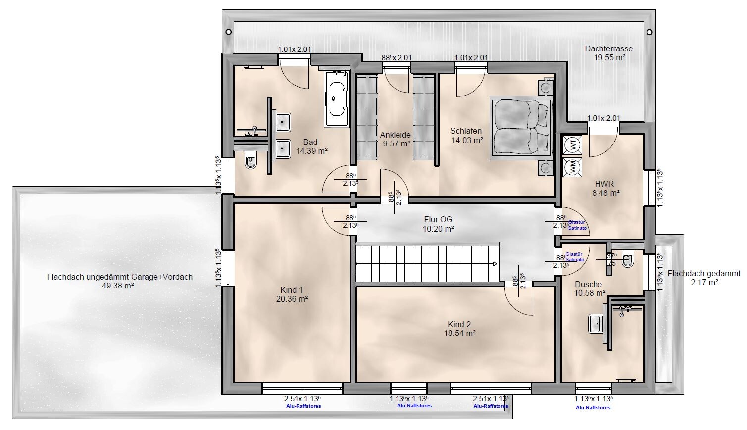
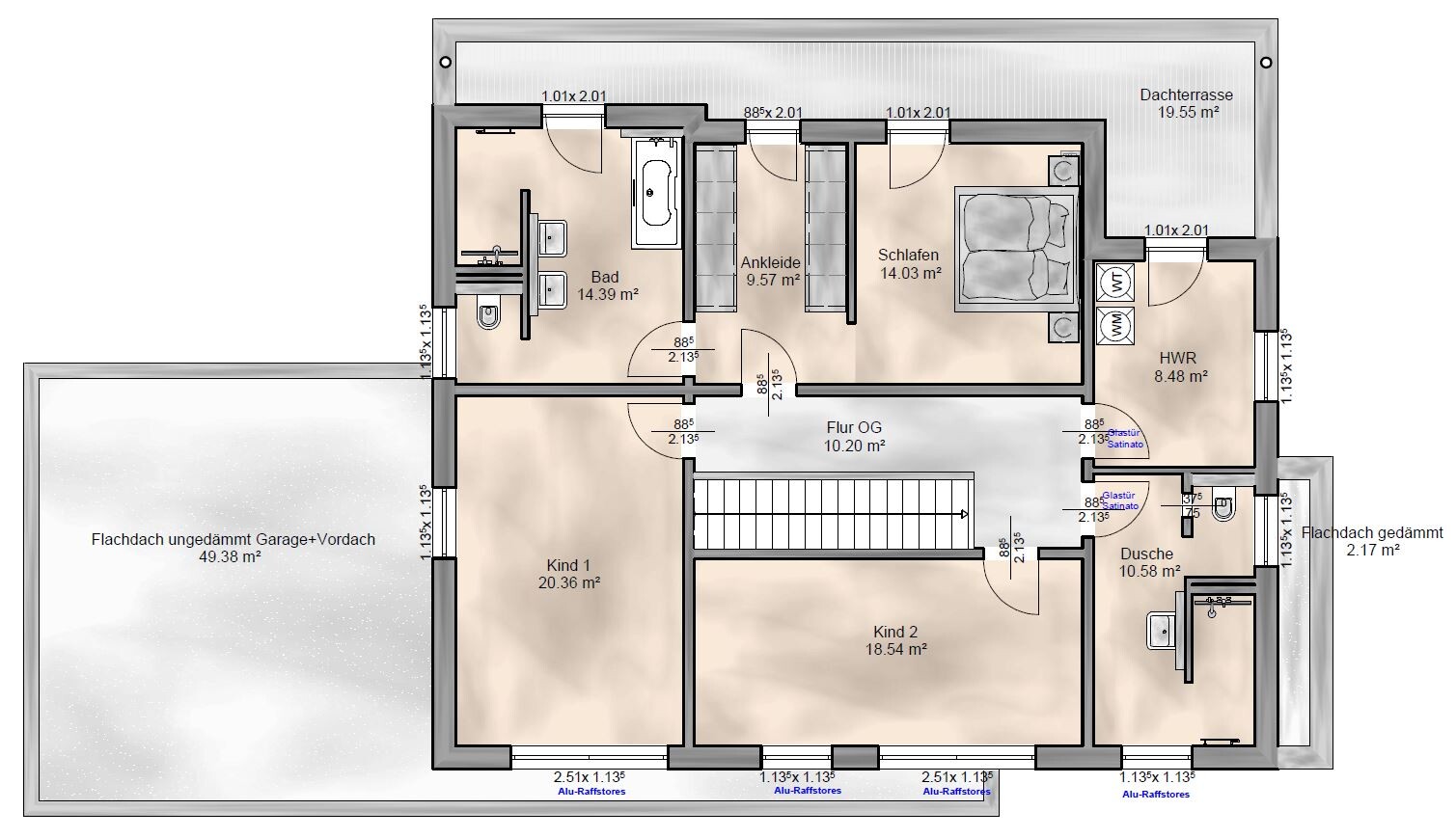
R.Hotzenplotz14.09.17 20:29Wir näheren uns dem Ende der Planungsphase. Heute habe ich folgendes erhalten (siehe Anlagen).
Ich habe auch einen Link für eine 3D Innenvisualisierung. Da man hier keine Links posten kann, würde ich den auf Wunsch per PN schicken.....
In Summe gesehen dürften wir so gut wie am Ziel sein. Folgende Punkte würde ich aber noch besprechen.
KG: ist soweit in Ordnung denke ich
EG:
1) In der Küche gefällt mir der Schacht für die Entwässerung der Dusche überhaupt nicht. Er nimmt einem die Option neben das Eckfenster einen normalen Küchentisch zu stellen. Nur so eine Bar, wo man mit zwei Mann dran sitzen kann, finde ich nicht gut. Die Entwässerung kann man sicher auch anders lösen. Die möblierung mit den Schränken hatten sie einfach mal so eingezeichnet, das erfolgte nicht auf unseren Wunsch hin.
Ebenfalls war für die Küche eigentlich besprochen, dass zur Straße hin ein nicht so hohes, sondern flacheres, dafür breites Fenster verbaut wird. Das lassen wir vielleicht noch ändern.
2) Ansonsten stören uns im EG nur noch die bodentiefen Fenster im Flur (tw.) - mindestens aber im WC. Klar kann man das satinieren aber irgendwie widerspricht das etwas unserem Behagen, weiß auch nicht. Im letzten Gespräch mit dem Architekten hatten wir allerdings auch mal kleine Fenster visualisiert und das passte echt nicht sehr schön zur Fassade. Vielleicht hat dazu noch einer eine Idee.... gerade das WC Fenster stört uns wie gesagt einfach doch ziemlich stark.
3) Die kleine angedeutete Wand neben dem Garagenzugang kann man auch weg machen, wenn die Tür ordentlich verkleidet ist und man nicht auf eine Metalltür schaut sondern auf etwas, das wohnlich wirkt.
OG:
4) An der Fassadenfront wurde die Fensteraufteilung geändert. Stört mich so weit nicht aber ich habe überlegt, ob das mittige Zimmer des Kinderzimmers notwendig ist. In der Innenvisualisierung sieht das nicht so prickelnd aus und ob es für die Außenoptik notwendig ist, weiß ich nicht. Wir hatten zuvor eine völlig andere Fensteraufteilung und eigentlich auch nicht besprochen, dass hier was geändert wird. Muss ich morgen fragen, warum das erfolgte.
5) Beim linken Kinderzimmer überlegen wir noch, ob das Fenster neben der Garage aufgrund der Einbruchgefahr doch wegfallen soll. Ich denke, es wäre schon ein Sicherheitsgewinn, es wegzulassen. Oder in RC 3 ausstatten bzw. vergittern. Aber ob das Sinn macht? Weiß nicht.
6) Die Bäder müssen wir noch verplanen. Die Möblierung, Ausrichtung von Duschen, WCs etc. sind einfach mal so eingezeichnet worden. Wir wollen das beim Sanitärfachmann ordentlich im Detail verplanen. Bin eigentlich kein Freund von diesen Trennwänden, wo die Waschbecken dran hängen. Gerade im Kinderbad wirkt das etwas eng. Und im Kinderbad wird bestimmt eine Badewanne sinnvoll sein.
Schade, dass keine Maße dran stehen. Hätte gerne gesehen, wie viel Platz in der Ankleide nun von Schrank zu Schrank besteht.
Wir sind soweit zufrieden.
Fällt euch noch was auf? Sonst gebt gerne mal Feedback zu meinen Punkten.






Ich habe auch einen Link für eine 3D Innenvisualisierung. Da man hier keine Links posten kann, würde ich den auf Wunsch per PN schicken.....
In Summe gesehen dürften wir so gut wie am Ziel sein. Folgende Punkte würde ich aber noch besprechen.
KG: ist soweit in Ordnung denke ich
EG:
1) In der Küche gefällt mir der Schacht für die Entwässerung der Dusche überhaupt nicht. Er nimmt einem die Option neben das Eckfenster einen normalen Küchentisch zu stellen. Nur so eine Bar, wo man mit zwei Mann dran sitzen kann, finde ich nicht gut. Die Entwässerung kann man sicher auch anders lösen. Die möblierung mit den Schränken hatten sie einfach mal so eingezeichnet, das erfolgte nicht auf unseren Wunsch hin.
Ebenfalls war für die Küche eigentlich besprochen, dass zur Straße hin ein nicht so hohes, sondern flacheres, dafür breites Fenster verbaut wird. Das lassen wir vielleicht noch ändern.
2) Ansonsten stören uns im EG nur noch die bodentiefen Fenster im Flur (tw.) - mindestens aber im WC. Klar kann man das satinieren aber irgendwie widerspricht das etwas unserem Behagen, weiß auch nicht. Im letzten Gespräch mit dem Architekten hatten wir allerdings auch mal kleine Fenster visualisiert und das passte echt nicht sehr schön zur Fassade. Vielleicht hat dazu noch einer eine Idee.... gerade das WC Fenster stört uns wie gesagt einfach doch ziemlich stark.
3) Die kleine angedeutete Wand neben dem Garagenzugang kann man auch weg machen, wenn die Tür ordentlich verkleidet ist und man nicht auf eine Metalltür schaut sondern auf etwas, das wohnlich wirkt.
OG:
4) An der Fassadenfront wurde die Fensteraufteilung geändert. Stört mich so weit nicht aber ich habe überlegt, ob das mittige Zimmer des Kinderzimmers notwendig ist. In der Innenvisualisierung sieht das nicht so prickelnd aus und ob es für die Außenoptik notwendig ist, weiß ich nicht. Wir hatten zuvor eine völlig andere Fensteraufteilung und eigentlich auch nicht besprochen, dass hier was geändert wird. Muss ich morgen fragen, warum das erfolgte.
5) Beim linken Kinderzimmer überlegen wir noch, ob das Fenster neben der Garage aufgrund der Einbruchgefahr doch wegfallen soll. Ich denke, es wäre schon ein Sicherheitsgewinn, es wegzulassen. Oder in RC 3 ausstatten bzw. vergittern. Aber ob das Sinn macht? Weiß nicht.
6) Die Bäder müssen wir noch verplanen. Die Möblierung, Ausrichtung von Duschen, WCs etc. sind einfach mal so eingezeichnet worden. Wir wollen das beim Sanitärfachmann ordentlich im Detail verplanen. Bin eigentlich kein Freund von diesen Trennwänden, wo die Waschbecken dran hängen. Gerade im Kinderbad wirkt das etwas eng. Und im Kinderbad wird bestimmt eine Badewanne sinnvoll sein.
Schade, dass keine Maße dran stehen. Hätte gerne gesehen, wie viel Platz in der Ankleide nun von Schrank zu Schrank besteht.
Wir sind soweit zufrieden.
Fällt euch noch was auf? Sonst gebt gerne mal Feedback zu meinen Punkten.
Ähnliche Themen